Koffer packen und einziehen!
€ 759.000
€ 5.128 / m²
2201 Seyring
-
sofort
Beschreibung
Koffer packen und einziehen! Dieses Niedrigenergiehaus der Firma Wolf wurde ca. 2012 errichtet, steht auf ca. 506 m² Eigengrund mit ca. 148 m² Wohnnutzfläche (= Erdgeschoß und Obergeschoß) und ist voll unterkellert (ca. 68 m²). Im Erdgeschoß kommt man durch die Diele in den offenen, gemütlichen Wohn-Essbereich mit Küche (EWE-Küche mit Markengeräten) und von dort auf die Terrasse mit Blick auf den schön angelegten Garten. Im Erdgeschoß findet man auch noch einen Abstellraum und ein WC. Über je einen Stiegenaufgang kommt entweder in den Keller oder in das Obergeschoß. Das Obergeschoß ist aufgeteilt in einen großen, hellen Flur. Von dort...
Koffer packen und einziehen!
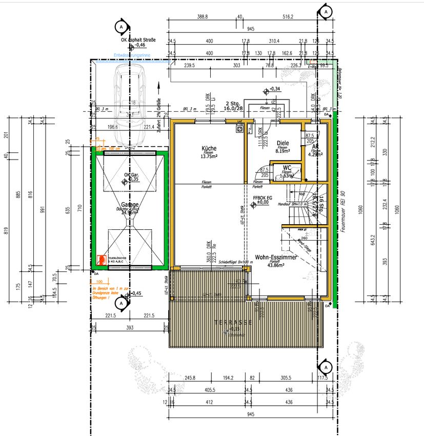
Dieses Niedrigenergiehaus der Firma Wolf wurde ca. 2012 errichtet, steht auf ca. 506 m² Eigengrund mit ca. 148 m² Wohnnutzfläche (= Erdgeschoß und Obergeschoß) und ist voll unterkellert (ca. 68 m²).
Im Erdgeschoß kommt man durch die Diele in den offenen, gemütlichen Wohn-Essbereich mit Küche (EWE-Küche mit Markengeräten) und von dort auf die Terrasse mit Blick auf den schön angelegten Garten. Im Erdgeschoß findet man auch noch einen Abstellraum und ein WC.
Über je einen Stiegenaufgang kommt entweder in den Keller oder in das Obergeschoß.
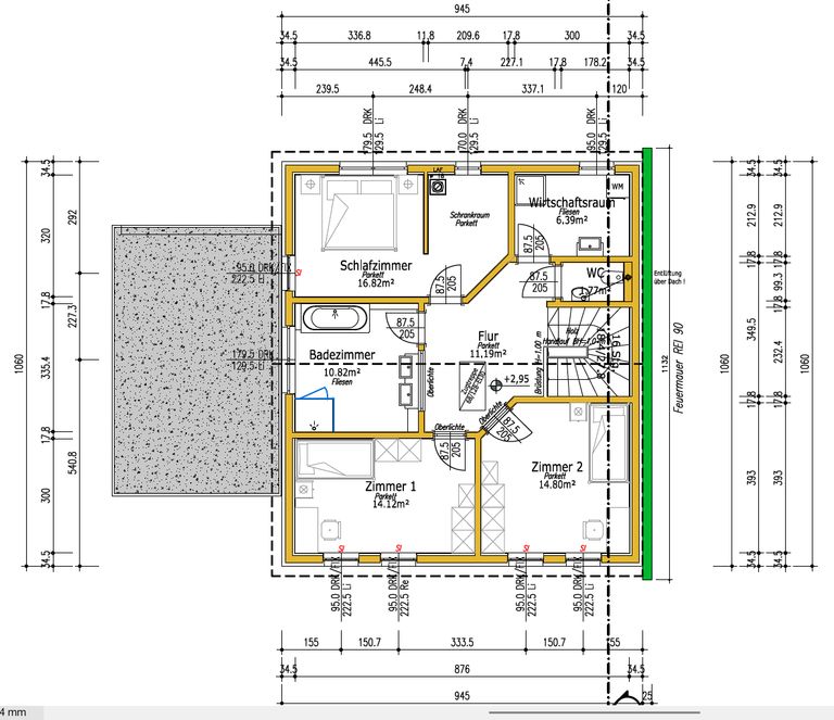
Das Obergeschoß ist aufgeteilt in einen großen, hellen Flur. Von dort kommt man in 3 Zimmer (eines mit Schrankraum), das Badezimmer mit Wanne, Dusche und 2 Waschbecken, ein WC und einen Abstellraum.
Das gesamte Haus ist sehr hell und lichtdurchflutet und strahlt eine beruhigende Gemütlichkeit aus.
Es ist voll unterkellert. Dort findet man 2 Kellerräume, einen Raum für die Heiztechnik und den Pelletslagerraum. In der angebauten Garage findet ein Auto Platz.
Weitere Schmankerl sind: Alarmanlage, Wohnraumlüftung mit Wärmerückgewinnung, Bewässerungsanlage im Garten, elektr. Außenjalousien, elektr. Markise, ein Mähroboter, usw.
ACHTUNG: Das Haus wird nicht so übergeben wie auf den Fotos, die meisten Möbel wurden noch entfernt!
Zur S-Bahn-Station sind es ca. 400 m, in wenigen Autominuten ist man auf der S1 (Wiener Außenring Schnellstraße).
Kaufpreis: Euro 759.000,--
Die angegebene Wohnfläche entspricht der Nutzfläche iSd MRG § 17 (2).
WIR SENDEN IHNEN GERNE AUF ANFRAGE WEITERE INFORMATIONEN!
Bitte beachten Sie, dass wir aufgrund der Nachweispflicht gegenüber dem Eigentümer nur Anfragen mit vollständiger Angabe der Anschrift und Angaben zur Person (Vor- und Nachname, Telefonnummer, E-Mail) bearbeiten können.
Bitte beachten Sie weiters, dass wir Ihnen seit 13.06.2014 aufgrund einer neuen EU-Richtlinie Unterlagen und Adressangaben zu diesem Objekt erst übermitteln können, wenn Sie bestätigen, dass Sie unser sofortiges Tätigwerden wünschen und über Ihre Rücktrittsrechte aufgeklärt wurden. Sie bekommen nach Ihrer Anfrage ein E-Mail, in welchem Sie nach Anklicken des enthaltenen Links darüber aufgeklärt werden und diese Punkte bestätigen müssen. Danach erhalten Sie automatisch das Exposé zum Download. Diese Bestätigung müssen wir AUSNAHMSLOS einholen. Wir danken für Ihr Verständnis!
Besichtigungen sind mit dem jeweils zuständigen Betreuer möglich.
Die sorgfältigen Recherchen des Immobilienmaklers haben ergeben, dass keine weiteren Unterlagen im Bauakt der Gemeinde aufliegen.
Alle Angaben nach bestem Wissen. Irrtum und Zwischenverkauf vorbehalten. Dieses Exposee ist eine Vorinformation, als Rechtsgrundlage gilt allein der abgeschlossene Kaufvertrag. § 15 der Maklerverordnung gilt als vereinbart. Wir weisen darauf hin, dass wir als Doppelmakler tätig sind, sowie ein wirtschaftliches und/oder familiäres Naheverhältnis zum Abgeber bestehen kann.
Dieses Niedrigenergiehaus der Firma Wolf wurde ca. 2012 errichtet, steht auf ca. 506 m² Eigengrund mit ca. 148 m² Wohnnutzfläche (= Erdgeschoß und Obergeschoß) und ist voll unterkellert (ca. 68 m²).
Im Erdgeschoß kommt man durch die Diele in den offenen, gemütlichen Wohn-Essbereich mit Küche (EWE-Küche mit Markengeräten) und von dort auf die Terrasse mit Blick auf den schön angelegten Garten. Im Erdgeschoß findet man auch noch einen Abstellraum und ein WC.
Über je einen Stiegenaufgang kommt entweder in den Keller oder in das Obergeschoß.
Das Obergeschoß ist aufgeteilt in einen großen, hellen Flur. Von dort kommt man in 3 Zimmer (eines mit Schrankraum), das Badezimmer mit Wanne, Dusche und 2 Waschbecken, ein WC und einen Abstellraum.
Das gesamte Haus ist sehr hell und lichtdurchflutet und strahlt eine beruhigende Gemütlichkeit aus.
Es ist voll unterkellert. Dort findet man 2 Kellerräume, einen Raum für die Heiztechnik und den Pelletslagerraum. In der angebauten Garage findet ein Auto Platz.
Weitere Schmankerl sind: Alarmanlage, Wohnraumlüftung mit Wärmerückgewinnung, Bewässerungsanlage im Garten, elektr. Außenjalousien, elektr. Markise, ein Mähroboter, usw.
ACHTUNG: Das Haus wird nicht so übergeben wie auf den Fotos, die meisten Möbel wurden noch entfernt!
Zur S-Bahn-Station sind es ca. 400 m, in wenigen Autominuten ist man auf der S1 (Wiener Außenring Schnellstraße).
Kaufpreis: Euro 759.000,--
Die angegebene Wohnfläche entspricht der Nutzfläche iSd MRG § 17 (2).
WIR SENDEN IHNEN GERNE AUF ANFRAGE WEITERE INFORMATIONEN!
Bitte beachten Sie, dass wir aufgrund der Nachweispflicht gegenüber dem Eigentümer nur Anfragen mit vollständiger Angabe der Anschrift und Angaben zur Person (Vor- und Nachname, Telefonnummer, E-Mail) bearbeiten können.
Bitte beachten Sie weiters, dass wir Ihnen seit 13.06.2014 aufgrund einer neuen EU-Richtlinie Unterlagen und Adressangaben zu diesem Objekt erst übermitteln können, wenn Sie bestätigen, dass Sie unser sofortiges Tätigwerden wünschen und über Ihre Rücktrittsrechte aufgeklärt wurden. Sie bekommen nach Ihrer Anfrage ein E-Mail, in welchem Sie nach Anklicken des enthaltenen Links darüber aufgeklärt werden und diese Punkte bestätigen müssen. Danach erhalten Sie automatisch das Exposé zum Download. Diese Bestätigung müssen wir AUSNAHMSLOS einholen. Wir danken für Ihr Verständnis!
Besichtigungen sind mit dem jeweils zuständigen Betreuer möglich.
Die sorgfältigen Recherchen des Immobilienmaklers haben ergeben, dass keine weiteren Unterlagen im Bauakt der Gemeinde aufliegen.
Alle Angaben nach bestem Wissen. Irrtum und Zwischenverkauf vorbehalten. Dieses Exposee ist eine Vorinformation, als Rechtsgrundlage gilt allein der abgeschlossene Kaufvertrag. § 15 der Maklerverordnung gilt als vereinbart. Wir weisen darauf hin, dass wir als Doppelmakler tätig sind, sowie ein wirtschaftliches und/oder familiäres Naheverhältnis zum Abgeber bestehen kann.
| Angaben gemäß gesetzlichem Erfordernis: | |||
| Heizwärmebedarf: | 36.2 kWh/(m²a) | ||
| Klasse Heizwärmebedarf: | B | ||
| Faktor Gesamtenergieeffizienz: | 0.74 | ||
| Klasse Faktor Gesamtenergieeffizienz: | A | ||
Objektdaten
Ausstattung
- Teilmöbliert
- Kabel/SAT-TV
- Unterkellert
- Zentralheizung
- Fertigteil Bauweise
- Niedrigenergie
- Bad
- Fertigteil Bauweise
- Bus
- Dorfrand
- Geschirrspüler
- Glaskeramikfeld
- Grüne Lage
- Küche
- Ländliche Lage
- Pellets/Biomasse
- Kabel/SAT-TV
- Schnellbahn
- Sonnige Lage
- Teilmöbliert
- Unterkellert
Dokumente / Links
Zustand
- Zustand
- GEPFLEGT
- Baujahr
- ca. 2012
- Altlasten
- lastenfrei
Flächen
- Anzahl der Zimmer
- 4
- Anzahl der Schlafzimmer
- 3
- Anzahl der Badezimmer
- 1
- Anzahl der sep. WCs
- 2
- Anzahl der Terrassen
- 1
- Stellplätze
- 2
- Wohnfläche
- 148m²
- Nutzfläche
- 148m²
- Grundstücksfläche
- 506m²
- Kellerfläche
- 68m²
- Terrassenfläche
- 1m²
Kosten
- Kaufpreis
- € 759.000,00
- Nebenkosten
- € 122,00
- Betriebskosten Brutto
- € 122,00
Verwaltung
- Verfügbar ab
- sofort
Häuser zum Kaufen in Österreich
- Bezirk Gemeindebezirk Floridsdorf
- Bezirk Gemeindebezirk Floridsdorf
- Bezirk Gemeindebezirk Floridsdorf
- Bezirk Gemeindebezirk Donaustadt
- Bezirk Gemeindebezirk Donaustadt
- Bezirk Gemeindebezirk Donaustadt
- Bezirk Gemeindebezirk Döbling
- Bezirk Gemeindebezirk Döbling
- Bezirk Gemeindebezirk Döbling
- Bezirk Gemeindebezirk Währing
Häuser zum Kaufen in Österreich
Häuser zum Kaufen in Österreich
Andere Besucher suchen nach...
- Grundstücke kaufen in 3400 Weidlingbach
- Wohnungen kaufen in 4663 Laakirchen
- Häuser in 7471 Rechnitz
- Wohnungen in 2410 Hainburg an der Donau
- Häuser kaufen in 2432 Schwadorf
- Wohnungen kaufen in 3002 Purkersdorf
- Häuser in 3150 Wilhelmsburg
- Wohnungen kaufen in 3470 Engelmannsbrunn
- Grundstücke kaufen im Bezirk Mattersburg
- Grundstücke kaufen im Bezirk Gmunden