Familienwohntraum mit Gartenparadies und Ausblick ins Kamptal
Beschreibung
Familienwohntraum mit Gartenparadies Dieses großzügige Einfamilienhaus verfügt über eine Wohnfläche von ca. 217 m². Das Grundstück umfasst insgesamt ca. 3.023 m² und bietet damit viel Platz für Erholung und Entfaltung im Grünen.
Das Haus besticht durch seinen wunderschönen, terrassenförmig angelegten Naturgarten mit einem Biotop und Obstbäumen (Marille, Apfel, Birne, Pfirsich, Nektarine und Kirsche). Die verschiedenen Ebenen schaffen eine besondere Atmosphäre und bieten zahlreiche Rückzugsorte. Von den Terrassen in Ost- und Westausrichtung genießen Sie sowohl die Morgensonne als auch stimmungsvolle Abendstunden mit herrlichem Ausblick. Ergänzt wird das Angebot durch weitere Nutzungsmöglichkeiten im Außenbereich, darunter ein Hühnerstall. Das Erdgeschoß gliedert sich in...
Familienwohntraum mit Gartenparadies
Dieses großzügige Einfamilienhaus verfügt über eine Wohnfläche von ca. 217 m². Das Grundstück umfasst insgesamt ca. 3.023 m² und bietet damit viel Platz für Erholung und Entfaltung im Grünen.
Das Haus besticht durch seinen wunderschönen, terrassenförmig angelegten Naturgarten mit einem Biotop und Obstbäumen (Marille, Apfel, Birne, Pfirsich, Nektarine und Kirsche). Die verschiedenen Ebenen schaffen eine besondere Atmosphäre und bieten zahlreiche Rückzugsorte. Von den Terrassen in Ost- und Westausrichtung genießen Sie sowohl die Morgensonne als auch stimmungsvolle Abendstunden mit herrlichem Ausblick. Ergänzt wird das Angebot durch weitere Nutzungsmöglichkeiten im Außenbereich, darunter ein Hühnerstall.
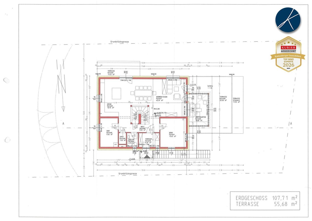
Das Erdgeschoß gliedert sich in einen großzügigen Wohn- und Essbereich mit direktem Zugang zu den Terrassen, in den Garten sowie in den Wintergarten, der den Wohnraum auf angenehme Weise erweitert. Ergänzt wird diese Ebene durch ein weiteres Zimmer, einen Vorraum, eine Diele, ein Bad/WC, einen Abstellraum sowie einen Hauswirtschaftsraum.
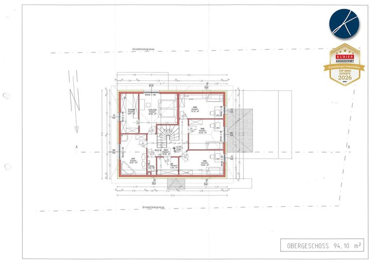
Das Obergeschoß unterteilt sich in ein Schlafzimmer mit angrenzendem Schrankraum, drei weitere Zimmer, einen Abstellraum, ein Badezimmer mit Dusche und Badewanne sowie ein separates WC. Vom ersten Stock aus führt ein praktischer Wäscheschacht direkt ins Erdgeschoß.
Im Kellergeschoß stehen zahlreiche Nutzungsmöglichkeiten zur Verfügung. Neben Technik- und Lagerräumen finden sich hier auch ein Zimmer mit Anschlüssen für eine Sauna sowie zusätzliche Hobby- oder Freizeiträume.
Besonders hervorzuheben ist auf dieser Ebene auch das separate Arbeitszimmer mit eigenem Eingang von der Straße sowie der neben dem Haus befindliche Weinkeller mit Ziegelgewölbe und einem Vorplatz mit Natursteinmauern für gemütliche Stunden.
Für zusätzlichen Komfort sorgen eine Garage für zwei PKW sowie weitere Stellmöglichkeiten für bis zu drei Fahrzeuge in der Einfahrt.
Die moderne Erdwärmeheizung sorgt für äußerst niedrige Energiekosten. Der gesamte Energieverbrauch (Heizung und Strom) betrug die letzten Jahre jeweils nur ca. 9.000 kWh und dient als unverbindlicher Richtwert.
Lage:
Die Liegenschaft befindet sich in Schönberg-Neustift in ruhiger und naturnaher Wohnlage. Die Umgebung ist geprägt von weitläufigen Grünflächen, Weinbergen und einer idyllischen Landschaft.
Trotz der absoluten Ruhelage ist eine gute Infrastruktur gegeben. Einrichtungen des täglichen Bedarfs wie Supermärkte, Bäckereien sowie Banken sind in wenigen Minuten erreichbar. Auch Kindergarten und Schule befinden sich in angenehmer Distanz. Die Anbindung an den öffentlichen Verkehr ist durch eine nahegelegene Bushaltestelle sowie einen Bahnhof in der Umgebung gewährleistet.
Die Nähe zu Krems an der Donau bietet zusätzlich eine hervorragende städtische Infrastruktur mit vielfältigen Einkaufs-, Gastronomie- und Freizeitmöglichkeiten. Gleichzeitig genießen Sie hier die Vorzüge eines Lebens im Grünen mit herrlichem Ausblick und hoher Wohnqualität.
Besichtigungen können nach Absprache ab sofort vereinbart werden.
Kontakt: Sonja Pirker +43 660 6008002
Wir sind immer auf der Suche nach neuen Objekten. Wenn auch Sie eine Immobilie zu verkaufen oder vermieten haben, berate ich Sie gerne über den besten Weg zum Vermittlungserfolg. Ich freue mich auf Ihren Anruf!
* * * * * * * * * * * * * * * * * *
KUTTENBERGER IMMO - Vier Jahre in Folge ausgezeichnet* mit den Qualitätssiegeln IMMO CHAMPION 2023, TOP IMMO EXPERTE 2024, TOP IMMO EXPERTE 2025 und TOP IMMO EXPERTE 2026! (*von Kurier und dem IMWF - Institut für Management und Wirtschaftsforschung)
Weitere Online-Services auf www.kuttenberger-immo.at:
- Vormerkkunde werden und Angebote erhalten? - - - Suchagent anlegen - - -
- Sie möchten eine Immobilie verkaufen? - - - Beratung anfragen - - -
- Die passende Finanzierung finden? - - - Online Kreditrechner - - -
- Wieviel ist meine Immobilie wert? - - - Immobilie online bewerten - - -
- Künftig keine Immo-News verpassen? - - - Email-Newsletter anmelden - - -
* * * * * * * * * * * * * * * * * *
Infrastruktur / Entfernungen
Gesundheit
Arzt <1.500m
Apotheke <4.500m
Klinik <4.500m
Kinder & Schulen
Schule <1.500m
Kindergarten <1.500m
Nahversorgung
Bäckerei <4.500m
Supermarkt <1.500m
Sonstige
Bank <1.500m
Geldautomat <1.500m
Post <4.000m
Polizei <3.500m
Verkehr
Bus <500m
Bahnhof <1.000m
Autobahnanschluss <9.000m
Flughafen <8.500m
Angaben Entfernung Luftlinie / Quelle: OpenStreetMap
Objektdaten
Ausstattung
- Wintergarten
- Bad mit Dusche
- Bad mit Badewanne
- Bad mit Fenster
- Einbauküche
- Fliesenboden
- Parkettboden
- Dielenboden
- Fußbodenheizung
- Erdwärme
- Ausrichtung Balkon/Terrasse - Süd
- Ausrichtung Balkon/Terrasse - West
- Mansarddach
- Massiv Bauweise
- Schlüsselfertig mit Keller
Zustand
- Zustand
- GEPFLEGT
- Baujahr
- 2006
- Alter
- NEUBAU
- HWB
- 43 kWh/m² pro Jahr
- Klasse HWB
- B
- fGEE
- 0.83
- Klasse fGEE
- A
Flächen
- Anzahl der Zimmer
- 7
- Anzahl der Badezimmer
- 2
- Anzahl der sep. WCs
- 2
- Anzahl der Terrassen
- 2
- Stellplätze
- 3
- Wohnfläche
- 217m²
- Nutzfläche
- 345m²
- Grundstücksfläche
- 3.023m²
- Kellerfläche
- 76m²
- Terrassenfläche
- 2m²
Kosten
- Kaufpreis Brutto
- € 725.000,00
Häuser zum Kaufen im Umkreis von Schönberg am Kamp
Häuser zum Kaufen im Umkreis von Schönberg am Kamp
Häuser zum Kaufen in Österreich
Andere Besucher suchen nach...
- Grundstücke kaufen in 3400 Weidlingbach
- Wohnungen kaufen in 4663 Laakirchen
- Häuser in 7471 Rechnitz
- Wohnungen in 2410 Hainburg an der Donau
- Häuser kaufen in 2432 Schwadorf
- Wohnungen kaufen in 3002 Purkersdorf
- Häuser in 3150 Wilhelmsburg
- Wohnungen kaufen in 3470 Engelmannsbrunn
- Grundstücke kaufen im Bezirk Mattersburg
- Grundstücke kaufen im Bezirk Gmunden