Einzigartige Liegenschaft aus dem Jahre 1740, stil-, liebevoll professionell restauriert
Beschreibung
In wunderschöner Wohnlage im Tiroler Unterland, am Eingang zum Alpbachtal in Nähe von der historischen Altstadt Rattenberg sowie den Seendorf Kramsach gelangt dieses geschichtsträchtige Gebäude mit Atelier zum Verkauf.
Die erste urkundliche Erwähnung ist aus dem Jahre 1740. In der Geschichte ist auch zu erfahren, dass das Gebäude als Zahlstelle für die Bergbauarbeiter diente.
Das äußerst liebevoll und aufwändig restaurierte Wohnhaus ist ein wahres Schmuckstück.
Das Wohnhaus wurde vor geraumer Zeit generalsaniert. Diesbezüglich sind mehr oder weniger nur die Grundmauern noch vom Altbestand. (2 Bilder von den Arbeiten sind im Exposé enthalten)
Die Sanierung fand unter Rücksichtnahme der Altsubstanz nur...
In wunderschöner Wohnlage im Tiroler Unterland, am Eingang zum Alpbachtal in Nähe von der historischen Altstadt Rattenberg sowie den Seendorf Kramsach gelangt dieses geschichtsträchtige Gebäude mit Atelier zum Verkauf.
Die erste urkundliche Erwähnung ist aus dem Jahre 1740. In der Geschichte ist auch zu erfahren, dass das Gebäude als Zahlstelle für die Bergbauarbeiter diente.
Das äußerst liebevoll und aufwändig restaurierte Wohnhaus ist ein wahres Schmuckstück.
Das Wohnhaus wurde vor geraumer Zeit generalsaniert. Diesbezüglich sind mehr oder weniger nur die Grundmauern noch vom Altbestand. (2 Bilder von den Arbeiten sind im Exposé enthalten)
Die Sanierung fand unter Rücksichtnahme der Altsubstanz nur mit ausgesuchten Qualitätsfirmen statt, wo auch hier ein Restaurator sowie eine bekannte Künstlerin mit hochwertigen Materialien die Endgestaltung durchführten.
Beheizt wird das Gebäude durch eine Öl-Zentralheizung sowie durch feste Brennstoffe.
Die Gesamtgrundstücksfläche beträgt ca. 541 qm.
Für nähere Informationen stehe ich Ihnen gerne zur Verfügung.
Die angeführten Angaben und Informationen dienen lediglich als unverbindliche Vorinformation und bleiben somit ohne jede Gewähr.
Infrastruktur / Entfernungen
Gesundheit
Arzt <500m
Apotheke <500m
Klinik <500m
Krankenhaus <3.500m
Kinder & Schulen
Schule <500m
Kindergarten <500m
Nahversorgung
Supermarkt <500m
Bäckerei <500m
Einkaufszentrum <1.000m
Sonstige
Bank <500m
Geldautomat <500m
Post <500m
Polizei <2.000m
Verkehr
Bus <500m
Bahnhof <1.000m
Autobahnanschluss <1.500m
Angaben Entfernung Luftlinie / Quelle: OpenStreetMap
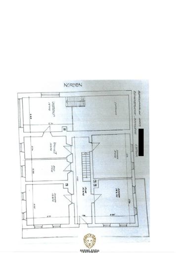
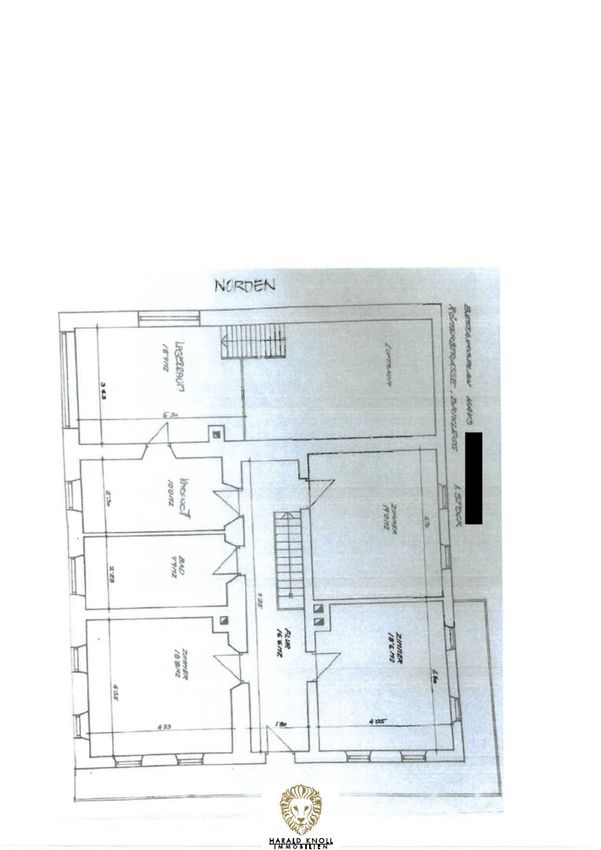
Objektdaten
Flächen
- Wohnfläche
- 255m²
- Grundstücksfläche
- 541m²
Kosten
- Kaufpreis Brutto
- € 1.150.000,00
Häuser zum Kaufen im Umkreis von Brixlegg
Häuser zum Kaufen im Umkreis von Brixlegg
Häuser zum Kaufen in Österreich
Andere Besucher suchen nach...
- Grundstücke kaufen in 3400 Weidlingbach
- Wohnungen kaufen in 4663 Laakirchen
- Häuser in 7471 Rechnitz
- Wohnungen in 2410 Hainburg an der Donau
- Häuser kaufen in 2432 Schwadorf
- Wohnungen kaufen in 3002 Purkersdorf
- Häuser in 3150 Wilhelmsburg
- Wohnungen kaufen in 3470 Engelmannsbrunn
- Grundstücke kaufen im Bezirk Mattersburg
- Grundstücke kaufen im Bezirk Gmunden