KOPP³ – Luxuriöser Raum für das Wesentliche - das Leben
-
sofort
Beschreibung
KOPP³ – Raum für das Wesentliche
Inmitten der sanften Topografie des Linzer Zaubertals entsteht mit KOPP³ ein Ort, der die Sprache der Natur spricht – und der modernen Architektur ein leises, aber prägnantes Echo verleiht. Eine Adresse, die nicht laut sein muss, um gehört zu werden: Koppstraße 3.
Architektonische Haltung
Die reduzierte Formensprache des Baukörpers fügt sich selbstverständlich in die Landschaft ein. Offene Grundrisse, weite Glasfronten und fein nuancierte Materialien definieren ein Zuhause, das nicht nur gebaut, sondern gedacht wurde – mit Weitblick, mit Haltung, mit Herz.
Bauen mit Sinn. Wohnen mit Gefühl.
Wohnen im Licht
Diese einzigartige Wohneinheit öffnet...
KOPP³ – Raum für das Wesentliche
Inmitten der sanften Topografie des Linzer Zaubertals entsteht mit KOPP³ ein Ort, der die Sprache der Natur spricht – und der modernen Architektur ein leises, aber prägnantes Echo verleiht. Eine Adresse, die nicht laut sein muss, um gehört zu werden: Koppstraße 3.
Architektonische Haltung
Die reduzierte Formensprache des Baukörpers fügt sich selbstverständlich in die Landschaft ein. Offene Grundrisse, weite Glasfronten und fein nuancierte Materialien definieren ein Zuhause, das nicht nur gebaut, sondern gedacht wurde – mit Weitblick, mit Haltung, mit Herz.
Bauen mit Sinn. Wohnen mit Gefühl.
Wohnen im Licht
Diese einzigartige Wohneinheit öffnet sich nach Süden und fängt das Licht des Tages in seiner ganzen Dynamik ein. Die privaten Freibereiche – von der loggienartigen Terrasse bis zum großzügigen Eigengarten mit Edelstahl Pool – laden dazu ein, Grenzen zwischen Innen und Außen aufzulösen.
Was bleibt, ist das Gefühl von Offenheit. Und das sanfte Spiel aus Schatten, Struktur und Sonnenschein.
Der Blick ins Grüne – und darüber hinaus
Von hier reicht der Blick weit über das grüne Zaubertal bis hin zum Horizont. Ein Panorama, das atmen lässt. Die Nähe zum Naherholungsgebiet Freinberg und Kürnbergerwald sowie der direkte Anschluss an urbane Infrastruktur schaffen ein Gleichgewicht zwischen Rückzug und Anbindung.
Lage & Infrastruktur
Trotz idyllischer Lage ist das Zentrum von Linz in wenigen Minuten erreichbar. Nahversorger, Bildungs- und Betreuungseinrichtungen, medizinische Versorgung – alles in unmittelbarer Nähe. Die Koppstraße vereint das Beste aus zwei Welten: naturnahe Ruhe und städtische Effizienz.
Eckdaten auf einen Blick
Adresse: Koppstraße 3, 4020 Linz / Zaubertal
Großzügigste Wohnfläche von ca. 550 m², flexibel teilbar
Orientierung: Süd & West
Energiekennzahlen: HWB 72 kWh/m²a – effizient & nachhaltig
Hochwertige Ausführung: Holz-Alu-Fenster, Echtholzböden, Fußbodenheizung
3 Garagenplätze & E-Mobilitäts-Infrastruktur, weitere Parkplätze für Gäste im Freien
Entstanden ursprünglich aus einer Doppelhaushälfte 1995, diese unter Einbezug der beiden Nachbargrundstücke und Neu-Zubau sowie Generalsanierung auf Neubaustandard 2005 luxuriösest und grußzügigst erweitert.
Ein Ort, der nicht nur zum Wohnen, sondern zum Leben gedacht ist.
KOPP³ spricht Menschen an, die Architektur als Lebensraum begreifen – als Bühne für das Alltägliche, das Einfache, das Schöne. Hier entsteht kein Projekt. Hier entsteht ein Zuhause.
Noch nichts gefunden? Wir informieren Sie über geeignete Immobilienangebote noch vor allen anderen.
Legen Sie jetzt Ihren individuellen Suchagenten unter folgendem Link an. Wir schicken Ihnen passende Immobilien exklusiv vorab zu.
Suchagent anlegen - https://immobilien-atelier76.service.immo/registrieren/de
Der Vermittler ist als Doppelmakler tätig.
Infrastruktur / Entfernungen
Gesundheit
Arzt <2.000m
Apotheke <2.000m
Klinik <2.500m
Krankenhaus <3.000m
Kinder & Schulen
Kindergarten <1.000m
Schule <1.000m
Universität <2.000m
Höhere Schule <3.000m
Nahversorgung
Supermarkt <2.000m
Bäckerei <1.000m
Einkaufszentrum <3.000m
Sonstige
Bank <2.000m
Geldautomat <2.000m
Post <2.000m
Polizei <1.500m
Verkehr
Bus <500m
Straßenbahn <1.500m
Bahnhof <1.500m
Autobahnanschluss <1.500m
Flughafen <6.500m
Angaben Entfernung Luftlinie / Quelle: OpenStreetMap
Objektdaten
Ausstattung
- WG geeignet
- Gartennutzung
- Kabel/SAT-TV
- Sauna
- Swimmingpool
- Wasch-/Trockenraum
- Sporteinrichtungen
- Rolladen
- Gäste-WC
- Seniorengerecht
- Bad mit Dusche
- Bad mit Badewanne
- Bad mit Fenster
- Einbauküche
- Offene Küche
- Fliesenboden
- Parkettboden
- Zentralheizung
- Erdwärme
- Ausrichtung Balkon/Terrasse - Südost
- Ausrichtung Balkon/Terrasse - Südwest
- Flachdach
- Massiv Bauweise
- Holz Bauweise
- Schlüsselfertig mit Keller
- Neubaustandard
Dokumente / Links
Zustand
- Zustand
- GEPFLEGT
- Baujahr
- 2005
- Alter
- NEUBAU
- HWB
- 83 kWh/m² pro Jahr
- Klasse HWB
- C
- fGEE
- 0.93
- Klasse fGEE
- B
Flächen
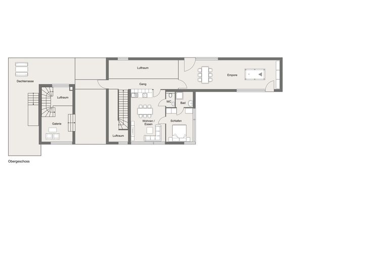
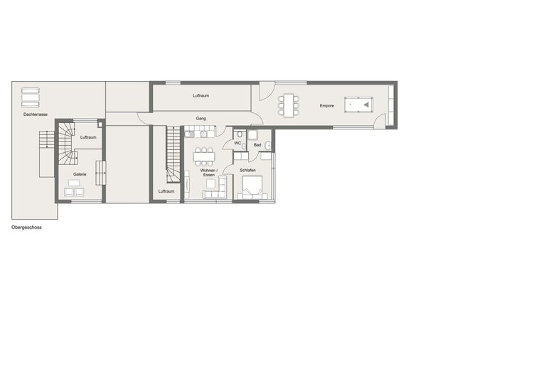
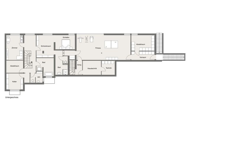
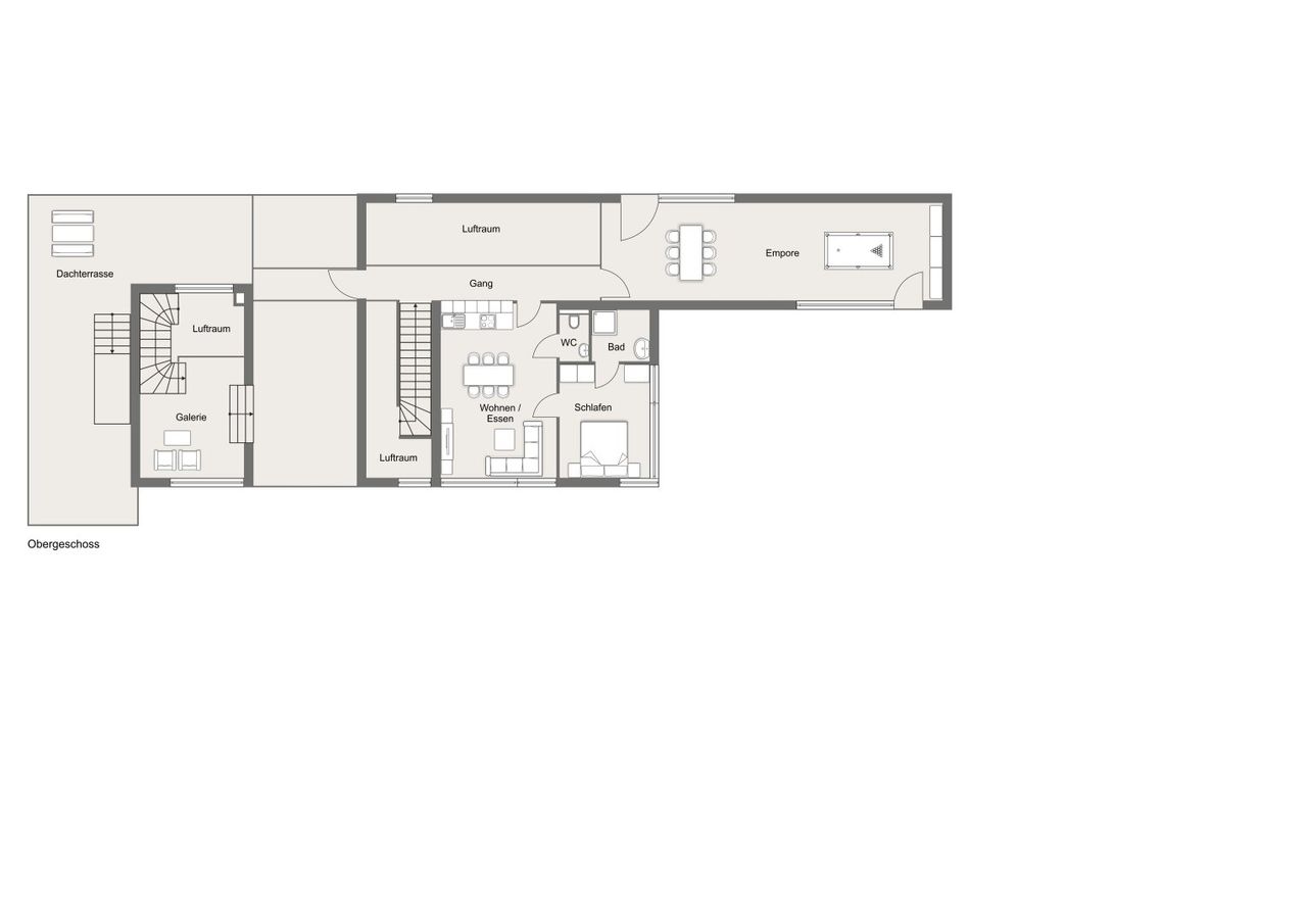
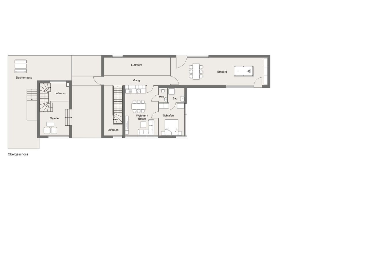
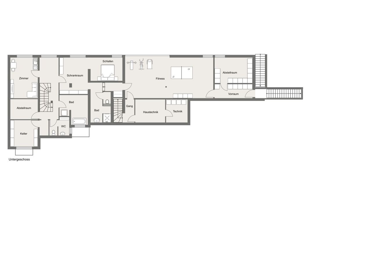
- Anzahl der Zimmer
- 11
- Anzahl der Badezimmer
- 3
- Anzahl der sep. WCs
- 4
- Anzahl der Terrassen
- 3
- Stellplätze
- 4
- Wohnfläche
- 548m²
- Gesamtfläche
- 598m²
- Grundstücksfläche
- 2.325m²
- Terrassenfläche
- 3m²
Kosten
- Kaufpreis Brutto
- € 3.500.000,00
Verwaltung
- Verfügbar ab
- sofort
Häuser zum Kaufen in Österreich
Häuser zum Kaufen in Österreich
Häuser zum Kaufen in Österreich
Andere Besucher suchen nach...
- Grundstücke kaufen in 3400 Weidlingbach
- Wohnungen kaufen in 4663 Laakirchen
- Häuser in 7471 Rechnitz
- Wohnungen in 2410 Hainburg an der Donau
- Häuser kaufen in 2432 Schwadorf
- Wohnungen kaufen in 3002 Purkersdorf
- Häuser in 3150 Wilhelmsburg
- Wohnungen kaufen in 3470 Engelmannsbrunn
- Grundstücke kaufen im Bezirk Mattersburg
- Grundstücke kaufen im Bezirk Gmunden