hammahaus – belagsfertig gebaut | limitierte baukapazität 2026 bei hammahäusern gibt’s koa blabla.
-
Erstbezug
Beschreibung
kurz und ehrlich: das hier ist kein fertiges haus mit schlüsselübergabe. wir bauen neu – auf bestellung.
die bilder zeigen häuser aus unseren projekten 2025, nicht das haus, das morgen besichtigt werden kann.
wer ein fertiges objekt sucht, ist hier falsch. wer sein haus bauen will, ist hier richtig.
hammahaus – belagsfertig gebaut | limitierte baukapazität 2026
bei hammahäusern gibt’s koa blabla.
das hammahaus – was das konkret heißt
✅ massiv gebautes baumeister-haus ✅ belagsfertige ausführung mit klar definiertem leistungsumfang ✅ fixpreis bei kaufanbot – was wir sagen, gilt ✅ unabhängige baubegleitung ✅...
kurz und ehrlich:
das hier ist kein fertiges haus mit schlüsselübergabe.
wir bauen neu – auf bestellung.
die bilder zeigen häuser aus unseren projekten 2025,
nicht das haus, das morgen besichtigt werden kann.
wer ein fertiges objekt sucht, ist hier falsch.
wer sein haus bauen will, ist hier richtig.
hammahaus – belagsfertig gebaut | limitierte baukapazität 2026
bei hammahäusern gibt’s koa blabla.
das hammahaus – was das konkret heißt
✅ massiv gebautes baumeister-haus
✅ belagsfertige ausführung mit klar definiertem leistungsumfang
✅ fixpreis bei kaufanbot – was wir sagen, gilt
✅ unabhängige baubegleitung
✅ individuelle einreichplanung möglich
✅ überschaubare projektanzahl – persönliche betreuung statt massenabwicklung
technik & standardausstattung
standardmäßig kalkuliert als flachdach
technisch setzen wir auf bewährte, zeitgemäße lösungen:
luftwärmepumpe, fußbodenheizung, elektrische rollläden,
großzügige hebeschiebetüren (ca. 3 m)
sowie fenster in kunststoff–alu-ausführung.
kein schnickschnack – sondern das, was im alltag wirklich zählt.
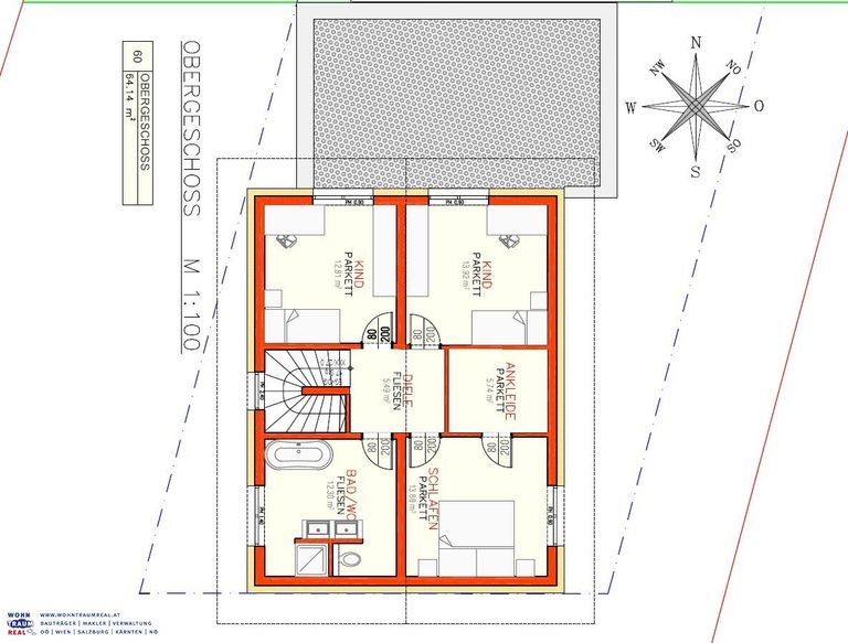
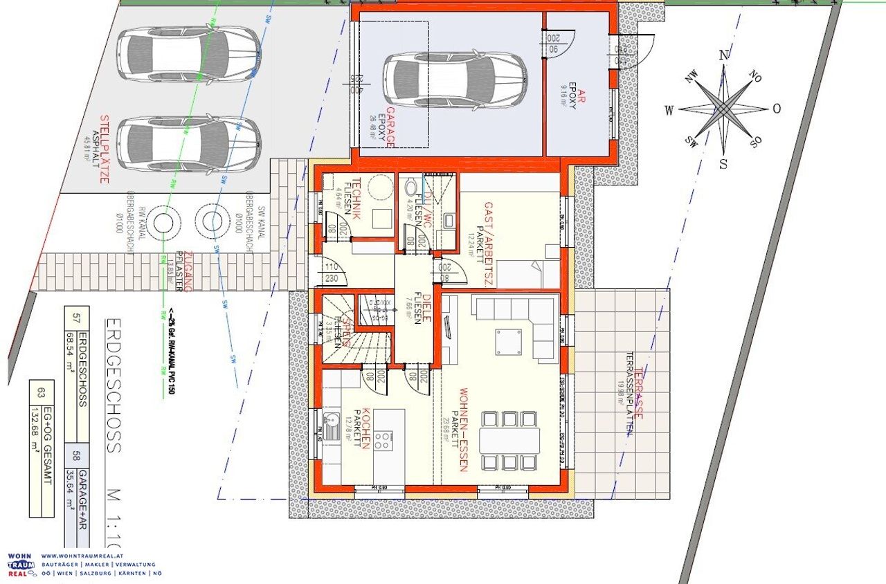
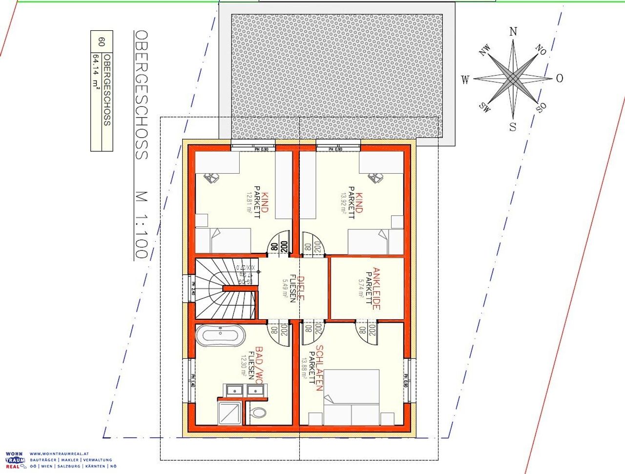
leitmodell 2026
einfamilienhaus mit ca. 133 m² wohnfläche
funktionaler, familiengerechter grundriss
grundrisse dienen als basis – geplant wird individuell
preis & kalkulation
wir arbeiten bewusst ohne pauschale online-preise,
weil grundstück, dachform und umfang entscheidend sind.
wichtig für dich:
👉 alle genannten preise sind fixpreise
👉 keine indexanpassung, keine nachverrechnung
als orientierung:
ein belagsfertiges hammahaus liegt deutlich unter dem aktuellen marktniveau –
ehrlich kalkuliert und sauber gebaut.
limitierte baukapazität 2026
max. 5 belagsfertige einfamilienhäuser
baubeginn verbindlich 2026
preisfixierung bei unterzeichnung des kaufanbots
so geht’s weiter
schick uns kurz die eckdaten zu deinem grundstück
oder ruf direkt an –
dann sagen wir dir rasch, klar und verbindlich,
was dein hammahaus kostet.
📞 jakob hammer
0660 / 444 7272
Infrastruktur / Entfernungen
Gesundheit
Arzt <500m
Apotheke <1.500m
Klinik <5.500m
Kinder & Schulen
Kindergarten <500m
Schule <1.000m
Universität <9.500m
Nahversorgung
Supermarkt <500m
Bäckerei <3.500m
Einkaufszentrum <1.000m
Sonstige
Bank <500m
Geldautomat <1.000m
Post <2.000m
Polizei <1.500m
Verkehr
Bus <500m
Straßenbahn <4.000m
Bahnhof <500m
Autobahnanschluss <1.500m
Flughafen <7.500m
Angaben Entfernung Luftlinie / Quelle: OpenStreetMap
Objektdaten
Ausstattung
- Barrierefrei
- Gäste-WC
- Bad mit Dusche
- Bad mit Badewanne
- Bad mit Fenster
- Fußbodenheizung
- Luftwärmepumpe
- Flachdach
- Massiv Bauweise
- Ausbauhaus
Zustand
- Zustand
- ERSTBEZUG
- Alter
- NEUBAU
Flächen
- Anzahl der Zimmer
- 5
- Anzahl der Badezimmer
- 2
- Anzahl der sep. WCs
- 2
- Wohnfläche
- 133m²
Kosten
Häuser zum Kaufen im Umkreis von Ansfelden
Häuser zum Kaufen im Umkreis von Ansfelden
Häuser zum Kaufen in Österreich
Andere Besucher suchen nach...
- Grundstücke kaufen in 3400 Weidlingbach
- Wohnungen kaufen in 4663 Laakirchen
- Häuser in 7471 Rechnitz
- Wohnungen in 2410 Hainburg an der Donau
- Häuser kaufen in 2432 Schwadorf
- Wohnungen kaufen in 3002 Purkersdorf
- Häuser in 3150 Wilhelmsburg
- Wohnungen kaufen in 3470 Engelmannsbrunn
- Grundstücke kaufen im Bezirk Mattersburg
- Grundstücke kaufen im Bezirk Gmunden