NEUBAU in Wilhering - Reith, exklusives Einfamilienhaus mit großer Garage - in wunderschöner Grünruhelage
-
Erstbezug
-
2025
-
Juni 2026
Beschreibung
PROJEKTSTATUS: in BAU - Rohbau
Exklusives EINFAMILIENHAUS in sehr beliebter, sonniger Grünruhelage in Wilhering - Reith!
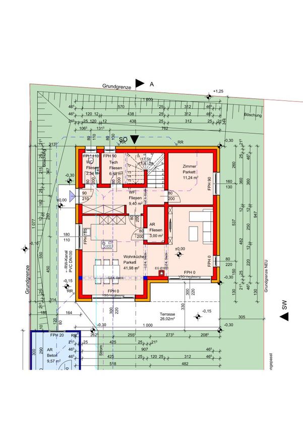
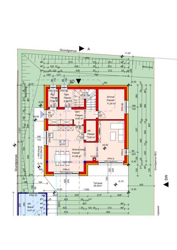
Großzügig, individuell und komfortabel Wohnen nach angepasster Planung auf ca. 151 m² Wohnfläche, die Sonnentage und Abende auf der große und teilweise überdachter Terrasse genießen und das Auto bequem in der Garage vor dem Haus geparkt. Als zusätzlicher Stauraum wurde die Garage um ca. 10 m² Abstellraum erweitert! Das eigene Paradies im Garten schaffen oder gemütlich am Pool chillen. Auf dem Grundstück mit 511 m² stehen Ihnen alle Möglichkeiten offen!
Bei der Planung wurde großer Wert auf die Ausrichtung des Gebäudes...
PROJEKTSTATUS: in BAU - Rohbau
Exklusives EINFAMILIENHAUS in sehr beliebter, sonniger Grünruhelage in Wilhering - Reith!
Großzügig, individuell und komfortabel Wohnen nach angepasster Planung auf ca. 151 m² Wohnfläche, die Sonnentage und Abende auf der große und teilweise überdachter Terrasse genießen und das Auto bequem in der Garage vor dem Haus geparkt. Als zusätzlicher Stauraum wurde die Garage um ca. 10 m² Abstellraum erweitert! Das eigene Paradies im Garten schaffen oder gemütlich am Pool chillen. Auf dem Grundstück mit 511 m² stehen Ihnen alle Möglichkeiten offen!
Bei der Planung wurde großer Wert auf die Ausrichtung des Gebäudes und individuelle Wohnbedürfnisse gelegt um alle Vorzüge des eigenen Hauses zu gewährleisten! Mit ausreichend Platz für Ihren persönlichen Freiraum, praktischen Stauraum und moderner Wohnraumplanung wird auf dem Grundstück ein neues Zuhause für Jung und Alt geschaffen. Der Wohn- Koch- Essbereich ermöglicht eine perfekte Balance zwischen Trennung und Verbindung der Bereiche. In der Küche wurde sogar eine Speise berücksichtigt. Ein Kaminanschluss bietet v.a. in der Übergangszeit eine wohlige Alternative zur Wärmepumpe. Sie können den Morgen mit 2 Bäder im Obergeschoss staufrei starten und bei Bedarf im Homeoffice ungestört arbeiten.
Wir bauen mit gewohnt hohem Standard. Das EFH wird in bewährter Massivbauweise in Niedrigenergiestandard und mit qualitativ und technisch hochwertigen Materialien ausgeführt.
Unsere Ausstattungshighlights:
- hochwertige belagsfertige Ausführung
- Hebe- Schiebetüre im Essbereich zur Terrasse
- Außenbereich mit Einfriedung /Gartenmauer
- Garage mit Sektionaltor
- zusätzlicher Abstellraum bei Garage mit ca. 10 m²
- umweltfreundliche Luft-Wasser-Wärmepumpe und Fußbodenheizung mit Kühlfunktion
- Kamin für eine zusätzliche stromunabhängige Wärmequelle
- Beschattung durch elektrische Raffstore bzw. Rollläden bei Fenstern und Terrassentüren
- 2 Bäder im Obergeschoss
- Vorbereitung für PV-Anlage
- großzügiger Garten
- Regenwasserzisterne für Gartenbewässerung
- zusätzlicher PKW-Abstellplatz
- auf Wunsch schlüsselfertig-Paket gegen Aufpreis - Kaufpreis € 55.000,-!
Eine ausführliche Bau- & Ausstattungsbeschreibung übermitteln wir gerne per Mail. Vereinbaren Sie ein persönliches Beratungsgespräch und reservieren Ihr Wunschhaus.
Wir weisen darauf hin, dass zwischen dem Vermittler und dem zu vermittelnden Dritten ein familiäres oder wirtschaftliches Naheverhältnis besteht.
Infrastruktur / Entfernungen
Gesundheit
Arzt <2.000m
Apotheke <4.500m
Krankenhaus <8.500m
Klinik <1.500m
Kinder & Schulen
Schule <2.500m
Kindergarten <2.500m
Universität <7.000m
Höhere Schule <9.000m
Nahversorgung
Supermarkt <1.500m
Bäckerei <2.500m
Einkaufszentrum <7.000m
Sonstige
Bank <2.500m
Geldautomat <2.500m
Post <4.500m
Polizei <5.000m
Verkehr
Bus <500m
Straßenbahn <7.000m
Bahnhof <2.000m
Autobahnanschluss <7.000m
Flughafen <6.500m
Angaben Entfernung Luftlinie / Quelle: OpenStreetMap
Objektdaten
Ausstattung
- Rolladen
- Gäste-WC
- Bad mit Dusche
- Bad mit Badewanne
- Bad mit Fenster
- Offene Küche
- Fußbodenheizung
- Luftwärmepumpe
- Flachdach
- Massiv Bauweise
- Niedrigenergie
- Neubaustandard
Dokumente / Links
Zustand
- Zustand
- ERSTBEZUG
- Baujahr
- 2025
- Alter
- NEUBAU
- HWB
- 42 kWh/m² pro Jahr
- Klasse HWB
- B
- fGEE
- 0.59
- Klasse fGEE
- A+
Flächen
- Anzahl der Zimmer
- 5.5
- Anzahl der Badezimmer
- 2
- Anzahl der sep. WCs
- 3
- Anzahl der Terrassen
- 1
- Stellplätze
- 1
- Wohnfläche
- 151m²
- Grundstücksfläche
- 511m²
- Terrassenfläche
- 1m²
- Nutzfläche
- 180m²
- Gartenfläche
- 300m²
Kosten
- Kaufpreis Brutto
- € 665.000,00
Verwaltung
- Verfügbar ab
- Juni 2026
Häuser zum Kaufen im Umkreis von Wilhering
Häuser zum Kaufen im Umkreis von Wilhering
Häuser zum Kaufen in Österreich
Andere Besucher suchen nach...
- Grundstücke kaufen in 3400 Weidlingbach
- Wohnungen kaufen in 4663 Laakirchen
- Häuser in 7471 Rechnitz
- Wohnungen in 2410 Hainburg an der Donau
- Häuser kaufen in 2432 Schwadorf
- Wohnungen kaufen in 3002 Purkersdorf
- Häuser in 3150 Wilhelmsburg
- Wohnungen kaufen in 3470 Engelmannsbrunn
- Grundstücke kaufen im Bezirk Mattersburg
- Grundstücke kaufen im Bezirk Gmunden