Kompaktes Einfamilienhaus mit Garten
€ 390.000
€ 3.095 / m²
4470 Enns
-
sofort
Beschreibung
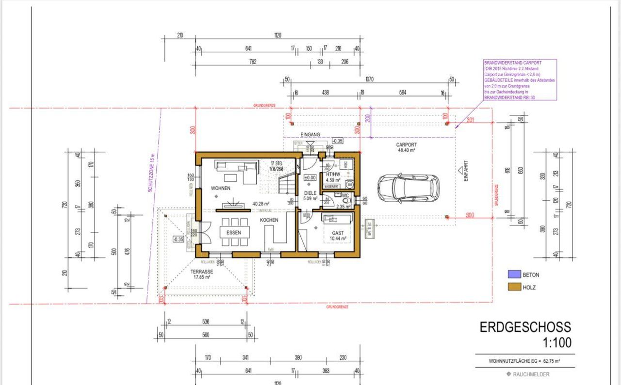
Zum Verkauf steht ein Einfamilienhaus mit Garten am Tor zu Enns. Das Haus wurde im Jahr 2019 errichtet und befindet sich in einem sehr guten Zustand. Die Grundstücksfläche beträgt 507 m², die Wohnfläche beträgt 120 m². Der moderne, offen gestaltete Grundriss im Erdgeschoss verbindet Wohn-, Koch- und Essbereich zu einem großzügigen zentralen Lebensraum. Das Badezimmer im 1. OG ist zeitgemäß ausgestattet und verfügt über eine Badewanne und Dusche. Ein zweites Badezimmer ist im Erdgeschoss vorhanden. Das Objekt ist ab sofort bezugsfertig. Eckdaten Objekttyp: Einfamilienhaus Baujahr: 2019 Wohnfläche: ca. 120 m² Zimmer: 6 (davon 3 Schlafzimmer, 1 Gästezimmer/Büro, Wohnzimmer, Küche-/Essen) Bäder:...
Zum Verkauf steht ein Einfamilienhaus mit Garten am Tor zu Enns.
Das Haus wurde im Jahr 2019 errichtet und befindet sich in einem sehr guten Zustand. Die Grundstücksfläche beträgt 507 m², die Wohnfläche beträgt 120 m².
Der moderne, offen gestaltete Grundriss im Erdgeschoss verbindet Wohn-, Koch- und Essbereich zu einem großzügigen zentralen Lebensraum.
Das Badezimmer im 1. OG ist zeitgemäß ausgestattet und verfügt über eine Badewanne und Dusche. Ein zweites Badezimmer ist im Erdgeschoss vorhanden.
Das Objekt ist ab sofort bezugsfertig.
Eckdaten
Objekttyp: Einfamilienhaus
Baujahr: 2019
Wohnfläche: ca. 120 m²
Zimmer: 6 (davon 3 Schlafzimmer, 1 Gästezimmer/Büro, Wohnzimmer, Küche-/Essen)
Bäder: 2
Garten: vorhanden
Zustand: sehr gut / bezugsfertig
Bezug: ab sofort möglich
Lagebeschreibung
Das Haus befindet sich in einem Wohngebiet nahe der Stadt Enns, in unmittelbarer Nähe zum Naherholungsgebiet entlang der Enns. Die Lage bietet sowohl naturnahe Erholung als auch sehr gute Verkehrsanbindung.
Die Autobahnauffahrt Enns Ost ist in etwa 2 Minuten erreichbar. Linz liegt etwa 25 Minuten entfernt. Auch die Städte Amstetten und Steyr sind jeweils in rund 25 Minuten staufrei erreichbar. Die Bushaltestelle Richtung Enns/Linz beziehungsweise Steyr befindet sich in unmittelbarer Nähe.
Dieses Haus eignet sich ideal für Familien, die ein leistbares Eigenheim in einem Siedlungsgebiet mit guter Verkehrsanbindung suchen und dieses ab sofort als dauerhaftes Zuhause nutzen möchten.
Zur Besichtigung des Hauses findet am Freitag, 23. Jänner 2026 in der Zeit von 14:30 bis 15:30 Uhr ein Open House Day statt.
Um Anmeldung wird ersucht.
Detaillierte Informationen erhalten Sie gerne auf Anfrage.
Um die rasche Übermittlung näherer Informationen und Unterlagen samt Adresse zu gewährleisten, übermitteln Sie uns bitte Ihre VOLLSTÄNDIGEN KONTAKTDATEN (Vor- und Nachname, aktuelle Wohnadresse, Telefonnummer und E-Mail-Adresse).
Wir freuen uns auf Ihre Kontaktaufnahme.
Das Haus wurde im Jahr 2019 errichtet und befindet sich in einem sehr guten Zustand. Die Grundstücksfläche beträgt 507 m², die Wohnfläche beträgt 120 m².
Der moderne, offen gestaltete Grundriss im Erdgeschoss verbindet Wohn-, Koch- und Essbereich zu einem großzügigen zentralen Lebensraum.
Das Badezimmer im 1. OG ist zeitgemäß ausgestattet und verfügt über eine Badewanne und Dusche. Ein zweites Badezimmer ist im Erdgeschoss vorhanden.
Das Objekt ist ab sofort bezugsfertig.
Eckdaten
Objekttyp: Einfamilienhaus
Baujahr: 2019
Wohnfläche: ca. 120 m²
Zimmer: 6 (davon 3 Schlafzimmer, 1 Gästezimmer/Büro, Wohnzimmer, Küche-/Essen)
Bäder: 2
Garten: vorhanden
Zustand: sehr gut / bezugsfertig
Bezug: ab sofort möglich
Lagebeschreibung
Das Haus befindet sich in einem Wohngebiet nahe der Stadt Enns, in unmittelbarer Nähe zum Naherholungsgebiet entlang der Enns. Die Lage bietet sowohl naturnahe Erholung als auch sehr gute Verkehrsanbindung.
Die Autobahnauffahrt Enns Ost ist in etwa 2 Minuten erreichbar. Linz liegt etwa 25 Minuten entfernt. Auch die Städte Amstetten und Steyr sind jeweils in rund 25 Minuten staufrei erreichbar. Die Bushaltestelle Richtung Enns/Linz beziehungsweise Steyr befindet sich in unmittelbarer Nähe.
Dieses Haus eignet sich ideal für Familien, die ein leistbares Eigenheim in einem Siedlungsgebiet mit guter Verkehrsanbindung suchen und dieses ab sofort als dauerhaftes Zuhause nutzen möchten.
Zur Besichtigung des Hauses findet am Freitag, 23. Jänner 2026 in der Zeit von 14:30 bis 15:30 Uhr ein Open House Day statt.
Um Anmeldung wird ersucht.
Detaillierte Informationen erhalten Sie gerne auf Anfrage.
Um die rasche Übermittlung näherer Informationen und Unterlagen samt Adresse zu gewährleisten, übermitteln Sie uns bitte Ihre VOLLSTÄNDIGEN KONTAKTDATEN (Vor- und Nachname, aktuelle Wohnadresse, Telefonnummer und E-Mail-Adresse).
Wir freuen uns auf Ihre Kontaktaufnahme.
| Angaben gemäß gesetzlichem Erfordernis: | |||
| Heizwärmebedarf: | 37.0 kWh/(m²a) | ||
| Faktor Gesamtenergieeffizienz: | 0.59 | ||
Objektdaten
Ausstattung
- Teilmöbliert
- Zentralheizung
- Erdwärme
- Teilmöbliert
- Zentralheizung mit Wärmepumpe
Zustand
- Zustand
- GEPFLEGT
- Baujahr
- 2019
Flächen
- Anzahl der Zimmer
- 6
- Anzahl der Badezimmer
- 2
- Anzahl der sep. WCs
- 2
- Stellplätze
- 3
- Wohnfläche
- 120m²
- Nutzfläche
- 126m²
- Grundstücksfläche
- 507m²
Kosten
- Kaufpreis
- € 390.000,00
- Nebenkosten
- € 120,00
- Betriebskosten Brutto
- € 120,00
- Heizkosten Brutto
- € 110,00
Verwaltung
- Verfügbar ab
- sofort
Häuser zum Kaufen im Umkreis von Enns
Häuser zum Kaufen im Umkreis von Enns
Häuser zum Kaufen in Österreich
Andere Besucher suchen nach...
- Grundstücke kaufen in 3400 Weidlingbach
- Wohnungen kaufen in 4663 Laakirchen
- Häuser in 7471 Rechnitz
- Wohnungen in 2410 Hainburg an der Donau
- Häuser kaufen in 2432 Schwadorf
- Wohnungen kaufen in 3002 Purkersdorf
- Häuser in 3150 Wilhelmsburg
- Wohnungen kaufen in 3470 Engelmannsbrunn
- Grundstücke kaufen im Bezirk Mattersburg
- Grundstücke kaufen im Bezirk Gmunden