Neu gebaute Doppelhaushälfte mit großem 3fachcarport in beliebter Siedlung NEUER PREIS
€ 465.000
€ 4.115 / m²
4470 Enns
-
2025
-
1.10. 25
Beschreibung
Das völlig neu gebaute Doppelhaus befindet sich in der schönen Hochradlfeldstrasse in einer beliebten Siedlung. Es wird schlüsselfertig inkl. aller Sanitärbereiche aber ohne Küche verkauft. Im Eingangbereich gibt es ein gemauertes hohes 3fachcarport und dahinter einen Abstellraum. im EG gibt es eine verbundenen Küchenwohnbereich mit 33 m2 und ein WC und ein Gästezimmer/Büro. mit ca. 8 m2 und einen Technikraum. im OG gibt es 2 Kinderzimmer mit 13 m2 und das Elternschlafzimmer plus Schrankraum und ein Badezimmer mit WC. Im ganzen Haus hochwertiges Parkett und Fussbodenheizung. Der Garten ist ca. 150 m2 groß´ Weitere Fotos auf Anfrage. Das Haus befindet...
Das völlig neu gebaute Doppelhaus befindet sich in der schönen Hochradlfeldstrasse in einer beliebten Siedlung. Es wird schlüsselfertig inkl. aller Sanitärbereiche aber ohne Küche verkauft.
Im Eingangbereich gibt es ein gemauertes hohes 3fachcarport und dahinter einen Abstellraum.
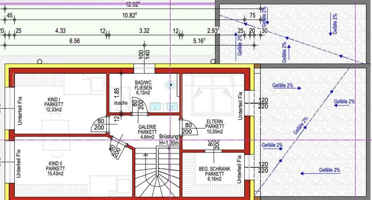
im EG gibt es eine verbundenen Küchenwohnbereich mit 33 m2 und ein WC und ein Gästezimmer/Büro. mit ca. 8 m2 und einen Technikraum.
im OG gibt es 2 Kinderzimmer mit 13 m2 und das Elternschlafzimmer plus Schrankraum und ein Badezimmer mit WC.
Im ganzen Haus hochwertiges Parkett und Fussbodenheizung. Der Garten ist ca. 150 m2 groß´
Weitere Fotos auf Anfrage.
Das Haus befindet sich in der Endphase der Fertigstellung und ist ab 1.10. 25 bezugsfertig
LEGEN SIE IHR ANGEBOT
Im Eingangbereich gibt es ein gemauertes hohes 3fachcarport und dahinter einen Abstellraum.
im EG gibt es eine verbundenen Küchenwohnbereich mit 33 m2 und ein WC und ein Gästezimmer/Büro. mit ca. 8 m2 und einen Technikraum.
im OG gibt es 2 Kinderzimmer mit 13 m2 und das Elternschlafzimmer plus Schrankraum und ein Badezimmer mit WC.
Im ganzen Haus hochwertiges Parkett und Fussbodenheizung. Der Garten ist ca. 150 m2 groß´
Weitere Fotos auf Anfrage.
Das Haus befindet sich in der Endphase der Fertigstellung und ist ab 1.10. 25 bezugsfertig
LEGEN SIE IHR ANGEBOT
Objektdaten
Ausstattung
- Nicht unterkellert
- Zentralheizung
- Erdwärme
- Zentralheizung mit Wärmepumpe
Zustand
- Zustand
- GEPFLEGT
- Baujahr
- 2025
Flächen
- Anzahl der Zimmer
- 5
- Anzahl der Badezimmer
- 1
- Anzahl der sep. WCs
- 2
- Anzahl der Terrassen
- 1
- Stellplätze
- 3
- Wohnfläche
- 107m²
- Nutzfläche
- 113m²
- Grundstücksfläche
- 289m²
- Terrassenfläche
- 1m²
Kosten
- Kaufpreis
- € 465.000,00
Verwaltung
- Verfügbar ab
- 1.10. 25
Häuser zum Kaufen im Umkreis von Enns
Häuser zum Kaufen im Umkreis von Enns
Häuser zum Kaufen in Österreich
Andere Besucher suchen nach...
- Grundstücke kaufen in 3400 Weidlingbach
- Wohnungen kaufen in 4663 Laakirchen
- Häuser in 7471 Rechnitz
- Wohnungen in 2410 Hainburg an der Donau
- Häuser kaufen in 2432 Schwadorf
- Wohnungen kaufen in 3002 Purkersdorf
- Häuser in 3150 Wilhelmsburg
- Wohnungen kaufen in 3470 Engelmannsbrunn
- Grundstücke kaufen im Bezirk Mattersburg
- Grundstücke kaufen im Bezirk Gmunden