BAUBEGINN BEREITS ERFOLGT !!! Exklusive Erstbezug-Garten-Wohnung in Linz mit Haus-Charakter, Wambachsiedlung - mit Garten zum Wohlfühlen!
-
Erstbezug
-
2025
-
30.06.2026
Beschreibung
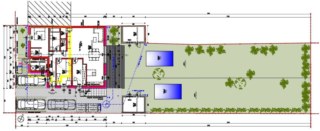
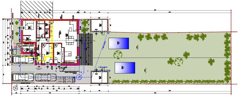
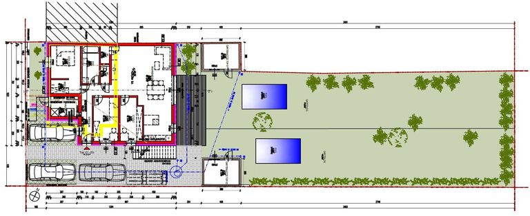
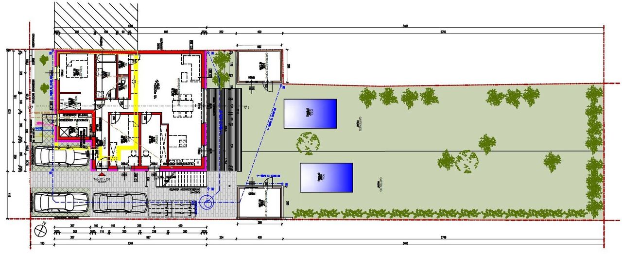
Gartenwohnung mit Hauscharakter – Küffelstraße 26, 4030 Linz
Zwischen Stadt und Natur entsteht in der Küffelstraße 26 ein Zuhause, das Leichtigkeit und Geborgenheit vereint. Eine Gartenwohnung mit über 96 m², die mehr ist als Wohnraum – ein Rückzugsort mit Hauscharakter.
Lage mit Balance Grün, ruhig, verbunden: Die Küffelstraße steht für Wohnen in bester Lage. Straßenbahn und Bus sind nur wenige Schritte entfernt, ebenso Einkaufsmöglichkeiten, Bäckerei, Apotheke, Ärzte, Kindergarten und Schule. Alles, was das tägliche Leben braucht – und zugleich die Ruhe eines gewachsenen Wohnviertels.
Architektur mit Atmosphäre Große Fensterflächen öffnen die Räume ins Freie, lassen Licht und Natur herein. Der...
Gartenwohnung mit Hauscharakter – Küffelstraße 26, 4030 Linz
Zwischen Stadt und Natur entsteht in der Küffelstraße 26 ein Zuhause, das Leichtigkeit und Geborgenheit vereint. Eine Gartenwohnung mit über 96 m², die mehr ist als Wohnraum – ein Rückzugsort mit Hauscharakter.
Lage mit Balance
Grün, ruhig, verbunden: Die Küffelstraße steht für Wohnen in bester Lage. Straßenbahn und Bus sind nur wenige Schritte entfernt, ebenso Einkaufsmöglichkeiten, Bäckerei, Apotheke, Ärzte, Kindergarten und Schule. Alles, was das tägliche Leben braucht – und zugleich die Ruhe eines gewachsenen Wohnviertels.
Architektur mit Atmosphäre
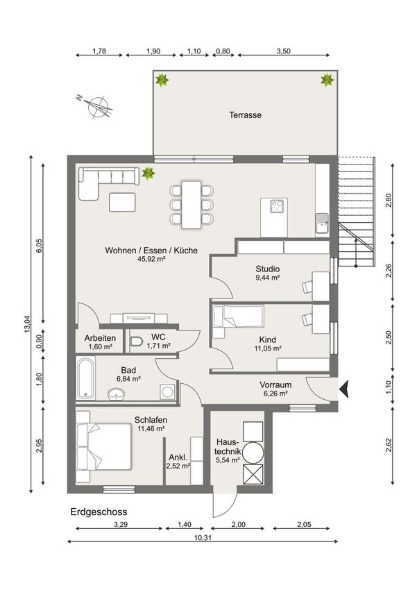
Große Fensterflächen öffnen die Räume ins Freie, lassen Licht und Natur herein. Der Wohn- und Essbereich verbindet sich fließend mit Garten und Terrasse – hier beginnt der Tag mit Kaffee im Grünen und klingt aus mit Freunden am Grill oder einem Sprung in den optionalen Pool.
Das Schlafzimmer mit Ankleide und Bad en suite bietet private Rückzugsqualität, zwei weitere Zimmer schaffen Raum für Kinder, Gäste oder Homeoffice. Jeder Bereich ist klar strukturiert und dennoch flexibel nutzbar.
Highlights
96,5 m² Wohnfläche
Garten, Terrasse & Gartenhütte
Optionaler Pool (12 m²)
Parkplatz inklusive
Fertigstellung Frühjahr 2026 (Baubeginn erfolgt)
Ein Ort, der Ruhe schenkt.
Eine Architektur, die Leichtigkeit vermittelt.
Ein Zuhause, das bleibt.
Im Preis ab 450.000,-- ist eine Gartenfläche von ca. 70m² mit Terrasse und Gartenhaus bereits inklusive. Eine größere Gartenfläche ist derzeit mit Aufpreis noch möglich bis ca. 250 m².
Noch nichts gefunden? Wir informieren Sie über geeignete Immobilienangebote noch vor allen anderen.
Legen Sie jetzt Ihren individuellen Suchagenten unter folgendem Link an. Wir schicken Ihnen passende Immobilien exklusiv vorab zu.
Suchagent anlegen - https://immobilien-atelier76.service.immo/registrieren/de
Der Vermittler ist als Doppelmakler tätig.
Infrastruktur / Entfernungen
Gesundheit
Arzt <600m
Apotheke <625m
Krankenhaus <5.000m
Klinik <3.475m
Kinder & Schulen
Kindergarten <425m
Schule <525m
Universität <5.500m
Höhere Schule <7.425m
Nahversorgung
Supermarkt <475m
Bäckerei <625m
Einkaufszentrum <3.425m
Sonstige
Bank <575m
Geldautomat <1.675m
Post <1.900m
Polizei <2.000m
Verkehr
Bus <75m
Straßenbahn <225m
Bahnhof <2.075m
Autobahnanschluss <2.100m
Flughafen <6.450m
Angaben Entfernung Luftlinie / Quelle: OpenStreetMap
Objektdaten
Ausstattung
- WG geeignet
- Räume veränderbar
- Gartennutzung
- Rollstuhlgerecht
- Kabel/SAT-TV
- Barrierefrei
- Seniorengerecht
- Bad mit Badewanne
- Offene Küche
- Fliesenboden
- Parkettboden
- Zentralheizung
- Befeuerung mit Gas
- Ausrichtung Balkon/Terrasse - Südwest
- Satteldach
- Massiv Bauweise
- Schlüsselfertig mit Bodenplatte
Dokumente / Links
Zustand
- Zustand
- ERSTBEZUG
- Baujahr
- 2025
- Alter
- NEUBAU
- HWB
- 45 kWh/m² pro Jahr
- Klasse HWB
- B
- fGEE
- 0.9
- Klasse fGEE
- B
Flächen
- Anzahl der Zimmer
- 4
- Anzahl der Badezimmer
- 1
- Anzahl der sep. WCs
- 1
- Anzahl der Terrassen
- 1
- Stellplätze
- 1
- Wohnfläche
- 97m²
- Gesamtfläche
- 97m²
- Grundstücksfläche
- 636m²
- Gartenfläche
- 70m²
- Terrassenfläche
- 1m²
Kosten
- Kaufpreis Brutto
- € 450.000,00
Verwaltung
- Verfügbar ab
- 30.06.2026
Häuser zum Kaufen in Österreich
Häuser zum Kaufen in Österreich
Häuser zum Kaufen in Österreich
Andere Besucher suchen nach...
- Grundstücke kaufen in 3400 Weidlingbach
- Wohnungen kaufen in 4663 Laakirchen
- Häuser in 7471 Rechnitz
- Wohnungen in 2410 Hainburg an der Donau
- Häuser kaufen in 2432 Schwadorf
- Wohnungen kaufen in 3002 Purkersdorf
- Häuser in 3150 Wilhelmsburg
- Wohnungen kaufen in 3470 Engelmannsbrunn
- Grundstücke kaufen im Bezirk Mattersburg
- Grundstücke kaufen im Bezirk Gmunden