Private Seevilla mit Tennis & Wellness auf 6,2ha – Refugium bei Ybbs an der Donau
Beschreibung
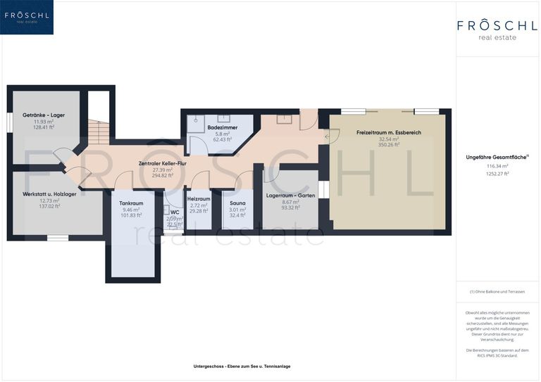
Das Refugium am See – Wohnen, Erholen, Repräsentieren. Die Seevilla verbindet Privatheit und Erlebnisqualität auf rund 6,22 ha Grund. Das Wohnensemble (Nutzfläche ca. 259 m², zzgl. ca. 77 m² Lager) öffnet sich nach Süden zu Terrassen, Loggia und Wasser – mit weitem Seeblick als alltäglichem Panorama. Zwei Garagen und zusätzliche Stellplätze ergänzen das Angebot. In massiver Bauweise (BJ 1998) errichtet, präsentiert sich das Haus gepflegt und hochwertig: Parkett, Stein & ausgewählte Beläge schaffen Ruhe und Wärme; dreifach verglaste Internorm‑Fenster sichern Schalldämmung und Effizienz. Die offene Wohnküche führt fließend zu Ess‑ und Wohnbereichen sowie auf die Sonnenterrasse. Sauna & Wellnessbereich im...
Das Refugium am See – Wohnen, Erholen, Repräsentieren.
Die Seevilla verbindet Privatheit und Erlebnisqualität auf rund 6,22 ha Grund. Das Wohnensemble (Nutzfläche ca. 259 m², zzgl. ca. 77 m² Lager) öffnet sich nach Süden zu Terrassen, Loggia und Wasser – mit weitem Seeblick als alltäglichem Panorama. Zwei Garagen und zusätzliche Stellplätze ergänzen das Angebot.
In massiver Bauweise (BJ 1998) errichtet, präsentiert sich das Haus gepflegt und hochwertig: Parkett, Stein & ausgewählte Beläge schaffen Ruhe und Wärme; dreifach verglaste Internorm‑Fenster sichern Schalldämmung und Effizienz. Die offene Wohnküche führt fließend zu Ess‑ und Wohnbereichen sowie auf die Sonnenterrasse. Sauna & Wellnessbereich im Gartengeschoss bringen Spa‑Gefühl ins Private; auf Gartenebene lädt der Entertainment‑/Dining‑Bereich zum großzügigen Gastgeber‑Sein.
Der eigene See mit Steg und Uferbereichen sowie die Tennisanlage mit Flutlicht bieten Sport und Erholung in Gehsekunden. Die Option einer (teil‑)kommerziellen Verwertung der Fischerei eröffnet – je nach Konzept und Genehmigungen – zusätzliche Perspektiven.
Technik & Energie: Öl‑Zentralheizung, Holz und Photovoltaik sichern flexible Betriebsweisen; Ausrichtung Süd. Energiekennzahlen: HWB C 73,8 kWh/m²a, fGEE B 0,9.
Ergreifen Sie die Gelegenheit und werden Sie Eigentümer dieser einzigartigen Liegenschaft mit Ihrem eigenen See
Vereinbaren Sie noch heute einen Besichtigungstermin und lassen Sie sich von dieser beeindruckenden Immobilie überzeugen! Wir freuen uns darauf, Sie persönlich zu begrüßen. Bei weiteren Fragen stehen wir Ihnen jederzeit unter: +43 664 1838 268 zur Verfügung, oder senden Sie uns eine E-Mail: christian@froeschl.estate
Besuchen Sie www.froeschl.estate und finden Sie weitere 360º virtuelle Rundgänge und die neuesten Objekte! Gerne unternehmen wir auch gemeinsam mit Ihnen geführte virtuelle Besichtigungen!
Unsere Angaben beziehen sich auf die Auskünfte des Eigentümers, daher sind Änderungen und Irrtümer vorbehalten.
Sie möchten den Wert einer Immobilie wissen? Bewertungen professionell und präzise.
FRÖSCHL real estate ermittelt den Verkehrswert Ihrer Liegenschaft. Das schriftliche Bewertungsgutachten ist ein umfangreiches Dokument aus dem dieser hervorgeht. Wir ermitteln abhängig von Ihrem Objekt über den Vergleichswert, den Sachwert oder den Ertragswert, unter Beachtung aller relevanten Unterlagen, den aktuellen Marktwert ihrer Immobilie. Gerne übernehmen wir Bewertungen auch aus anderen Anlässen wie innerfamiliären Angelegenheiten, Erbschaften oder steuerlichen Anforderungen und dergleichen.
Wir weisen darauf hin, dass zwischen dem Vermittler und dem zu vermittelnden Dritten ein familiäres oder wirtschaftliches Naheverhältnis besteht.
Der Vermittler ist als Doppelmakler tätig.
Infrastruktur / Entfernungen
Gesundheit
Arzt <1.000m
Apotheke <5.000m
Krankenhaus <5.500m
Kinder & Schulen
Schule <3.500m
Kindergarten <1.000m
Universität <7.500m
Nahversorgung
Supermarkt <1.000m
Bäckerei <1.500m
Einkaufszentrum <4.500m
Sonstige
Bank <1.500m
Geldautomat <3.500m
Post <1.500m
Polizei <1.000m
Verkehr
Bus <1.500m
Autobahnanschluss <2.500m
Bahnhof <500m
Flughafen <8.500m
Angaben Entfernung Luftlinie / Quelle: OpenStreetMap
Objektdaten
Ausstattung
- Kamin
- Gartennutzung
- Vollmöbliert
- Kabel/SAT-TV
- Sauna
- Wasch-/Trockenraum
- Sporteinrichtungen
- Wellnessbereich
- Fahrradraum
- Gäste-WC
- Bad mit Dusche
- Bad mit Badewanne
- Bad mit Fenster
- Bad mit Bidet
- Einbauküche
- Offene Küche
- Fliesenboden
- Teppichboden
- Parkettboden
- Laminatboden
- Zentralheizung
- Befeuerung mit Öl
- Solar
- Befeuerung mit Holz
- Ausrichtung Balkon/Terrasse - Südwest
- Walmdach
- Massiv Bauweise
Dokumente / Links
Zustand
- Zustand
- GEPFLEGT
- Baujahr
- 1998
- Alter
- NEUBAU
- HWB
- 73.8 kWh/m² pro Jahr
- Klasse HWB
- C
- fGEE
- 0.9
- Klasse fGEE
- B
Flächen
- Anzahl der Zimmer
- 6
- Anzahl der Badezimmer
- 2
- Anzahl der sep. WCs
- 3
- Anzahl der Terrassen
- 1
- Anzahl der Logia
- 1
- Stellplätze
- 2
- Nutzfläche
- 259m²
- Lagerfläche
- 77m²
- Grundstücksfläche
- 62.209m²
- Terrassenfläche
- 1m²
Kosten
- Kaufpreis Brutto
- € 1.599.000,00
Verwaltung
- Ferienimmobilie
- Ja
Häuser zum Kaufen in Österreich
Häuser zum Kaufen in Österreich
Häuser zum Kaufen in Österreich
Andere Besucher suchen nach...
- Grundstücke kaufen in 3400 Weidlingbach
- Wohnungen kaufen in 4663 Laakirchen
- Häuser in 7471 Rechnitz
- Wohnungen in 2410 Hainburg an der Donau
- Häuser kaufen in 2432 Schwadorf
- Wohnungen kaufen in 3002 Purkersdorf
- Häuser in 3150 Wilhelmsburg
- Wohnungen kaufen in 3470 Engelmannsbrunn
- Grundstücke kaufen im Bezirk Mattersburg
- Grundstücke kaufen im Bezirk Gmunden