Die Glasermühle - Einzigartiges Juwel im nördlichen Weinviertel
Beschreibung
Einzigartiges Juwel im nördlichen Weinviertel - Wohnen in einer ehemaligen Mühle - historischer Charme trifft auf moderne Technik, exklusives Wohnen in einem historischen Anwesen in absoluter Ruhelage, liebevoll und aufwendig komplett saniert & sofort bezugsfertig
Einmalige Gelegenheit für Visionäre, Naturliebhaber und Selbstversorger!
Umgeben von sanften Wiesen, Feldern und dem beruhigenden Plätschern eines kleinen Baches liegt dieses außergewöhnliche Anwesen – die liebevoll und hochwertig kernsanierte Glasermühle. Hier vereinen sich Geschichte, Natur und Lebensqualität zu einem Ort voller Kraft, Ruhe und Möglichkeiten.
Das ca. 7,2 Hektar große Grundstück bietet neben einer idyllischen Lage auch eine beeindruckende Substanz: Obstbäume säumen das Gelände,...
Einzigartiges Juwel im nördlichen Weinviertel - Wohnen in einer ehemaligen Mühle - historischer Charme trifft auf moderne Technik, exklusives Wohnen in einem historischen Anwesen in absoluter Ruhelage, liebevoll und aufwendig komplett saniert & sofort bezugsfertig
Einmalige Gelegenheit für Visionäre, Naturliebhaber und Selbstversorger!
Umgeben von sanften Wiesen, Feldern und dem beruhigenden Plätschern eines kleinen Baches liegt dieses außergewöhnliche Anwesen – die liebevoll und hochwertig kernsanierte Glasermühle. Hier vereinen sich Geschichte, Natur und Lebensqualität zu einem Ort voller Kraft, Ruhe und Möglichkeiten.
Das ca. 7,2 Hektar große Grundstück bietet neben einer idyllischen Lage auch eine beeindruckende Substanz: Obstbäume säumen das Gelände, ein Bach durchquert die Wiese, ein gepflegter Kräutergarten und großzügige Grünflächen laden zum Genießen, Arbeiten und Entspannen ein.
Zusätzlich stehen rund 4 Hektar Ackerfläche zur Verfügung, ideal für landwirtschaftliche Nutzung, Selbstversorgung oder Projekte mit Tieren und Pflanzen.
Highlights im Überblick:
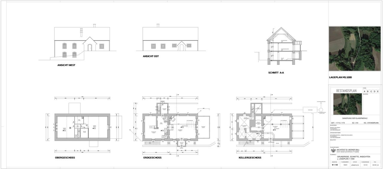
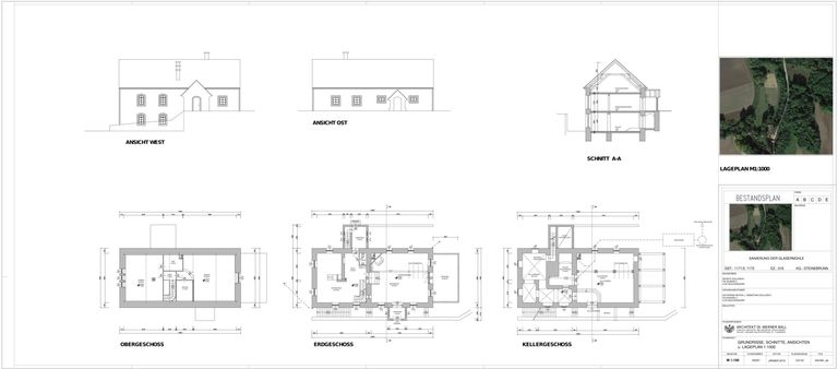
Geschichte: Errichtet 1751 als Mühle (Glasermühle), in den letzten Jahren aufwendig kernsaniert
Grundstücksfläche: ca. 7,2 Hektar + ca. 4 Hektar Ackerfläche
Wohnfläche: ca. 405 m² (Haupthaus: 269 m², Nebengebäude: 136 m²)
Weitere Gebäude:
Bezugsfähige, ehemalige Stallungen und Heuboden (ca. 135 m²)
Zwei Weinkeller (je ca. 60 m²)
Stadl (ca. 200 m²)
Freizeitturm (ca. 10 m hoch)
Grünflächen:
Obstgarten mit alten Obstbäumen (ca. 20 Stück)
Eingezäunter Kräutergarten
Eingezäunter Bereich mit Hühnerstall und Teich
Große Wiesen- und Naturflächen
Lage:
Nur 4 km von der Autobahnabfahrt A5 "Drasenhofen"
Je ca. 1 Stunde nach Wien und Brünn
Ob Rückzugsort, kreativer Raum, landwirtschaftliches Projekt oder einfach ein Zuhause mit Seele – die Glasermühle bietet Raum für Ihre Ideen und Visionen.
Infrastruktur / Entfernungen
Gesundheit
Apotheke <7.500m
Arzt <8.000m
Krankenhaus <7.500m
Kinder & Schulen
Schule <2.000m
Kindergarten <8.000m
Nahversorgung
Supermarkt <3.500m
Sonstige
Geldautomat <2.000m
Bank <2.000m
Post <2.500m
Polizei <7.500m
Verkehr
Bus <2.000m
Autobahnanschluss <3.500m
Bahnhof <5.500m
Angaben Entfernung Luftlinie / Quelle: OpenStreetMap
Objektdaten
Zustand
- Baujahr
- 1751
- Alter
- ALTBAU
Flächen
- Anzahl der Terrassen
- 1
- Wohnfläche
- 405m²
- Grundstücksfläche
- 72.000m²
- Kellerfläche
- 120m²
- Terrassenfläche
- 1m²
Kosten
- Kaufpreis Brutto
- € 2.650.000,00
Häuser zum Kaufen im Umkreis von Drasenhofen
Häuser zum Kaufen im Umkreis von Drasenhofen
Häuser zum Kaufen in Österreich
Andere Besucher suchen nach...
- Grundstücke kaufen in 3400 Weidlingbach
- Wohnungen kaufen in 4663 Laakirchen
- Häuser in 7471 Rechnitz
- Wohnungen in 2410 Hainburg an der Donau
- Häuser kaufen in 2432 Schwadorf
- Wohnungen kaufen in 3002 Purkersdorf
- Häuser in 3150 Wilhelmsburg
- Wohnungen kaufen in 3470 Engelmannsbrunn
- Grundstücke kaufen im Bezirk Mattersburg
- Grundstücke kaufen im Bezirk Gmunden