Historisches Haus in Gumpoldskirchen – sanierungsbedürftig, mit viel Potenzial
Beschreibung
Zum Verkauf gelangt dieses charmante, sanierungsbedürftige Haus im wunderschönen Weinort Gumpoldskirchen. Das Objekt bietet viel Potenzial, um sich seinen gemütlichen Wohntraum zu gestalten.
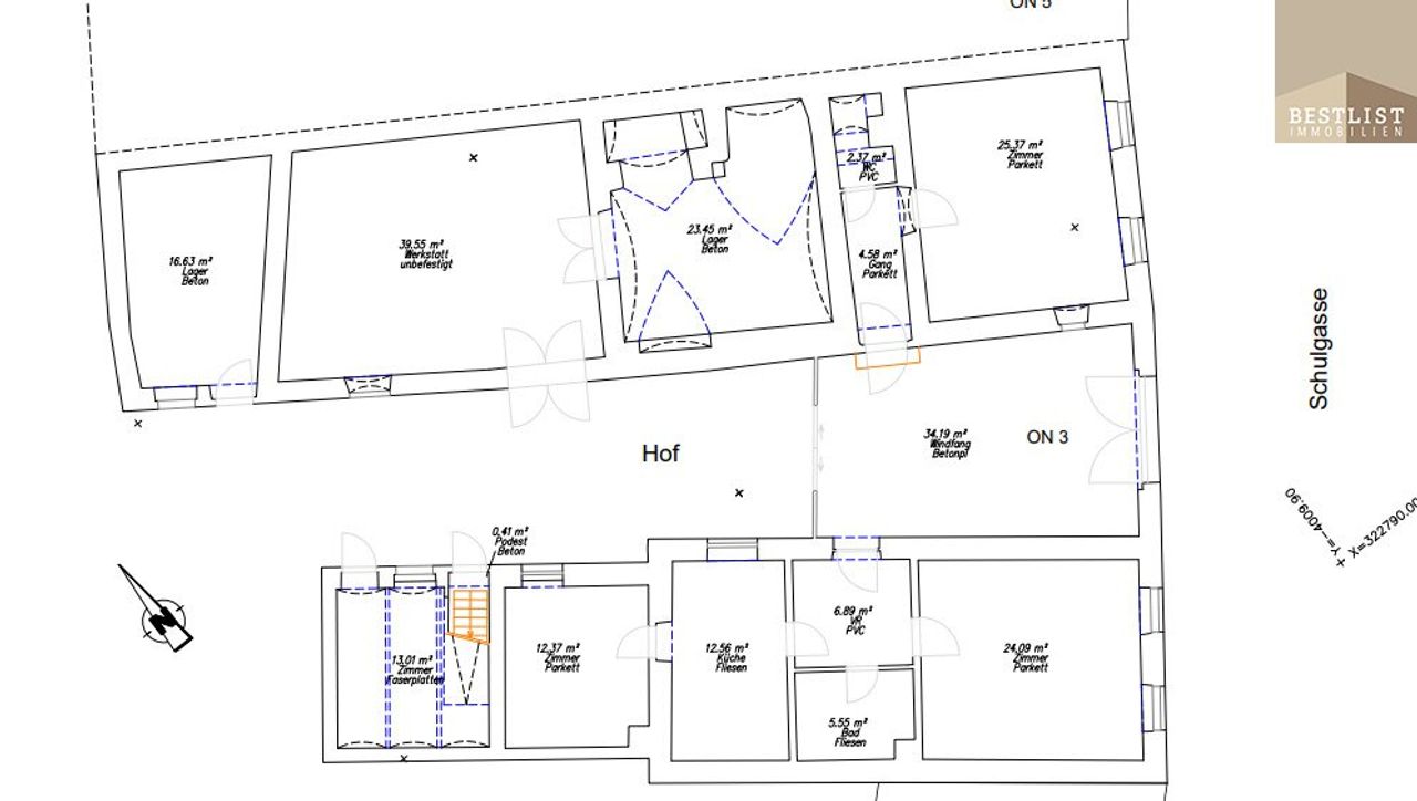
Über den überdachten Einfahrtsbereich gelangt man in den großzügigen Hof. Der linke Flügel beherbergt eine Wohnhälfte mit mehreren Zimmern und einem Badezimmer, der rechte Flügel bietet zusätzlichen Wohnraum. Weiter im Hofbereich befindet sich ein sonniges, kleines grünes Plätzchen – ideal für entspannte Nachmittage.
Im hinteren Teil des Hauses finden sich historische Lagerräume, die bei Bedarf ausgebaut werden könnten. Auch der Dachboden bietet praktischen Stauraum.
Das Haus befindet sich in einem sanierungsbedürftigen Zustand, sodass Ihnen die Möglichkeit offensteht,...
Zum Verkauf gelangt dieses charmante, sanierungsbedürftige Haus im wunderschönen Weinort Gumpoldskirchen. Das Objekt bietet viel Potenzial, um sich seinen gemütlichen Wohntraum zu gestalten.
Über den überdachten Einfahrtsbereich gelangt man in den großzügigen Hof. Der linke Flügel beherbergt eine Wohnhälfte mit mehreren Zimmern und einem Badezimmer, der rechte Flügel bietet zusätzlichen Wohnraum. Weiter im Hofbereich befindet sich ein sonniges, kleines grünes Plätzchen – ideal für entspannte Nachmittage.
Im hinteren Teil des Hauses finden sich historische Lagerräume, die bei Bedarf ausgebaut werden könnten. Auch der Dachboden bietet praktischen Stauraum.
Das Haus befindet sich in einem sanierungsbedürftigen Zustand, sodass Ihnen die Möglichkeit offensteht, das Objekt nach Ihren Vorstellungen zu gestalten.
Es bestehen bereits konkrete Planungen zur möglichen Projektierung des Hauses.
Lage und Infrastruktur:
Gumpoldskirchen überzeugt durch eine perfekte Kombination aus Natur, Weinbaukultur und hoher Wohnqualität. Vielfältige Freizeitmöglichkeiten, Restaurants, Weingüter sowie die gute Anbindung an Wien machen den Standort besonders attraktiv. Hier verbinden sich ruhiges Wohnen, kulturelle Angebote und Wohnkomfort auf ideale Weise.
Ich freue mich auf Ihre Anfrage und stehe Ihnen jederzeit zur Verfügung!
Unser nachhaltiger Denkansatz sieht auch die Vermeidung unnötiger Ausdrucke in Papierform vor. Daher geben Sie uns bitte Bescheid, ob Sie die Unterlagen in gedruckter Form ausgehändigt haben möchten oder ob wir sie Ihnen einfach per E-Mail zusenden sollen. Wir richten uns gerne nach Ihren Wünschen!
Wir weisen darauf hin, dass zwischen dem Vermittler und dem zu vermittelnden Dritten ein familiäres oder wirtschaftliches Naheverhältnis besteht.
Der Vermittler ist als Doppelmakler tätig.
Infrastruktur / Entfernungen
Gesundheit
Arzt <1.250m
Apotheke <2.500m
Klinik <2.750m
Krankenhaus <5.250m
Kinder & Schulen
Schule <500m
Kindergarten <750m
Höhere Schule <3.250m
Nahversorgung
Supermarkt <750m
Bäckerei <250m
Einkaufszentrum <3.000m
Sonstige
Bank <500m
Geldautomat <500m
Polizei <1.250m
Post <250m
Verkehr
Bus <250m
Autobahnanschluss <4.750m
Bahnhof <750m
Straßenbahn <2.500m
U-Bahn <10.000m
Flughafen <9.000m
Angaben Entfernung Luftlinie / Quelle: OpenStreetMap
Objektdaten
Ausstattung
- Befeuerung mit Gas
Zustand
- Zustand
- SANIERUNGSBEDUERFTIG
- Baujahr
- 1909
- HWB
- 380.3 kWh/m² pro Jahr
- Klasse HWB
- G
- fGEE
- 4.8
- Klasse fGEE
- G
Flächen
- Nutzfläche
- 221m²
- Grundstücksfläche
- 379m²
Kosten
- Kaufpreis Brutto
- € 499.000,00
Häuser zum Kaufen im Umkreis von Gumpoldskirchen
Häuser zum Kaufen im Umkreis von Gumpoldskirchen
Häuser zum Kaufen in Österreich
Andere Besucher suchen nach...
- Grundstücke kaufen in 3400 Weidlingbach
- Wohnungen kaufen in 4663 Laakirchen
- Häuser in 7471 Rechnitz
- Wohnungen in 2410 Hainburg an der Donau
- Häuser kaufen in 2432 Schwadorf
- Wohnungen kaufen in 3002 Purkersdorf
- Häuser in 3150 Wilhelmsburg
- Wohnungen kaufen in 3470 Engelmannsbrunn
- Grundstücke kaufen im Bezirk Mattersburg
- Grundstücke kaufen im Bezirk Gmunden