ERSTBEZUG - Luxuriöse Villa mit Sauna und Indoor-Pool!
-
Erstbezug
-
sofort
Beschreibung
Bei diesem einmaligen Objekt handelt es sich um eine äußerst großzügig angelegte zweigeschoßige Villa, die als besonderes Highlight mit einem fast 100m² großen Wellnessbereich mit Schwimmbad und Sauna aufwartet.
Die 475,5m² Nutzfläche gliedern sich wie folgt:
- Wohnfläche 325,45m²
- Wellness 95,54m²
- Technikraum 17,68m²
- Garage 36,83m²
Dazu kommen über 100m² Balkon und Terrassenflächen.
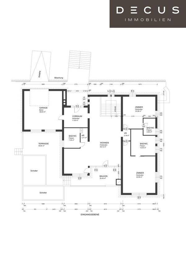
Das obere Eingangsgeschoß besteht aus:
- der Garage
- dem Vorraum
- dem großzügigen Eingangs/Wohnbereich mit Ausgang auf Balkon/Terrasse (hier lassen sich bei Bedarf unkompliziert noch 1-2 weitere Schlafzimmer schaffen)
- zwei Schlafzimmern
- drei Badezimmern mit Toiletten
Über eine Stiege gelangt man in das untere Wohngeschoß. Hier befinden sich:
...Bei diesem einmaligen Objekt handelt es sich um eine äußerst großzügig angelegte zweigeschoßige Villa, die als besonderes Highlight mit einem fast 100m² großen Wellnessbereich mit Schwimmbad und Sauna aufwartet.
Die 475,5m² Nutzfläche gliedern sich wie folgt:
- Wohnfläche 325,45m²
- Wellness 95,54m²
- Technikraum 17,68m²
- Garage 36,83m²
Dazu kommen über 100m² Balkon und Terrassenflächen.
Das obere Eingangsgeschoß besteht aus:
- der Garage
- dem Vorraum
- dem großzügigen Eingangs/Wohnbereich mit Ausgang auf Balkon/Terrasse (hier lassen sich bei Bedarf unkompliziert noch 1-2 weitere Schlafzimmer schaffen)
- zwei Schlafzimmern
- drei Badezimmern mit Toiletten
Über eine Stiege gelangt man in das untere Wohngeschoß. Hier befinden sich:
- der enorme Wohnbereich, von dem man auf die große Terrasse gelangt
- an diesen schließt der Wellnessbereich mit Schwimmbad, Sauna, Kaltwasserbecken, Umkleide, Dusche und Toilette an
- der Technikraum
- der Essbereich mit Küche und Abstellraum
- ein weiteres Schlafzimmer
- ein Badezimmer
- eine Toilette
- ein Lager
- ein Wirtschaftsraum
Es handelt sich um einen Erstbezug nach einer Komplettsanierung des ursprünglich 1980 errichteten Gebäudes.
Wir weisen darauf hin, dass zwischen dem Vermittler und dem zu vermittelnden Dritten ein familiäres oder wirtschaftliches Naheverhältnis besteht.
Der Vermittler ist als Doppelmakler tätig.
DECUS Immobilien GmbH – Wir beleben Räume
Für weitere Informationen und Besichtigungen steht Ihnen gerne Herr Michael Haas unter der Mobilnummer +43 660 713 64 14 und per E-Mail unter haas@decus.at persönlich zur Verfügung.
www.decus.at | office@decus.at
Wichtige Informationen
Bitte beachten Sie, dass per 13.06.2014 eine neue Richtlinie für Fernabsatz- und Auswärtsgeschäfte in Kraft getreten ist.
Ab 1.4.2024 entfallen die Grundbuchs- und Pfandrechtseintragungsgebühren vorübergehend für Eigenheime bis zu einer Bemessungsgrundlage von EUR 500.000,-. Voraussetzung ist das dringende Wohnbedürfnis, ausgenommen davon sind vererbte oder geschenkte Immobilien. Die Befreiung ist jedoch für den Einzelfall zu prüfen, DECUS Immobilien übernimmt hierzu keine Haftung.
Ab 01.07.2023 gilt das Erstauftraggeber-Prinzip bei Wohnungsmietverträgen, ausgenommen davon sind Dienst-/Natural-/Werkswohnungen. Wir dürfen gem. § 17 Maklergesetz darauf hinweisen, dass wir auf die Doppelmaklertätigkeit gem. § 5 Maklergesetz bei Wohnungsmietverträgen verzichten und nur noch einseitig tätig sind (bei den restlichen Vermittlungsarten nicht) und ein wirtschaftliches Naheverhältnis zu unseren Auftraggebern besteht.
Im Falle eines Abschlusses mit Ihnen oder einem von Ihnen namhaft gemachten Dritten bzw. bei beidseitiger Willensübereinstimmung beträgt unser Honorar (lt. Honorarverordnung für Immobilienmakler) 2 Bruttomonatsmieten (BMM) bei Dienst-/Natural-/Werkwohnungen sowie Suchaufträgen, 3 BMM bei Gewerbe-, PKW-, Keller- und Lagermietverträgen sowie bei Kaufobjekten 3 % des Kaufpreises, zuzüglich der gesetzlichen Umsatzsteuer.
Dieses Objekt wird Ihnen unverbindlich und freibleibend angeboten. Oben angeführte Angaben basieren auf Informationen und Unterlagen des Eigentümers und sind unsererseits ohne Gewähr.
Nähere Informationen sowie unsere AGBs und die Nebenkostenübersichtsblatt finden Sie auf unserer Homepage www.decus.at unter "Service" - "Rechtliches zum FAGG" sowie im Anhang der zugesendeten Objekt-Exposés!
Infrastruktur / Entfernungen
Gesundheit
Arzt <2.500m
Apotheke <3.000m
Klinik <3.500m
Krankenhaus <6.750m
Kinder & Schulen
Schule <2.750m
Kindergarten <2.750m
Höhere Schule <7.000m
Universität <7.000m
Nahversorgung
Supermarkt <2.500m
Bäckerei <3.500m
Einkaufszentrum <9.000m
Sonstige
Bank <2.500m
Geldautomat <2.500m
Post <3.250m
Polizei <3.500m
Verkehr
Bus <250m
Straßenbahn <7.750m
Autobahnanschluss <4.500m
Bahnhof <9.250m
Angaben Entfernung Luftlinie / Quelle: OpenStreetMap
Objektdaten
Ausstattung
- Räume veränderbar
- Sauna
- Swimmingpool
- Wellnessbereich
- Fliesenboden
- Parkettboden
- Befeuerung mit Gas
- Flachdach
Dokumente / Links
Zustand
- Zustand
- ERSTBEZUG
- HWB
- 96 kWh/m² pro Jahr
- Klasse HWB
- C
- fGEE
- 0.94
- Klasse fGEE
- B
Flächen
- Anzahl der Zimmer
- 6
- Anzahl der Badezimmer
- 5
- Anzahl der sep. WCs
- 5
- Anzahl der Balkone
- 1
- Anzahl der Terrassen
- 2
- Wohnfläche
- 325m²
- Nutzfläche
- 476m²
- Grundstücksfläche
- 1.403m²
- Terrassenfläche
- 2m²
Kosten
- Kaufpreis Brutto
- € 1.490.000,00
Verwaltung
- Verfügbar ab
- sofort
Häuser zum Kaufen im Umkreis von Kaltenleutgeben
Häuser zum Kaufen im Umkreis von Kaltenleutgeben
Häuser zum Kaufen in Österreich
Andere Besucher suchen nach...
- Grundstücke kaufen in 3400 Weidlingbach
- Wohnungen kaufen in 4663 Laakirchen
- Häuser in 7471 Rechnitz
- Wohnungen in 2410 Hainburg an der Donau
- Häuser kaufen in 2432 Schwadorf
- Wohnungen kaufen in 3002 Purkersdorf
- Häuser in 3150 Wilhelmsburg
- Wohnungen kaufen in 3470 Engelmannsbrunn
- Grundstücke kaufen im Bezirk Mattersburg
- Grundstücke kaufen im Bezirk Gmunden