Ihr Rückzugsort im Speckgürtel von Wien I saniertes Familienhaus in Achau mit Pooldeck, Garten & Nebengebäude
Beschreibung
Dieses umfassend sanierte Einfamilienhaus vereint großzügiges Wohnen, moderne Ausstattung und einen familienfreundlichen Garten mit Pooldeck. Das Haus ist sofort bezugsfertig und eignet sich ideal für Familien oder Paare mit Platzbedarf, die eine gute Infrastruktur in fußläufiger Entfernung schätzen.
Raumaufteilung
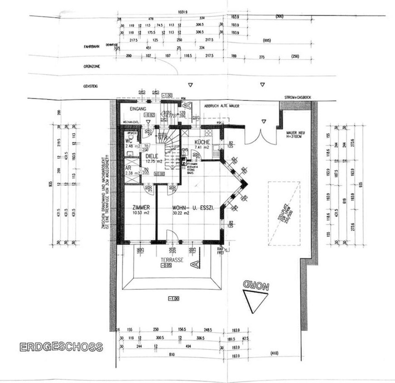
Erdgeschoss
Beim Betreten des Hauses gelangt man zunächst in einen praktischen Windfang, der direkt in den zentralen Vorraum führt.
-
Links befindet sich die Treppe in den oberen Wohnbereich.
-
Geradeaus öffnet sich der Zugang in den großen Wohn- und Essbereich, der viel Platz für Familie und Gäste bietet.
Auf dieser Ebene...
Dieses umfassend sanierte Einfamilienhaus vereint großzügiges Wohnen, moderne Ausstattung und einen familienfreundlichen Garten mit Pooldeck. Das Haus ist sofort bezugsfertig und eignet sich ideal für Familien oder Paare mit Platzbedarf, die eine gute Infrastruktur in fußläufiger Entfernung schätzen.
Raumaufteilung
Erdgeschoss
Beim Betreten des Hauses gelangt man zunächst in einen praktischen Windfang, der direkt in den zentralen Vorraum führt.
Links befindet sich die Treppe in den oberen Wohnbereich.
Geradeaus öffnet sich der Zugang in den großen Wohn- und Essbereich, der viel Platz für Familie und Gäste bietet.
Auf dieser Ebene stehen weiters zur Verfügung:
Große Wohnküche mit viel Arbeitsfläche und Stauraum
Großzügiges Wohnzimmer, ideal als Familienmittelpunkt, mit direktem Ausgang auf die teilweise überdachte Terrasse sowie in den Garten
Zimmer (ideal als Kinderzimmer, Homeoffice oder Gästezimmer)
Kleines Badezimmer mit WC und Walk-in-Dusche
Abstellraum für Haushaltsgeräte und Vorräte
Obergeschoss
Im Obergeschoss sind alle Räume zentral vom Vorraum aus begehbar:
Insgesamt 3 Zimmer, flexibel nutzbar als Schlafzimmer oder Kinderzimmer
Zwei der Zimmer verfügen über einen gemeinsamen Balkonzugang
Sehr großes und neuwertiges Tageslicht-Badezimmer mit
Dusche
Badewanne
Doppelwaschbecken
Wc
Außenbereich
Großzügiger Garten, der viel Platz zum Spielen für Kinder und zum Entspannen bietet
Attraktives Pooldeck – ideal für Sommertage und gesellige Stunden im Freien
Outdoor-Dusche
Großes Nebengebäude, vielseitig nutzbar (z. B. als Werkstatt, Lager, Hobbyraum)
Terrasse, teilweise überdacht, direkt von der Wohnküche aus begehbar – perfekt für Frühstück im Freien oder Grillabende
Dieses Einfamilienhaus ist die ideale Wahl für Käufer, die sofort einziehen möchten und Wert auf modernen Wohnkomfort, durchdachter Raumaufteilung und einen vielseitig nutzbaren Garten legen.
Hinweis: Das Startfoto in diesem Inserat wurde mithilfe von KI bearbeitet und dient der besseren Veranschaulichung.
Bei Interesse stellen wir Ihnen gerne ein detailliertes Lageexpose zur Verfügung, das alle wichtigen Parameter dieser Immobilie umfasst. Zudem bieten wir Ihnen die Möglichkeit, alle relevanten Unterlagen sowie detaillierte Fotos einzusehen. Für etwaige Fragen stehe ich Ihnen selbstverständlich jederzeit zur Verfügung.
Es ist wichtig anzumerken, dass keine Bilder oder Exposes Ihren persönlichen Eindruck ersetzen können. Daher laden wir Sie herzlich ein, sich bei einem persönlichen Termin vor Ort von diesem Angebot zu überzeugen.
Ich bitte um Verständnis dafür, dass ich aus rechtlichen und sicherheitstechnischen Gründen Unterlagen nur an Interessenten weiterleiten kann, die ihre persönlichen Daten, einschließlich Vor- und Nachname, Adresse, Telefonnummer und E-Mail-Adresse, zur Verfügung gestellt haben.
Bitte beachten Sie, dass alle Angaben unverbindlich sind und ausschließlich auf den Informationen basieren, die uns vom Verkäufer zur Verfügung gestellt wurden. Die Weitergabe dieser Daten an Dritte ist nicht gestattet.
Der Vermittler ist als Doppelmakler tätig.
Infrastruktur / Entfernungen
Gesundheit
Arzt <2.500m
Apotheke <2.500m
Klinik <7.000m
Krankenhaus <7.000m
Kinder & Schulen
Kindergarten <2.500m
Schule <500m
Universität <9.000m
Höhere Schule <7.000m
Nahversorgung
Supermarkt <1.000m
Bäckerei <500m
Einkaufszentrum <4.500m
Sonstige
Bank <500m
Geldautomat <500m
Post <2.500m
Polizei <3.000m
Verkehr
Bus <500m
U-Bahn <7.000m
Bahnhof <500m
Straßenbahn <7.000m
Autobahnanschluss <4.000m
Angaben Entfernung Luftlinie / Quelle: OpenStreetMap
Objektdaten
Ausstattung
- Kamin
- Kabel/SAT-TV
- Swimmingpool
- Bad mit Dusche
- Bad mit Badewanne
- Bad mit Fenster
- Offene Küche
- Fliesenboden
- Parkettboden
- Zentralheizung
- Befeuerung mit Gas
- Ausrichtung Balkon/Terrasse - West
- Alarmanlage
- Holz Bauweise
Dokumente / Links
Zustand
- Zustand
- MODERNISIERT
- Baujahr
- 2002
- HWB
- 52.8 kWh/m² pro Jahr
- Klasse HWB
- C
- fGEE
- 0.89
- Klasse fGEE
- B
Flächen
- Anzahl der Zimmer
- 5
- Anzahl der Badezimmer
- 2
- Anzahl der sep. WCs
- 2
- Anzahl der Balkone
- 1
- Anzahl der Terrassen
- 1
- Stellplätze
- 1
- Wohnfläche
- 118m²
- Grundstücksfläche
- 665m²
- Terrassenfläche
- 1m²
Kosten
- Kaufpreis Brutto
- € 650.000,00
Verwaltung
- Verfügbar ab
- nach Vereinbarung
Häuser zum Kaufen im Umkreis von Achau
Häuser zum Kaufen im Umkreis von Achau
Häuser zum Kaufen in Österreich
Andere Besucher suchen nach...
- Grundstücke kaufen in 3400 Weidlingbach
- Wohnungen kaufen in 4663 Laakirchen
- Häuser in 7471 Rechnitz
- Wohnungen in 2410 Hainburg an der Donau
- Häuser kaufen in 2432 Schwadorf
- Wohnungen kaufen in 3002 Purkersdorf
- Häuser in 3150 Wilhelmsburg
- Wohnungen kaufen in 3470 Engelmannsbrunn
- Grundstücke kaufen im Bezirk Mattersburg
- Grundstücke kaufen im Bezirk Gmunden