Außergewöhnliches Einfamilienhaus mit Wintergarten & Doppelgarage mit Hebebühne in Toplage von Spielberg
-
Vereinbarung
Beschreibung
Willkommen in Ihrem neuen Zuhause – einem außergewöhnlichen Einfamilienhaus in einer der begehrtesten Wohnlagen von Spielberg, nur wenige Minuten vom Red Bull Ring entfernt. Diese Immobilie verbindet einzigartigen Stil, Großzügigkeit und Wohnkomfort auf eindrucksvolle Weise. Bereits beim Betreten erwartet Sie ein einladender Vorraum mit Gäste-WC. Der offene Wohn-Ess-Küchenbereich überzeugt durch seine Großzügigkeit und Wohnqualität – ein Ort, an dem Kochen, Genießen und Zusammensein ineinanderfließen. Zwei direkte Zugänge führen in den lichtdurchfluteten Wintergarten mit seiner beeindruckenden Glasfront. Hier genießen Sie zu jeder Jahreszeit ein besonderes Raumgefühl und einen schönen Blick ins Freie. Über das Stiegenhaus gelangen Sie über eine elegante Galerie...
Willkommen in Ihrem neuen Zuhause – einem außergewöhnlichen Einfamilienhaus in einer der begehrtesten Wohnlagen von Spielberg, nur wenige Minuten vom Red Bull Ring entfernt.
Diese Immobilie verbindet einzigartigen Stil, Großzügigkeit und Wohnkomfort auf eindrucksvolle Weise.
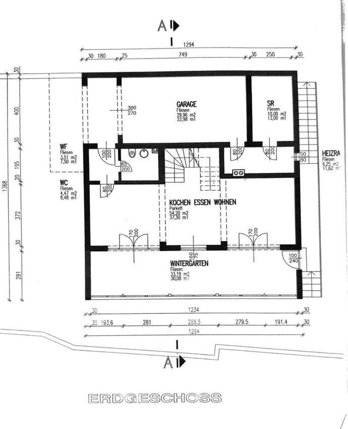
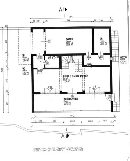
Bereits beim Betreten erwartet Sie ein einladender Vorraum mit Gäste-WC. Der offene Wohn-Ess-Küchenbereich überzeugt durch seine Großzügigkeit und Wohnqualität – ein Ort, an dem Kochen, Genießen und Zusammensein ineinanderfließen. Zwei direkte Zugänge führen in den lichtdurchfluteten Wintergarten mit seiner beeindruckenden Glasfront. Hier genießen Sie zu jeder Jahreszeit ein besonderes Raumgefühl und einen schönen Blick ins Freie.
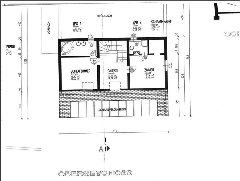
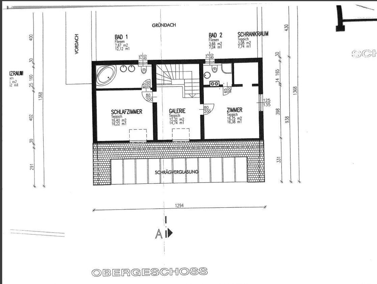
Über das Stiegenhaus gelangen Sie über eine elegante Galerie in den privaten Rückzugsbereich des Hauses. Zwei separate Schlafzimmer stehen Ihnen zur Verfügung, jeweils mit eigenem Badezimmer. Eine ideale Raumaufteilung für kleine Familien, Gäste oder jene, die Arbeiten und Wohnen perfekt miteinander verbinden möchten.
Ein absolutes Highlight ist die große Doppelgarage mit elektrischem Rolltor, ausgestattet mit einer eigenen Hebebühne – ein Traum für Autoliebhaber, Sammler oder alle, die einfach mehr Platz benötigen. Zusätzlich bietet eine weitere geräumige Garage wertvollen Stauraum.
Dieses Einfamilienhaus besticht durch seinen individuellen Charakter und seinen einzigartigen Stil. Eine Immobilie für Menschen, die das Besondere schätzen und ein Zuhause suchen, das man nicht jeden Tag findet.
Noch nichts gefunden? Wir informieren Sie über geeignete Immobilienangebote noch vor allen anderen.
Legen Sie jetzt Ihren individuellen Suchagenten unter folgendem Link an. Wir schicken Ihnen passende Immobilien exklusiv vorab zu.
Suchagent anlegen - https://realbuero-knitl.service.immo/registrieren/de
Hinweis gemäß Energieausweisvorlagegesetz: Ein Energieausweis wurde vom Eigentümer bzw. Verkäufer, nach unserer Aufklärung über die generell geltende Vorlagepflicht, sowie Aufforderung zu seiner Erstellung noch nicht vorgelegt. Daher gilt zumindest eine dem Alter und der Art des Gebäudes entsprechende Gesamtenergieeffizienz als vereinbart. Wir übernehmen keinerlei Gewähr oder Haftung für die tatsächliche Energieeffizienz der angebotenen Immobilie.
Der Vermittler ist als Doppelmakler tätig.
Infrastruktur / Entfernungen
Gesundheit
Arzt <2.500m
Apotheke <2.500m
Krankenhaus <4.000m
Kinder & Schulen
Schule <2.000m
Kindergarten <2.500m
Nahversorgung
Supermarkt <1.500m
Bäckerei <3.500m
Einkaufszentrum <3.500m
Sonstige
Bank <2.500m
Geldautomat <2.500m
Post <4.000m
Polizei <4.500m
Verkehr
Bus <500m
Autobahnanschluss <1.000m
Bahnhof <3.000m
Flughafen <3.000m
Angaben Entfernung Luftlinie / Quelle: OpenStreetMap
Objektdaten
Ausstattung
- Bad mit Dusche
- Bad mit Badewanne
- Fliesenboden
- Parkettboden
- Zentralheizung
- Befeuerung mit Öl
Zustand
- Baujahr
- 2001
- Alter
- NEUBAU
Flächen
- Anzahl der Zimmer
- 3
- Anzahl der Badezimmer
- 2
- Anzahl der sep. WCs
- 3
- Stellplätze
- 2
- Wohnfläche
- 160m²
- Grundstücksfläche
- 787m²
Kosten
Verwaltung
- Verfügbar ab
- Vereinbarung
Häuser zum Kaufen im Umkreis von Spielberg
Häuser zum Kaufen im Umkreis von Spielberg
Häuser zum Kaufen in Österreich
Andere Besucher suchen nach...
- Grundstücke kaufen in 3400 Weidlingbach
- Wohnungen kaufen in 4663 Laakirchen
- Häuser in 7471 Rechnitz
- Wohnungen in 2410 Hainburg an der Donau
- Häuser kaufen in 2432 Schwadorf
- Wohnungen kaufen in 3002 Purkersdorf
- Häuser in 3150 Wilhelmsburg
- Wohnungen kaufen in 3470 Engelmannsbrunn
- Grundstücke kaufen im Bezirk Mattersburg
- Grundstücke kaufen im Bezirk Gmunden