Ein- oder Zweifamilienhaus mit Große Lagerfläche und Nebengebäuden in Sieding, Niederösterreich
Beschreibung
Willkommen in Ihrem neuen Zuhause in der malerischen Gemeinde Sieding, Niederösterreich!
Das Ein- oder Zweifamilienhaus bietet auf dem großzügigen Grundstück verschiedene Wohnkonzepte, etwa als Mehrgenerationenhaus, zur eigenen Nutzung mit Vermietung oder als Kapitalanlage.
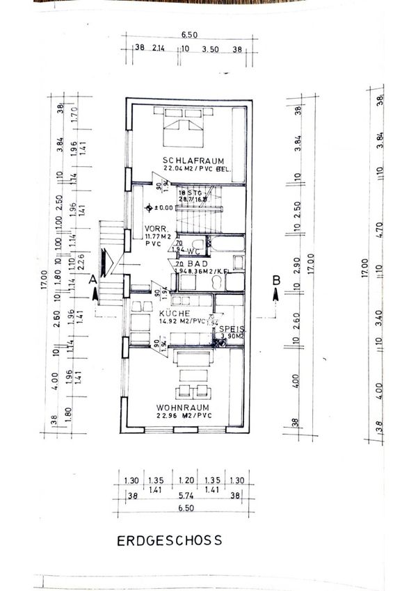
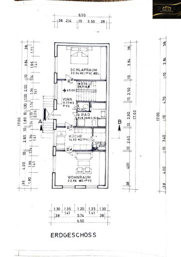
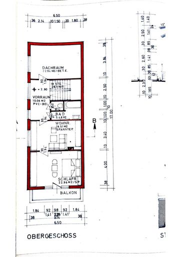
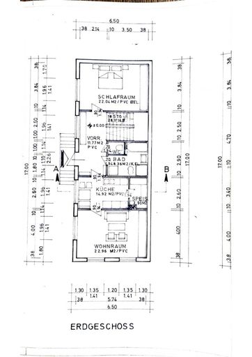
Die fünf Zimmer ermöglichen eine flexible Raumaufteilung. Der Keller stellt mit ca. 70 m² weiteren Stauraum sowie Platz für Technik und Lagerung bereit. Der Balkon erweitert den Wohnbereich und eröffnet einen angenehmen Blick ins ruhige Umfeld.
Ein besonderer Vorteil sind die Nebengebäude: Die Scheune (Bj.1953) und der ehemalige Rinderstall (Bj.1969) bieten mit ca. 209 m² vielfältige Möglichkeiten –...
Willkommen in Ihrem neuen Zuhause in der malerischen Gemeinde Sieding, Niederösterreich!
Das Ein- oder Zweifamilienhaus bietet auf dem großzügigen Grundstück verschiedene Wohnkonzepte, etwa als Mehrgenerationenhaus, zur eigenen Nutzung mit Vermietung oder als Kapitalanlage.
Die fünf Zimmer ermöglichen eine flexible Raumaufteilung. Der Keller stellt mit ca. 70 m² weiteren Stauraum sowie Platz für Technik und Lagerung bereit. Der Balkon erweitert den Wohnbereich und eröffnet einen angenehmen Blick ins ruhige Umfeld.
Ein besonderer Vorteil sind die Nebengebäude: Die Scheune (Bj.1953) und der ehemalige Rinderstall (Bj.1969) bieten mit ca. 209 m² vielfältige Möglichkeiten – beispielsweise als Lager, Werkstatt, Hobbyraum, für Tierhaltung oder eine zukünftige Umnutzung im Rahmen der baurechtlichen Vorgaben.
Ausstattung
- Zwei Badezimmer – mit Badewanne, eines mit Badewanne und Dusche
- Zwei separate WCs
- Bodenbeläge aus Fliesen, Kunstboden und Teppich
- Einbauküche
- Holz-Zentralheizung
- Balkon
- Stellplatz und Carport
- Großzügiger Kellerbereich
Nutzungsmöglichkeiten
- Zweifamilienhaus - oder Mehrgenerationenwohnen
- Kombination aus Eigennutzung und Vermietung
- Wohnen mit zusätzlicher Nutzfläche für Gewerbe, Hobby oder Landwirtschaft
- Anlageobjekt mit Erweiterungspotenzial durch Nebengebäude
Nutzen Sie die Gelegenheit, Eigentümer dieses einzigartigen Zweifamilienhauses zu werden. Vereinbaren Sie noch heute einen Besichtigungstermin und überzeugen Sie sich selbst von den Vorzügen dieser Immobilie. Ihr Traumhaus in Sieding wartet auf Sie!
Alle Angaben erfolgen ohne Gewähr und basieren ausschließlich auf den Informationen, die uns vom Verkäufer mitgeteilt wurden. Da wir diese Informationen lediglich weiterleiten, übernehmen wir keine Haftung für deren Richtigkeit, Vollständigkeit und Aktualität.
Ich ersuche um Verständnis, dass ich, aufgrund der Nachweispflicht gegenüber dem Auftraggeber und aus Sicherheitsgründen Unterlagen nur an Interessenten weiterleiten kann, die Ihre persönlichen Daten, d.h. Vor- und Familienname, Anschrift, Telefonnummer und E-Mail-Adresse, bekannt gegeben haben. Irrtümer und Änderungen vorbehalten!
In einem persönlichen und unverbindlichen & kostenlosen Termin können Sie sich einen Eindruck dieser außergewöhnlichen Liegenschaft machen. Ich freue mich auf Ihren Anruf!
Für nähere Auskünfte und/oder eine Besichtigung kontaktieren Sie mich unter
Mihai-George Micodin BA
CEO & Founder
Handy: +436764009306
E-Mail: micodin@crew-immobilien.at
Hinweis gemäß Energieausweisvorlagegesetz: Ein Energieausweis wurde vom Eigentümer bzw. Verkäufer, nach unserer Aufklärung über die generell geltende Vorlagepflicht, sowie Aufforderung zu seiner Erstellung noch nicht vorgelegt. Daher gilt zumindest eine dem Alter und der Art des Gebäudes entsprechende Gesamtenergieeffizienz als vereinbart. Wir übernehmen keinerlei Gewähr oder Haftung für die tatsächliche Energieeffizienz der angebotenen Immobilie.
Der Vermittler ist als Doppelmakler tätig.
Infrastruktur / Entfernungen
Gesundheit
Arzt <5.000m
Apotheke <5.000m
Krankenhaus <8.500m
Kinder & Schulen
Schule <5.000m
Kindergarten <4.500m
Nahversorgung
Supermarkt <5.000m
Bäckerei <5.500m
Einkaufszentrum <6.000m
Sonstige
Bank <5.000m
Geldautomat <5.000m
Polizei <5.000m
Post <5.500m
Verkehr
Bus <500m
Bahnhof <5.000m
Autobahnanschluss <9.000m
Angaben Entfernung Luftlinie / Quelle: OpenStreetMap
Objektdaten
Ausstattung
- Teilmöbliert
- Gäste-WC
- Kabelkanäle
- Bad mit Dusche
- Bad mit Badewanne
- Bad mit Bidet
- Einbauküche
- Fliesenboden
- Teppichboden
- Linoleumboden
- Zentralheizung
- Befeuerung mit Holz
- Satteldach
- Massiv Bauweise
- Schlüsselfertig mit Keller
Dokumente / Links
Zustand
- Zustand
- GEPFLEGT
- Baujahr
- 1980
- Alter
- NEUBAU
Flächen
- Anzahl der Zimmer
- 5
- Anzahl der Badezimmer
- 2
- Anzahl der sep. WCs
- 2
- Wohnfläche
- 163m²
- Nutzfläche
- 360m²
- Lagerfläche
- 209m²
- Grundstücksfläche
- 887m²
- Kellerfläche
- 70m²
Kosten
- Kaufpreis Brutto
- € 345.000,00
- Betriebskosten
- € 70,00
Verwaltung
- Verfügbar ab
- nach Vereinbarung
Häuser zum Kaufen im Umkreis von Ternitz
Häuser zum Kaufen im Umkreis von Ternitz
Häuser zum Kaufen in Österreich
Andere Besucher suchen nach...
- Grundstücke kaufen in 3400 Weidlingbach
- Wohnungen kaufen in 4663 Laakirchen
- Häuser in 7471 Rechnitz
- Wohnungen in 2410 Hainburg an der Donau
- Häuser kaufen in 2432 Schwadorf
- Wohnungen kaufen in 3002 Purkersdorf
- Häuser in 3150 Wilhelmsburg
- Wohnungen kaufen in 3470 Engelmannsbrunn
- Grundstücke kaufen im Bezirk Mattersburg
- Grundstücke kaufen im Bezirk Gmunden