Ein klassischer Bungalow, wie er im Buche steht!
-
ab sofort
Beschreibung
Der in den 60er Jahren errichtete Bungalow, welcher durch sein Alter schon etwas in die Jahre gekommen ist, bietet jedoch mit einer Gesamtnutzfläche von ca. 250m² und einer Grundstückfläche von ca. 1.069m² sehr viel Potenzial und Möglichkeiten an. Ende der 90er Jahre wurden die Süd-Fenster auf 2-Fach-Isolierglas mit elektrischen Außenjalousien getauscht, das Dach erneuert und der Wintergarten errichtet, wodurch eine Gesamtwohnfläche von ca. 105m² entstanden sind. Der teilweise, ca. 103m² große „Wohnkeller“ bietet ebenfalls viele Optionen an sowie der großzügige Dachstuhl ausbaufähig ist. Im Garten besteht des Weiteren noch eine ca. 45m² große Wohn-Gartenhütte, von dieser eine Hälfte zum Wohnen...
Der in den 60er Jahren errichtete Bungalow, welcher durch sein Alter schon etwas in die Jahre gekommen ist, bietet jedoch mit einer Gesamtnutzfläche von ca. 250m² und einer Grundstückfläche von ca. 1.069m² sehr viel Potenzial und Möglichkeiten an. Ende der 90er Jahre wurden die Süd-Fenster auf 2-Fach-Isolierglas mit elektrischen Außenjalousien getauscht, das Dach erneuert und der Wintergarten errichtet, wodurch eine Gesamtwohnfläche von ca. 105m² entstanden sind. Der teilweise, ca. 103m² große „Wohnkeller“ bietet ebenfalls viele Optionen an sowie der großzügige Dachstuhl ausbaufähig ist. Im Garten besteht des Weiteren noch eine ca. 45m² große Wohn-Gartenhütte, von dieser eine Hälfte zum Wohnen und die Andere für Geräte-, Lager- oder Abstellraum genutzt werden kann und sollte die Pflege des großen Gartens einmal zu aufwendig werden, so ist eine Grundstücksteilung ebenfalls möglich, da am Gartenende bereits eine Straßenzufahrt besteht.
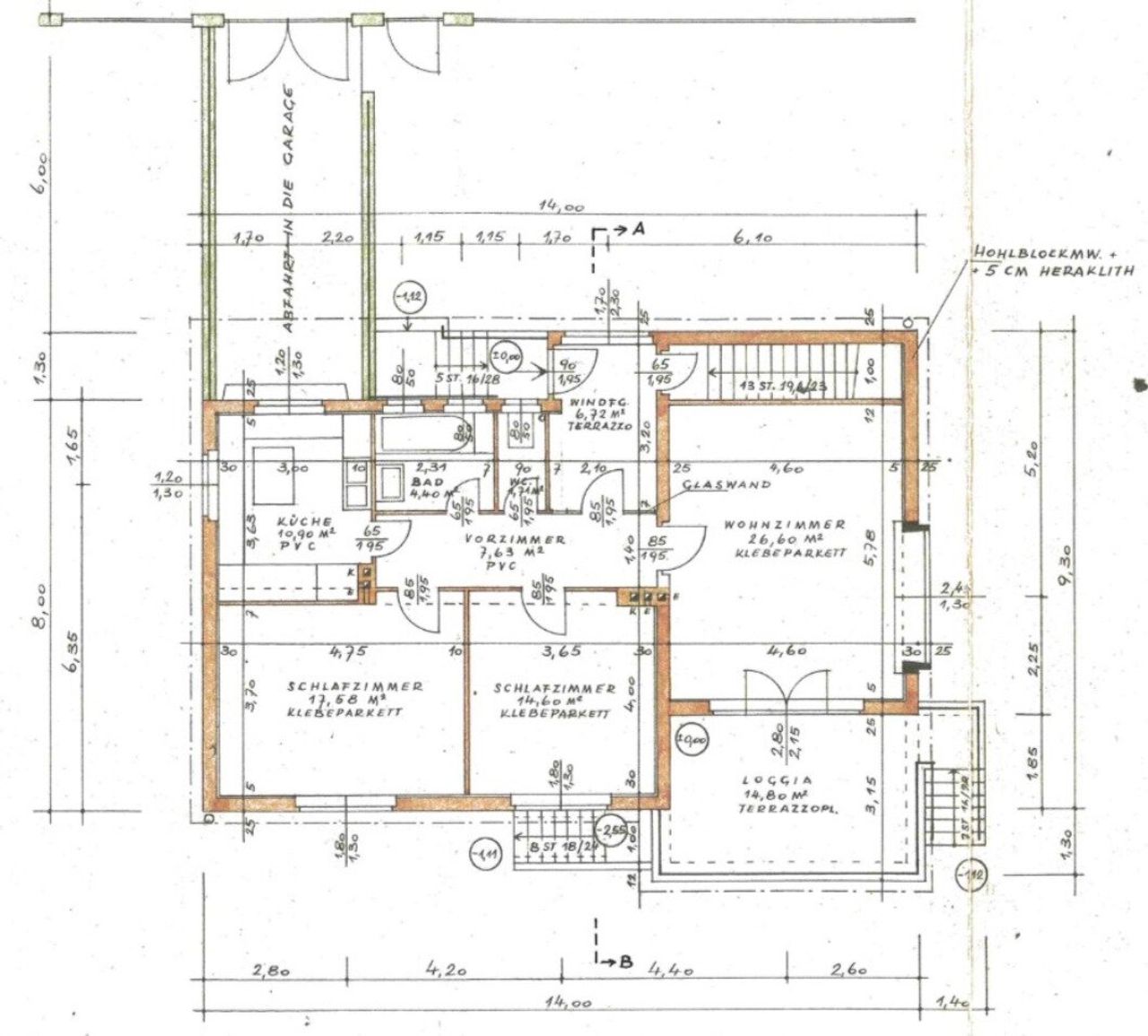
Im Erdgeschoss sind alle Räume separat über einen Flur vom Vorraum aus zu begehen – ein großzügiges ca. 27m² großes Wohnzimmer mit Durchgang auf den sonnendurflutenten, ca. 15m² großen Wintergarten mit Ausgang in den Garten, ein ca. 15m² und ein ca. 18m² großes Zimmer, eine Küche, ein Bad mit Wanne und ein WC.
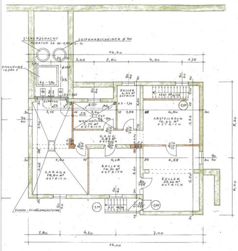
Über dem Vorraum aus ist des Weiteren der separate Kellerabgang vorzufinden, welcher in ein geräumiges Vorzimmer im Keller führt. Vom Vorzimmer aus ist der Keller kreisförmig über alle Zimmer zu begehen – eine große Bauernstube, eine Tee-Küche, ein kleiner Werkraum, ein riesengroßer Abstellraum (ehemalige Garage), eine Waschküche mit Wanne und ein kleiner Gang, von dem aus eine großzügige Speis und wiederrum das geräumige Vorzimmer zu erreichen sind. Leider dürften die Kellerwände, Hangseitig, ein leichtes Feuchtigkeitsproblem aufweisen!
Der Garten ist über dem Hauseingang, dem riesengroßen Abstellraum (ehemaligen Garage) im Keller, der Straßenzufahrt und dem Wintergarten zu begehen. Die lange Hauseinfahrt endet in einem Carportplatz und ist sehr großzügig gehalten, sodass 3-4 PKWs leicht hintereinander Platz finden können. Die idyllische Gartenhütte, leicht mittig im Garten gehalten, bezaubert durch Ihre Ausstattung bzw. Möglichkeiten, da der ca. 22m² ausgebaute Wohnbereich mit einer Schlafnische, Wasch-/Teeküche und einem separaten WC verfügt und somit an Wasser, Kanal und Strom angeschlossen ist. Die weiteren ca. 22m² sind Lager, Abstellfläche und Geräteschuppen.
Die Ausstattung ist dem alter entsprechend aber in einem guten und gepflegten Zustand! Von Steinboden, Parkett, Fliesen und Linoleum ist alles vorhanden… und die Küche, sowie die Nassräume lassen die 60er Jahre wieder auferstehen. Nordseitig bestehen noch Verbundfenster mit Alu-Jalousien aber der Wintergarten, das Ostfenster und die Südfenster sind bereits mit 2-Fach-Isolierung und jedes Fenster mit elektrischen Außenjalousien versehen.
Die Beheizung und Warmwasseraufbereitung erfolgt elektrisch mittels Durchlauferhitzer und Elektroradiatoren.
Die öffentliche Verkehrsanbindung ist mit den Buslinien B23 und B12 gut erreichbar und mit dem Auto nur 15 Minuten von Oberpullendorf entfernt.
Die Geschäfte des täglichen Bedarfs, Volks- und Mittelschule, Erlebnisbad, Parkanlage mit Spielplatz und Restaurants sind in einem Umkreis von nur 5 Gehminuten erreichbar und die Burg Lockenhaus ist nur 20 Gehminuten entfernt.
Einziehen, Renovieren, Umbauen oder komplett neu verwirklichen – mit dem klassischen Bungalow, so wie er im Buche steht – ist vieles und alles möglich!
Kaufpreis: 170.000,00 EUR
Provision: 6.120,00 EUR inkl. 20% USt.
Grunderwerbssteuer: 3,5%
Grundbuchseintragungsgebühr: 1,1%
Kosten der Vertragserrichtung und grundbücherlichen Durchführung nach Vereinbarung im Rahmen der Tarifordnung des jeweiligen Urkundenerrichters sowie Barauslagen für Beglaubigung und Stempelgebühren.
Hinweis gemäß Energieausweisvorlagegesetz: Ein Energieausweis wurde vom Eigentümer bzw. Verkäufer, nach unserer Aufklärung über die generell geltende Vorlagepflicht, sowie Aufforderung zu seiner Erstellung noch nicht vorgelegt. Daher gilt zumindest eine dem Alter und der Art des Gebäudes entsprechende Gesamtenergieeffizienz als vereinbart. Wir übernehmen keinerlei Gewähr oder Haftung für die tatsächliche Energieeffizienz der angebotenen Immobilie.
Objektdaten
Ausstattung
- Gartennutzung
- Kabel/SAT-TV
- Wasch-/Trockenraum
- Wintergarten
- Rolladen
- Bad mit Badewanne
- Bad mit Fenster
- Einbauküche
- Fliesenboden
- Steinboden
- Parkettboden
- Linoleumboden
- Elektrische Befeuerung
- Satteldach
Zustand
- Zustand
- GEPFLEGT
- Baujahr
- 1964
- Alter
- NEUBAU
Flächen
- Anzahl der Zimmer
- 3
- Anzahl der Badezimmer
- 2
- Anzahl der sep. WCs
- 2
- Stellplätze
- 3
- Wohnfläche
- 105m²
- Nutzfläche
- 250m²
- Grundstücksfläche
- 1.069m²
- Gartenfläche
- 900m²
- Kellerfläche
- 103m²
Kosten
- Kaufpreis Brutto
- € 170.000,00
Verwaltung
- Verfügbar ab
- ab sofort
Häuser zum Kaufen im Umkreis von Lockenhaus
Häuser zum Kaufen im Umkreis von Lockenhaus
Häuser zum Kaufen in Österreich
Andere Besucher suchen nach...
- Grundstücke kaufen in 3400 Weidlingbach
- Wohnungen kaufen in 4663 Laakirchen
- Häuser in 7471 Rechnitz
- Wohnungen in 2410 Hainburg an der Donau
- Häuser kaufen in 2432 Schwadorf
- Wohnungen kaufen in 3002 Purkersdorf
- Häuser in 3150 Wilhelmsburg
- Wohnungen kaufen in 3470 Engelmannsbrunn
- Grundstücke kaufen im Bezirk Mattersburg
- Grundstücke kaufen im Bezirk Gmunden