Klarheit, die Raum gibt: Architektur in vollendeter Struktur - Kaufpreis inklusive offener Wohnbauförderung!
-
2021
Beschreibung
Wo Struktur auf Weitblick trifft: Dein neues Zuhause in Oberschützen
Willkommen in einem Lebensraum, in dem Klarheit kein Zufall, sondern Architektur ist.
Dieser lichtdurchflutete Neubau aus dem Jahr 2021 ist mehr als nur ein Haus – es ist ein Ankerplatz. Gelegen in einer absolut ruhigen Siedlung, lädt dieses Flachdachhaus dazu ein, den Alltag hinter sich zu lassen. Hier trifft puristische Ästhetik auf ein durchdachtes Wohnkonzept, das Ihnen den Raum schenkt, den Sie zum Durchatmen brauchen.
Erdgeschoss: Großzügigkeit trifft auf Ordnung
Das Herzstück des Hauses ist die über 50 m² große Wohnküche. Hier verschmelzen Design und Alltagstauglichkeit:
-
Tischler-Maßarbeit: Die...
Wo Struktur auf Weitblick trifft: Dein neues Zuhause in Oberschützen
Willkommen in einem Lebensraum, in dem Klarheit kein Zufall, sondern Architektur ist.
Dieser lichtdurchflutete Neubau aus dem Jahr 2021 ist mehr als nur ein Haus – es ist ein Ankerplatz. Gelegen in einer absolut ruhigen Siedlung, lädt dieses Flachdachhaus dazu ein, den Alltag hinter sich zu lassen. Hier trifft puristische Ästhetik auf ein durchdachtes Wohnkonzept, das Ihnen den Raum schenkt, den Sie zum Durchatmen brauchen.
Erdgeschoss: Großzügigkeit trifft auf Ordnung
Das Herzstück des Hauses ist die über 50 m² große Wohnküche. Hier verschmelzen Design und Alltagstauglichkeit:
Tischler-Maßarbeit: Die Küche ist ein wahres Stauraum-Wunder. Deckenhohe Schränke sorgen dafür, dass alles seinen festen Platz findet, während die Arbeitsflächen frei und übersichtlich bleiben.
Licht & Raum: Die riesige Fensterfront fängt das Tageslicht ein und lässt die Grenzen zwischen Innen und Außen verschwimmen.
Fließender Übergang: Die Terrasse ist die natürliche Erweiterung Ihres Wohnraums – ideal für entspannte Stunden im Freien.
Ein praktischer Technikraum sowie ein Gäste-WC runden das Erdgeschoss ab. Nachhaltigkeit wird hier großgeschrieben: Eine moderne Luft-Wasser-Wärmepumpe sorgt für wohlige Wärme und Effizienz.
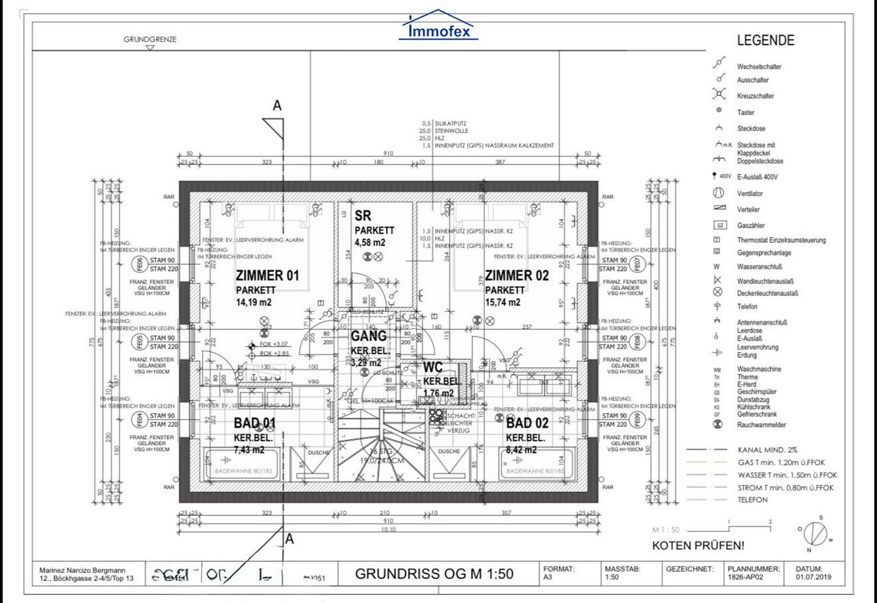
Obergeschoss: Privatheit & maßgeschneiderte Struktur
Über die Treppe gelangen Sie in den Rückzugsbereich. Auch hier setzt sich das Konzept des „aufgeräumten Wohnens“ fort:
Exklusive Tischler-Einbauten: Optimale Raumnutzung trifft auf zeitloses Design.
Flexibilität: Zwei helle Schlafzimmer bieten Raum für Erholung, unterstützt durch zwei separate Badezimmer für einen entspannten Start in den Tag.
Ordnung als Standard: Ein eigener Schrankraum bringt die Struktur, die man braucht, um befreit durch den Tag zu gehen.
Außenbereich: Dein privates Paradies
Der Garten ist nicht nur Grünfläche, sondern Lebensqualität. Die überdachte Terrasse schützt vor Sonne und Regen, während der eigene Pool an heißen Tagen für die nötige Abkühlung sorgt. Ihre Fahrzeuge sind in der zugehörigen Garage sicher und witterungsgeschützt untergebracht.
Infrastruktur
Oberschützen bietet eine hervorragende Lebensqualität mit Schulen, Kindergarten und Nahversorgern in direkter Umgebung. Der nächste Bahnhof ist ca. 10 km entfernt.
Hinweis: Im Exposé können teilweise KI generierte Inhalte vorhanden sein. (Texte, Fotobearbeitung, etc.)
Kaufpreis inklusive offener Wohnbauförderung i.H. von ca. 45.000 Euro
Home to feel happy Zusatzinformation:
Weil SIE mir am Herzen liegen:
Für meine Kunden steht ein Baumeister und Ing. zur Verfügung, der je nach Bedarf bei einer Zweitbesichtigung dazu gebucht werden kann für Planungsänderungen, Ankaufsexpertisen, Umbauwünsche, Kosteneinschätzung und vieles mehr! Kommt nach einem Termin mit ihm ein Kaufanbot zustande und daraus erfolgt dann ein Kaufvertrag für gegenständliches Objekt, werde ich Ihnen die Honorarnote des Baumeisters anteilig erstatten.
Auch bei einem Finanzierungswunsch habe ich kompetente Unterstützung an meiner Seite! Ich freue mich, hier umfangreich unterstützen zu dürfen!
Vereinbaren Sie gerne einen Besichtigungstermin, auch am Wochenende bin ich für Sie da, nach frühzeitiger telefonischer Vereinbarung.
Die Angaben zum Objekt beruhen auf Informationen von Abgeber oder Dritten ( bspw. Behörden/Sachverständigen ), für deren Richtigkeit wir keine Gewähr übernehmen!
Es wird auf Doppelmaklertätigkeit hingewiesen, gem. Paragraph 5, MaklerG.
Weiters bitten wir um ihr Verständnis, dass wir für die Bearbeitung ihrer Anfrage und Inanspruchnahme unserer Dienstleistung ihre persönlichen Daten benötigen. Daher können wir nur vollständige schriftliche Anfragen bearbeiten.
Objektdaten
Ausstattung
- Teilmöbliert
- Luftwärmepumpe
- Flachdach
- Massiv Bauweise
Zustand
- Zustand
- NEUWERTIG
- Baujahr
- 2021
- Alter
- NEUBAU
- HWB
- 45.31 kWh/m² pro Jahr
- Klasse HWB
- B
- fGEE
- 0.74
- Klasse fGEE
- A
Flächen
- Anzahl der Zimmer
- 3
- Anzahl der Badezimmer
- 2
- Anzahl der sep. WCs
- 2
- Wohnfläche
- 114m²
- Grundstücksfläche
- 1.084m²
- Gartenfläche
- 942m²
Kosten
- Kaufpreis Brutto
- € 489.000,00
Häuser zum Kaufen im Umkreis von Oberschützen
Häuser zum Kaufen im Umkreis von Oberschützen
Häuser zum Kaufen in Österreich
Andere Besucher suchen nach...
- Grundstücke kaufen in 3400 Weidlingbach
- Wohnungen kaufen in 4663 Laakirchen
- Häuser in 7471 Rechnitz
- Wohnungen in 2410 Hainburg an der Donau
- Häuser kaufen in 2432 Schwadorf
- Wohnungen kaufen in 3002 Purkersdorf
- Häuser in 3150 Wilhelmsburg
- Wohnungen kaufen in 3470 Engelmannsbrunn
- Grundstücke kaufen im Bezirk Mattersburg
- Grundstücke kaufen im Bezirk Gmunden