Belagsfertige Doppelhaushälfte mit 5 Zimmern und einer Terrasse in Naarn zu kaufen!
-
Erstbezug
-
2025
-
nach Absprache
Beschreibung
Belagsfertige Doppelhaushälfte mit 5 Zimmern und einer Terrasse in Naarn zu kaufen!
Träumen Sie von einem modernen Zuhause in ruhiger und familienfreundlicher Lage? Diese exklusive Doppelhaushälfte in Naarn erfüllt höchste Ansprüche an Wohnkomfort und Lebensqualität. Auf rund 115 m² Wohnfläche überzeugt die Immobilie mit einer durchdachten Raumaufteilung und einem harmonischen Wohnkonzept, das perfekt auf die Bedürfnisse einer Familie abgestimmt ist.
Der Rohbau wurde von einem Baumeister errichtet, die Fertigstellung der Heizung ist bereits vorgesehen. Hochwertige Fenster sowie die Eingangstür von Internorm unterstreichen den gehobenen Ausstattungsstandard.
Im Inneren erwartet Sie ein lichtdurchfluteter Wohnbereich mit über 33 m², der durch seine offene...
Belagsfertige Doppelhaushälfte mit 5 Zimmern und einer Terrasse in Naarn zu kaufen!
Träumen Sie von einem modernen Zuhause in ruhiger und familienfreundlicher Lage? Diese exklusive Doppelhaushälfte in Naarn erfüllt höchste Ansprüche an Wohnkomfort und Lebensqualität. Auf rund 115 m² Wohnfläche überzeugt die Immobilie mit einer durchdachten Raumaufteilung und einem harmonischen Wohnkonzept, das perfekt auf die Bedürfnisse einer Familie abgestimmt ist.
Der Rohbau wurde von einem Baumeister errichtet, die Fertigstellung der Heizung ist bereits vorgesehen. Hochwertige Fenster sowie die Eingangstür von Internorm unterstreichen den gehobenen Ausstattungsstandard.
Im Inneren erwartet Sie ein lichtdurchfluteter Wohnbereich mit über 33 m², der durch seine offene Gestaltung ein besonders großzügiges und einladendes Wohngefühl vermittelt. Das Obergeschoss beherbergt ein ruhiges Schlafzimmer, zwei helle Kinderzimmer sowie einen separaten Schrankraum. Ein modernes Badezimmer und ein praktischer Abstellraum komplettieren dieses attraktive Wohnangebot. Die Doppelhaushälfte wird belagsfertig verkauft. Die Betriebskostenangaben sind ca. Werte, da es sich um einen Neubau handelt; die tatsächlichen Kosten sind verbrauchsabhängig.
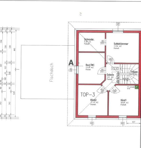
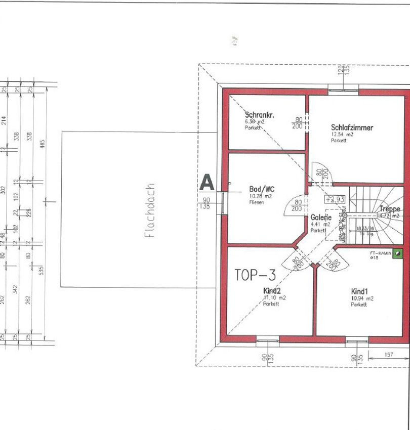
Raumaufteilung
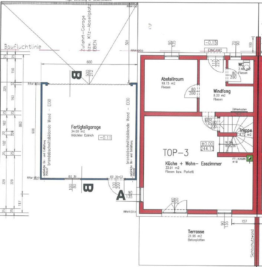
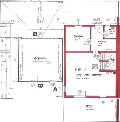
EG: Abstellraum, Windfang, WC, Küche+Wohn-Esszimmer, Terrasse
OG: Bad mit WC, Schrankraum, Schlafzimmer, Galerie, zwei Kinderzimmer
Lage
Die Doppelhaushälfte liegt in der beliebten und ruhigen Gemeinde Naarn, umgeben von viel Grün und Natur. Hier genießen Sie eine idyllische Atmosphäre, die Entspannung und Erholung bietet. Gleichzeitig sind benachbarte Städte schnell erreichbar.
Sie haben Interesse?
Ansehen lohnt sich - wir freuen uns über Ihr Interesse! Für weitere Fragen stehen wir Ihnen gerne unter der Rufnummer 0664 398 34 62 zur Verfügung.
Auf Wunsch stellen wir gerne einen Kontakt zu Finanzierungsexperten her.
Rechtliche Informationen
Bitte beachten Sie, dass aufgrund unserer ALLEINBEAUFTRAGUNG und Nachweispflicht für den Abgeber ausschließlich Anfragen unter Angabe Ihrer VOLLSTÄNDIGEN DATEN bearbeiten können (NAME, ANSCHRIFT, E-Mail, Telefonnummer).
Explizit weisen wir darauf hin, dass alle Angaben nach bestem Wissen erstellt wurden. Irrtümer, Druckfehler und Änderungen vorbehalten. Für Auskünfte u. Angaben, die uns vonseiten der Eigentümer und Dritten zur Verfügung gestellt wurden, können wir keine Haftung übernehmen. Besichtigungen u. Beratungen erfolgen kostenlos, lediglich im Falle einer erfolgreichen Vermittlung ist die gesetzliche Provision zur Zahlung fällig.
Der Vermittler ist als Doppelmakler tätig.
Infrastruktur / Entfernungen
Gesundheit
Arzt <500m
Apotheke <2.000m
Klinik <3.000m
Kinder & Schulen
Schule <500m
Kindergarten <500m
Nahversorgung
Supermarkt <500m
Bäckerei <500m
Einkaufszentrum <2.500m
Sonstige
Bank <500m
Geldautomat <500m
Post <2.000m
Polizei <3.000m
Verkehr
Bus <500m
Bahnhof <2.500m
Autobahnanschluss <7.500m
Angaben Entfernung Luftlinie / Quelle: OpenStreetMap
Objektdaten
Ausstattung
- Rolladen
- Gäste-WC
- Estrichboden
- Fußbodenheizung
- Luftwärmepumpe
- Walmdach
Zustand
- Zustand
- ERSTBEZUG
- Baujahr
- 2025
- Alter
- NEUBAU
- HWB
- 39 kWh/m² pro Jahr
- Klasse HWB
- B
- fGEE
- 0.7
- Klasse fGEE
- A+
Flächen
- Anzahl der Zimmer
- 5
- Anzahl der Badezimmer
- 1
- Anzahl der sep. WCs
- 2
- Anzahl der Terrassen
- 1
- Wohnfläche
- 115m²
- Terrassenfläche
- 1m²
- Grundstücksfläche
- 357m²
Kosten
- Kaufpreis Brutto
- € 349.000,00
- Betriebskosten
- € 136,36
Verwaltung
- Verfügbar ab
- nach Absprache
Häuser zum Kaufen im Umkreis von Naarn im Machlande
Häuser zum Kaufen im Umkreis von Naarn im Machlande
Häuser zum Kaufen in Österreich
Andere Besucher suchen nach...
- Grundstücke kaufen in 3400 Weidlingbach
- Wohnungen kaufen in 4663 Laakirchen
- Häuser in 7471 Rechnitz
- Wohnungen in 2410 Hainburg an der Donau
- Häuser kaufen in 2432 Schwadorf
- Wohnungen kaufen in 3002 Purkersdorf
- Häuser in 3150 Wilhelmsburg
- Wohnungen kaufen in 3470 Engelmannsbrunn
- Grundstücke kaufen im Bezirk Mattersburg
- Grundstücke kaufen im Bezirk Gmunden