Sanierungsbedürftiger Altbau beim Meidlinger Bahnhof!
Beschreibung
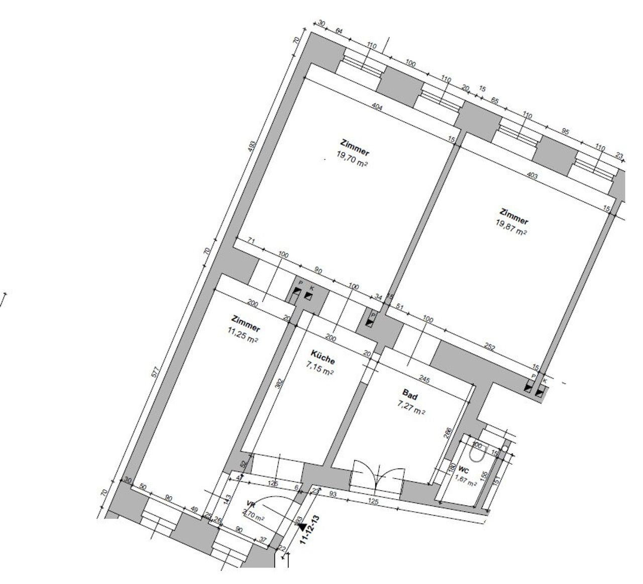
Ein rund 64m2 sanierungsbedürftiger Altbau beim Bahnhof Meidling gelangt zum Verkauf! Die Wohnung liegt im Hochparterre eines gepflegten Altbaus welcher um 1900 erbaut wurde. Die Wohnung bietet viele Gestaltungsmöglichkeiten, ist eine Komplettsanierung, jedoch lässt sich mit einer geschickten Planung eine 3 Zimmerwohnung mit Küche und Badezimmer schaffen. Hervorzuheben ist die wirklich ideale öffentliche Anbindung, da sich der Bahnhof Meidling praktischer Weise in unmittelbarer Nähe befindet.
Aufteilung: - Eingangsbereich - 2 große Zimmer - ehemalige Küche - Badezimmer - Kabinett - separate Toilette
Wir weisen darauf hin, dass zwischen dem Vermittler und dem zu vermittelnden Dritten ein familiäres oder...
Ein rund 64m2 sanierungsbedürftiger Altbau beim Bahnhof Meidling gelangt zum Verkauf! Die Wohnung liegt im Hochparterre eines gepflegten Altbaus welcher um 1900 erbaut wurde. Die Wohnung bietet viele Gestaltungsmöglichkeiten, ist eine Komplettsanierung, jedoch lässt sich mit einer geschickten Planung eine 3 Zimmerwohnung mit Küche und Badezimmer schaffen. Hervorzuheben ist die wirklich ideale öffentliche Anbindung, da sich der Bahnhof Meidling praktischer Weise in unmittelbarer Nähe befindet.
Aufteilung:
- Eingangsbereich
- 2 große Zimmer
- ehemalige Küche
- Badezimmer
- Kabinett
- separate Toilette
Wir weisen darauf hin, dass zwischen dem Vermittler und dem zu vermittelnden Dritten ein familiäres oder wirtschaftliches Naheverhältnis besteht.
Der Vermittler ist als Doppelmakler tätig.
Infrastruktur / Entfernungen
Gesundheit
Arzt <500m
Apotheke <500m
Klinik <500m
Krankenhaus <1.000m
Kinder & Schulen
Schule <500m
Kindergarten <500m
Universität <1.000m
Höhere Schule <500m
Nahversorgung
Supermarkt <500m
Bäckerei <500m
Einkaufszentrum <500m
Sonstige
Geldautomat <500m
Bank <500m
Post <500m
Polizei <500m
Verkehr
Bus <500m
U-Bahn <500m
Straßenbahn <500m
Bahnhof <500m
Autobahnanschluss <2.500m
Angaben Entfernung Luftlinie / Quelle: OpenStreetMap
Objektdaten
Ausstattung
- Etage Heizung
- Befeuerung mit Gas
Zustand
- Zustand
- SANIERUNGSBEDUERFTIG
- Baujahr
- 1900
- Alter
- ALTBAU
- HWB
- 159.9 kWh/m² pro Jahr
- Klasse HWB
- E
- fGEE
- 3.63
- Klasse fGEE
- F
Flächen
- Anzahl der Zimmer
- 3
- Anzahl der sep. WCs
- 1
- Wohnfläche
- 64m²
Kosten
- Kaufpreis Brutto
- € 189.500,00
- Betriebskosten
- € 141,90
- Sonstige Kosten
- € 68,19
Wohnungen zum Kaufen in Österreich
- Bezirk Gemeindebezirk Meidling
- Bezirk Gemeindebezirk Meidling
- Bezirk Gemeindebezirk Meidling
- Bezirk Gemeindebezirk Hietzing
- Bezirk Gemeindebezirk Hietzing
- Bezirk Gemeindebezirk Hietzing
- Bezirk Gemeindebezirk Rudolfsheim-Fünfhaus
- Bezirk Gemeindebezirk Rudolfsheim-Fünfhaus
- Bezirk Gemeindebezirk Rudolfsheim-Fünfhaus
- Bezirk Gemeindebezirk Margareten
Wohnungen zum Kaufen in Österreich
Wohnungen zum Kaufen in Österreich
Andere Besucher suchen nach...
- Grundstücke kaufen in 3400 Weidlingbach
- Wohnungen kaufen in 4663 Laakirchen
- Häuser in 7471 Rechnitz
- Wohnungen in 2410 Hainburg an der Donau
- Häuser kaufen in 2432 Schwadorf
- Wohnungen kaufen in 3002 Purkersdorf
- Häuser in 3150 Wilhelmsburg
- Wohnungen kaufen in 3470 Engelmannsbrunn
- Grundstücke kaufen im Bezirk Mattersburg
- Grundstücke kaufen im Bezirk Gmunden