Mehrparteienhaus mit Donaupanorama – Rendite sichern und/oder selbst nutzen
Beschreibung
Dieses vielseitige Mehrparteienhaus besteht aus 3 vermieteten Wohneinheiten sowie zusätzlichen Räumen mit weiterem Ausbaupotenzial (z. B. zusätzliche Wohnung im Dachgeschoss uvm.). Es eignet sich sowohl als Renditeobjekt, als auch für Eigennutzer, die Wohnen, Gewerbe und Vermieten kombinieren möchten. Die derzeitigen Mieteinnahmen belaufen sich auf etwa € 1.300,- pro Monat. Diese Einnahmen können durch Vermietung der Leerstände, Aus- und Umbaupotenzial etc. deutlich aufgebessert werden.
Das Gebäude wurde ursprünglich als Geschäftshaus errichtet und im Laufe der letzten Jahre in mehreren Etappen saniert. Die tragende Bauweise ist massiv, das Dachgeschoss und Teile des Innenbereichs wurden modernisiert. Die Immobilie befindet sich in gepflegtem Zustand....
Dieses vielseitige Mehrparteienhaus besteht aus 3 vermieteten Wohneinheiten sowie zusätzlichen Räumen mit weiterem Ausbaupotenzial (z. B. zusätzliche Wohnung im Dachgeschoss uvm.). Es eignet sich sowohl als Renditeobjekt, als auch für Eigennutzer, die Wohnen, Gewerbe und Vermieten kombinieren möchten. Die derzeitigen Mieteinnahmen belaufen sich auf etwa € 1.300,- pro Monat. Diese Einnahmen können durch Vermietung der Leerstände, Aus- und Umbaupotenzial etc. deutlich aufgebessert werden.
Das Gebäude wurde ursprünglich als Geschäftshaus errichtet und im Laufe der letzten Jahre in mehreren Etappen saniert. Die tragende Bauweise ist massiv, das Dachgeschoss und Teile des Innenbereichs wurden modernisiert. Die Immobilie befindet sich in gepflegtem Zustand. Die Beheizung erfolgt über eine Luftwärmepumpe (Bj. 2020) – damit bleiben die Betriebskosten niedrig und nachhaltige Energieversorgung ist gegeben. Ausbaureserve: Dachgeschoss (potenziell nutzbar)
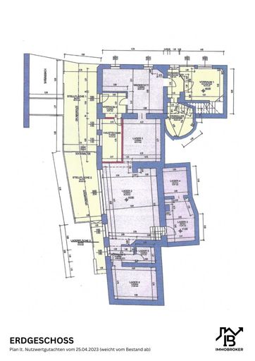
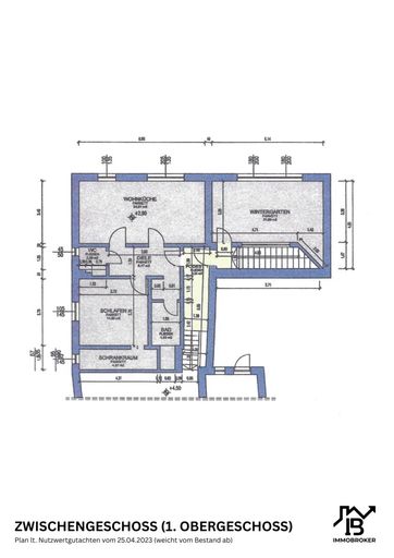
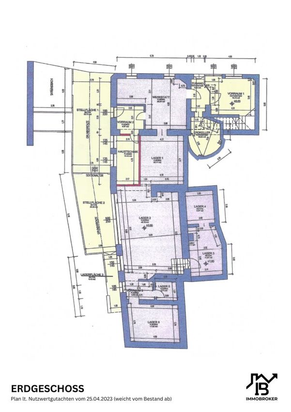
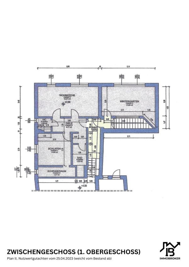
Raumaufteilung:
Top 1 im 1. OG (ca. 80 m²): Diele, Wohnküche, Schlafzimmer, Bad/WC, Wintergarten
Top 2 im Zwischengeschoss (ca. 61 m² + 30 m² Terrasse): Küche, Wohnzimmer, Schlafzimmer, Bad/WC
Top 3 ausbaubar im 2. OG (ca. 60 m²): Diele, Küche, Bad/WC, Wohnzimmer, Schlafzimmer + Südbalkon (derzeit nicht so ausgeführt)
Top 4 im DG (ca. 30m²)
Top 5 im EG (ca. 144 m²): Vorraum, Werkstätte, Lager / Einstellraum (derzeit nicht genutzt)
Dachgeschoss ausbaubar
Außenbereich:
Südterrasse mit Donaublick
Überdachte Terrasse zum Bach/Wald
Die Immobilie bietet eine außergewöhnliche Kombination aus Rendite, Wohnqualität und Naturlage mit Donaublick.
Der Vermittler ist als Doppelmakler tätig.
Infrastruktur / Entfernungen
Gesundheit
Arzt <5.000m
Apotheke <6.500m
Kinder & Schulen
Schule <3.500m
Kindergarten <3.500m
Nahversorgung
Supermarkt <3.500m
Bäckerei <3.500m
Sonstige
Bank <5.000m
Geldautomat <5.000m
Post <3.500m
Polizei <7.000m
Verkehr
Bus <500m
Bahnhof <500m
Angaben Entfernung Luftlinie / Quelle: OpenStreetMap
Objektdaten
Ausstattung
- Luftwärmepumpe
- Ausrichtung Balkon/Terrasse - Südwest
- Satteldach
- Massiv Bauweise
Dokumente / Links
Zustand
- Zustand
- MODERNISIERT
- Baujahr
- 1900
- Alter
- ALTBAU
- HWB
- 140.6 kWh/m² pro Jahr
- Klasse HWB
- E
- fGEE
- 1.63
- Klasse fGEE
- C
Flächen
- Anzahl der Zimmer
- 8
- Anzahl der Terrassen
- 2
- Wohnfläche
- 231m²
- Nutzfläche
- 404m²
- Lagerfläche
- 118m²
- Grundstücksfläche
- 493m²
- Kellerfläche
- 10m²
- Terrassenfläche
- 2m²
Kosten
- Kaufpreis Brutto
- € 295.000,00
Verwaltung
- Verfügbar ab
- nach Vereinbarung
Häuser zum Kaufen in Österreich
Häuser zum Kaufen in Österreich
Häuser zum Kaufen in Österreich
Andere Besucher suchen nach...
- Grundstücke kaufen in 3400 Weidlingbach
- Wohnungen kaufen in 4663 Laakirchen
- Häuser in 7471 Rechnitz
- Wohnungen in 2410 Hainburg an der Donau
- Häuser kaufen in 2432 Schwadorf
- Wohnungen kaufen in 3002 Purkersdorf
- Häuser in 3150 Wilhelmsburg
- Wohnungen kaufen in 3470 Engelmannsbrunn
- Grundstücke kaufen im Bezirk Mattersburg
- Grundstücke kaufen im Bezirk Gmunden