ERSTBEZUG! Eigenheim mit 189 m2 in Ziegelmassivbauweise in ruhiger Grünruhelage in Wiennähe!
-
Erstbezug
-
2022
-
sofort
Beschreibung
ERSTBEZUG, Doppelhaushälfte in Untermauerbach in absoluter Grünruhelage! Haus 3A
+ Ziegelmassivbauweise + Eigengrund mit 2 Parkplätzen vor der Tür + Fussbodenheizung mittels effizienter Vaillant Erdwärmepumpe + Fussbodenkühlung mittels Erdwärmepumpe + Schlüsselfertig plus, inklusive Küche, Badezimmerausstattung und Zentralstaubsauger + 5 Zimmer, 189,07 m² Wohnnutzfläche, 27,51 m² Terrasse, 12,50 m2 Balkon, 80,87 m² Garten + bereits fertiggestellt und sofort bezugsbereit!
Verkauft wird eine Doppelhaushälfte in Ziegelmassivbauweise auf einem Eigengrund in Untermauerbach welche neu errichtet wurde. Das Haus verfügt über 5 Zimmer und die Wohnfläche beläuft sich auf 189,07 m2 aufgeteilt auf drei Geschosse. Der Garten ist 80,87 m2 groß. Das Haus...
ERSTBEZUG, Doppelhaushälfte in Untermauerbach in absoluter Grünruhelage! Haus 3A
+ Ziegelmassivbauweise
+ Eigengrund mit 2 Parkplätzen vor der Tür
+ Fussbodenheizung mittels effizienter Vaillant Erdwärmepumpe
+ Fussbodenkühlung mittels Erdwärmepumpe
+ Schlüsselfertig plus, inklusive Küche, Badezimmerausstattung und Zentralstaubsauger
+ 5 Zimmer, 189,07 m² Wohnnutzfläche, 27,51 m² Terrasse, 12,50 m2 Balkon, 80,87 m² Garten
+ bereits fertiggestellt und sofort bezugsbereit!
Verkauft wird eine Doppelhaushälfte in Ziegelmassivbauweise auf einem Eigengrund in Untermauerbach welche neu errichtet wurde. Das Haus verfügt über 5 Zimmer und die Wohnfläche beläuft sich auf 189,07 m2 aufgeteilt auf drei Geschosse. Der Garten ist 80,87 m2 groß. Das Haus ist bereits fertiggestellt und wird schlüsselfertig übergeben.
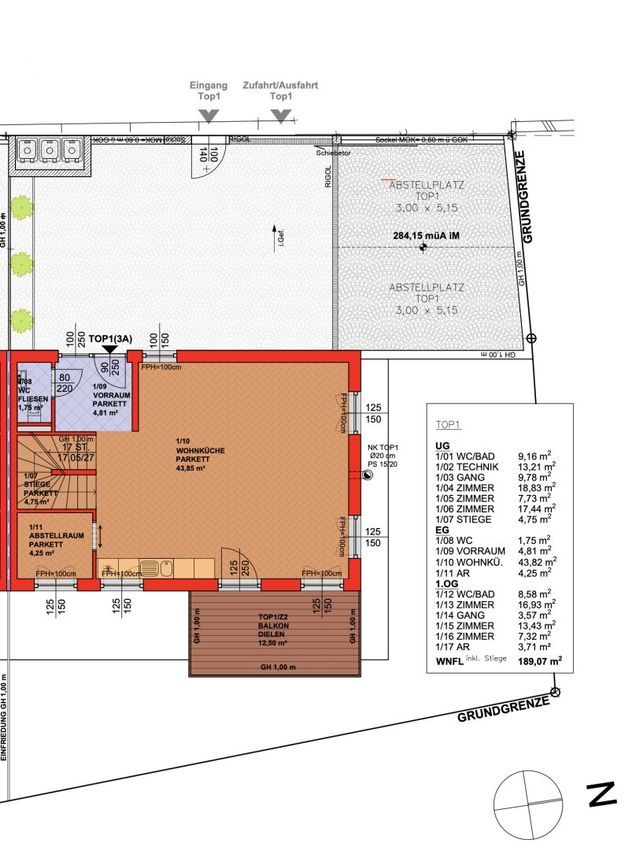
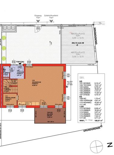
Das Haus teilt sich wie folgt auf:
Erdgeschoß mit 59,41 m2:
- ein großzügiger Eingangsbereich
- eine 43,85 m2 große Wohnküche mit Ausgang zum 12,50 m2 großen Balkon
- ein separate Toilette mit Handwaschbecken
- ein Abstellraum/ Speisekammer
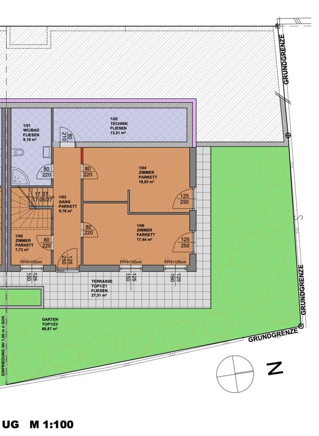
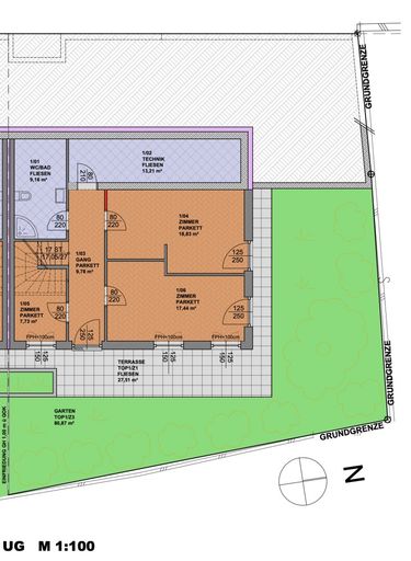
Im 76,15 m2 großen Untergeschoss:
- ein geräumiger Flur von dem aus alle Räume separat begehbar sind
- ein 18,83 m2 großes, helles Schlafzimmer mit Zugang zur 27,51 m2 großen Terrasse und 88,87 m2 großen Garten
- ein weiteres zirka 17,44 m2 großes Schlaf- oder Arbeitszimmer
- ein geräumiges Badezimmer mit Dusche, Toilette und Platz für eine Sauna
- ein 13,21 m2 großer Technikraum mit 375 Liter Warmwasserspeicher und Zentralstaubsauger
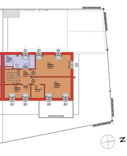
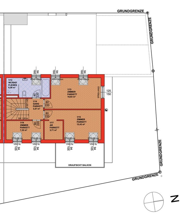
Im 53,54 m2 großen Obergeschoss:
- ein 13,43 m2 Arbeits- oder Schlafzimmer
- ein Abstellraum bzw. Garderobe
- ein geräumiges Badezimmer mit Dusche, Badewanne und Toilette
- ein weiteres 16,93 m2 großes Schlafzimmer
Es sind 2 Autoabstellplätze vorhanden. Die Beheizung und Kühlung erfolgt über eine Fußbodenheizung bzw. Fussbodenkühlung mit einer effizienten Erdwärmepumpe von Vaillant. Ein 375 Liter Warmwasserspeicher ist installiert. Der genannte Kaufpreis von 799.000,- Euro versteht sich schlüsselfertig inklusive Küche. Die Aufschliessungskosten sind bereits bezahlt.
Infrastruktur:
Die Lage des Hauses ist als absolute Ruhelage in einer Wohnsiedlung zu bezeichnen. Der nächstgelegene Bahnhof befindet sich 4,5 km entfernt und ist der Bahnhof Hadersdorf ( Schnellbahn 50) im 14. Wiener Gemeindebezirk. Supermärkte, Billa und Spar befindet sich auf der Hauptstraße in Mauerbach. Der nächstgelegene Kindergarten und die Volksschule sowie die nächste Apotheke befinden sich ebenfalls in Mauerbach, 4 Autominuten entfernt. Das Einkaufszentrum Auhof und die A1 Westautobahn ist in 10 Autominuten erreichbar.
Öffentliche Verkehrsmittel: Bus 450, Bus 458, Bahnhof Hadersdorf in 4,5 km erreichbar, Schnellbahn S50 Richtung U4 Hütteldorf, U3,U6 Westbahnhof
Kaufpreis schlüsselfertig: 799.000,-
Vertragserrichtung: Dr. Wirrer, Laudongasse 20/2, 1080 Wien
Provision: 3% zzgl. MwSt
Verfügbare Einheiten:
Haus 3A: 189,07 m² Wohnnutzfläche, 27,51 m² Terrasse, 12,50 m2 Balkon, 80,87 m² Garten
Haus 3B: VERKAUFT
Kontakt und Besichtigungstermine
Für weitere Fragen oder einen unverbindlichen und kostenlosen Besichtigungstermin kontaktieren Sie gleich Herr Bigus unter 0699 / 12 47 15 92 oder per E-Mail bigus@immobilienquartier.at oder Herr Uyar unter 0699 / 17 1059 18 oder per E-Mail uyar@immobilienquartier.at.
Ich bitte um schriftliche Anfragen mit vollständiger Angabe Ihrer Kontaktdaten ( Name, Adresse, Telefonnummer).
Der Vermittler ist als Doppelmakler tätig.
Infrastruktur / Entfernungen
Gesundheit
Arzt <1.000m
Apotheke <1.000m
Klinik <8.000m
Krankenhaus <7.000m
Kinder & Schulen
Schule <3.500m
Kindergarten <3.500m
Universität <4.500m
Höhere Schule <10.000m
Nahversorgung
Supermarkt <1.000m
Bäckerei <2.500m
Einkaufszentrum <4.500m
Sonstige
Geldautomat <2.000m
Bank <2.000m
Post <2.500m
Polizei <1.000m
Verkehr
Bus <500m
Straßenbahn <6.500m
U-Bahn <7.000m
Bahnhof <4.000m
Autobahnanschluss <5.000m
Angaben Entfernung Luftlinie / Quelle: OpenStreetMap
Objektdaten
Ausstattung
- Gartennutzung
- Wasch-/Trockenraum
- Rolladen
- Gäste-WC
- Kabelkanäle
- Bad mit Dusche
- Bad mit Badewanne
- Bad mit Fenster
- Offene Küche
- Fliesenboden
- Parkettboden
- Fußbodenheizung
- Erdwärme
- Mansarddach
- Neubaustandard
Zustand
- Zustand
- ERSTBEZUG
- Baujahr
- 2022
- Alter
- NEUBAU
- HWB
- 45.2 kWh/m² pro Jahr
- Klasse HWB
- B
- fGEE
- 0.78
- Klasse fGEE
- A
Flächen
- Anzahl der Zimmer
- 5
- Anzahl der Badezimmer
- 2
- Anzahl der sep. WCs
- 3
- Anzahl der Balkone
- 1
- Anzahl der Terrassen
- 1
- Stellplätze
- 2
- Wohnfläche
- 189m²
- Gartenfläche
- 81m²
- Terrassenfläche
- 1m²
Kosten
- Kaufpreis Brutto
- € 799.000,00
- Betriebskosten
- € 130,00
Verwaltung
- Verfügbar ab
- sofort
Häuser zum Kaufen im Umkreis von Mauerbach
- Bezirk Gemeindebezirk Ottakring
- Bezirk Gemeindebezirk Ottakring
- Bezirk Gemeindebezirk Ottakring
- Bezirk Gemeindebezirk Hernals
- Bezirk Gemeindebezirk Hernals
- Bezirk Gemeindebezirk Hernals
- Bezirk Gemeindebezirk Penzing
- Bezirk Gemeindebezirk Penzing
- Bezirk Gemeindebezirk Penzing
- Bezirk Gemeindebezirk Währing
Häuser zum Kaufen im Umkreis von Mauerbach
Häuser zum Kaufen in Österreich
Andere Besucher suchen nach...
- Grundstücke kaufen in 3400 Weidlingbach
- Wohnungen kaufen in 4663 Laakirchen
- Häuser in 7471 Rechnitz
- Wohnungen in 2410 Hainburg an der Donau
- Häuser kaufen in 2432 Schwadorf
- Wohnungen kaufen in 3002 Purkersdorf
- Häuser in 3150 Wilhelmsburg
- Wohnungen kaufen in 3470 Engelmannsbrunn
- Grundstücke kaufen im Bezirk Mattersburg
- Grundstücke kaufen im Bezirk Gmunden