| Exklusive Villa am Bartberg in Pressbaum | Panoramablick auf den Wienerwaldsee & direkte Waldrandlage | Belagsfertig |
-
Erstbezug
Beschreibung
Panoramablick auf den Wienerwaldsee & direkte Waldrandlage
In absoluter Premiumlage am Bartberg in Pressbaum entsteht diese außergewöhnliche Villa – ein architektonisches Statement in einer der exklusivsten Wohnlagen des Wienerwaldes.
Erhöht, sonnig und uneinsehbar gelegen, genießen Sie von den oberen Ebenen einen eindrucksvollen Blick Richtung Wienerwaldsee, während hinter dem Grundstück unmittelbar der Wienerwald anschließt. Kein Gegenüber, keine spätere Verbauung – nur Wald, Ruhe und Weite.
Nur rund 20 Minuten von Wien entfernt vereint diese Liegenschaft urbanen Komfort mit naturnaher Exklusivität.
Die Lage – eine der besten Adressen in Pressbaum
Der Bartberg gilt als privilegierte Wohnlage mit besonderer...
Panoramablick auf den Wienerwaldsee & direkte Waldrandlage
In absoluter Premiumlage am Bartberg in Pressbaum entsteht diese außergewöhnliche Villa – ein architektonisches Statement in einer der exklusivsten Wohnlagen des Wienerwaldes.
Erhöht, sonnig und uneinsehbar gelegen, genießen Sie von den oberen Ebenen einen eindrucksvollen Blick Richtung Wienerwaldsee, während hinter dem Grundstück unmittelbar der Wienerwald anschließt. Kein Gegenüber, keine spätere Verbauung – nur Wald, Ruhe und Weite.
Nur rund 20 Minuten von Wien entfernt vereint diese Liegenschaft urbanen Komfort mit naturnaher Exklusivität.
Die Lage – eine der besten Adressen in Pressbaum
Der Bartberg gilt als privilegierte Wohnlage mit besonderer Topografie und Fernblick.
Besondere Merkmale:
Erhöhte Aussichtslage mit Weitblick Richtung Wienerwaldsee
Direkte Angrenzung an den Wienerwald
Absolute Grünruhelage
Sonnige Ausrichtung
Maximale Privatsphäre
Hier beginnt die Natur direkt hinter Ihrem Garten.
Die Villa – Großzügigkeit auf drei Ebenen
Die Villaüberzeugt mit beeindruckenden Flächen:
Wohnnutzfläche: ca. 206,84 m²
Terrassenflächen gesamt: ca. 93,36 m²
Balkone: ca. 9,87 m²
Garten: ca. 202,66 m²
Grundstücksgröße: 400 m²
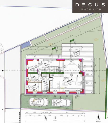
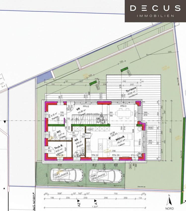
Bereits im Erdgeschoss beeindruckt der großzügige Wohn- und Essbereich mit rund 40 m² und direktem Zugang zur weitläufigen Terrasse (ca. 41 m²).
Im Obergeschoss erwarten Sie mehrere Schlafzimmer, ein Masterbereich mit eigenem Bad und Ankleideraum sowie zusätzliche Balkone und Terrassen.
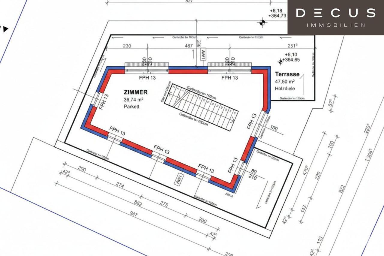
Das Dachgeschoss bietet ein außergewöhnliches, rund 36 m² großes Zimmer mit Zugang zur spektakulären Dachterrasse (ca. 47 m²) – ein privater Rückzugsort mit Panorama.
Architektur & Ausstattung auf hohem Niveau
Energieeffiziente Bauweise
Luftwärmepumpe mit Fußbodenheizung und -kühlung
Ziegelmassivbauweiße (Wienerberger Ziegel)
3-fach verglaste Alu/Alu-Fenster
Extensiv begrüntes Flachdach
Zwei Stellplätze auf Eigengrund
Hochwertige Parkett- und Fliesenböden
Belagsfertig
Die klare, moderne Architektur mit großzügigen Glasflächen bringt Licht, Weite und Natur in den Wohnraum.
Ein Lebensgefühl zwischen See & Wald
Diese Villa ist mehr als eine Immobilie – sie ist ein Rückzugsort für Menschen, die Ruhe, Privatsphäre und eine besondere Lage schätzen.
Der Blick Richtung Wienerwaldsee, die unmittelbare Nähe zum Wald und die erhöhte Aussichtslage verleihen dieser Liegenschaft eine nachhaltige Wertigkeit, die in dieser Form kaum mehr verfügbar ist.
Für Fragen oder weitere Informationen stehe ich Ihnen gerne telefonisch unter
+43 660 531 74 20 oder per E-Mail an zangger@decus.at zur Verfügung.
Hinweis gemäß Energieausweisvorlagegesetz: Ein Energieausweis wurde vom Eigentümer bzw. Verkäufer, nach unserer Aufklärung über die generell geltende Vorlagepflicht, sowie Aufforderung zu seiner Erstellung noch nicht vorgelegt. Daher gilt zumindest eine dem Alter und der Art des Gebäudes entsprechende Gesamtenergieeffizienz als vereinbart. Wir übernehmen keinerlei Gewähr oder Haftung für die tatsächliche Energieeffizienz der angebotenen Immobilie.
Wir weisen darauf hin, dass zwischen dem Vermittler und dem zu vermittelnden Dritten ein familiäres oder wirtschaftliches Naheverhältnis besteht.
Der Vermittler ist als Doppelmakler tätig.
DECUS Immobilien GmbH – Wir beleben Räume
Für weitere Informationen und Besichtigungen steht Ihnen gerne Herr Gerhard Zangger unter der Mobilnummer +43 660 531 74 20 und per E-Mail unter zangger@decus.at persönlich zur Verfügung.
www.decus.at | office@decus.at
Wichtige Informationen
Bitte beachten Sie, dass per 13.06.2014 eine neue Richtlinie für Fernabsatz- und Auswärtsgeschäfte in Kraft getreten ist.
Ab 1.4.2024 entfallen die Grundbuchs- und Pfandrechtseintragungsgebühren vorübergehend für Eigenheime bis zu einer Bemessungsgrundlage von EUR 500.000,-. Voraussetzung ist das dringende Wohnbedürfnis, ausgenommen davon sind vererbte oder geschenkte Immobilien. Die Befreiung ist jedoch für den Einzelfall zu prüfen, DECUS Immobilien übernimmt hierzu keine Haftung.
Ab 01.07.2023 gilt das Erstauftraggeber-Prinzip bei Wohnungsmietverträgen, ausgenommen davon sind Dienst-/Natural-/Werkswohnungen. Wir dürfen gem. § 17 Maklergesetz darauf hinweisen, dass wir auf die Doppelmaklertätigkeit gem. § 5 Maklergesetz bei Wohnungsmietverträgen verzichten und nur noch einseitig tätig sind (bei den restlichen Vermittlungsarten nicht) und ein wirtschaftliches Naheverhältnis zu unseren Auftraggebern besteht.
Im Falle eines Abschlusses mit Ihnen oder einem von Ihnen namhaft gemachten Dritten bzw. bei beidseitiger Willensübereinstimmung beträgt unser Honorar (lt. Honorarverordnung für Immobilienmakler) 2 Bruttomonatsmieten (BMM) bei Dienst-/Natural-/Werkwohnungen sowie Suchaufträgen, 3 BMM bei Gewerbe-, PKW-, Keller- und Lagermietverträgen sowie bei Kaufobjekten 3 % des Kaufpreises, zuzüglich der gesetzlichen Umsatzsteuer.
Dieses Objekt wird Ihnen unverbindlich und freibleibend angeboten. Oben angeführte Angaben basieren auf Informationen und Unterlagen des Eigentümers und sind unsererseits ohne Gewähr.
Nähere Informationen sowie unsere AGBs und die Nebenkostenübersichtsblatt finden Sie auf unserer Homepage www.decus.at unter "Service" - "Rechtliches zum FAGG" sowie im Anhang der zugesendeten Objekt-Exposés!
Infrastruktur / Entfernungen
Gesundheit
Arzt <500m
Apotheke <1.500m
Klinik <6.000m
Kinder & Schulen
Schule <1.500m
Kindergarten <2.000m
Nahversorgung
Supermarkt <1.500m
Bäckerei <1.500m
Einkaufszentrum <9.500m
Sonstige
Bank <1.500m
Geldautomat <1.500m
Post <1.500m
Polizei <2.500m
Verkehr
Bus <1.000m
Bahnhof <1.500m
Autobahnanschluss <3.000m
Angaben Entfernung Luftlinie / Quelle: OpenStreetMap
Objektdaten
Ausstattung
- Fußbodenheizung
- Luftwärmepumpe
- Flachdach
- Massiv Bauweise
Zustand
- Zustand
- ERSTBEZUG
- Alter
- NEUBAU
Flächen
- Anzahl der Zimmer
- 6.5
- Anzahl der Badezimmer
- 1
- Anzahl der sep. WCs
- 3
- Stellplätze
- 1
- Wohnfläche
- 206m²
- Grundstücksfläche
- 400m²
- Gartenfläche
- 202m²
Kosten
- Kaufpreis Brutto
- € 1.020.000,00
Häuser zum Kaufen im Umkreis von Pressbaum
Häuser zum Kaufen im Umkreis von Pressbaum
Häuser zum Kaufen in Österreich
Andere Besucher suchen nach...
- Grundstücke kaufen in 3400 Weidlingbach
- Wohnungen kaufen in 4663 Laakirchen
- Häuser in 7471 Rechnitz
- Wohnungen in 2410 Hainburg an der Donau
- Häuser kaufen in 2432 Schwadorf
- Wohnungen kaufen in 3002 Purkersdorf
- Häuser in 3150 Wilhelmsburg
- Wohnungen kaufen in 3470 Engelmannsbrunn
- Grundstücke kaufen im Bezirk Mattersburg
- Grundstücke kaufen im Bezirk Gmunden