Der Start ins Familienglück - Moderne Doppelhaushälfte in herrlicher Grünruhelage
-
Erstbezug
-
2026
Beschreibung
In Grünruhelage in einer Sackgasse direkt an Wiesen und Wälder grenzend entsteht ein exklusives Wohnprojekt mit intelligenter Raumplanung. Die Realisierung umfasst ein Doppelhaus mit Terrassen, Gärten und Stellplätzen. Das Haus bietet neben der geräumigen Wohnküche über eine Terrasse mit herrlicher Aussicht sowie noch 3 weitere Zimmer im Obergeschoss. Die Ausführung erfolgt in ökologischer Holz-Massiv Bauweise. Sie haben die Möglichkeit bei der Gestaltung und Raumaufteilung Ihre eigenen Wünsche einzubringen und Ihr Eigenheim somit ganz auf Ihre Bedürfnisse abzustimmen.
Der Einsatz einer Luft-Wärmepumpe zur Heizung und Warmwasseraufbereitung in Kombination mit einer Fußbodenheizung auf allen Ebenen schont die Umwelt, sorgt für...
In Grünruhelage in einer Sackgasse direkt an Wiesen und Wälder grenzend entsteht ein exklusives Wohnprojekt mit intelligenter Raumplanung. Die Realisierung umfasst ein Doppelhaus mit Terrassen, Gärten und Stellplätzen. Das Haus bietet neben der geräumigen Wohnküche über eine Terrasse mit herrlicher Aussicht sowie noch 3 weitere Zimmer im Obergeschoss. Die Ausführung erfolgt in ökologischer Holz-Massiv Bauweise. Sie haben die Möglichkeit bei der Gestaltung und Raumaufteilung Ihre eigenen Wünsche einzubringen und Ihr Eigenheim somit ganz auf Ihre Bedürfnisse abzustimmen.
Der Einsatz einer Luft-Wärmepumpe zur Heizung und Warmwasseraufbereitung in Kombination mit einer Fußbodenheizung auf allen Ebenen schont die Umwelt, sorgt für ein angenehmes Raumklima und spart Betriebskosten.
Bauweise:
In ökologisch, nachhaltiger Holz-Massivbauweise finden Sie ein angenehmes Raumklima nach modernsten Qualitätsstandards vor. Massivholzbauweise oder CLT (Cross-laminate timber) - robuste Wände aus dem nachwachsenden Rohstoff Holz bieten Schutz und eine Vielfalt von Gestaltungsmöglichkeiten. Das Material verfügt über eine ausgezeichnete Speicherfähigkeit für Wärme und stellt damit eine perfekte Grundlage für energieeffizientes Wohnen dar.
Die Errichtung wird durch ein österreichisches Traditionsunternehmen durchgeführt, welches mehr als 25 Jahre Erfahrung im Bereich des Holz-Massivbaus hat und höchste Ansprüche an eine erstklassige Ausführung stellt. Das verarbeitete Holz kommt fast ausschließlich aus dem Waldviertel in Niederösterreich.
Bei Interesse senden wir Ihnen die detaillierte Bau- und Ausstattungsbeschreibung des Objekts. Auf Wunsch kann ein Termin zur Besichtigung eines Musterhauses vereinbart werden.
Raumaufteilung:
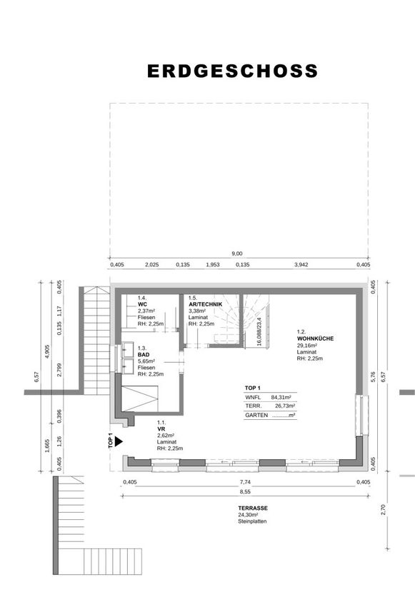
Im Erdgeschoss befindet sich die helle und geräumige Wohnküche mit Ausgang auf die Terrasse, sowie ein voll ausgestattetes Bad mit Dusche. Optional kann auch der Wohn- und Küchenbereich erweitert werden oder ein Arbeitszimmer daraus entstehen.
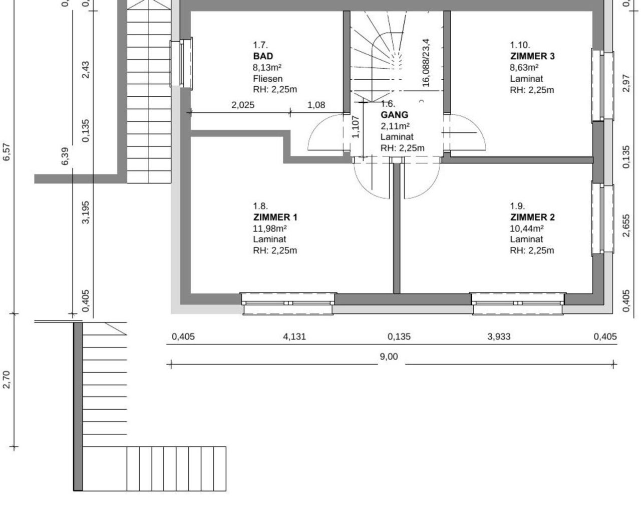
Im Obergeschoss befinden sich 3 Zimmer mit ausreichend Platz zum wohnen für die gesamte Familie. Ein modernes Badezimmer mit Badewanne lässt keine Wünsche offen. Es besteht die Möglichkeit das Bad auch en-suite auszuführen oder eine begehbare Garderobe zurealisieren.
Eine individuelle Anpassung und Gestaltung der Raumaufteilung ist ganz nach ihren Wünschen möglich.
Abwicklung:
Das Projekt wird nach BTVG (Bauträgervertragsgesetz) abgewickelt wodurch Sie die Sicherheit einer treuhändischen Abwicklung der Zahlung haben.
Highlights:
- Doppelhaushälfte in der beschaulicher Grünruhelage
- hochwertiger und nachhaltige Holz-Massivbauweise für ein angenehmes Wohnklima
- lokale Ressourcen - Holz aus Niederösterreich
- modernes Raumkonzept - individuelle Gestaltung nach Ihren Wünschen möglich
- sonnige Terrasse in herrlicher Aussichtslage
- sehr gute Verkehrsanbindung nach Wien / St.Pölten
- energieeffiziente Luft-Wasser-Wärmepumpe
- Fußbodenheizung in allen Räumen
- Kunststoff-Alu-Fenster 3 fach verglast
- Vorbereitung Photovoltaikanlage
- elektrische Rollläden auf Wunsch möglich
- schlüsselfertige Ausführung auf Wunsch möglich
Bei Interesse, weiteren Fragen oder dem Wunsch nach einer Besichtigung, stehen wir Ihnen gerne und jederzeit zur Verfügung.
Alle Angaben wurden uns direkt vom Eigentümer sowie der Gemeinde Eichgraben zur Verfügung gestellt, eine Haftung für deren Richtig- oder Vollständigkeit können wir daher nicht übernehmen.
Wir weisen darauf hin, dass zwischen dem Vermittler und dem zu vermittelnden Dritten ein familiäres oder wirtschaftliches Naheverhältnis besteht.
Der Vermittler ist als Doppelmakler tätig.
Infrastruktur / Entfernungen
Gesundheit
Arzt <500m
Apotheke <1.000m
Klinik <9.500m
Kinder & Schulen
Schule <1.000m
Kindergarten <1.000m
Nahversorgung
Supermarkt <1.000m
Bäckerei <1.000m
Sonstige
Bank <1.000m
Geldautomat <1.000m
Post <1.000m
Polizei <5.000m
Verkehr
Bus <500m
Autobahnanschluss <2.000m
Bahnhof <1.500m
Angaben Entfernung Luftlinie / Quelle: OpenStreetMap
Objektdaten
Zustand
- Zustand
- ERSTBEZUG
- Baujahr
- 2026
- Alter
- NEUBAU
Flächen
- Wohnfläche
- 84m²
- Gartenfläche
- 84m²
Kosten
- Kaufpreis Brutto
- € 395.000,00
Häuser zum Kaufen im Umkreis von Eichgraben
Häuser zum Kaufen in Österreich
Andere Besucher suchen nach...
- Immobilien kaufen in 2601 Sollenau
- Immobilien in 4951 Polling im Innkreis, Oberösterreich
- Immobilien in 4742 Pram, Oberösterreich kaufen oder mieten
- Häuser kaufen in 2340 Mödling, Niederösterreich
- Häuser kaufen in 9421 Gemmersdorf, Kärnten
- Wohnungen / Eigentumswohnungen kaufen in 9431 St. Stefan, Kärnten
- Häuser kaufen in Bruck an der Leitha, Niederösterreich
- Immobilien mieten in Krems an der Donau, Niederösterreich
- Häuser zum Kaufen im Bezirk St. Pölten Land, Niederösterreich
- Büro / Praxen mieten in Rohrbach, Oberösterreich