großzügiges Wohnhaus in ruhiger Lage
Beschreibung
Zum Verkauf gelangt ein geräumiges - zwischen 1977 und 1990 erbautes und ausgebautes - Ein/Mehrfamilienhaus in angenehm ruhiger Lage, umgeben von einigen Weinkellern. Gegenüberliegendes Grundstück - mit Garage und Werkstatt - gehört zum Objekt und befindet sich in Hanglage.
Ein weiteres Grundstück (ehem. Weingarten) befindet sich hinter dem Haus in erhöhter Lage - ca. 1.000 m² groß. Das würde sich auch zum Solarausbau für eigene Stromerzeugung bestens eignen. Dieses Grundstück ist auch im angebotenen Kaufpreis enthalten.
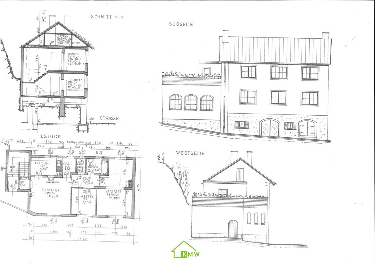
Dieses Haus besteht aus Erdgeschoß , Obergeschoß, gewölbten ehem. Weinkeller, Terrasse. Gegenüber befindet sich eine dazugehörige Garage mit Werkstatt (ca. 30m²)
Es besteht...
Zum Verkauf gelangt ein geräumiges - zwischen 1977 und 1990 erbautes und ausgebautes - Ein/Mehrfamilienhaus in angenehm ruhiger Lage, umgeben von einigen Weinkellern. Gegenüberliegendes Grundstück - mit Garage und Werkstatt - gehört zum Objekt und befindet sich in Hanglage.
Ein weiteres Grundstück (ehem. Weingarten) befindet sich hinter dem Haus in erhöhter Lage - ca. 1.000 m² groß. Das würde sich auch zum Solarausbau für eigene Stromerzeugung bestens eignen. Dieses Grundstück ist auch im angebotenen Kaufpreis enthalten.
Dieses Haus besteht aus Erdgeschoß , Obergeschoß, gewölbten ehem. Weinkeller, Terrasse. Gegenüber befindet sich eine dazugehörige Garage mit Werkstatt (ca. 30m²)
Es besteht die Möglichkeit in jeder Etage eine eigene Wohneinheit zu nutzen.
EG: Vorraum mit Essecke, Hausbar, WC, Küche, 2 Zimmer, Bad mit WC.
OG: Vorraum, 3 Zimmer, Küche, Bad (Dusche), WC, Abstellraum, Pergola, Terrasse
Fenster: 2fach Verglasung
Heizung: Zentralheizung mit Gas
Anschlüsse: Kanal, Wasser, Strom, Gas, Telefon
Ich freue mich auf Ihre Anfrage!
Der Vermittler ist als Doppelmakler tätig.
Infrastruktur / Entfernungen
Gesundheit
Arzt <2.000m
Apotheke <3.000m
Klinik <3.000m
Krankenhaus <9.000m
Kinder & Schulen
Schule <2.000m
Kindergarten <2.000m
Höhere Schule <8.500m
Universität <10.000m
Nahversorgung
Supermarkt <3.000m
Bäckerei <3.500m
Einkaufszentrum <9.000m
Sonstige
Bank <2.000m
Geldautomat <2.000m
Post <3.000m
Polizei <3.000m
Verkehr
Bus <500m
Autobahnanschluss <1.000m
Bahnhof <3.500m
Angaben Entfernung Luftlinie / Quelle: OpenStreetMap
Objektdaten
Ausstattung
- Vollmöbliert
Zustand
- Zustand
- GEPFLEGT
- Baujahr
- 1986
- HWB
- 166 kWh/m² pro Jahr
- Klasse HWB
- E
- fGEE
- 2.68
- Klasse fGEE
- E
Flächen
- Anzahl der Zimmer
- 5.5
- Anzahl der Badezimmer
- 2
- Anzahl der sep. WCs
- 3
- Anzahl der Terrassen
- 1
- Wohnfläche
- 170m²
- Grundstücksfläche
- 1.543m²
- Terrassenfläche
- 1m²
Kosten
- Kaufpreis Brutto
- € 277.000,00
Häuser zum Kaufen im Umkreis von Traismauer
Häuser zum Kaufen im Umkreis von Traismauer
Häuser zum Kaufen in Österreich
Andere Besucher suchen nach...
- Grundstücke kaufen in 3400 Weidlingbach
- Wohnungen kaufen in 4663 Laakirchen
- Häuser in 7471 Rechnitz
- Wohnungen in 2410 Hainburg an der Donau
- Häuser kaufen in 2432 Schwadorf
- Wohnungen kaufen in 3002 Purkersdorf
- Häuser in 3150 Wilhelmsburg
- Wohnungen kaufen in 3470 Engelmannsbrunn
- Grundstücke kaufen im Bezirk Mattersburg
- Grundstücke kaufen im Bezirk Gmunden