Exclusive Villa mit Penthouse und Seeblick am Achensee
Beschreibung
Anbei finden Sie den 360° Rundgang: https://tour.partner4immo.at/W516
(sollte der link nicht funktionieren - wird auf manchen Immobilienportalen deaktiviert - bitten wir Sie auf unserer Homepage den Link beim Objekt selbst anzuklicken) : partner4immo.at
Zum Verkauf steht eine luxuriöse und elegante Designervilla mit direktem Seeblick am Achensee.
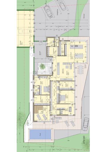
Das 2014 errichtete Gebäude verfügt über eine Gesamtnutzfläche von ca. 528m², welche sich auf zwei getrennten Etagen aufteilen.
Die untere Etage bietet sich als gewerbliche Einheit an, welche als Büro, Arztpraxis, Kanzlei, touristische Vermietung, Firmenresidenz, etc. nutzbar ist. Sie erstreckt sich auf ca. 259m² Nutzfläche welche auch abteilbar wäre.
...Anbei finden Sie den 360° Rundgang: https://tour.partner4immo.at/W516
(sollte der link nicht funktionieren - wird auf manchen Immobilienportalen deaktiviert - bitten wir Sie auf unserer Homepage den Link beim Objekt selbst anzuklicken) : partner4immo.at
Zum Verkauf steht eine luxuriöse und elegante Designervilla mit direktem Seeblick am Achensee.
Das 2014 errichtete Gebäude verfügt über eine Gesamtnutzfläche von ca. 528m², welche sich auf zwei getrennten Etagen aufteilen.
Die untere Etage bietet sich als gewerbliche Einheit an, welche als Büro, Arztpraxis, Kanzlei, touristische Vermietung, Firmenresidenz, etc. nutzbar ist. Sie erstreckt sich auf ca. 259m² Nutzfläche welche auch abteilbar wäre.
Durch die Möglichkeit der Unterteilung, können einzelne Teilbereiche extern vermietet werden, oder es könnten zwei gewerbliche Ferienwohnungen ausgebaut werden.
Aussenparkplätze für Mitarbeiter und Gäste sind vor dem Untergeschoss ausreichend vorhanden.
Im Obergeschoss befindet sich die luxuriöse Penthousewohnung, welche durch die Hanglage direkt begeh- und befahrbar ist, samt Aussenparkplätzen sowie einer 65m² großen Garage für 3 PKW und großer Zusatznutzfläche.
Der Zugang erfolgt über ein geräumiges, teilweise überdachtes Atrium, welches gleichzeitig einen Patio-Treppenzugang zum Untergeschoss beherbergt, sowie einen Zugang zur hinteren Ruheterrasse mit frostsicherer Warmwasser-Aussendusche und atemberaubendem Bergblick.
Über eine private Schmutzschleuse einerseits sowie einem repräsentativen Eingang, gelangt man auf zwei Wegen ins Haus. Hinter beiden Eingängen erwartet den Besucher eine 11m² große Garderobe und ein 11m² großer Entreeflur.
Der enorm großzügige Wohn-Küchenbereich, mit komplett rundum bodentiefen Panoramascheiben, bietet ein unverbaubares und atemberaubendes See- und Bergpanorama.
Seine enorme Größe von 85m² lässt die große Sofalandschaft, den großen Esstisch für 10 Personen und die über 4 Meter mal 1,20m große Küchentheke locker möbliert wirken.
Die Luxusküche bietet viele Features wie Weinkühlschrank, Dampfgahrer, eingebautem Dunstabzug, etc. mit Markengeräten wie Miele und Liebherr.
Eine zusätzliche, abgetrennte Pantryküche samt Speis, komplettiert das luxuriöse Setting.
Im Wohnzimmerbereich verwöhnt die Gäste ein täuschend echtes Gas-Kaminfeuer mit echter Flamme und wohliger Wärme.
Zusätzlich ist noch ein Kachelofen in modernstem Design verbaut welcher mit Holz beheizt wird und ebenfalls eine kuschelige und natürliche Wärme zaubert.
Der Wohnbereich besteht aus 4 Zimmern, alle mit Terrassenzugang und zwei davon mit eigenem Badezimmerzugang. Das ca. 26m² große Gäste- oder Personalzimmer besitzt ein komplettes eigenes Badezimmer mit WC und begehbarer Dusche. Der ca. 21m² große Masterbedroom bietet einen direkten Zugang zum Spabad, mit einer Badewanne in der mitte des Raumes, welche einen Panoramablick auf See und Berge aus den bodentiefen Fenstern ermöglicht. Das Bad verfügt über einen eigenen Terrassenzugang und führt über eine Ankleide direkt weiter in den ca. 25m² großen Saunabereich.
Ein über 13m² großes Büro/Schlafzimmer sowie ein über 16m² großer Hauswirtschaftsraum, welcher auch als Zimmer umfunktioniert werden könnte, komplettieren die obere Etage.
Die ca. 126m² große Terrasse bietet neben dem atemberaubenden Panorama, auch eine Vorbereitung für einen Aussenpool im Aussmass von 7m x 3m, welcher sich direkt vorm Saunabereich befindet.
Die bereits in Beton gegossene Wanne, sowie einiges an Pooltechnik im Untergeschoss, ist bereits vorhanden und vorinstalliert, und müsste nur mit einer Beschichtung oder Edelstahlwanne samt ein wenig Technik komplettiert werden.
Das gesamte Gebäude ist mit modernster Technik ausgestattet, wie BUS-System, Alarmanlage, Brandmeldeanlage, kontrollierter Wohnraumlüftung samt Wärmerückgewinnung, Serverraum, Highspeed Internetanlage, PV Anlage, etc.pp.
Die Fussbodenheizung samt aktiver Wohnraumlüftung bringen dauerhaft und permanent frische Bergluft wohl temperiert in die Räume und erzeugen ein angenehmes Wohlfühlklima.
Daten auf einen Blick:
- ca.528m² Nutzfläche (OG ca. 269m², EG ca. 259m²)
- 4-5 Zimmer Penthouse
- 3 Garagenplätze und über 10 Aussenstellplätze
- Sauna
- BUS-System
- Alarmanlage,
- Wohnraumlüftung
- PV Anlage
- Poolvorbereitung
- ca. 126m² Panoramaterrasse
- Luxusküche
- Pantry
- 3 WC und 2 Badezimmer im OG
- 2 WC im EG
- Kamin
- Designer Kachelofen
- aktive Wohnraumlüftung
Der Vermittler ist als Doppelmakler tätig.
Infrastruktur / Entfernungen
Gesundheit
Arzt <1.000m
Apotheke <4.500m
Klinik <10.000m
Krankenhaus <7.000m
Kinder & Schulen
Schule <500m
Kindergarten <1.000m
Nahversorgung
Supermarkt <1.000m
Bäckerei <1.000m
Einkaufszentrum <8.500m
Sonstige
Bank <1.000m
Geldautomat <1.000m
Post <1.000m
Polizei <4.500m
Verkehr
Bus <500m
Bahnhof <1.000m
Autobahnanschluss <5.500m
Angaben Entfernung Luftlinie / Quelle: OpenStreetMap
Objektdaten
Ausstattung
- Kamin
- Sauna
- Einbauküche
- Pantry Küche
- Fußbodenheizung
- Befeuerung mit Gas
- Solar
- Flachdach
- Massiv Bauweise
Dokumente / Links
Zustand
- Zustand
- NEUWERTIG
- Baujahr
- 2015
- Alter
- NEUBAU
- HWB
- 18.7 kWh/m² pro Jahr
- Klasse HWB
- A
- fGEE
- 1.05
- Klasse fGEE
- C
Flächen
- Anzahl der Zimmer
- 9
- Anzahl der Badezimmer
- 2
- Anzahl der sep. WCs
- 5
- Anzahl der Terrassen
- 1
- Stellplätze
- 8
- Wohnfläche
- 269m²
- Nutzfläche
- 529m²
- Bürofläche
- 260m²
- Grundstücksfläche
- 1.617m²
- Terrassenfläche
- 1m²
Kosten
Verwaltung
- Verfügbar ab
- nach Vereinbarung
- Ferienimmobilie
- Ja
Häuser zum Kaufen im Umkreis von Eben am Achensee
Häuser zum Kaufen im Umkreis von Eben am Achensee
Häuser zum Kaufen in Österreich
Andere Besucher suchen nach...
- Grundstücke kaufen in 3400 Weidlingbach
- Wohnungen kaufen in 4663 Laakirchen
- Häuser in 7471 Rechnitz
- Wohnungen in 2410 Hainburg an der Donau
- Häuser kaufen in 2432 Schwadorf
- Wohnungen kaufen in 3002 Purkersdorf
- Häuser in 3150 Wilhelmsburg
- Wohnungen kaufen in 3470 Engelmannsbrunn
- Grundstücke kaufen im Bezirk Mattersburg
- Grundstücke kaufen im Bezirk Gmunden