Exklusives Neubau-Reihenhaus in Klosterneuburg-Weidling – inkl. 2 Garagenabstellplätze
-
Erstbezug
-
2025
Beschreibung
Inmitten eines der schönsten Ortsteile von Klosterneuburg entsteht ein einzigartiges Wohnprojekt, das modernes Design mit höchstem Wohnkomfort verbindet.
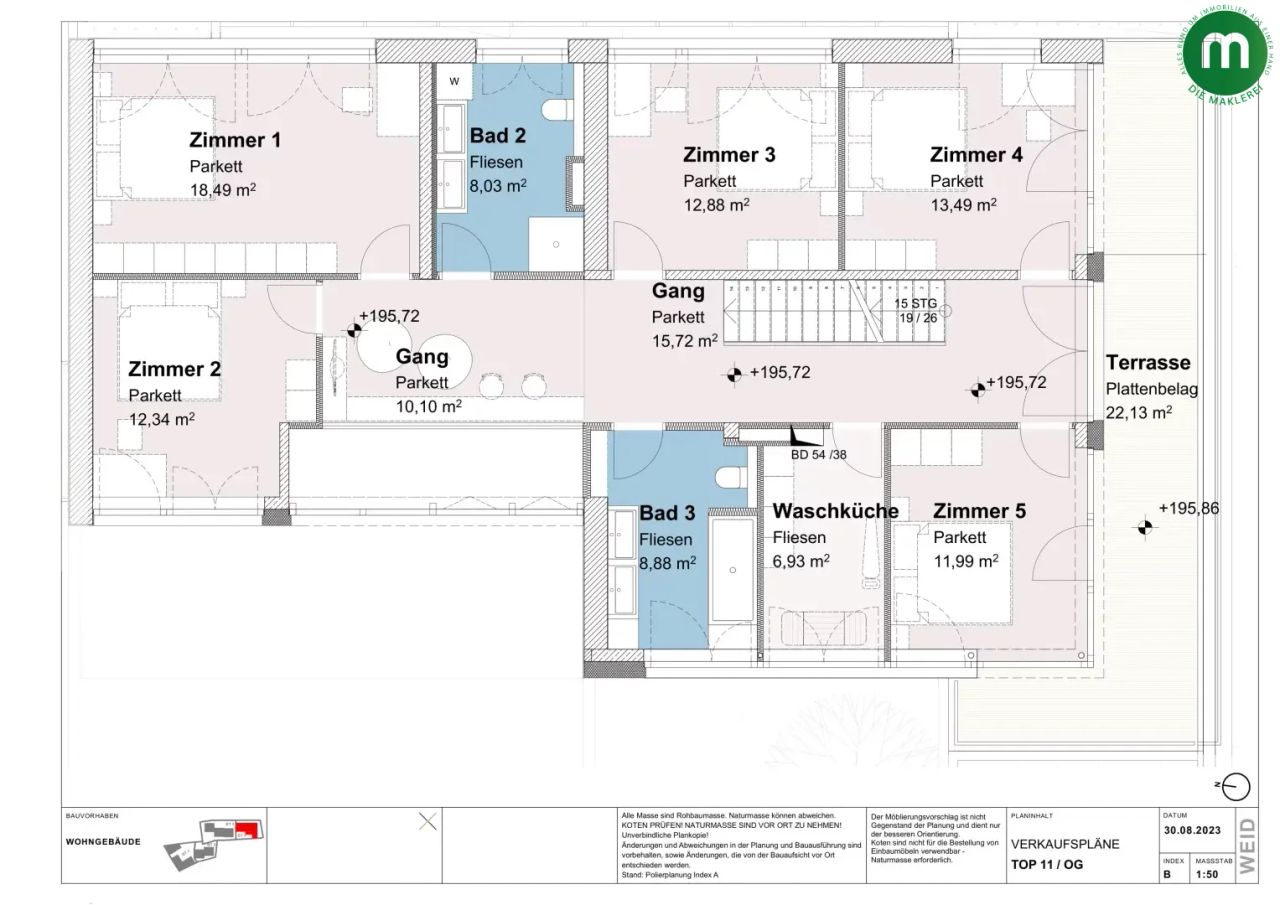
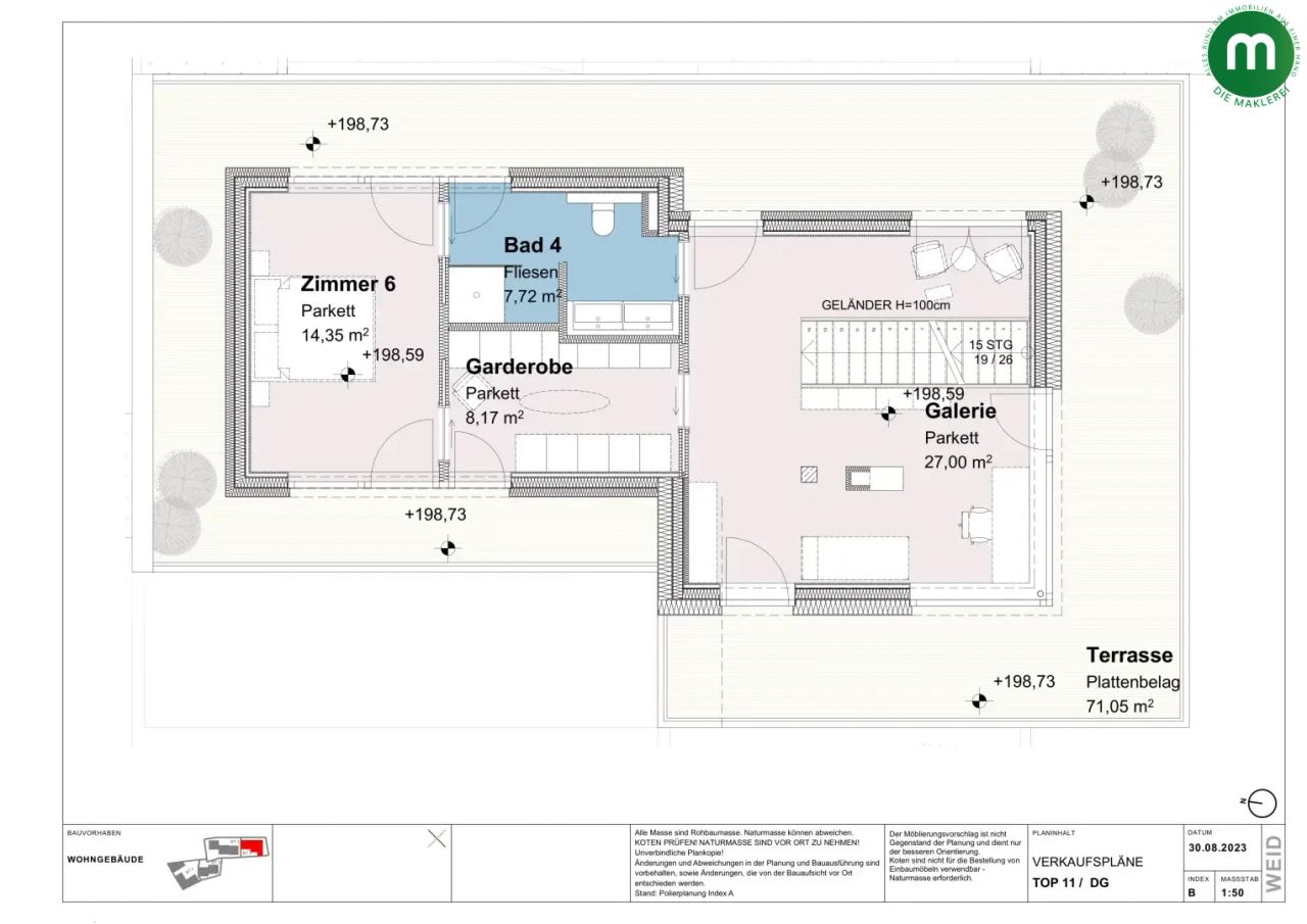
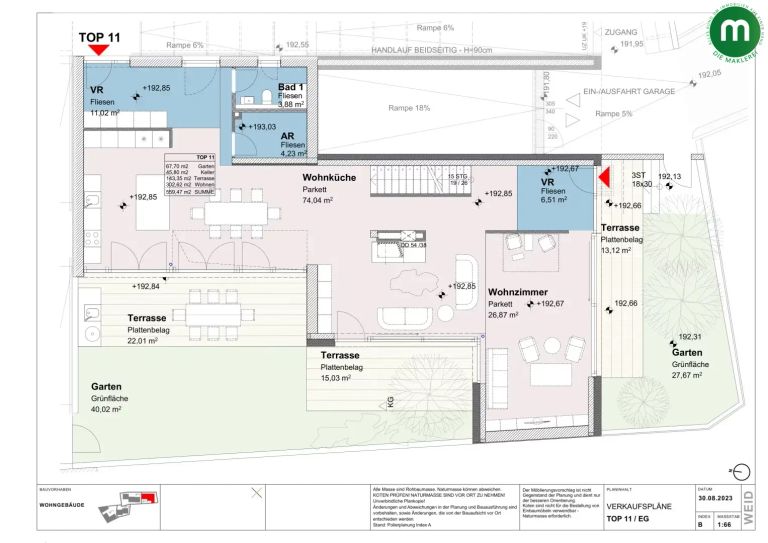
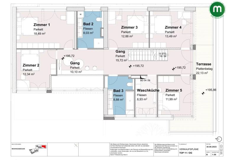
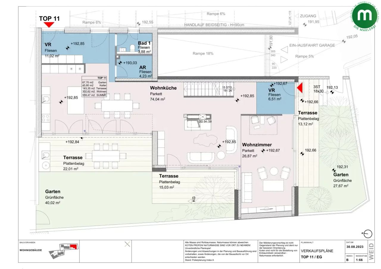
Dieses angebotene freistehende Einfamilienhaus auf Eigengrund in einer Wohnungseigentumsanlage erstreckt sich über drei Etagen plus Keller und besticht mit einer durchdachten Raumaufteilung sowie großzügigen Außenflächen. Mit einer Wohnfläche von über 300 Quadratmetern, 6 Schlafzimmern und einer offenem offenen Wohn- und Küchenbereich von etwa 100 Quadratmetern wird hier ein perfektes Zuhause für Familien oder anspruchsvolle Paare geschaffen. Großzügige Fensterflächen sorgen für lichtdurchflutete Räume, während 5 Terrassen und ein privater Garten mit 67 Quadratmetern genügend Platz für Erholung im Freien bieten. Der ca....
Inmitten eines der schönsten Ortsteile von Klosterneuburg entsteht ein einzigartiges Wohnprojekt, das modernes Design mit höchstem Wohnkomfort verbindet.
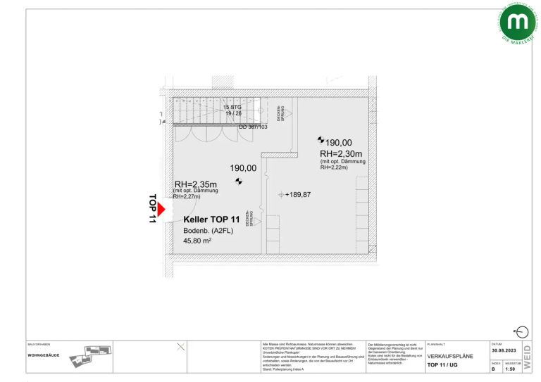
Dieses angebotene freistehende Einfamilienhaus auf Eigengrund in einer Wohnungseigentumsanlage erstreckt sich über drei Etagen plus Keller und besticht mit einer durchdachten Raumaufteilung sowie großzügigen Außenflächen. Mit einer Wohnfläche von über 300 Quadratmetern, 6 Schlafzimmern und einer offenem offenen Wohn- und Küchenbereich von etwa 100 Quadratmetern wird hier ein perfektes Zuhause für Familien oder anspruchsvolle Paare geschaffen. Großzügige Fensterflächen sorgen für lichtdurchflutete Räume, während 5 Terrassen und ein privater Garten mit 67 Quadratmetern genügend Platz für Erholung im Freien bieten. Der ca. 46 Quadratmeter große Keller bietet nicht nur den benötigten Stauraum, sondern ermöglicht auch eine Nutzung als Hobby-, Fitness- oder Wellnessbereich. Als Highlight steht Ihnen im 2. OG eine umlaufende Terrasse zur Verfügung.
Besonders hervorzuheben ist die hochwertige Ausstattung in der schlüsselfertigen Variante, die höchsten Wohnansprüchen gerecht wird. Eichenparkett in den Wohnräumen, edle Feinsteinzeugfliesen in den Bädern und Vorzimmern sowie eine exklusive Sanitärausstattung von Laufen und Grohe garantieren ein stilvolles Ambiente. Eine Fußbodenheizung in allen Räumen sorgt für angenehme Wärme, während elektrische Raffstores auf der Südseite ein angenehmes Raumklima ermöglichen.
Der nachhaltige Bau setzt auf moderne Technik: Eine effiziente Erdwärmeheizung mit Tiefensonden versorgt das Haus mit umweltfreundlicher Energie, während eine ergänzende Photovoltaik-Anlage zusätzlich saubere Wärme bereitstellt.
Zusätzlichen Komfort bieten ein Kinderwagen- und Fahrradabstellraum sowie eine hauseigene Tiefgarage, in welcher 2 Stellplatze im Kaufpreis inkludiert sind. Ein Müllraum in der Nähe des Eingangsbereichs sorgt für praktische Entsorgungsmöglichkeiten.
Das Objekt wird belagsfertig um 2.163.000,- Euro angeboten, sodass Käufer ihre individuelle Ausstattung frei wählen können. Alternativ besteht die Möglichkeit einer schlüsselfertigen Übergabe gemäß der detaillierten Bau- und Ausstattungsbeschreibung zum Preis von 2.290.000,- Euro.
Die Lage zeichnet sich durch ihre Nähe zu grünen Naherholungsgebieten ebenso aus wie durch die gute Erreichbarkeit der Wiener City. Alles Notwendige für den täglichen Bedarf, Bildungseinrichtungen, medizinische Versorgung und ein reichhaltiges Kultur- und Gastronomieangebot finden Sie unmittelbar in Klosterneuburg.
Gemeinsam mit unseren Finanzierungspartnern können wir Ihnen hier maßgeschneiderte Finanzierungsmodelle anbieten.
----
Um Ihre Rechte zu wahren, können nur Anfragen mit vollständigen Kontaktdaten (Name, Adresse, Telefon, E-Mail-Adresse) beantwortet werden.
Vor Ablauf der 14-tägigen Rücktrittsfrist werden wir gerne für Sie tätig, wenn Sie gesetzeskonform (FAGG) uns ausdrücklich (am einfachsten per E-Mail) dazu auffordern.
Wenn der Kaufvertrag nicht zustande kommt, bleibt unsere Tätigkeit für Sie vollkommen kostenlos. Wir weisen auf Ihre 14-tägige Rücktrittsfrist (gemäß § 11 FAGG ) hin.
Vielen Dank!
Nebenkosten lt. Nebenkostenübersicht!
Der Vollständigkeit halber halten wir fest, dass wir Ihnen bei Anmietung/Ankauf eines von uns namhaft gemachten Objektes durch Sie oder einen durch Sie namhaft gemachten Dritten bzw. bei beidseitiger Willensübereinstimmung eine Vermittlungsprovision in der Höhe von 3 Bruttomonatsmieten bei Gewerbeimmobilien, 2 Bruttomonatsmieten bei Wohnimmobilien bzw. 3 % des Kaufpreises zuzüglich der gesetzlichen Umsatzsteuer in Rechnung stellen (Honorarverordnung für Immobilienmakler, BGBl. Nr. 262 und 297/1996).
Dieses Angebot ist unverbindlich und freibleibend. Die Angaben erfolgen aufgrund der Informationen und Unterlagen, die uns vom Eigentümer und/oder Dritten zur Verfügung gestellt werden und sind ohne Gewähr. Im Übrigen gelten die allgemeinen Geschäftsbedingungen sowie die Verordnung des BM für wirtschaftliche Angelegenheiten über Standes- und Ausübungsregeln für Immobilienmakler, BGBl 297/96.
Alle Angaben im Angebot basieren auf Informationen und Unterlagen des Verkäufers und erfolgen nach bestem Wissen, jedoch ohne Gewähr auf Richtigkeit und Vollständigkeit.
Infrastruktur / Entfernungen
Gesundheit
Arzt <500m
Apotheke <2.000m
Klinik <5.000m
Krankenhaus <2.500m
Kinder & Schulen
Schule <500m
Kindergarten <500m
Universität <3.000m
Höhere Schule <6.000m
Nahversorgung
Supermarkt <1.000m
Bäckerei <2.000m
Einkaufszentrum <5.500m
Sonstige
Bank <2.000m
Geldautomat <2.000m
Post <2.000m
Polizei <2.000m
Verkehr
Bus <500m
Straßenbahn <5.000m
U-Bahn <6.500m
Bahnhof <2.500m
Autobahnanschluss <4.500m
Angaben Entfernung Luftlinie / Quelle: OpenStreetMap
Objektdaten
Ausstattung
- Kabel/SAT-TV
- Gäste-WC
- Bad mit Dusche
- Bad mit Badewanne
- Bad mit Fenster
- Fliesenboden
- Parkettboden
- Zentralheizung
- Fußbodenheizung
- Alternative Befeuerung
- Solar
- Erdwärme
- Ausrichtung Balkon/Terrasse - Nord
- Ausrichtung Balkon/Terrasse - Ost
- Ausrichtung Balkon/Terrasse - Süd
- Ausrichtung Balkon/Terrasse - West
- Flachdach
- Massiv Bauweise
Zustand
- Zustand
- ERSTBEZUG
- Baujahr
- 2025
- Alter
- NEUBAU
- HWB
- 32.39 kWh/m² pro Jahr
- Klasse HWB
- B
- fGEE
- 0.78
- Klasse fGEE
- A
Flächen
- Anzahl der Zimmer
- 7.5
- Anzahl der Badezimmer
- 4
- Anzahl der sep. WCs
- 4
- Anzahl der Terrassen
- 5
- Stellplätze
- 2
- Wohnfläche
- 303m²
- Nutzfläche
- 559m²
- Gartenfläche
- 68m²
- Kellerfläche
- 46m²
- Terrassenfläche
- 5m²
Kosten
- Kaufpreis Brutto
- € 2.163.000,00
Häuser zum Kaufen im Umkreis von Klosterneuburg
- Bezirk Gemeindebezirk Döbling
- Bezirk Gemeindebezirk Döbling
- Bezirk Gemeindebezirk Döbling
- Bezirk Gemeindebezirk Währing
- Bezirk Gemeindebezirk Währing
- Bezirk Gemeindebezirk Währing
- Bezirk Gemeindebezirk Hernals
- Bezirk Gemeindebezirk Hernals
- Bezirk Gemeindebezirk Hernals
- Bezirk Gemeindebezirk Ottakring
Häuser zum Kaufen im Umkreis von Klosterneuburg
Häuser zum Kaufen in Österreich
Andere Besucher suchen nach...
- Grundstücke kaufen in 3400 Weidlingbach
- Wohnungen kaufen in 4663 Laakirchen
- Häuser in 7471 Rechnitz
- Wohnungen in 2410 Hainburg an der Donau
- Häuser kaufen in 2432 Schwadorf
- Wohnungen kaufen in 3002 Purkersdorf
- Häuser in 3150 Wilhelmsburg
- Wohnungen kaufen in 3470 Engelmannsbrunn
- Grundstücke kaufen im Bezirk Mattersburg
- Grundstücke kaufen im Bezirk Gmunden