Landhaus mit großem Garten
Beschreibung
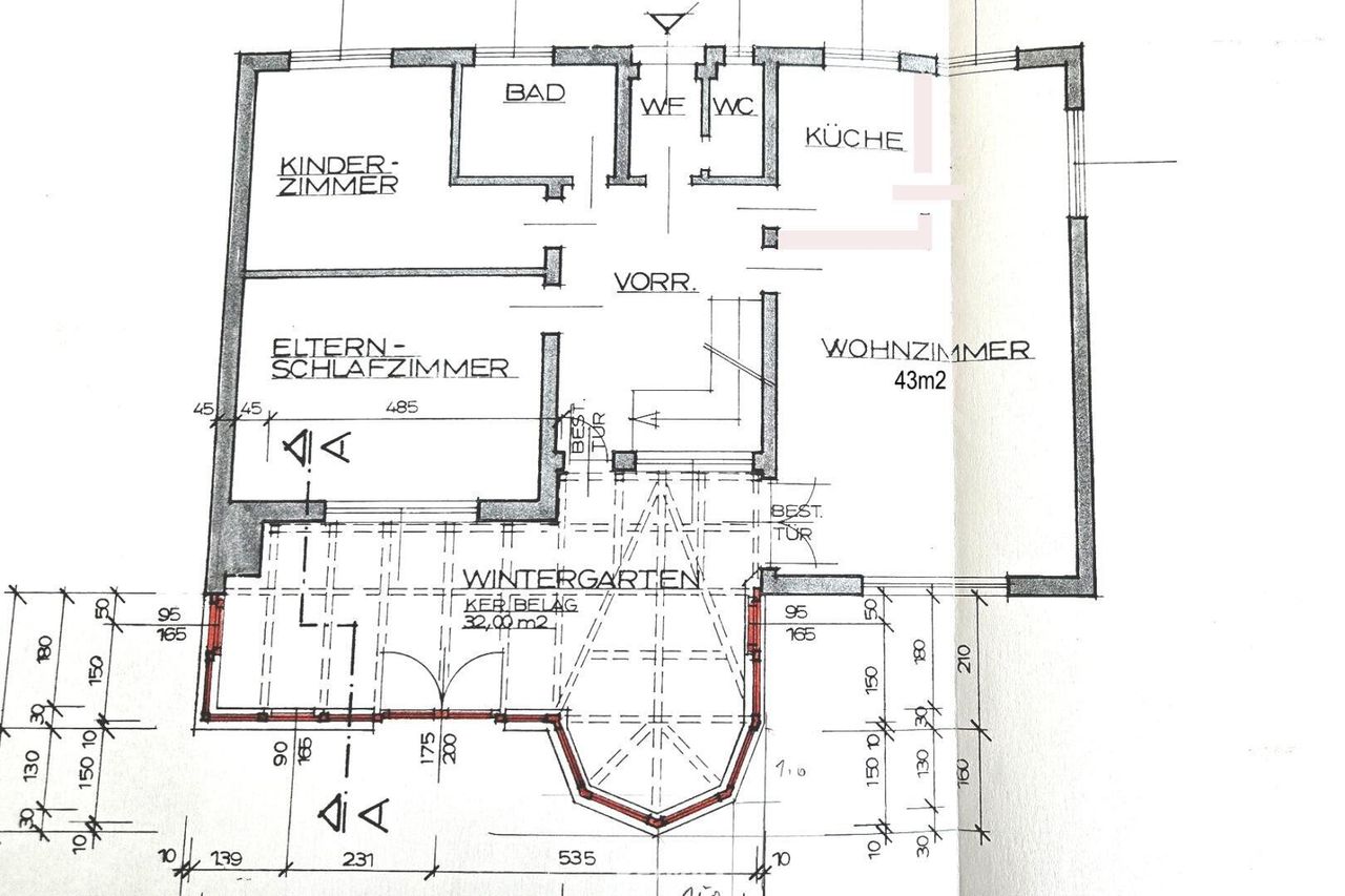
Wohnen am Ölberg Grünruhelage vor den Toren Wiens Beschreibung Dieses solide gebaute Ein- oder Mehrfamilienhaus befindet sich in einer der begehrtesten Zonen von Klosterneuburg – auf dem Ölberg, am Ende einer ruhigen Sackgasse. Die großzügige Raumaufteilung, die hochwertige Sanierung und der großzügige Garten machen es zum idealen Zuhause für Familien, die Ruhe und Komfort vor den Toren Wiens suchen. Erdgeschoss Eingang über den Vorraum in einen geräumigen Eingangsbereich Zwei Schlafzimmer mit Parkettboden Modernes Badezimmer mit Designerbad Große, offene Küche mit neuen Geräten 45 m² Wohn-/Essbereich mit Fußbodenheizung und elegantem Fliesenboden Zugang zum hellen Wintergarten mit Schwedenofen, Fußbodenheizung und Markise Fenster...
Wohnen am Ölberg
Grünruhelage vor den Toren Wiens
Beschreibung
Dieses solide gebaute Ein- oder Mehrfamilienhaus befindet sich in einer der begehrtesten Zonen von Klosterneuburg – auf dem Ölberg, am Ende einer ruhigen Sackgasse. Die großzügige Raumaufteilung, die hochwertige Sanierung und der großzügige Garten machen es zum idealen Zuhause für Familien, die Ruhe und Komfort vor den Toren Wiens suchen.
Erdgeschoss
Eingang über den Vorraum in einen geräumigen Eingangsbereich
Zwei Schlafzimmer mit Parkettboden
Modernes Badezimmer mit Designerbad
Große, offene Küche mit neuen Geräten
45 m² Wohn-/Essbereich mit Fußbodenheizung und elegantem Fliesenboden
Zugang zum hellen Wintergarten mit Schwedenofen, Fußbodenheizung und Markise
Fenster dreifach verglaste Josko-Fenster (innen Holz, außen Aluminium)
Innentüren Josko-Massivholztüren
Obergeschoss
Sonnendurchfluteter Aufgang zum großen Wohnbereich mit Parkettboden
15 m² Ostbalkon
Masterbedroom mit eigenem Bad (ebenerdige Dusche, WC, Bidet, Fußbodenheizung)
Keller
Doppelgarage (elektrisches Tor)
Abstellraum
Pelletslager für 5 Tonnen
Weinkeller
Technikraum mit Windhager Pelletkessel und Warmwasser-Wärmepumpe (neu)
Sauna- und Wellnessbereich mit offener Dusche
Zusätzliche Ausstattungsmerkmale
Fernbedienbares elektrisches Einfahrtstor
Vorinstallierte Alarmanlage, sofort einsatzbereit
Wärmegedämmte Fassade angenehmes Raumklima und Energieeffizienz
Süd-West-Garten mit Sonnenterrasse und Outdoor-Küche
Lage & Anbindung
Begehrte Wohngegend mit hervorragender Infrastruktur:
Mehrere Buslinien sind fußläufig erreichbar
Schnelle Anbindung ans Stadtzentrum und zur S-Bahn-Station
Viele Geschäfte, Schulen und Kindergärten in der Nähe
Nur 20 Autominuten in die Wiener Innenstadt
Grün, Familienfreundliche Umgebung und ruhiger Wohncharakter
Stephansplatz: 29 Minuten
Bahnhof Klosterneuburg: 5 Minuten
Fazit
Dieses sorgfältig renovierte Haus in Klosterneuburg verbindet großzügiges, modernes Wohnen mit ruhiger Natur, hervorragender Infrastruktur und der Nähe zu Wien. Ob Familienresidenz oder Mehrgenerationenhaus – diese Immobilie bietet Qualität, Komfort und Charme in bester Lage.
Sind Sie neugierig geworden?
Dann vereinbaren Sie einfach einen Besichtigungstermin.
Eckdaten:
Gartenfläche: ca.1.052m2
Wohnfläche: ca. 325m2
HBW: Ein Energieausweis ist in Vorbereitung
Maklerhonorar 3% plus 20% Ust
Wir bitten um Verständnis, dass auf Grund der Nachweispflicht gegenüber dem Eigentümer nur Anfragen mit vollständigen Kontaktdaten (Name, Adresse, Tel., Email) beantwortet werden können. Es wird darauf hingewiesen, dass die angeführten Daten auf Informationen des Eigentümers oder Dritter (z.B. Behörden) beruhen, sodass für die Richtigkeit keine Gewähr übernommen werden kann.
Der Vermittler ist als Doppelmakler tätig.
Infrastruktur / Entfernungen
Gesundheit
Arzt <1.250m
Apotheke <2.500m
Klinik <4.000m
Krankenhaus <2.750m
Kinder & Schulen
Schule <1.000m
Kindergarten <1.000m
Universität <3.500m
Höhere Schule <6.500m
Nahversorgung
Supermarkt <1.750m
Bäckerei <2.500m
Einkaufszentrum <6.000m
Sonstige
Bank <2.250m
Geldautomat <2.250m
Post <2.500m
Polizei <2.500m
Verkehr
Bus <250m
Straßenbahn <5.500m
U-Bahn <7.000m
Bahnhof <2.750m
Autobahnanschluss <5.000m
Angaben Entfernung Luftlinie / Quelle: OpenStreetMap
Objektdaten
Ausstattung
- WG geeignet
- Räume veränderbar
- Kamin
- Teilmöbliert
- Kabel/SAT-TV
- Sauna
- Wintergarten
- Alarmanlage
- Neubaustandard
Zustand
- Zustand
- NEUWERTIG
- Baujahr
- 1989
- Alter
- NEUBAU
- HWB
- 122 kWh/m² pro Jahr
- fGEE
- 1.5
Flächen
- Anzahl der Zimmer
- 6
- Anzahl der Badezimmer
- 3
- Anzahl der sep. WCs
- 2
- Anzahl der Balkone
- 1
- Anzahl der Terrassen
- 1
- Stellplätze
- 1
- Wohnfläche
- 206m²
- Nutzfläche
- 325m²
- Grundstücksfläche
- 1.052m²
- Terrassenfläche
- 1m²
Kosten
Verwaltung
- Ferienimmobilie
- Ja
Häuser zum Kaufen im Umkreis von Klosterneuburg
- Bezirk Gemeindebezirk Döbling
- Bezirk Gemeindebezirk Döbling
- Bezirk Gemeindebezirk Döbling
- Bezirk Gemeindebezirk Währing
- Bezirk Gemeindebezirk Währing
- Bezirk Gemeindebezirk Währing
- Bezirk Gemeindebezirk Hernals
- Bezirk Gemeindebezirk Hernals
- Bezirk Gemeindebezirk Hernals
- Bezirk Gemeindebezirk Ottakring
Häuser zum Kaufen im Umkreis von Klosterneuburg
Häuser zum Kaufen in Österreich
Andere Besucher suchen nach...
- Grundstücke kaufen in 3400 Weidlingbach
- Wohnungen kaufen in 4663 Laakirchen
- Häuser in 7471 Rechnitz
- Wohnungen in 2410 Hainburg an der Donau
- Häuser kaufen in 2432 Schwadorf
- Wohnungen kaufen in 3002 Purkersdorf
- Häuser in 3150 Wilhelmsburg
- Wohnungen kaufen in 3470 Engelmannsbrunn
- Grundstücke kaufen im Bezirk Mattersburg
- Grundstücke kaufen im Bezirk Gmunden