Mobilheim| Stell mich hin wohin Du willst....
€ 24.900
€ 803 / m²
3433 Königstetten
-
nach Kaufvertrag
Beschreibung
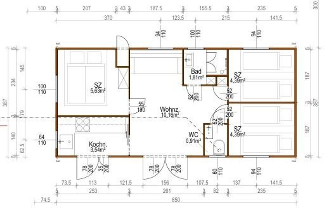
...auch bis ans Ende dieser Welt,.... MOBILHEIM ADRIA Firenze Premium MODELL 2014 (Angebot versteht sich OHNE Grundstück; BITTE klären Sie die Bebauungsmöglichkeiten Ihres Grundstückes, wo Sie das Mobilheim hinstellen wollen!) - Maße: 8,5m x 4m - Schlafplätze für 6 +2 Personen Die Aufteilung dieses "Raumwunders": - Wohnzimmer mit Tisch, Sesseln und ausziehbarer Couch (ca. 10,16m²) - Einbau-Küche (ca. 3,54m²) - Schlafzimmer mit Doppelbett und Schrank (ca. 5,63m²) - Kinderzimmer 1 mit zwei Einzelbetten und Schrank (ca. 4,39m²) - Kinderzimmer 2 mit zwei Einzelbetten und Schrank (ca. 4,39m²) - WC mit Handwaschbecken (ca. 0,91m²) - Bad mit Dusche und Waschbecken (ca....
...auch bis ans Ende dieser Welt,....
MOBILHEIM ADRIA Firenze Premium MODELL 2014
(Angebot versteht sich OHNE Grundstück; BITTE klären Sie die Bebauungsmöglichkeiten Ihres Grundstückes, wo Sie das Mobilheim hinstellen wollen!)
- Maße: 8,5m x 4m
- Schlafplätze für 6 +2 Personen
Die Aufteilung dieses "Raumwunders":
- Wohnzimmer mit Tisch, Sesseln und ausziehbarer Couch (ca. 10,16m²)
- Einbau-Küche (ca. 3,54m²)
- Schlafzimmer mit Doppelbett und Schrank (ca. 5,63m²)
- Kinderzimmer 1 mit zwei Einzelbetten und Schrank (ca. 4,39m²)
- Kinderzimmer 2 mit zwei Einzelbetten und Schrank (ca. 4,39m²)
- WC mit Handwaschbecken (ca. 0,91m²)
- Bad mit Dusche und Waschbecken (ca. 1,81m²)
Ausstattung:
- Fenster und Eingangstüren mit Doppelverglasung
- dekorative Fensterläden
- Klimaanlage mit Heizfunktion
- Elektroheizungen in den Zimmern
- verzinkte Stahlkarosserie und Stahldach
- Fliegengitter
- Aussenlicht
- uvm.
aktueller Standort 3433 Königstetten
ACHTUNG Selbstabholung! Kaufpreis versteht sich exkl. Transportkosten!
Es besteht ein persönliches und wirtschafliches Naheverhältnis zum Abgeber.
MOBILHEIM ADRIA Firenze Premium MODELL 2014
(Angebot versteht sich OHNE Grundstück; BITTE klären Sie die Bebauungsmöglichkeiten Ihres Grundstückes, wo Sie das Mobilheim hinstellen wollen!)
- Maße: 8,5m x 4m
- Schlafplätze für 6 +2 Personen
Die Aufteilung dieses "Raumwunders":
- Wohnzimmer mit Tisch, Sesseln und ausziehbarer Couch (ca. 10,16m²)
- Einbau-Küche (ca. 3,54m²)
- Schlafzimmer mit Doppelbett und Schrank (ca. 5,63m²)
- Kinderzimmer 1 mit zwei Einzelbetten und Schrank (ca. 4,39m²)
- Kinderzimmer 2 mit zwei Einzelbetten und Schrank (ca. 4,39m²)
- WC mit Handwaschbecken (ca. 0,91m²)
- Bad mit Dusche und Waschbecken (ca. 1,81m²)
Ausstattung:
- Fenster und Eingangstüren mit Doppelverglasung
- dekorative Fensterläden
- Klimaanlage mit Heizfunktion
- Elektroheizungen in den Zimmern
- verzinkte Stahlkarosserie und Stahldach
- Fliegengitter
- Aussenlicht
- uvm.
aktueller Standort 3433 Königstetten
ACHTUNG Selbstabholung! Kaufpreis versteht sich exkl. Transportkosten!
Es besteht ein persönliches und wirtschafliches Naheverhältnis zum Abgeber.
Objektdaten
Ausstattung
- Vollmöbliert
- Zentralheizung
- Heizung/Klimaanlage
- Vollmöbliert
Zustand
- Baujahr
- ca. 2014
Flächen
- Anzahl der Zimmer
- 4
- Anzahl der Schlafzimmer
- 3
- Anzahl der Badezimmer
- 1
- Anzahl der sep. WCs
- 1
- Wohnfläche
- 31m²
Kosten
- Kaufpreis
- € 24.900,00
Verwaltung
- Verfügbar ab
- nach Kaufvertrag
Häuser zum Kaufen im Umkreis von Königstetten
Häuser zum Kaufen im Umkreis von Königstetten
Häuser zum Kaufen in Österreich
Andere Besucher suchen nach...
- Grundstücke kaufen in 3400 Weidlingbach
- Wohnungen kaufen in 4663 Laakirchen
- Häuser in 7471 Rechnitz
- Wohnungen in 2410 Hainburg an der Donau
- Häuser kaufen in 2432 Schwadorf
- Wohnungen kaufen in 3002 Purkersdorf
- Häuser in 3150 Wilhelmsburg
- Wohnungen kaufen in 3470 Engelmannsbrunn
- Grundstücke kaufen im Bezirk Mattersburg
- Grundstücke kaufen im Bezirk Gmunden