Erstbezug: Großzügiger Familientraum mit unverbaubarem Grünblick!
€ 649.000
€ 3.709 / m²
3434 Tulbing
-
Erstbezug
-
sofort
Beschreibung
Objektübersicht Inmitten der charmanten Gemeinde Wilfersdorf bei Tulbing (Bezirk Tulln) wartet ein ganz besonderes Zuhause auf seine neuen Bewohner: ein modernes und sehr großzügiges Einfamilienhaus mit klarer Formensprache, lichtdurchfluteten Räumen und einem Hauch von Luxus, der den Alltag besonders macht. Auf ca. 175 m² Wohnfläche, verteilt auf drei Ebenen und fünf Zimmer (davon 4 Schlafzimmer, oder 3 Schlafzimmer und ein Arbeitsraum), entfaltet sich ein Lebensraum, der nicht nur großzügig, sondern auch stilvoll gestaltet ist. Aktuell wird das Haus belagsfertig übergeben und bietet viele Möglichkeiten individueller Gestaltung. Das 2023-2024 errichtete Haus begeistert mit einem durchdachten Raumkonzept, hochwertigen Materialien und einem eleganten,...
Objektübersicht
Inmitten der charmanten Gemeinde Wilfersdorf bei Tulbing (Bezirk Tulln) wartet ein ganz besonderes Zuhause auf seine neuen Bewohner: ein modernes und sehr großzügiges Einfamilienhaus mit klarer Formensprache, lichtdurchfluteten Räumen und einem Hauch von Luxus, der den Alltag besonders macht.
Auf ca. 175 m² Wohnfläche, verteilt auf drei Ebenen und fünf Zimmer (davon 4 Schlafzimmer, oder 3 Schlafzimmer und ein Arbeitsraum), entfaltet sich ein Lebensraum, der nicht nur großzügig, sondern auch stilvoll gestaltet ist. Aktuell wird das Haus belagsfertig übergeben und bietet viele Möglichkeiten individueller Gestaltung. Das 2023-2024 errichtete Haus begeistert mit einem durchdachten Raumkonzept, hochwertigen Materialien und einem eleganten, zeitgemäßen Design sowie einen unverbaubaren Fernblick auf das hügelige Grün des Wienerwalds.
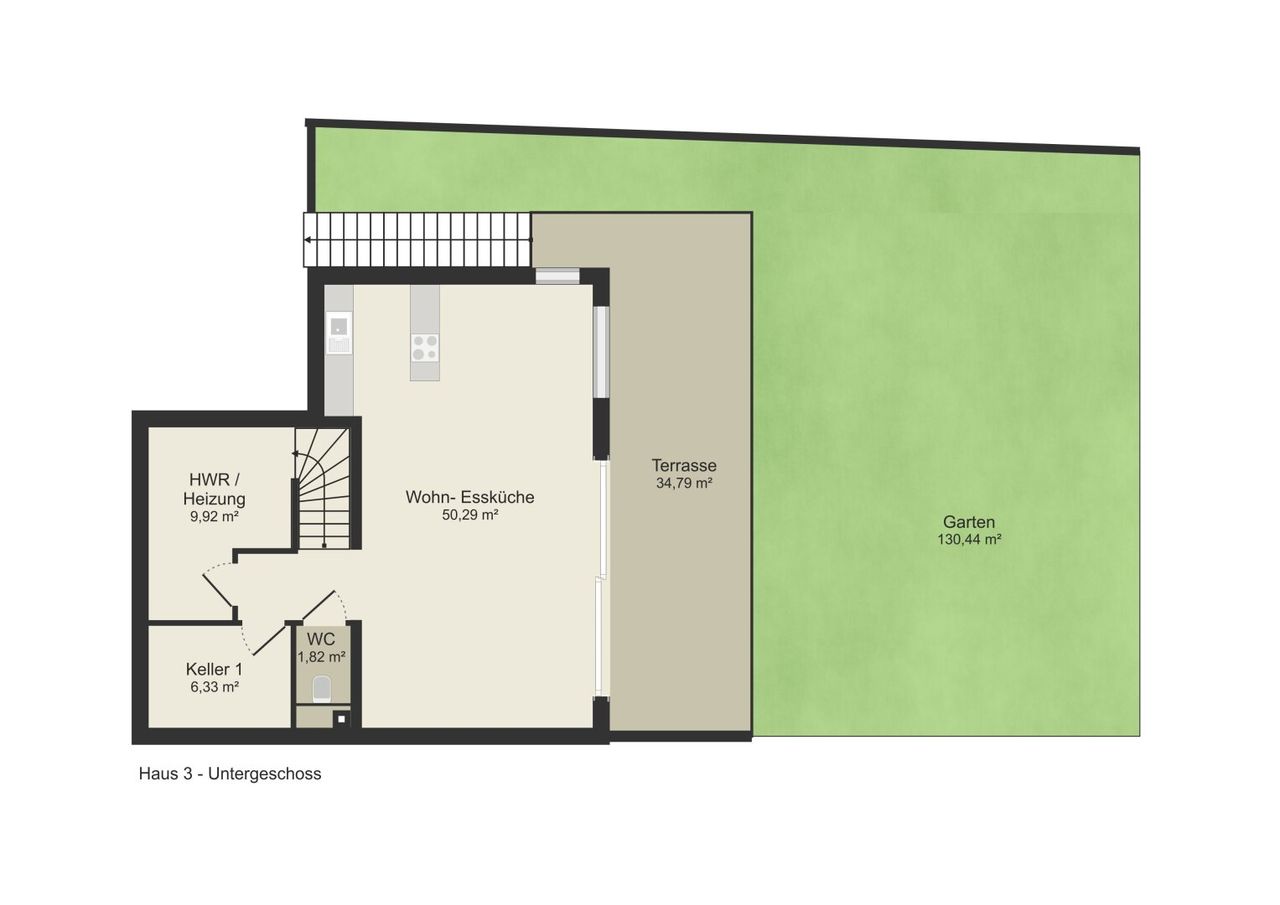
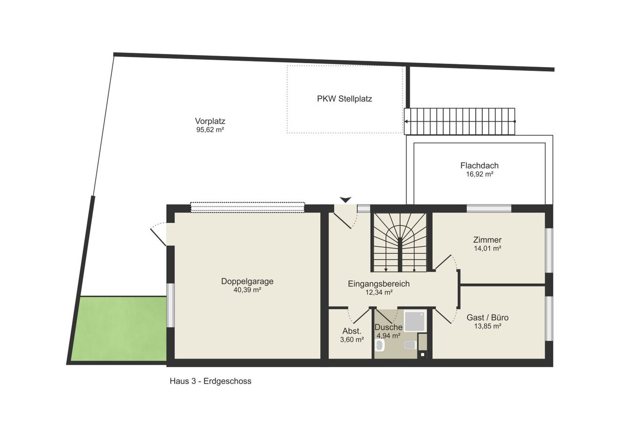
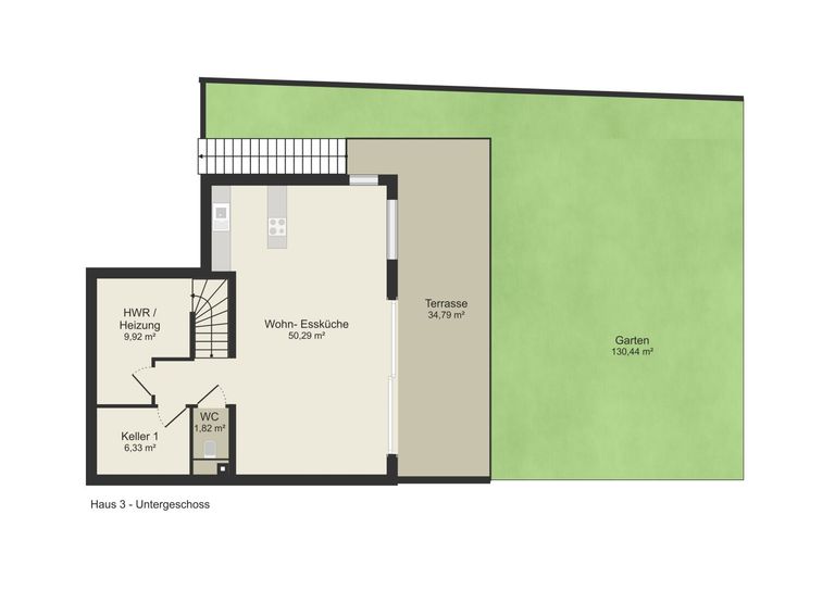
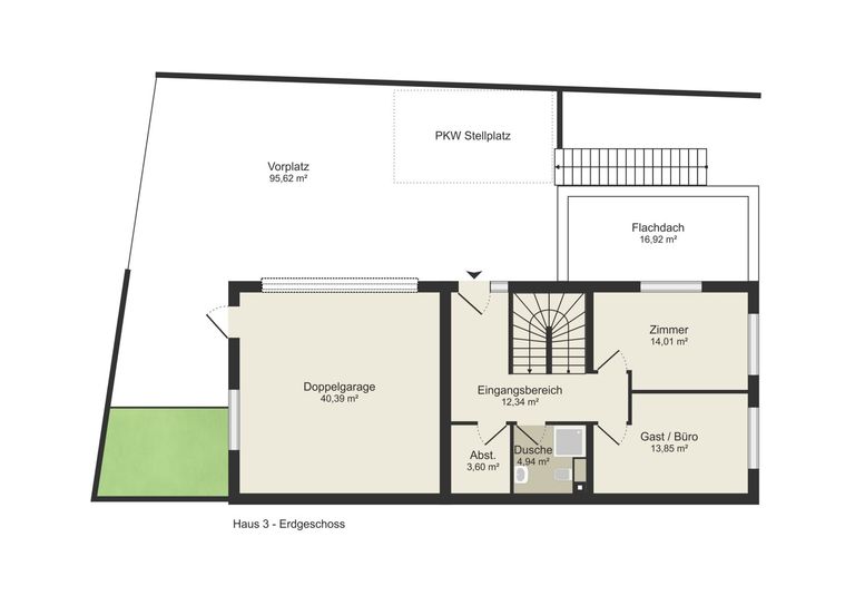
Im Untergeschoss bildet der offene Wohn- und Essbereich mit moderner Küche das Herzstück des Hauses – mit direktem Zugang zur Terrasse und dem anschließenden, begrünten Garten, der zu jeder Tageszeit zum Verweilen einlädt. Zwei ruhige Schlafzimmer sowie ein stilvolles Duschbad mit WC befinden sich im Erdgeschoss – ideal für Gäste, Kinder oder Homeoffice.
Das Highlight des Hauses: ein großzügiger Master-Bedroom im Obergeschoss, der nicht nur mit Weitblick begeistert, sondern auch die Möglichkeit eines offenen Badezimmers mit freistehender Badewanne bietet – ein Ort des Rückzugs; zum Aufatmen, Genießen und Träumen. Von hier führt der Weg direkt auf eine große Südterrasse mit unverbaubarem Blick auf den Wienerwald – ein Luxus, den man spürt, sobald man die Tür öffnet. (Achtung: Wem dieses Schlafzimmer zu groß ist, -> es besteht die Möglichkeit, daraus zwei Räume zu machen, die immer noch großzügig bemessen sind.)
Ein Gäste-WC, kluge Stauraumlösungen sowie eine Doppelgarage mit direktem Zugang zum Haus und ein zusätzlicher Abstellplatz machen das Gesamtpaket komplett. Ein Zuhause, das Komfort, Ästhetik und Geborgenheit meisterhaft vereint.
Ein NÖ Landeskindergarten befindet sich einige Fußminuten weiter im Ort; die Volksschule ist in Tulbing.
Mit dem Auto sind Sie in 30 Minuten beim P&R Hütteldorf; öffentlich erreichen Sie mit Wien mit der Bahn (Tullnerfelder Bahnhof nach Meidling/Westbahnhof/Hauptbahnhof oder Tulln in Richtung Heiligenstadt/Franz-Josef-Bahnhof etc.)
💶 Kaufpreis: EUR 649.000,--
https://www.remax.at/index.php?page=objekt&t=2&srid=32965693&s=1&id=341083&p=3&lang=de
Inmitten der charmanten Gemeinde Wilfersdorf bei Tulbing (Bezirk Tulln) wartet ein ganz besonderes Zuhause auf seine neuen Bewohner: ein modernes und sehr großzügiges Einfamilienhaus mit klarer Formensprache, lichtdurchfluteten Räumen und einem Hauch von Luxus, der den Alltag besonders macht.
Auf ca. 175 m² Wohnfläche, verteilt auf drei Ebenen und fünf Zimmer (davon 4 Schlafzimmer, oder 3 Schlafzimmer und ein Arbeitsraum), entfaltet sich ein Lebensraum, der nicht nur großzügig, sondern auch stilvoll gestaltet ist. Aktuell wird das Haus belagsfertig übergeben und bietet viele Möglichkeiten individueller Gestaltung. Das 2023-2024 errichtete Haus begeistert mit einem durchdachten Raumkonzept, hochwertigen Materialien und einem eleganten, zeitgemäßen Design sowie einen unverbaubaren Fernblick auf das hügelige Grün des Wienerwalds.
Im Untergeschoss bildet der offene Wohn- und Essbereich mit moderner Küche das Herzstück des Hauses – mit direktem Zugang zur Terrasse und dem anschließenden, begrünten Garten, der zu jeder Tageszeit zum Verweilen einlädt. Zwei ruhige Schlafzimmer sowie ein stilvolles Duschbad mit WC befinden sich im Erdgeschoss – ideal für Gäste, Kinder oder Homeoffice.
Das Highlight des Hauses: ein großzügiger Master-Bedroom im Obergeschoss, der nicht nur mit Weitblick begeistert, sondern auch die Möglichkeit eines offenen Badezimmers mit freistehender Badewanne bietet – ein Ort des Rückzugs; zum Aufatmen, Genießen und Träumen. Von hier führt der Weg direkt auf eine große Südterrasse mit unverbaubarem Blick auf den Wienerwald – ein Luxus, den man spürt, sobald man die Tür öffnet. (Achtung: Wem dieses Schlafzimmer zu groß ist, -> es besteht die Möglichkeit, daraus zwei Räume zu machen, die immer noch großzügig bemessen sind.)
Ein Gäste-WC, kluge Stauraumlösungen sowie eine Doppelgarage mit direktem Zugang zum Haus und ein zusätzlicher Abstellplatz machen das Gesamtpaket komplett. Ein Zuhause, das Komfort, Ästhetik und Geborgenheit meisterhaft vereint.
Ein NÖ Landeskindergarten befindet sich einige Fußminuten weiter im Ort; die Volksschule ist in Tulbing.
Mit dem Auto sind Sie in 30 Minuten beim P&R Hütteldorf; öffentlich erreichen Sie mit Wien mit der Bahn (Tullnerfelder Bahnhof nach Meidling/Westbahnhof/Hauptbahnhof oder Tulln in Richtung Heiligenstadt/Franz-Josef-Bahnhof etc.)
💶 Kaufpreis: EUR 649.000,--
https://www.remax.at/index.php?page=objekt&t=2&srid=32965693&s=1&id=341083&p=3&lang=de
Wir weisen darauf hin, dass zwischen dem Vermittler und dem zu vermittelnden Dritten ein familiäres oder wirtschaftliches Naheverhältnis besteht.
Der Vermittler ist als Doppelmakler tätig.
Infrastruktur / Entfernungen
Gesundheit
Arzt <4.500m
Apotheke <6.000m
Klinik <7.000m
Krankenhaus <6.000m
Kinder & Schulen
Kindergarten <2.500m
Schule <2.000m
Universität <5.500m
Höhere Schule <6.000m
Nahversorgung
Supermarkt <1.000m
Bäckerei <5.000m
Einkaufszentrum <7.000m
Sonstige
Bank <6.000m
Geldautomat <2.000m
Post <2.500m
Polizei <4.500m
Verkehr
Bus <500m
Bahnhof <6.000m
Autobahnanschluss <10.000m
Flughafen <6.000m
Angaben Entfernung Luftlinie / Quelle: OpenStreetMap
Objektdaten
Ausstattung
- Zentralheizung
- Luftwärmepumpe
- Massiv Bauweise
Zustand
- Zustand
- ERSTBEZUG
- HWB
- 25 kWh/m² pro Jahr
- Klasse HWB
- B
- fGEE
- 0.6
- Klasse fGEE
- A+
Flächen
- Anzahl der Zimmer
- 5
- Anzahl der Badezimmer
- 2
- Anzahl der sep. WCs
- 3
- Anzahl der Balkone
- 1
- Anzahl der Terrassen
- 1
- Stellplätze
- 1
- Wohnfläche
- 175m²
- Nutzfläche
- 175m²
- Grundstücksfläche
- 470m²
- Kellerfläche
- 15m²
- Terrassenfläche
- 1m²
Kosten
- Kaufpreis Brutto
- € 649.000,00
Verwaltung
- Verfügbar ab
- sofort
Häuser zum Kaufen im Umkreis von Tulbing
Häuser zum Kaufen im Umkreis von Tulbing
Häuser zum Kaufen in Österreich
Andere Besucher suchen nach...
- Grundstücke kaufen in 3400 Weidlingbach
- Wohnungen kaufen in 4663 Laakirchen
- Häuser in 7471 Rechnitz
- Wohnungen in 2410 Hainburg an der Donau
- Häuser kaufen in 2432 Schwadorf
- Wohnungen kaufen in 3002 Purkersdorf
- Häuser in 3150 Wilhelmsburg
- Wohnungen kaufen in 3470 Engelmannsbrunn
- Grundstücke kaufen im Bezirk Mattersburg
- Grundstücke kaufen im Bezirk Gmunden