Wohnen wo andere Urlaub machen!
-
Erstbezug
-
2026
-
2026
Beschreibung
Wohnen, wo andere Urlaub machen!
Stellen Sie sich vor: Frühstück auf der eigenen Terrasse, in absoluter Ruhelage.
Kinder spielen im Garten, umgeben von Natur und am Nachmittag geht es an den nahe gelegenen gemeindeeigenen Badesee. An Wochenenden laden Sie zum Grillen ein und bei Sonnenuntergang genießen Sie ein gutes Glas vom Grünen Veltliner aus der Region!
Genau das bietet Ihnen Ihr idyllisches Eigenheim in Grafenwörth!
Bei diesem modernen Wohnprojekt entstehen vier Doppelhäuser mit jeweils 4,5 Zimmern auf zwei Ebenen und optimaler Raumaufteilung.
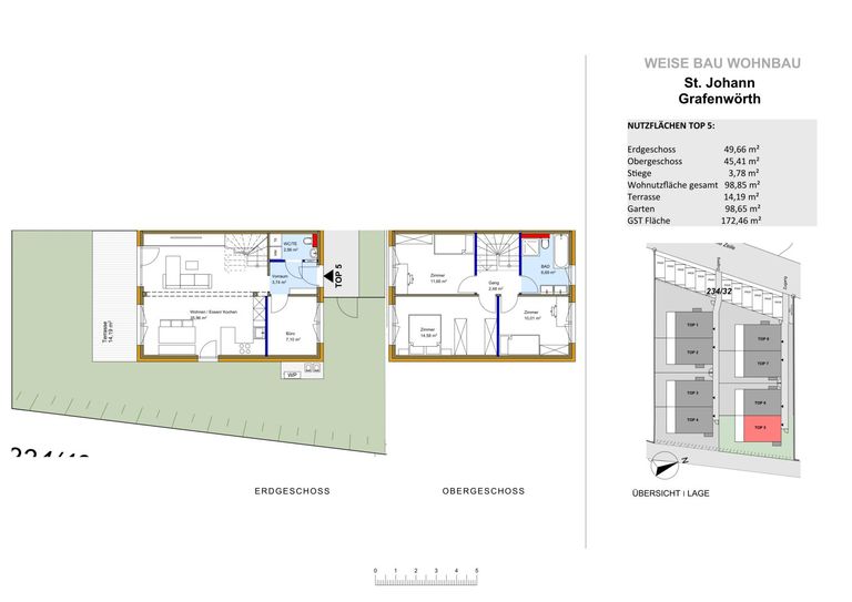
Im Erdgeschoß erwartet Sie ein heller Wohnbereich mit offener Küche (ca. 36 m²) und Zugang in den Garten...
Wohnen, wo andere Urlaub machen!
Stellen Sie sich vor: Frühstück auf der eigenen Terrasse, in absoluter Ruhelage.
Kinder spielen im Garten, umgeben von Natur und am Nachmittag geht es an den nahe gelegenen gemeindeeigenen Badesee. An Wochenenden laden Sie zum Grillen ein und bei Sonnenuntergang genießen Sie ein gutes Glas vom Grünen Veltliner aus der Region!
Genau das bietet Ihnen Ihr idyllisches Eigenheim in Grafenwörth!
Bei diesem modernen Wohnprojekt entstehen vier Doppelhäuser mit jeweils 4,5 Zimmern auf zwei Ebenen und optimaler Raumaufteilung.
Im Erdgeschoß erwartet Sie ein heller Wohnbereich mit offener Küche (ca. 36 m²) und Zugang in den Garten – der ideale Platz für gemütliche Abende mit Ihren Liebsten. Dazu kommen ein Büro/Multiraum, ein Vorraum und ein Gäste-WC.
Im Obergeschoß befinden sich drei Schlafzimmer sowie ein großzügiges Bad mit Dusche, Badewanne, Doppelwaschbecken und WC.
Die modernste Haustechnik mit Wärmepumpe und Fußbodenheizung garantiert niedrige Betriebskosten und hohen Wohnkomfort.
Hier verbinden sich moderne Architektur, nachhaltige Massiv-Holzbauweise und energieeffiziente Technik zu einem leistbaren Traumhaus für Familien und Paare.
Grafenwörth ist der Ort, der Ihnen eine ideale Mischung aus frischer Landluft und einer ausgezeichneten Nahversorgung bietet: weite Rad- und Wanderwege, Kindergarten, Schule und Einkaufsmöglichkeiten in unmittelbarer Umgebung – und nicht zuletzt eine herzliche Nachbarschaft.
Häuser, die mehr sind als vier Wände!
Der Vermittler ist als Doppelmakler tätig.
Infrastruktur / Entfernungen
Gesundheit
Arzt <6.000m
Apotheke <6.500m
Klinik <6.500m
Kinder & Schulen
Schule <2.000m
Kindergarten <2.000m
Nahversorgung
Supermarkt <2.500m
Bäckerei <2.000m
Sonstige
Bank <2.000m
Geldautomat <2.000m
Post <2.000m
Polizei <2.000m
Verkehr
Bus <500m
Autobahnanschluss <2.000m
Bahnhof <4.500m
Angaben Entfernung Luftlinie / Quelle: OpenStreetMap
Objektdaten
Zustand
- Zustand
- ERSTBEZUG
- Baujahr
- 2026
- Alter
- NEUBAU
- HWB
- 33 kWh/m² pro Jahr
- Klasse HWB
- A+
- fGEE
- 0.62
- Klasse fGEE
- B
Flächen
- Anzahl der Zimmer
- 4.5
- Anzahl der Badezimmer
- 1
- Anzahl der sep. WCs
- 2
- Anzahl der Terrassen
- 1
- Stellplätze
- 1
- Wohnfläche
- 95m²
- Grundstücksfläche
- 172m²
- Gartenfläche
- 99m²
- Terrassenfläche
- 1m²
Kosten
- Kaufpreis Brutto
- € 378.000,00
Verwaltung
- Verfügbar ab
- 2026
Häuser zum Kaufen im Umkreis von Grafenwörth
Häuser zum Kaufen im Umkreis von Grafenwörth
Häuser zum Kaufen in Österreich
Andere Besucher suchen nach...
- Grundstücke kaufen in 3400 Weidlingbach
- Wohnungen kaufen in 4663 Laakirchen
- Häuser in 7471 Rechnitz
- Wohnungen in 2410 Hainburg an der Donau
- Häuser kaufen in 2432 Schwadorf
- Wohnungen kaufen in 3002 Purkersdorf
- Häuser in 3150 Wilhelmsburg
- Wohnungen kaufen in 3470 Engelmannsbrunn
- Grundstücke kaufen im Bezirk Mattersburg
- Grundstücke kaufen im Bezirk Gmunden