Moderne Doppelhaushälfte mit atemberaubender Aussicht
-
Erstbezug
-
ab sofort
Beschreibung
Dieses stilvolle Haus wurde frisch kernsaniert und präsentiert sich in modernem Zustand mit einer angenehmen Wohnatmosphäre. Die Nachbarschaft ist von moderner Bebauung geprägt; das Haus selbst liegt am Ende einer Sackgasse. Gleichzeitig bietet die Lage ein ausgewogenes Verhältnis zwischen Ruhe und guter Anbindung an die umliegende Infrastruktur. Die Ausstattung ist auf zeitgemäßes Wohnen ausgerichtet. Geheizt wird über eine Fußbodenheizung, die mittels Luftwärmepumpe betrieben wird und sich über die gesamte Wohnfläche erstreckt. Zusätzlich besteht die Möglichkeit, mit einem Ofen zu heizen, der für ein angenehmes und gleichmäßiges Raumklima sorgt. Das Haus befindet sich in einem belagsfertigen Zustand und bietet freie Gestaltungsmöglichkeiten....
Dieses stilvolle Haus wurde frisch kernsaniert und präsentiert sich in modernem Zustand mit einer angenehmen Wohnatmosphäre. Die Nachbarschaft ist von moderner Bebauung geprägt; das Haus selbst liegt am Ende einer Sackgasse. Gleichzeitig bietet die Lage ein ausgewogenes Verhältnis zwischen Ruhe und guter Anbindung an die umliegende Infrastruktur.
Die Ausstattung ist auf zeitgemäßes Wohnen ausgerichtet. Geheizt wird über eine Fußbodenheizung, die mittels Luftwärmepumpe betrieben wird und sich über die gesamte Wohnfläche erstreckt. Zusätzlich besteht die Möglichkeit, mit einem Ofen zu heizen, der für ein angenehmes und gleichmäßiges Raumklima sorgt. Das Haus befindet sich in einem belagsfertigen Zustand und bietet freie Gestaltungsmöglichkeiten.
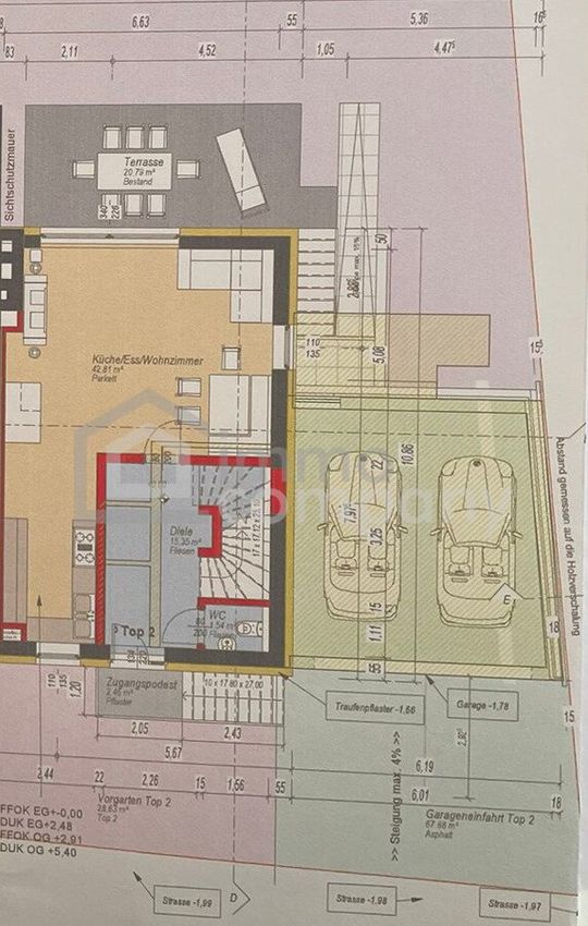
Ein Carport mit Platz für zwei Fahrzeuge ist ebenfalls vorhanden.
Sehr gerne stellen wir Ihnen auf Anfrage, weitere Fotos oder einen Plan zur Verfügung. Noch mehr freuen wir uns jedoch, Ihnen dieses Haus persönlich zeigen zu dürfen.
Bitte haben Sie Verständnis, dass wir nur Anfragen mit vollständigen Kontaktdaten beantworten können.
Für nähere Informationen sowie Besichtigungen stehe ich gerne zur Verfügung:
Hakan Mousawi
0699 184 101 13
hakan.mousawi@immo-company.at
Der Vermittler ist als Doppelmakler tätig.
Nutzen Sie die einmalige Gelegenheit, diese Immobilie zu besichtigen – sehen und erleben ist sehr viel eindrucksvoller!
Eine Besichtigung ist kostenfrei und unverbindlich, und gibt Ihnen einen unverfälschten Eindruck von der Immobilie.
Gerne unterstütze ich Sie auch bei der Finanzierung sowie beim Verkauf/Vermietung Ihrer Immobilie.
Infrastruktur / Entfernungen
Gesundheit
Arzt <1.000m
Apotheke <1.000m
Krankenhaus <7.500m
Klinik <6.000m
Kinder & Schulen
Schule <1.000m
Kindergarten <1.000m
Universität <4.000m
Höhere Schule <5.500m
Nahversorgung
Supermarkt <1.000m
Bäckerei <1.000m
Einkaufszentrum <6.000m
Sonstige
Bank <1.000m
Geldautomat <1.000m
Post <1.000m
Polizei <5.000m
Verkehr
Bus <500m
Straßenbahn <4.500m
Bahnhof <4.000m
Autobahnanschluss <4.000m
Flughafen <8.000m
Angaben Entfernung Luftlinie / Quelle: OpenStreetMap
Objektdaten
Ausstattung
- Räume veränderbar
- Gäste-WC
- Bad mit Dusche
- Bad mit Badewanne
- Bad mit Fenster
- Offene Küche
- Fußbodenheizung
- Luftwärmepumpe
- Massiv Bauweise
- Schlüsselfertig ohne Bodenplatte
Zustand
- Zustand
- ERSTBEZUG
- Baujahr
- 1978
- Alter
- NEUBAU
- HWB
- 48.7 kWh/m² pro Jahr
- Klasse HWB
- B
- fGEE
- 0.77
- Klasse fGEE
- A
Flächen
- Anzahl der Badezimmer
- 1
- Anzahl der sep. WCs
- 2
- Stellplätze
- 2
- Wohnfläche
- 119m²
- Grundstücksfläche
- 421m²
- Kellerfläche
- 39m²
Kosten
- Kaufpreis Brutto
- € 519.000,00
Verwaltung
- Verfügbar ab
- ab sofort
Häuser zum Kaufen im Umkreis von Altenberg bei Linz
Häuser zum Kaufen im Umkreis von Altenberg bei Linz
Häuser zum Kaufen in Österreich
Andere Besucher suchen nach...
- Grundstücke kaufen in 3400 Weidlingbach
- Wohnungen kaufen in 4663 Laakirchen
- Häuser in 7471 Rechnitz
- Wohnungen in 2410 Hainburg an der Donau
- Häuser kaufen in 2432 Schwadorf
- Wohnungen kaufen in 3002 Purkersdorf
- Häuser in 3150 Wilhelmsburg
- Wohnungen kaufen in 3470 Engelmannsbrunn
- Grundstücke kaufen im Bezirk Mattersburg
- Grundstücke kaufen im Bezirk Gmunden