Liegenschaft mit Potenzial in Pitzenberg zu kaufen!
-
sofort
Beschreibung
Sanierungsbedürftiges Sacherl in idyllischer Alleinlage – großes Grundstück mit Waldanteil und Wohngebietswidmung
Dieses charmante, jedoch sanierungsbedürftige Sacherl bietet eine außergewöhnliche Gelegenheit für alle, die Ruhe, Naturverbundenheit und großzügige Flächen schätzen. Die Liegenschaft liegt in idyllischer Lage und erstreckt sich über ein beeindruckendes Gesamtgrundstück von rund 16.630 m².
Ein besonderes Highlight ist der dazugehörige Waldanteil mit etwa 2.000 m², der Privatsphäre, Naturgenuss und zahlreiche Nutzungsmöglichkeiten bietet – von Erholung bis hin zur eigenen Holzgewinnung.
Ein Teil des Grundstücks verfügt über die Widmung Wohngebiet, wovon ca. 2.000 m² bebaubar sind. Dies eröffnet vielseitige Gestaltungsspielräume: ob Ausbau, Neubau oder eine Kombination aus beidem...
Sanierungsbedürftiges Sacherl in idyllischer Alleinlage – großes Grundstück mit Waldanteil und Wohngebietswidmung
Dieses charmante, jedoch sanierungsbedürftige Sacherl bietet eine außergewöhnliche Gelegenheit für alle, die Ruhe, Naturverbundenheit und großzügige Flächen schätzen. Die Liegenschaft liegt in idyllischer Lage und erstreckt sich über ein beeindruckendes Gesamtgrundstück von rund 16.630 m².
Ein besonderes Highlight ist der dazugehörige Waldanteil mit etwa 2.000 m², der Privatsphäre, Naturgenuss und zahlreiche Nutzungsmöglichkeiten bietet – von Erholung bis hin zur eigenen Holzgewinnung.
Ein Teil des Grundstücks verfügt über die Widmung Wohngebiet, wovon ca. 2.000 m² bebaubar sind. Dies eröffnet vielseitige Gestaltungsspielräume: ob Ausbau, Neubau oder eine Kombination aus beidem – hier können individuelle Wohnträume auf großzügiger Fläche verwirklicht werden.
Besondere Merkmale:
Gesamtgrundstück ca. 16.630 m²
Davon ca. 2.000 m² Waldfläche
Widmung Wohngebiet – rund 2.000 m² bebaubar
Ruhige, naturnahe Lage mit großzügigen Freiflächen
Hier in Pitzenberg wartet Ihr neues Zuhause auf Sie – vereinbaren Sie noch heute einen Besichtigungstermin und lassen Sie sich von den Möglichkeiten begeistern, die dieses Objekt zu bieten hat!
Der Vermittler ist als Doppelmakler tätig.
Infrastruktur / Entfernungen
Gesundheit
Arzt <3.500m
Apotheke <3.500m
Kinder & Schulen
Schule <3.500m
Kindergarten <3.000m
Höhere Schule <10.000m
Nahversorgung
Supermarkt <3.000m
Bäckerei <6.000m
Einkaufszentrum <9.000m
Sonstige
Bank <3.000m
Geldautomat <3.000m
Post <3.500m
Polizei <4.500m
Verkehr
Bus <1.000m
Bahnhof <3.000m
Autobahnanschluss <9.500m
Angaben Entfernung Luftlinie / Quelle: OpenStreetMap
Objektdaten
Ausstattung
- Kamin
- Bad mit Dusche
- Bad mit Badewanne
- Bad mit Fenster
- Befeuerung mit Holz
- Satteldach
Zustand
- Zustand
- SANIERUNGSBEDUERFTIG
- Baujahr
- 1941
- HWB
- 385.3 kWh/m² pro Jahr
- Klasse HWB
- G
- fGEE
- 4.03
- Klasse fGEE
- G
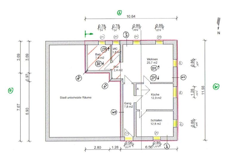
Flächen
- Anzahl der Zimmer
- 2
- Anzahl der Badezimmer
- 1
- Anzahl der sep. WCs
- 1
- Wohnfläche
- 71m²
- Grundstücksfläche
- 16.629m²
Kosten
- Kaufpreis Brutto
- € 350.000,00
Verwaltung
- Verfügbar ab
- sofort
Häuser zum Kaufen im Umkreis von Pitzenberg
Häuser zum Kaufen im Umkreis von Pitzenberg
Häuser zum Kaufen in Österreich
Andere Besucher suchen nach...
- Grundstücke kaufen in 3400 Weidlingbach
- Wohnungen kaufen in 4663 Laakirchen
- Häuser in 7471 Rechnitz
- Wohnungen in 2410 Hainburg an der Donau
- Häuser kaufen in 2432 Schwadorf
- Wohnungen kaufen in 3002 Purkersdorf
- Häuser in 3150 Wilhelmsburg
- Wohnungen kaufen in 3470 Engelmannsbrunn
- Grundstücke kaufen im Bezirk Mattersburg
- Grundstücke kaufen im Bezirk Gmunden