NEUER PREIS: Top Lage, - tolles Haus mit großzügigem Wellnessbereich
-
sofort
Beschreibung
NEUER PREIS: Top Lage, - tolles Haus mit großzügigem Wellnessbereich
Dieses gepflegte Einfamilienhaus vereint Ruhe, Sonne und Komfort in idealer Lage – direkt neben dem Wald und trotzdem zentral. Mit rund 190 m² Wohnfläche und 808 m² Grundstück bietet das Haus (Fertigstellung 2010) ein modernes, offenes Wohngefühl, sonnige Räume und einen hochwertigen Außenbereich. Das Gebäude wurde seit der Fertigstellung laufend erweitert, modernisiert und liebevoll gepflegt. Innenbereich: • Offener Wohn- und Essbereich (ca. 65 m²) mit Kaminofen und direktem Gartenzugang • 4 weitere Zimmer + offene Galerie im Obergeschoss • Erdgeschoss-Zimmer flexibel als Büro, Garderobe oder Gästezimmer nutzbar • Badezimmer (Badewanne...
NEUER PREIS: Top Lage, - tolles Haus mit großzügigem Wellnessbereich
Dieses gepflegte Einfamilienhaus vereint Ruhe, Sonne und Komfort in idealer Lage – direkt neben dem Wald und trotzdem zentral.
Mit rund 190 m² Wohnfläche und 808 m² Grundstück bietet das Haus (Fertigstellung 2010) ein modernes, offenes Wohngefühl, sonnige Räume und einen hochwertigen Außenbereich.
Das Gebäude wurde seit der Fertigstellung laufend erweitert, modernisiert und liebevoll gepflegt.
Innenbereich:
• Offener Wohn- und Essbereich (ca. 65 m²) mit Kaminofen und direktem Gartenzugang
• 4 weitere Zimmer + offene Galerie im Obergeschoss
• Erdgeschoss-Zimmer flexibel als Büro, Garderobe oder Gästezimmer nutzbar
• Badezimmer (Badewanne mit Licht- & Luftfunktion, Dusche extra)
• Separates WC im Erdgeschoss, WC im Obergeschoss (für Dusche alles vorbereitet)
• Beheizter Keller mit Waschraum, Speise, großer Raum, Warmwasserbecken & direktem Zugang zur Doppelgarage mit 30 m² (Platz für 2 Autos)
• Dachboden als zusätzlicher Stauraum
• Fußbodenheizung, Luftwärmepumpe und Kaminofen – energieeffizient & gemütlich.
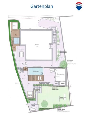
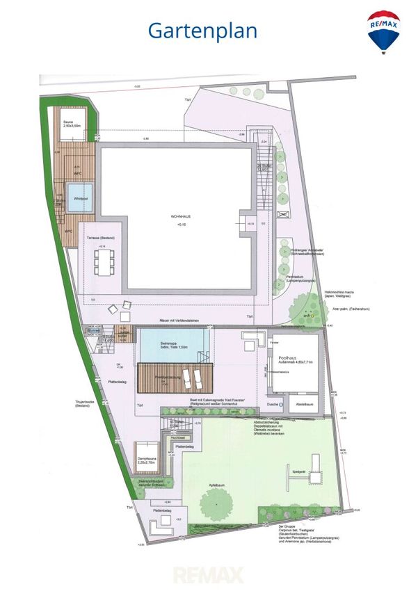
Außenbereich:
• Beheizbarer Swim - Spa mit Gegenstromanlage – ideal zum Schwimmen & Entspannen
• Designer-Whirlpool mit Überlauf und Blick in den Garten
• Außendusche mit Warmwasseranschluss beim Poolbereich
• Finnische Sauna & Dampfsauna im Wellnessbereich
• Gemauertes Partyhaus mit voll ausgestatteter Küche, Fernseher, Side-by-Side-Kühlschränken & Gefrierschrank, dazu eine eigene beschattete Terrasse.
• Zwei große gemauerte Garten-Läden mit Schiebetüre, zum Verstauen von Zubehör, daneben Platz für Griller
• Mehrere Sitz- & Rückzugsbereiche – Sonne & Schatten den ganzen Tag
• Integrierte Lichtanlage & Musiksystem im Garten
• Eigener Wasserbrunnen (Trinkwasserqualität) + Gartenbrunnen zur Bewässerung
• Hochwertige Steinmauer, großformatige Gartenfliesen, gepflegte Hochbeete & absolute Privatsphäre
Lage
Einmalige Kombination aus Ruhe, Natur und Zentralität – das Haus liegt direkt neben dem Wald, ideal zum Spazieren, Entspannen und Erholen.
Auf der anderen Seite eröffnet sich der Blick über weitläufige Felder und in Richtung Stadt.
Trotz der ruhigen Lage sind Schulen, Kindergarten, Einkaufsmöglichkeiten und Bahnhof in wenigen Minuten erreichbar.
Sonne den ganzen Tag inklusive.
Der Vermittler ist als Doppelmakler tätig.
Infrastruktur / Entfernungen
Gesundheit
Arzt <2.500m
Apotheke <2.500m
Krankenhaus <4.000m
Kinder & Schulen
Schule <1.500m
Kindergarten <1.500m
Höhere Schule <3.000m
Nahversorgung
Supermarkt <1.000m
Bäckerei <2.000m
Einkaufszentrum <1.500m
Sonstige
Bank <1.500m
Geldautomat <2.000m
Polizei <2.500m
Post <1.500m
Verkehr
Bus <500m
Bahnhof <2.000m
Autobahnanschluss <6.500m
Angaben Entfernung Luftlinie / Quelle: OpenStreetMap
Objektdaten
Ausstattung
- Kamin
- Sauna
- Wellnessbereich
- Bad mit Dusche
- Bad mit Badewanne
- Fußbodenheizung
Dokumente / Links
Zustand
- Baujahr
- 2007
- HWB
- 54 kWh/m² pro Jahr
- Klasse HWB
- C
- fGEE
- 0.81
- Klasse fGEE
- A
Flächen
- Anzahl der Zimmer
- 5
- Wohnfläche
- 190m²
- Grundstücksfläche
- 808m²
Kosten
- Kaufpreis Brutto
- € 719.000,00
Verwaltung
- Verfügbar ab
- sofort
Häuser zum Kaufen im Umkreis von Vöcklabruck
Häuser zum Kaufen im Umkreis von Vöcklabruck
Häuser zum Kaufen in Österreich
Andere Besucher suchen nach...
- Grundstücke kaufen in 3400 Weidlingbach
- Wohnungen kaufen in 4663 Laakirchen
- Häuser in 7471 Rechnitz
- Wohnungen in 2410 Hainburg an der Donau
- Häuser kaufen in 2432 Schwadorf
- Wohnungen kaufen in 3002 Purkersdorf
- Häuser in 3150 Wilhelmsburg
- Wohnungen kaufen in 3470 Engelmannsbrunn
- Grundstücke kaufen im Bezirk Mattersburg
- Grundstücke kaufen im Bezirk Gmunden