*** Historisches Anwesen mit Landliebe & Nutzungsmix: Großfamilien, Anleger, Kreative finden hier Raum für Visionen! ***
-
nach Absprache
Beschreibung
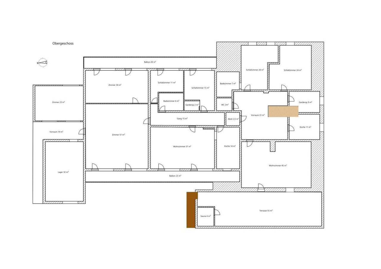
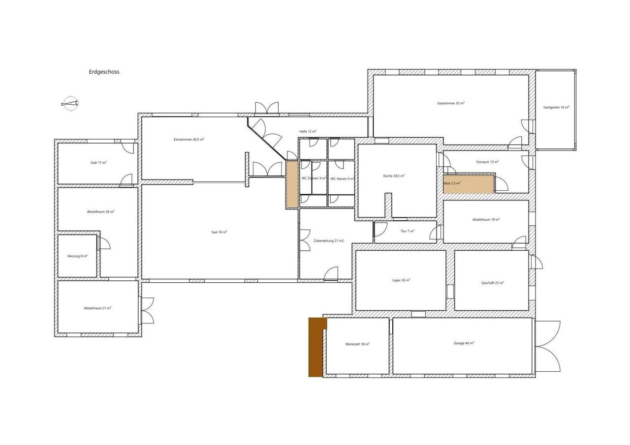
Ein Ort mit Geschichte und Zukunft – ein Anwesen voller Möglichkeiten Willkommen in Arzberg – einem Ort, wo Geschichte, Natur und unternehmerische Freiheit in einem einzigartigen Anwesen verschmelzen. Dieses geschichtsträchtige Objekt mit Ursprüngen aus dem Jahr 1754 bietet auf einer beeindruckenden Gesamtfläche von 4.546 m² eine außergewöhnliche Kombination aus betriebsbereitem Gastronomiebereich, vielseitigen Wohnmöglichkeiten und zusätzlichen Nutzflächen – alles in traumhafter Ruhelage im steirischen Almenland. Das Anwesen im Überblick Grundstücksfläche gesamt: ca. 4.546 m² 1.576 m² Baugrund (mit Hauptgebäude und Zubauten) 1.411 m² Waldfläche 1.559 m² Freiland / Verkehrsfläche Gewerbefläche (ehem. Gasthof + Kaufhaus): ca. 320,69 m² Nutzflächen gesamt: ca. 1.041...
Ein Ort mit Geschichte und Zukunft – ein Anwesen voller Möglichkeiten
Willkommen in Arzberg – einem Ort, wo Geschichte, Natur und unternehmerische Freiheit in einem einzigartigen Anwesen verschmelzen. Dieses geschichtsträchtige Objekt mit Ursprüngen aus dem Jahr 1754 bietet auf einer beeindruckenden Gesamtfläche von 4.546 m² eine außergewöhnliche Kombination aus betriebsbereitem Gastronomiebereich, vielseitigen Wohnmöglichkeiten und zusätzlichen Nutzflächen – alles in traumhafter Ruhelage im steirischen Almenland.
Das Anwesen im Überblick
Grundstücksfläche gesamt: ca. 4.546 m²
1.576 m² Baugrund (mit Hauptgebäude und Zubauten)
1.411 m² Waldfläche
1.559 m² Freiland / Verkehrsfläche
Gewerbefläche (ehem. Gasthof + Kaufhaus): ca. 320,69 m²
Nutzflächen gesamt: ca. 1.041 m²
davon ca. 467 m² Wohnfläche
inkl. Keller, Garage, Lager, Werkstatt, Heizraum, Stall
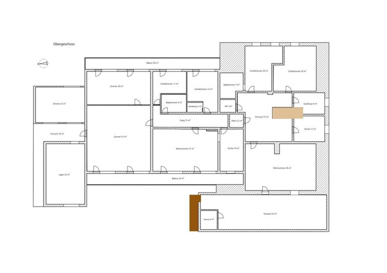
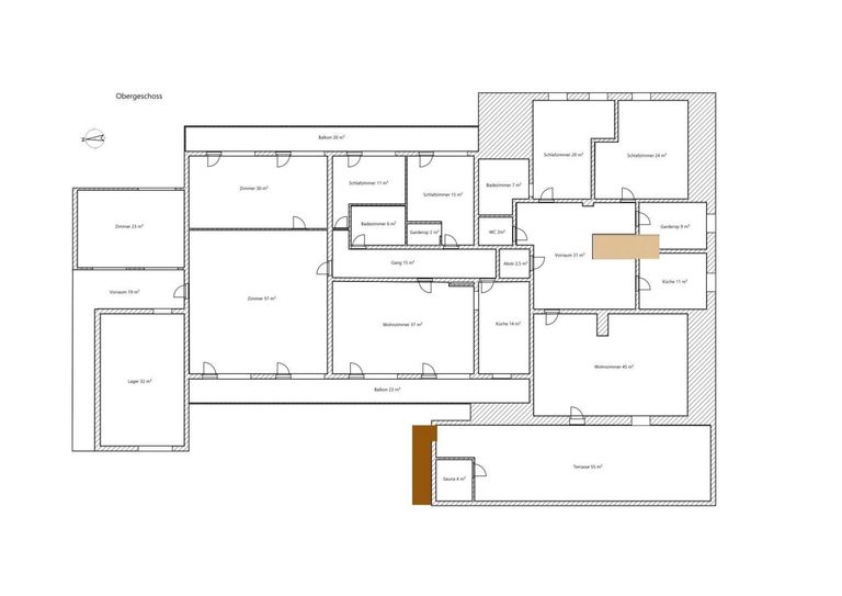
Wohnung mit Kamin, Sauna & Terrasse: 174 m² Wohnfläche + 55 m² Terrasse (modern, hochwertig)
Parken: Carport für 6–7 Fahrzeuge + zusätzliche Stellflächen
Highlights & Ausstattung
Aufrechte Gastgewerbewidmung – sofortige Wiedereröffnung möglich
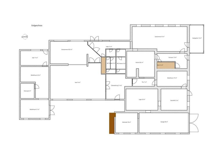
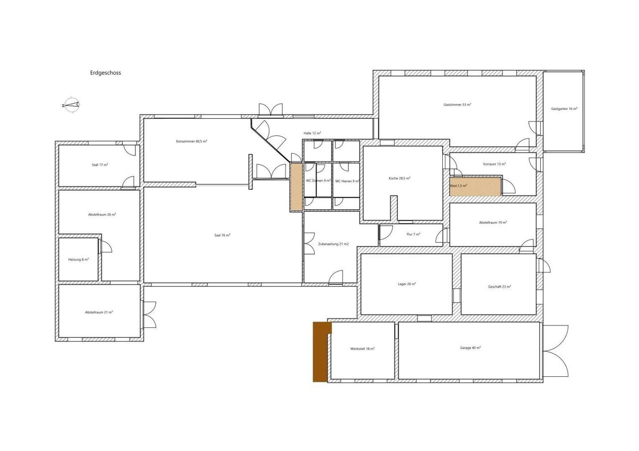
Großer Festsaal, Bar, Wintergärten, komplett ausgestattete Gastroküche
Hochwertige Eigentümerwohnung mit Kamin, Sauna, Terrassenanlage
Zusätzliche getrennte Wohneinheiten oder Gästezimmer
Hackschnitzelheizung (umweltfreundlich & effizient)
Automatisches Einfahrtstor, weitläufiger Garten, Balkonflächen (43 m²)
Garage, Werkstatt, Stall, Lagerflächen – ideal für gewerbliche Nutzung oder Selbstversorgung
Zielgruppen & Nutzungspotenziale
Diese Immobilie ist ein wahres Chamäleon mit vielfältigen Möglichkeiten. Ideal für:
1. Kommunen & Institutionen
Kindergärten, Vereinszentren, Tagesbetreuung oder Schulungszentren in ländlicher Lage mit fertiger Infrastruktur.
2. Unternehmer & Gewerbetreibende
Gasthof, Seminarhaus, Beherbergung, Werkstätten oder Praxisräume mit Wohnanteil. Gastronomischer Betrieb sofort möglich.
3. Gemeinschaften & Wohnprojekte
Mehrgenerationenwohnen, soziale oder ökologische Projekte, Wohngemeinschaften, Stiftungen.
4. Großfamilien & Generationenhaushalte
Viel Platz und getrennte Einheiten für mehrere Familienzweige.
5. Anleger & Investoren
Vermietung von Wohneinheiten und Gewerbe, Projektentwicklung, touristische Nutzung.
6. Selbstversorger & Aussteiger
Garten, Wald, Stall und Werkstatt für ein autarkes Leben in Ruhe und Natur.
7. Künstler & Kreative
Räume für Ateliers, Proben, Retreats oder Veranstaltungen.
8. Seniorenwohnen oder Pflegekonzepte
Umbau für betreutes Wohnen in ruhiger Lage mit großzügigem Grund.
Standort & Infrastruktur: Natur trifft Versorgungssicherheit
Lage: Arzberg, Marktgemeinde Passail, Bezirk Weiz, Steiermark
Höhenlage: ca. 579 m Seehöhe
Naturpark Almenland: Wandern, Radfahren, Natur pur direkt vor der Tür
Volksschule & Kindergarten: im Ort bzw. in Passail
Mittelschule & Musikschule: in Passail
Ärzte & Nahversorgung: Supermärkte, Tankstelle, medizinische Einrichtungen in Passail
Freizeit: Golfclub, Tennis, Bogensport, Vereine, Raabklamm uvm.
Verkehrsanbindung: ca. 30 km nordöstlich von Graz, Busverbindungen vorhanden
Ein Stück Geschichte mit Zukunftspotential
Dieses teilsanierte Anwesen ist eine absolute Rarität am steirischen Immobilienmarkt. Ob als Ort zum Leben, als Investment oder als Kombination aus Wohnen und Arbeiten – hier finden Ihre Visionen den richtigen Rahmen.
Lassen Sie sich diese Gelegenheit nicht entgehen und schreiben Sie mit Arzberg 26 Ihre eigene Erfolgsgeschichte!
Der Vermittler ist als Doppelmakler tätig.
Infrastruktur / Entfernungen
Gesundheit
Arzt <4.000m
Krankenhaus <8.000m
Apotheke <4.000m
Kinder & Schulen
Schule <500m
Kindergarten <500m
Nahversorgung
Supermarkt <3.500m
Bäckerei <9.000m
Einkaufszentrum <9.500m
Sonstige
Bank <4.000m
Geldautomat <4.000m
Post <4.000m
Polizei <4.000m
Verkehr
Bus <500m
Bahnhof <9.000m
Angaben Entfernung Luftlinie / Quelle: OpenStreetMap
Objektdaten
Ausstattung
- WG geeignet
- Räume veränderbar
- Teilmöbliert
- Sauna
- Gastterrasse
- Gäste-WC
- Bad mit Dusche
- Bad mit Badewanne
- Bad mit Fenster
- Bad mit Pissoir
- Einbauküche
- Fliesenboden
- Parkettboden
- Laminatboden
- Estrichboden
- Zentralheizung
- Befeuerung mit Holz
- Ausrichtung Balkon/Terrasse - Südwest
- Satteldach
- Neubaustandard
Zustand
- Zustand
- GEPFLEGT
- Baujahr
- 1754
- HWB
- 154.9 kWh/m² pro Jahr
- Klasse HWB
- E
- fGEE
- 1.85
- Klasse fGEE
- D
Flächen
- Anzahl der Zimmer
- 8.5
- Anzahl der Badezimmer
- 2
- Anzahl der sep. WCs
- 4
- Anzahl der Balkone
- 2
- Anzahl der Terrassen
- 1
- Stellplätze
- 8
- Wohnfläche
- 467m²
- Nutzfläche
- 1.041m²
- Grundstücksfläche
- 4.546m²
- Kellerfläche
- 147m²
- Terrassenfläche
- 1m²
Kosten
- Kaufpreis Brutto
- € 535.000,00
- Betriebskosten
- € 60,00
- Heizkosten
- € 206,00
Verwaltung
- Verfügbar ab
- nach Absprache
Häuser zum Kaufen im Umkreis von Passail
Häuser zum Kaufen im Umkreis von Passail
Häuser zum Kaufen in Österreich
Andere Besucher suchen nach...
- Grundstücke kaufen in 3400 Weidlingbach
- Wohnungen kaufen in 4663 Laakirchen
- Häuser in 7471 Rechnitz
- Wohnungen in 2410 Hainburg an der Donau
- Häuser kaufen in 2432 Schwadorf
- Wohnungen kaufen in 3002 Purkersdorf
- Häuser in 3150 Wilhelmsburg
- Wohnungen kaufen in 3470 Engelmannsbrunn
- Grundstücke kaufen im Bezirk Mattersburg
- Grundstücke kaufen im Bezirk Gmunden