Historische Mühle in Schlossnähe zu kaufen – vielseitige Nutzung möglich
Beschreibung
Historische Mühle in Schlossnähe zu kaufen – vielseitige Nutzung möglich
Inmitten der malerischen Ortschaft Achleiten, eingebettet zwischen Natur und Geschichte, gelangt eine besondere Liegenschaft zum Verkauf: eine ehemalige Mühle mit großem Grundstück, direkter Schlossnähe und vielfältigem Potenzial. Die Immobilie befindet sich auf einem rund 7.800 m² großen Areal und überzeugt durch ihre Kombination aus historischem Charme, großzügiger Fläche und vielseitigen Nutzungsmöglichkeiten – sei es für private Wohnträume, gewerbliche Vorhaben oder als Entwicklungsprojekt für Bauträger.
Das charmante Bestandsgebäude bietet eine Wohnfläche von über 680 m² sowie zusätzlich fast 930 m² an vielseitig nutzbarer Fläche. Die Bausubstanz stammt aus früheren Zeiten und...
Historische Mühle in Schlossnähe zu kaufen – vielseitige Nutzung möglich
Inmitten der malerischen Ortschaft Achleiten, eingebettet zwischen Natur und Geschichte, gelangt eine besondere Liegenschaft zum Verkauf: eine ehemalige Mühle mit großem Grundstück, direkter Schlossnähe und vielfältigem Potenzial. Die Immobilie befindet sich auf einem rund 7.800 m² großen Areal und überzeugt durch ihre Kombination aus historischem Charme, großzügiger Fläche und vielseitigen Nutzungsmöglichkeiten – sei es für private Wohnträume, gewerbliche Vorhaben oder als Entwicklungsprojekt für Bauträger.
Das charmante Bestandsgebäude bietet eine Wohnfläche von über 680 m² sowie zusätzlich fast 930 m² an vielseitig nutzbarer Fläche. Die Bausubstanz stammt aus früheren Zeiten und ist entsprechend sanierungsbedürftig, wobei bereits erste Modernisierungsmaßnahmen – etwa der Tausch von Fenstern, Türen sowie Teilbereiche der Haustechnik – umgesetzt wurden. Kanal-, Wasser- und Straßenanschluss sind vollständig bezahlt, was künftigen Eigentümer zusätzliche Planungssicherheit gibt.
Der gepflegte Garten wurde liebevoll gestaltet und mit einer automatischen Bewässerungsanlage ausgestattet, die mit eigenem Brunnenwasser betrieben wird. Ergänzt wird das Naturidyll durch einen kleinen Fischteich.
Für Projektentwickler eröffnet die Widmung als Dorfgebiet (ca. 2.600 m²) zusätzliche Perspektiven. Im Hauptgebäude könnten – nach Abstimmung mit der Gemeinde – bis zu elf Wohneinheiten entstehen. Voraussetzung dafür ist die Umsetzung entsprechender Stellplätze am Grundstück, wobei bereits mehrere Garagen und zusätzliche Parkmöglichkeiten vorhanden sind.
Darüber hinaus bietet das großzügige, leicht geneigte Grundstück auch Potenzial zur Errichtung einer Photovoltaikanlage, vorbehaltlich behördlicher Genehmigungen. Die Liegenschaft befindet sich in Alleineigentum und ist derzeit nicht unter Denkmalschutz gestellt. Aufgrund des historischen Charakters kann ein Denkmalschutz nach behördlicher Einschätzung erfolgen.
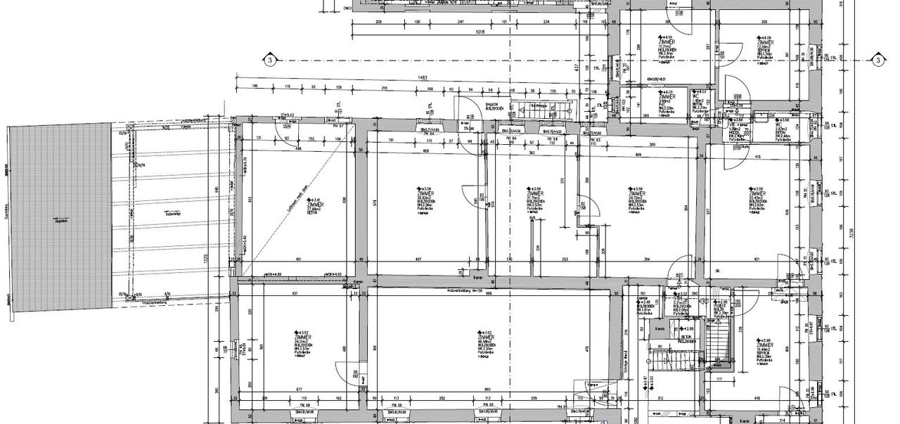
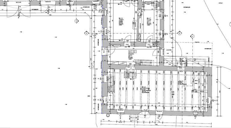
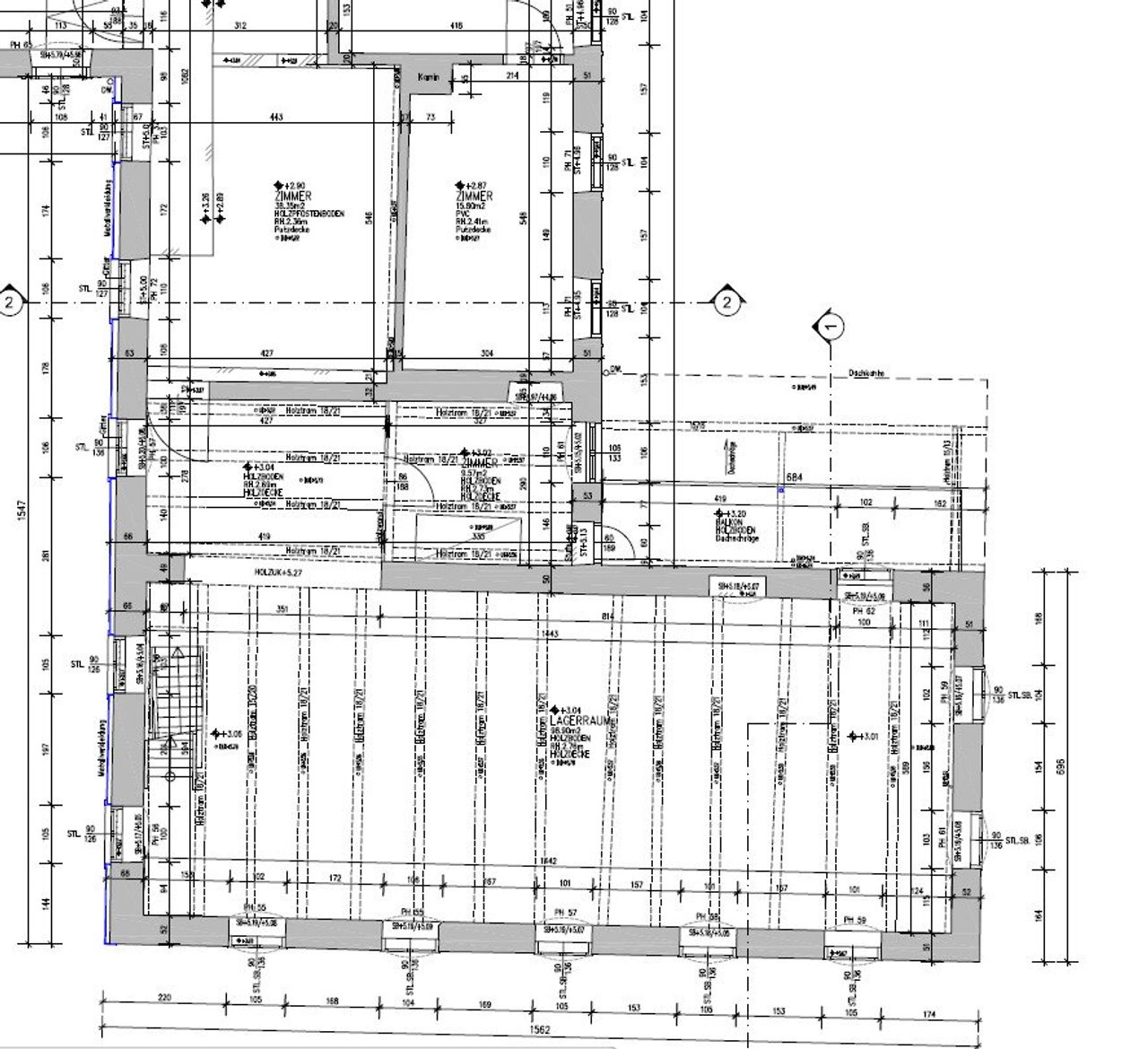
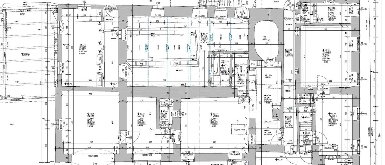
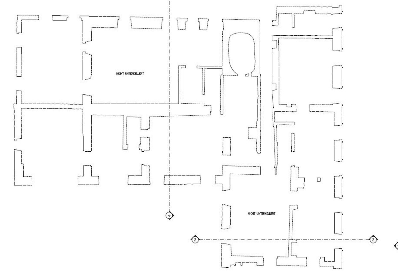
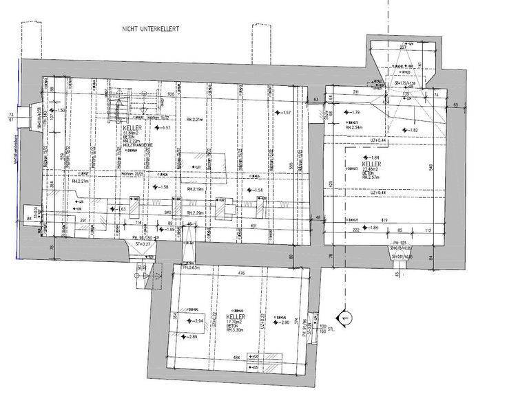
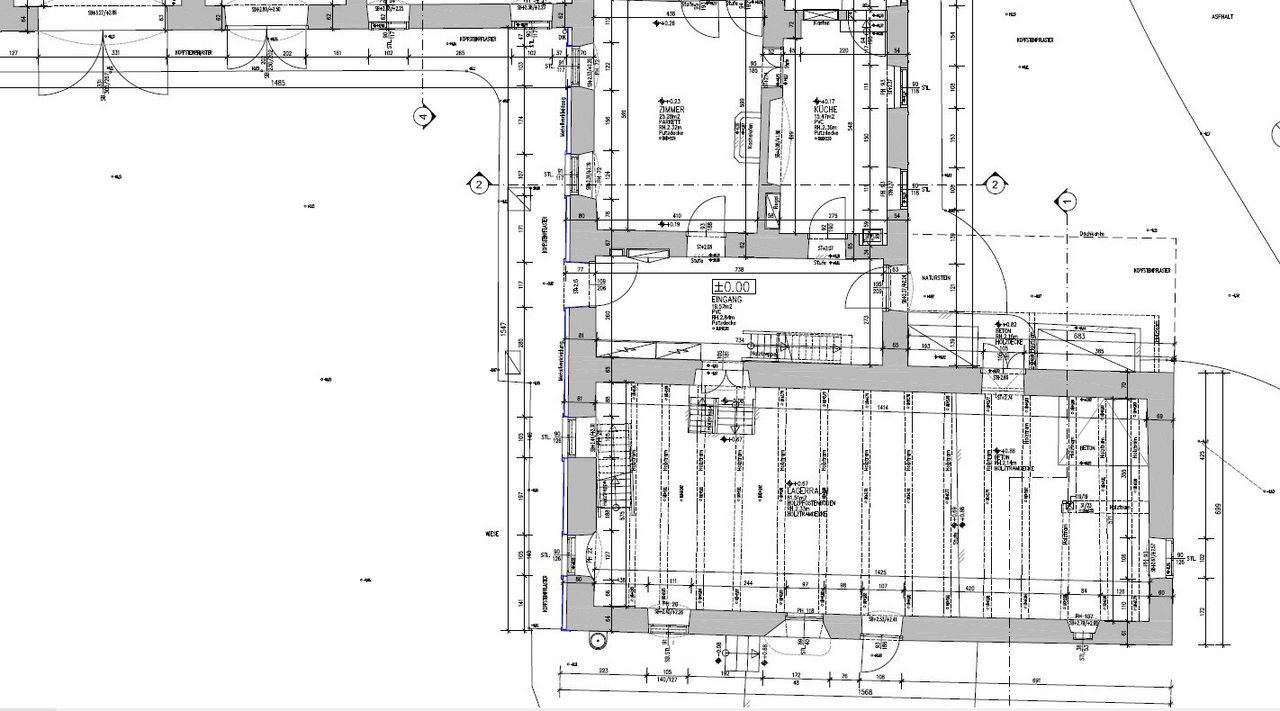
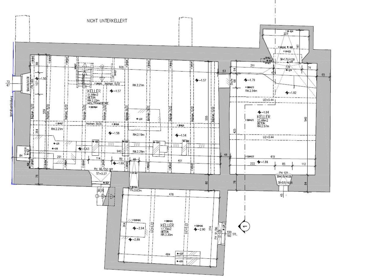
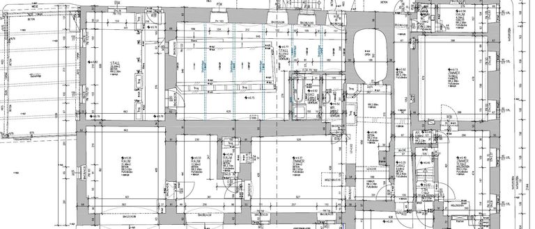
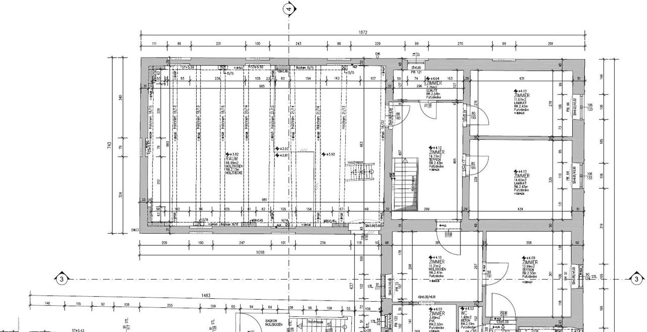
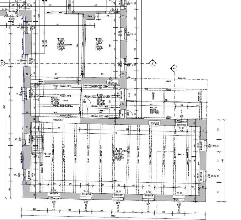
Raumaufteilung
Kellergeschoss - Erdgeschoss - 1.Obergeschoss - Dachboden
Lage
Die Immobilie liegt im Zentrum von Achleiten – direkt unterhalb des Schlosses Achleiten – in ruhiger, ländlicher Umgebung. Die Lage vereint historischen Charme mit guter Erreichbarkeit und bietet vielseitige Nutzungsmöglichkeiten in einer der schönsten Gegenden der Gemeinde Kematen an der Krems. Der Bahnhof Kematen an der Krems ist nur ca. 8 Minuten entfernt und bietet direkte Zugverbindungen Richtung Linz und Wels. Die A1 Westautobahn ist in etwa 20 Minuten erreichbar – so ist eine gute Anbindung an das regionale und überregionale Verkehrsnetz gewährleistet.
Sie haben Interesse?
Ansehen lohnt sich - wir freuen uns über Ihr Interesse! Für weitere Fragen stehen wir Ihnen gerne unter der Rufnummer 0664 386 26 80 zur Verfügung.
Auf Wunsch stellen wir gerne einen Kontakt zu Finanzierungsexperten her.
Rechtliche Informationen
Bitte beachten Sie, dass aufgrund unserer ALLEINBEAUFTRAGUNG und Nachweispflicht für den Abgeber ausschließlich Anfragen unter Angabe Ihrer VOLLSTÄNDIGEN DATEN bearbeiten können (NAME, ANSCHRIFT, E-Mail, Telefonnummer). Explizit weisen wir daraufhin, dass alle Angaben nach bestem Wissen erstellt wurden. Irrtümer, Druckfehler und Änderungen vorbehalten. Für Auskünfte u. Angaben, die uns von Seiten der Eigentümer und Dritten zur Verfügung gestellt wurden, können wir keine Haftung übernehmen.
Der Vermittler ist als Doppelmakler tätig.
Infrastruktur / Entfernungen
Gesundheit
Arzt <4.000m
Apotheke <4.500m
Klinik <8.500m
Kinder & Schulen
Schule <1.500m
Kindergarten <1.500m
Nahversorgung
Supermarkt <4.500m
Bäckerei <1.500m
Sonstige
Bank <1.500m
Geldautomat <1.500m
Post <1.500m
Polizei <4.500m
Verkehr
Bus <1.500m
Bahnhof <1.500m
Autobahnanschluss <9.500m
Flughafen <8.000m
Angaben Entfernung Luftlinie / Quelle: OpenStreetMap
Objektdaten
Ausstattung
- Gartennutzung
Zustand
- Baujahr
- 1416
- Alter
- ALTBAU
- HWB
- 177 kWh/m² pro Jahr
- Klasse HWB
- G
- Klasse fGEE
- F
Flächen
- Anzahl der Terrassen
- 1
- Wohnfläche
- 686m²
- Nutzfläche
- 933m²
- Grundstücksfläche
- 7.807m²
- Terrassenfläche
- 1m²
Kosten
- Kaufpreis Brutto
- € 749.000,00
- Betriebskosten
- € 500,00
Häuser zum Kaufen im Umkreis von Kematen an der Krems
Häuser zum Kaufen im Umkreis von Kematen an der Krems
Häuser zum Kaufen in Österreich
Andere Besucher suchen nach...
- Grundstücke kaufen in 3400 Weidlingbach
- Wohnungen kaufen in 4663 Laakirchen
- Häuser in 7471 Rechnitz
- Wohnungen in 2410 Hainburg an der Donau
- Häuser kaufen in 2432 Schwadorf
- Wohnungen kaufen in 3002 Purkersdorf
- Häuser in 3150 Wilhelmsburg
- Wohnungen kaufen in 3470 Engelmannsbrunn
- Grundstücke kaufen im Bezirk Mattersburg
- Grundstücke kaufen im Bezirk Gmunden