Doppelhaus in Toplage Oberlaa
€ 599.000
€ 4.643 / m²
1100 Wien
Beschreibung
Familienwohnen in begehrter Grünruhelage Oberlaa Diese charmante Doppelhaushälfte vereint großzügiges Wohnen, durchdachte Raumaufteilung und eine der gefragtesten Wohnlagen im Süden Wiens. In attraktiver Grünruhelage von Oberlaa gelegen, bietet die Immobilie ein ideales Zuhause für Familien, die Wert auf Wohnqualität, Freiraum und gute Infrastruktur legen. Bereits beim Betreten überzeugt das Haus mit seinem durchdachten Grundriss und einem angenehmen Wohnambiente. Das Herzstück des Erdgeschosses bildet der helle Wohnbereich mit gemütlichem Kamin und direktem Zugang über eine hochwertige Hebeschiebetüre zur Terrasse sowie in den südseitig ausgerichteten Garten – der perfekte Ort für entspannte Stunden mit Familie und Freunden. Die angrenzende Küche, ein praktischer...
Familienwohnen in begehrter Grünruhelage Oberlaa
Diese charmante Doppelhaushälfte vereint großzügiges Wohnen, durchdachte Raumaufteilung und eine der gefragtesten Wohnlagen im Süden Wiens. In attraktiver Grünruhelage von Oberlaa gelegen, bietet die Immobilie ein ideales Zuhause für Familien, die Wert auf Wohnqualität, Freiraum und gute Infrastruktur legen.
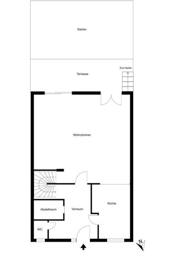
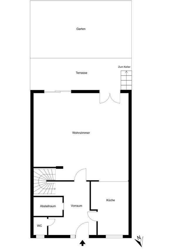
Bereits beim Betreten überzeugt das Haus mit seinem durchdachten Grundriss und einem angenehmen Wohnambiente. Das Herzstück des Erdgeschosses bildet der helle Wohnbereich mit gemütlichem Kamin und direktem Zugang über eine hochwertige Hebeschiebetüre zur Terrasse sowie in den südseitig ausgerichteten Garten – der perfekte Ort für entspannte Stunden mit Familie und Freunden. Die angrenzende Küche, ein praktischer Abstellraum, Vorraum sowie ein Gäste-WC komplettieren diese Ebene. Für zusätzlichen Wohnkomfort sorgt die Fußbodenheizung im gesamten Erdgeschoss.
Im Obergeschoss erwarten Sie drei gut geschnittene Zimmer, wobei zwei davon direkten Zugang zum Balkon bieten. Ein Badezimmer mit Eckbadewanne und Dusche sowie ein begehbarer Schrank sorgen für zusätzlichen Wohnkomfort und ein funktionales Raumkonzept. Ein durchdachtes Detail mit hohem Alltagskomfort: Der im Badezimmer integrierte Wäscheabwurf führt direkt zur Waschküche im Kellergeschoss.
Das Kellergeschoss bietet wertvolle Zusatzfläche mit zwei vielseitig nutzbaren Räumen und einer separaten Waschküche. Besonders praktisch: Die großzügige Garage mit Platz für zwei Fahrzeuge ermöglicht den direkten Zugang ins Haus. Ein zusätzlicher Gartenzugang vom Kellergeschoss schafft weitere Alltagserleichterung.
Ausstattungsdetails wie Außenjalousien, die Hebeschiebetüre im Wohnbereich sowie zahlreiche praktische Wohnlösungen unterstreichen das Potenzial dieser Immobilie.
Das Haus befindet sich in gepflegtem Zustand und bietet eine solide Basis für individuelles Wohnen. Je nach Anspruch und gewünschtem Modernisierungsgrad sind vereinzelt Adaptierungs- bzw. Erneuerungsmaßnahmen vorzusehen, wodurch sich die Möglichkeit eröffnet, die Immobilie nach eigenen Vorstellungen zeitgemäß zu gestalten und aufzuwerten.
Die Lage überzeugt durch ihre Kombination aus Ruhe, Natur und urbaner Infrastruktur: Das beliebte Naherholungsgebiet rund um den Kurpark Oberlaa sowie die renommierte Therme Wien befinden sich in komfortabler Reichweite und bieten einen außergewöhnlichen Freizeitwert. Die U1-Endstation U-Bahn-Station Oberlaa sorgt für eine schnelle und direkte Verbindung in die Wiener Innenstadt. Familien profitieren zudem von Schulen und Kinderbetreuungseinrichtungen im nahen Umfeld, während zahlreiche Einkaufsmöglichkeiten den Alltag angenehm gestalten.
Diese Immobilie bietet die seltene Gelegenheit, großzügiges Familienwohnen in einer der lebenswertesten Wohngegenden Oberlaas zu genießen.
Der Richtpreis € 599.000,--
Heizkostenangaben nicht verfügbar!
Alle Angaben beruhen auf Informationen des Eigentümers und sind ohne Gewähr.
Der Vermittler ist als Doppelmakler tätig!
Diese charmante Doppelhaushälfte vereint großzügiges Wohnen, durchdachte Raumaufteilung und eine der gefragtesten Wohnlagen im Süden Wiens. In attraktiver Grünruhelage von Oberlaa gelegen, bietet die Immobilie ein ideales Zuhause für Familien, die Wert auf Wohnqualität, Freiraum und gute Infrastruktur legen.
Bereits beim Betreten überzeugt das Haus mit seinem durchdachten Grundriss und einem angenehmen Wohnambiente. Das Herzstück des Erdgeschosses bildet der helle Wohnbereich mit gemütlichem Kamin und direktem Zugang über eine hochwertige Hebeschiebetüre zur Terrasse sowie in den südseitig ausgerichteten Garten – der perfekte Ort für entspannte Stunden mit Familie und Freunden. Die angrenzende Küche, ein praktischer Abstellraum, Vorraum sowie ein Gäste-WC komplettieren diese Ebene. Für zusätzlichen Wohnkomfort sorgt die Fußbodenheizung im gesamten Erdgeschoss.
Im Obergeschoss erwarten Sie drei gut geschnittene Zimmer, wobei zwei davon direkten Zugang zum Balkon bieten. Ein Badezimmer mit Eckbadewanne und Dusche sowie ein begehbarer Schrank sorgen für zusätzlichen Wohnkomfort und ein funktionales Raumkonzept. Ein durchdachtes Detail mit hohem Alltagskomfort: Der im Badezimmer integrierte Wäscheabwurf führt direkt zur Waschküche im Kellergeschoss.
Das Kellergeschoss bietet wertvolle Zusatzfläche mit zwei vielseitig nutzbaren Räumen und einer separaten Waschküche. Besonders praktisch: Die großzügige Garage mit Platz für zwei Fahrzeuge ermöglicht den direkten Zugang ins Haus. Ein zusätzlicher Gartenzugang vom Kellergeschoss schafft weitere Alltagserleichterung.
Ausstattungsdetails wie Außenjalousien, die Hebeschiebetüre im Wohnbereich sowie zahlreiche praktische Wohnlösungen unterstreichen das Potenzial dieser Immobilie.
Das Haus befindet sich in gepflegtem Zustand und bietet eine solide Basis für individuelles Wohnen. Je nach Anspruch und gewünschtem Modernisierungsgrad sind vereinzelt Adaptierungs- bzw. Erneuerungsmaßnahmen vorzusehen, wodurch sich die Möglichkeit eröffnet, die Immobilie nach eigenen Vorstellungen zeitgemäß zu gestalten und aufzuwerten.
Die Lage überzeugt durch ihre Kombination aus Ruhe, Natur und urbaner Infrastruktur: Das beliebte Naherholungsgebiet rund um den Kurpark Oberlaa sowie die renommierte Therme Wien befinden sich in komfortabler Reichweite und bieten einen außergewöhnlichen Freizeitwert. Die U1-Endstation U-Bahn-Station Oberlaa sorgt für eine schnelle und direkte Verbindung in die Wiener Innenstadt. Familien profitieren zudem von Schulen und Kinderbetreuungseinrichtungen im nahen Umfeld, während zahlreiche Einkaufsmöglichkeiten den Alltag angenehm gestalten.
Diese Immobilie bietet die seltene Gelegenheit, großzügiges Familienwohnen in einer der lebenswertesten Wohngegenden Oberlaas zu genießen.
Der Richtpreis € 599.000,--
Heizkostenangaben nicht verfügbar!
Alle Angaben beruhen auf Informationen des Eigentümers und sind ohne Gewähr.
Der Vermittler ist als Doppelmakler tätig!
| Angaben gemäß gesetzlichem Erfordernis: | |||
| Heizwärmebedarf: | 58.0 kWh/(m²a) | ||
| Klasse Heizwärmebedarf: | C | ||
| Faktor Gesamtenergieeffizienz: | 1.12 | ||
| Klasse Faktor Gesamtenergieeffizienz: | C | ||
Objektdaten
Ausstattung
- Kamin
- Teilmöbliert
- Unterkellert
- Etage Heizung
- Befeuerung mit Gas
- Gasetagenheizung
- Grüne Lage
- Kamin
- Stadtrand
- Teilmöbliert
Zustand
- Zustand
- GEPFLEGT
- Baujahr
- ca. 1996
Flächen
- Anzahl der Zimmer
- 4
- Anzahl der Badezimmer
- 1
- Anzahl der sep. WCs
- 2
- Anzahl der Balkone
- 1
- Anzahl der Terrassen
- 1
- Stellplätze
- 2
- Wohnfläche
- 129m²
- Terrassenfläche
- 1m²
Kosten
- Kaufpreis
- € 599.000,00
Verwaltung
- Verfügbar ab
- nach Vereinbarung
Häuser zum Kaufen in Österreich
- Bezirk Gemeindebezirk Favoriten
- Bezirk Gemeindebezirk Favoriten
- Bezirk Gemeindebezirk Favoriten
- Bezirk Gemeindebezirk Simmering
- Bezirk Gemeindebezirk Simmering
- Bezirk Gemeindebezirk Simmering
- Bezirk Gemeindebezirk Meidling
- Bezirk Gemeindebezirk Meidling
- Bezirk Gemeindebezirk Meidling
- Bezirk Gemeindebezirk Liesing
Häuser zum Kaufen in Österreich
Häuser zum Kaufen in Österreich
Andere Besucher suchen nach...
- Grundstücke kaufen in 3400 Weidlingbach
- Wohnungen kaufen in 4663 Laakirchen
- Häuser in 7471 Rechnitz
- Wohnungen in 2410 Hainburg an der Donau
- Häuser kaufen in 2432 Schwadorf
- Wohnungen kaufen in 3002 Purkersdorf
- Häuser in 3150 Wilhelmsburg
- Wohnungen kaufen in 3470 Engelmannsbrunn
- Grundstücke kaufen im Bezirk Mattersburg
- Grundstücke kaufen im Bezirk Gmunden