STADTHAUS! Mit 4 Zimmern und Garten
€ 349.000
€ 3.356 / m²
1110 Wien
-
nach Absprache
Beschreibung
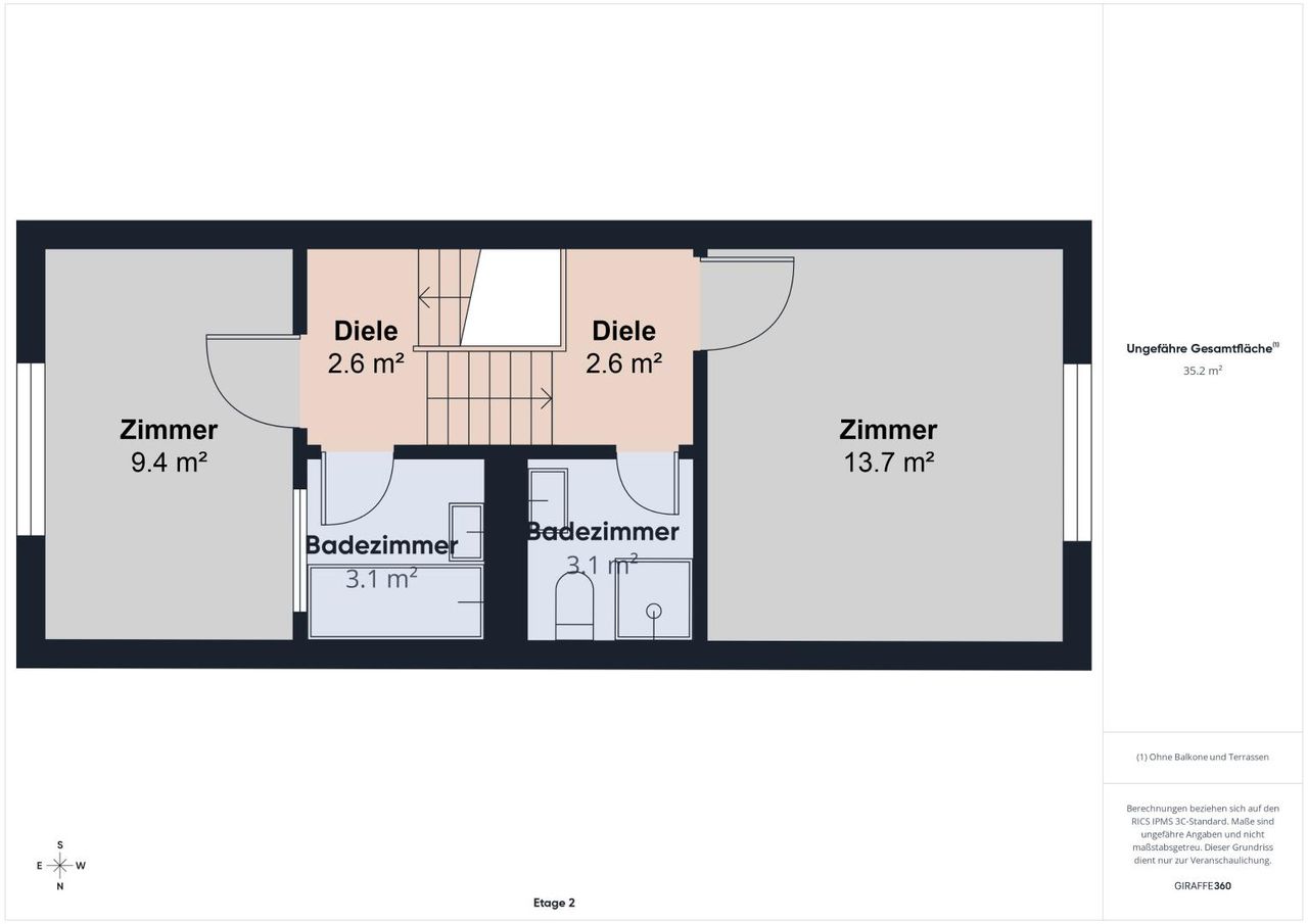
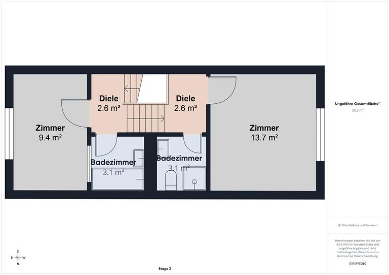
+++ OPEN HOUSE AM SAMSTAG, DEM 09.05.2026 VON 09:00 BIS 13:00 +++ +++ UM ANMELDUNG WIRD GEBETEN +++ WOHNEN AUF MEHREREN EBENEN Zum Verkauf gelangt ein ca. 104 m² großes Eckreihenhaus in einer verkehrsberuhigten Zone am Rande von Simmering. Das südwestlich ausgerichtete Objekt auf mehreren Halbstöcken besitzt 4 Zimmer und teilt sich auf wie folgt: ERDGESCHOSS 5 m² Vorraum 2,5 m² Diele 8 m² Lagerraum 19 m² Wohnzimmer 1. STOCK 15 m² Küche 14 m² Zimmer 3 m² WC 2,5 m² Diele 2. STOCK 13,5 m² Zimmer 9,5 m² Zimmer 3 m² Bad 3 m² Bad & WC 2,5 m²...
+++ OPEN HOUSE AM SAMSTAG, DEM 09.05.2026 VON 09:00 BIS 13:00 +++
+++ UM ANMELDUNG WIRD GEBETEN +++
WOHNEN AUF MEHREREN EBENEN
Zum Verkauf gelangt ein ca. 104 m² großes Eckreihenhaus in einer verkehrsberuhigten Zone am Rande von Simmering. Das südwestlich ausgerichtete Objekt auf mehreren Halbstöcken besitzt 4 Zimmer und teilt sich auf wie folgt:
ERDGESCHOSS
5 m² Vorraum
2,5 m² Diele
8 m² Lagerraum
19 m² Wohnzimmer
1. STOCK
15 m² Küche
14 m² Zimmer
3 m² WC
2,5 m² Diele
2. STOCK
13,5 m² Zimmer
9,5 m² Zimmer
3 m² Bad
3 m² Bad & WC
2,5 m² Diele
2,5 m² Diele
Die Immobilie wird mittels einer modernen VAILLANT Gas-Kombitherme über Heizkörper beheizt, verfügt über 3-fach verglaste Kunststofffenster (2019) mit elektrischen Außenrollläden und Fliegengittern und ist mit Parkett-, PVC- bzw. Fliesenböden ausgestattet.
Das Highlight ist mit Sicherheit der ca. 125 m² große, südwestlich ausgerichtete Garten mit Terrasse (Strom, Wasser) und Gartenhütte, der speziell im Sommer zum Genießen und Verweilen einlädt!
Des Weiteren ist ein PKW-Stellplatz direkt vor der Haustüre zugeordnet.
BETRIEBSKOSTEN: ca. € 158/Monat
ENERGIE: nach Verbrauch
STARTPREIS: € 349.000*
INFRASTRUKTUR
Kaiserebersdorf ist der südlichste Stadtteil von Simmering und verfügt über zahlreiche Nahversorger, ein dichtes Gesundheits- und Bildungsnetz, abwechslungsreiche Gastronomie sowie über ein breitgefächertes Freizeitprogramm.
VERKEHRSANBINDUNG
Nahegelegen sind sowohl die Simmeringer Hauptstraße als auch die A4-Autobahnauffahrt Simmering und mit diversen Bus- (71A, 71B, 73B) und Straßenbahnlinien (11, 71) sowie der Schnellbahn (S7) gelangen Sie auch ohne Auto rasch in die umliegende Region.
* Der Kaufpreis ist ein Richtwert, der sich noch nach oben orientieren kann. Die Immobilie wird über das Digitale Angebotsverfahren DAVE verkauft.
https://www.remax.at/de/immobilien/dave
Nur auf remax.at finden Sie neue RE/MAX Immobilien früher und vollständig, und mit der RE/MAX App sofort am Handy!
+++ UM ANMELDUNG WIRD GEBETEN +++
WOHNEN AUF MEHREREN EBENEN
Zum Verkauf gelangt ein ca. 104 m² großes Eckreihenhaus in einer verkehrsberuhigten Zone am Rande von Simmering. Das südwestlich ausgerichtete Objekt auf mehreren Halbstöcken besitzt 4 Zimmer und teilt sich auf wie folgt:
ERDGESCHOSS
5 m² Vorraum
2,5 m² Diele
8 m² Lagerraum
19 m² Wohnzimmer
1. STOCK
15 m² Küche
14 m² Zimmer
3 m² WC
2,5 m² Diele
2. STOCK
13,5 m² Zimmer
9,5 m² Zimmer
3 m² Bad
3 m² Bad & WC
2,5 m² Diele
2,5 m² Diele
Die Immobilie wird mittels einer modernen VAILLANT Gas-Kombitherme über Heizkörper beheizt, verfügt über 3-fach verglaste Kunststofffenster (2019) mit elektrischen Außenrollläden und Fliegengittern und ist mit Parkett-, PVC- bzw. Fliesenböden ausgestattet.
Das Highlight ist mit Sicherheit der ca. 125 m² große, südwestlich ausgerichtete Garten mit Terrasse (Strom, Wasser) und Gartenhütte, der speziell im Sommer zum Genießen und Verweilen einlädt!
Des Weiteren ist ein PKW-Stellplatz direkt vor der Haustüre zugeordnet.
BETRIEBSKOSTEN: ca. € 158/Monat
ENERGIE: nach Verbrauch
STARTPREIS: € 349.000*
INFRASTRUKTUR
Kaiserebersdorf ist der südlichste Stadtteil von Simmering und verfügt über zahlreiche Nahversorger, ein dichtes Gesundheits- und Bildungsnetz, abwechslungsreiche Gastronomie sowie über ein breitgefächertes Freizeitprogramm.
VERKEHRSANBINDUNG
Nahegelegen sind sowohl die Simmeringer Hauptstraße als auch die A4-Autobahnauffahrt Simmering und mit diversen Bus- (71A, 71B, 73B) und Straßenbahnlinien (11, 71) sowie der Schnellbahn (S7) gelangen Sie auch ohne Auto rasch in die umliegende Region.
* Der Kaufpreis ist ein Richtwert, der sich noch nach oben orientieren kann. Die Immobilie wird über das Digitale Angebotsverfahren DAVE verkauft.
https://www.remax.at/de/immobilien/dave
| Angaben gemäß gesetzlichem Erfordernis: | |||
| Heizwärmebedarf: | 217.0 kWh/(m²a) | ||
| Klasse Heizwärmebedarf: | F | ||
| Faktor Gesamtenergieeffizienz: | 2.84 | ||
| Klasse Faktor Gesamtenergieeffizienz: | E | ||
Nur auf remax.at finden Sie neue RE/MAX Immobilien früher und vollständig, und mit der RE/MAX App sofort am Handy!
Objektdaten
Ausstattung
- WG geeignet
- Kamin
- Gartennutzung
- Teilmöbliert
- Kabel/SAT-TV
- Massiv Bauweise
- Bad
- Zeigelmassiv
- Boden
- Bus
- Geschirrspüler
- Glaskeramikfeld
- Grüne Lage
- Kabel/SAT-TV
- Kamin
- Küche
- Sonstiges
- Sonnenschutz
- Sonnige Lage
- Stadtrand
- Straßenbahn
- Teilmöbliert
- Waschmaschine
Dokumente / Links
Zustand
- Zustand
- GEPFLEGT
- Baujahr
- ca. 1965
- Alter
- NEUBAU
Flächen
- Anzahl der Zimmer
- 4
- Anzahl der Schlafzimmer
- 3
- Anzahl der Badezimmer
- 2
- Anzahl der sep. WCs
- 2
- Anzahl der Terrassen
- 1
- Stellplätze
- 1
- Wohnfläche
- 104m²
- Grundstücksfläche
- 203m²
- Grundstücksfront
- 9m²
- Terrassenfläche
- 1m²
Kosten
- Kaufpreis
- € 349.000,00
- Nebenkosten
- € 158,00
- Betriebskosten Brutto
- € 158,00
Verwaltung
- Verfügbar ab
- nach Absprache
Häuser zum Kaufen in Österreich
- Bezirk Gemeindebezirk Simmering
- Bezirk Gemeindebezirk Simmering
- Bezirk Gemeindebezirk Simmering
- Bezirk Gemeindebezirk Favoriten
- Bezirk Gemeindebezirk Favoriten
- Bezirk Gemeindebezirk Favoriten
- Bezirk Gemeindebezirk Donaustadt
- Bezirk Gemeindebezirk Donaustadt
- Bezirk Gemeindebezirk Donaustadt
- Bezirk Gemeindebezirk Meidling
Häuser zum Kaufen in Österreich
Häuser zum Kaufen in Österreich
Andere Besucher suchen nach...
- Grundstücke kaufen in 3400 Weidlingbach
- Wohnungen kaufen in 4663 Laakirchen
- Häuser in 7471 Rechnitz
- Wohnungen in 2410 Hainburg an der Donau
- Häuser kaufen in 2432 Schwadorf
- Wohnungen kaufen in 3002 Purkersdorf
- Häuser in 3150 Wilhelmsburg
- Wohnungen kaufen in 3470 Engelmannsbrunn
- Grundstücke kaufen im Bezirk Mattersburg
- Grundstücke kaufen im Bezirk Gmunden