Modernes Wohnen auf drei Ebenen - PROVISIONSFREI!
-
Erstbezug
-
2024
-
sofort
Beschreibung
PROVISIONSFREI für den Käufer!
Die attraktive Lage nahe der Hütteldorfer Straße bietet eine sehr gute Infrastruktur mit Nahversorgern des täglichen Bedarfs in unmittelbarer Umgebung sowie vielfältigen Einkaufsmöglichkeiten im Auhof Center. Schulen sind fußläufig bzw. mit öffentlichen Verkehrsmitteln gut erreichbar.
Dieses hochwertig ausgeführte Townhouse überzeugt durch seine durchdachte Raumaufteilung auf drei Ebenen, moderne Ausstattung und ein Wohnkonzept, das sowohl Familien als auch anspruchsvolle Paare begeistert. Großzügige Fensterflächen sorgen für helle, freundliche Räume und ein angenehmes Wohngefühl.
Raumaufteilung
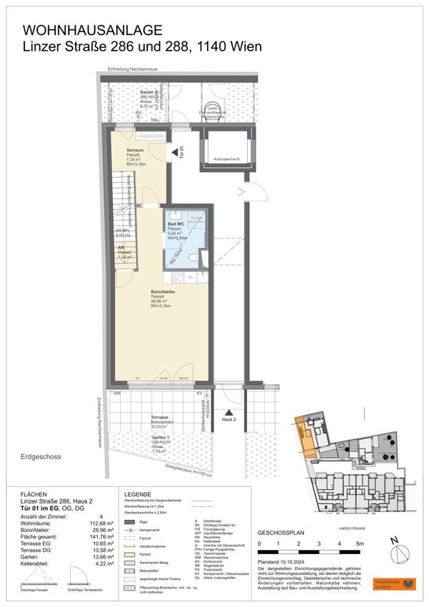
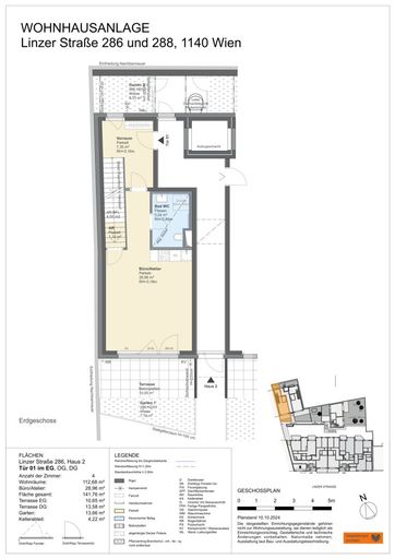
Erdgeschoss
- einladender Vorraum
- Büro / Gästezimmer
- Badezimmer mit Dusche und WC
- Abstellmöglichkeiten
- direkter Zugang zur Terrasse und zum Gartenbereich
Obergeschoss
- zentraler...
PROVISIONSFREI für den Käufer!
Die attraktive Lage nahe der Hütteldorfer Straße bietet eine sehr gute Infrastruktur mit Nahversorgern des täglichen Bedarfs in unmittelbarer Umgebung sowie vielfältigen Einkaufsmöglichkeiten im Auhof Center. Schulen sind fußläufig bzw. mit öffentlichen Verkehrsmitteln gut erreichbar.
Dieses hochwertig ausgeführte Townhouse überzeugt durch seine durchdachte Raumaufteilung auf drei Ebenen, moderne Ausstattung und ein Wohnkonzept, das sowohl Familien als auch anspruchsvolle Paare begeistert. Großzügige Fensterflächen sorgen für helle, freundliche Räume und ein angenehmes Wohngefühl.
Raumaufteilung
Erdgeschoss
- einladender Vorraum
- Büro / Gästezimmer
- Badezimmer mit Dusche und WC
- Abstellmöglichkeiten
- direkter Zugang zur Terrasse und zum Gartenbereich
Obergeschoss
- zentraler Vorraum
- zwei gut geschnittene Zimmer (ideal als Schlaf-, Kinder- oder Arbeitszimmer)
- Badezimmer mit Badewanne
- separates WC
- praktischer Abstellraum
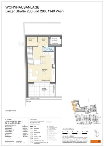
Dachgeschoss
- großzügige Wohnküche
- direkter Ausgang auf die Terrasse
- zusätzlicher Abstellraum
- beeindruckendes Wohngefühl durch die erhöhte Lage
Eine ausgezeichnete Verkehrsanbindung besteht durch:
- die Straßenbahnlinie 52 nahezu vor der Haustüre
- die Buslinie 47A mit Anschluss an die U4 (Ober St. Veit)
- die Straßenbahnlinie 49 mit Anbindung an die U3
Die A1-Autobahnauffahrt Auhof ist rasch erreichbar.
Die Wohnung wird schlüsselfertig übergeben und verfügt über Parkettböden in den Wohnräumen, eine geschmackvolle Ausstattung sowie die Verwendung hochwertiger Materialien.
Beheizung und Kühlung erfolgen über eine komfortable Deckenheizung und -kühlung mittels effizienter Wärmepumpenanlage mit Geothermie (Tiefenbohrungen) und Sonnenkollektoren und sorgen für ein angenehmes Wohnklima.
Die Fenster sind mit außenliegendem Sonnenschutz (Raffstores) ausgestattet, einzelne Fenster verfügen über Tuchbeschattung. Die Bedienung erfolgt bequem per Funkfernbedienung. Ein Lift ermöglicht die barrierefreie Erreichbarkeit aller Wohnetagen.
Stellplätze in der Tiefgarage können ab € 34.500,– erworben werden.
Wir weisen darauf hin, dass zwischen dem Vermittler und dem zu vermittelnden Dritten ein familiäres oder wirtschaftliches Naheverhältnis besteht.
Der Vermittler ist als Doppelmakler tätig.
Infrastruktur / Entfernungen
Gesundheit
Arzt <250m
Apotheke <500m
Klinik <1.750m
Krankenhaus <1.250m
Kinder & Schulen
Schule <250m
Kindergarten <250m
Universität <1.750m
Höhere Schule <3.500m
Nahversorgung
Supermarkt <500m
Bäckerei <500m
Einkaufszentrum <3.250m
Sonstige
Geldautomat <500m
Bank <500m
Post <500m
Polizei <1.000m
Verkehr
Bus <250m
U-Bahn <750m
Straßenbahn <250m
Bahnhof <750m
Autobahnanschluss <4.250m
Angaben Entfernung Luftlinie / Quelle: OpenStreetMap
Objektdaten
Ausstattung
- Fahrradraum
- Gäste-WC
- Bad mit Badewanne
- Fliesenboden
- Parkettboden
- Erdwärme
Zustand
- Zustand
- ERSTBEZUG
- Baujahr
- 2024
- Alter
- NEUBAU
- HWB
- 26.1 kWh/m² pro Jahr
- Klasse HWB
- B
- fGEE
- 0.75
- Klasse fGEE
- A++
Flächen
- Anzahl der Zimmer
- 4
- Anzahl der Badezimmer
- 2
- Anzahl der sep. WCs
- 3
- Anzahl der Terrassen
- 2
- Wohnfläche
- 142m²
- Gartenfläche
- 15m²
- Terrassenfläche
- 2m²
Kosten
- Kaufpreis Brutto
- € 849.000,00
- Betriebskosten
- € 293,82
- Sonstige Kosten
- € 117,24
Verwaltung
- Verfügbar ab
- sofort
Häuser zum Kaufen in Österreich
- Bezirk Gemeindebezirk Penzing
- Bezirk Gemeindebezirk Penzing
- Bezirk Gemeindebezirk Penzing
- Bezirk Gemeindebezirk Hietzing
- Bezirk Gemeindebezirk Hietzing
- Bezirk Gemeindebezirk Hietzing
- Bezirk Gemeindebezirk Ottakring
- Bezirk Gemeindebezirk Ottakring
- Bezirk Gemeindebezirk Ottakring
- Bezirk Gemeindebezirk Hernals
Häuser zum Kaufen in Österreich
Häuser zum Kaufen in Österreich
Andere Besucher suchen nach...
- Grundstücke kaufen in 3400 Weidlingbach
- Wohnungen kaufen in 4663 Laakirchen
- Häuser in 7471 Rechnitz
- Wohnungen in 2410 Hainburg an der Donau
- Häuser kaufen in 2432 Schwadorf
- Wohnungen kaufen in 3002 Purkersdorf
- Häuser in 3150 Wilhelmsburg
- Wohnungen kaufen in 3470 Engelmannsbrunn
- Grundstücke kaufen im Bezirk Mattersburg
- Grundstücke kaufen im Bezirk Gmunden