Erstbezug - Doppelhaushälfte mit Garten und Stellplatz in herrlicher Ruhelage - 1 Minute zum Marchfeldkanal
-
Erstbezug
-
2025
Beschreibung
In Grünruhelage direkt an das Erholungsgebiet des Marchfeldkanals anschliessend entsteht ein exklusives Wohnprojekt mit intelligenter Raumplanung. Die Realisierung umfasst ein Doppelhaus mit Terrasse und Garten sowie einem PKW Stellplatz. Das Haus bietet neben der geräumigen Wohnküche noch 4 weitere Zimmer welche sich über EG und OG verteilen. Die Ausführung erfolgt in ökologischer Holz-Massiv Bauweise. Jede Einheit hat einen Gartenanteil mit Terrasse und einen Stellplatz am Grundstück.
Der Einsatz einer Luft-Wärmepumpe zur Heizung und Warmwasseraufbereitung in Kombination mit einer Fußbodenheizung auf allen Ebenen schont die Umwelt, sorgt für ein angenehmes Raumklima und spart Betriebskosten.
Das Objekt ist belagsfertig...
In Grünruhelage direkt an das Erholungsgebiet des Marchfeldkanals anschliessend entsteht ein exklusives Wohnprojekt mit intelligenter Raumplanung. Die Realisierung umfasst ein Doppelhaus mit Terrasse und Garten sowie einem PKW Stellplatz. Das Haus bietet neben der geräumigen Wohnküche noch 4 weitere Zimmer welche sich über EG und OG verteilen. Die Ausführung erfolgt in ökologischer Holz-Massiv Bauweise. Jede Einheit hat einen Gartenanteil mit Terrasse und einen Stellplatz am Grundstück.
Der Einsatz einer Luft-Wärmepumpe zur Heizung und Warmwasseraufbereitung in Kombination mit einer Fußbodenheizung auf allen Ebenen schont die Umwelt, sorgt für ein angenehmes Raumklima und spart Betriebskosten.
Das Objekt ist belagsfertig und kann innerhalb von wenigen Wochen nach individuellen Wünschen schlüsselfertig gestellt werden! So können Sie das Frühjahr bereits im neuen Haus genießen.
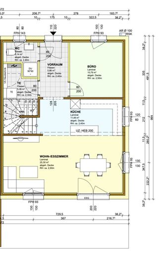
Raumaufteilung:
Im Erdgeschoss betritt man das Haus in den Vorraum, welcher ausreichend Platz für eine Garderobe bietet. Von hier aus gelangt man in die helle und geräumige Wohnküche mit Ausgang auf die Terrasse. Weiters ist ein Arbeitszimmer und ein voll ausgestattetes Bad mit Dusche im Erdgeschoss vorzufinden. Der Technikraum beinhaltet zusätzlich Platz für Waschmaschine und Trockner.
Über das Wohnzimmer erreichen Sie die Terrasse mit Zugang zum Garten, welcher um das Haus führt. Neben dem Haus befindet sich der KFZ Stellplatz.
Im Obergeschoss befinden sich 3 Zimmer mit ausreichend Platz zum wohnen für die gesamte Familie. Ein modernes, voll ausgestattetes Badezimmer mit Badewanne und Dusche lässt keine Wünsche offen. Ein zusätzliches Highlight ist der abgetrennten Abstellraum, welcher auch als begehbarer Schrank perfekt geeignet ist.
Bauweise:
Massivholzbauweise oder CLT (Cross-laminate timber) - robuste Wände aus dem nachwachsenden Rohstoff Holz bieten Schutz und eine Vielfalt von Gestaltungsmöglichkeiten. Das Material verfügt über eine ausgezeichnete Speicherfähigkeit für Wärme und stellt damit eine perfekte Grundlage für energieeffizientes Wohnen dar.
Die Errichtung wird durch ein österreichisches Traditionsunternehmen durchgeführt, welches mehr als 25 Jahre Erfahrung im Bereich des Holz-Massivbaus hat und höchste Ansprüche an eine erstklassige Ausführung stellt. Das verarbeitete Holz kommt fast ausschließlich aus dem Waldviertel in Niederösterreich.
Bei Interesse senden wir Ihnen die detaillierte Bau- und Ausstattungsbeschreibung des Objekts.
Baurecht:
Unter Baurecht versteht man das dingliche, veräußerliche und vererbliche Recht, auf oder unter der Bodenfläche eines fremden Grundstücks ein eigenes Bauwerk zu haben. Das bedeutet, Sie sind der Eigentümer des Bauwerks, also des Hauses, und können dieses verkaufen, vermieten, vererben, und belasten, um die Immobilie zu finanzieren. Durch die Eintragung als dingliches Recht im österreichischen Grundbuch sind Ihre Rechte gesichert. Als Grundlage wird ein Baurechtsvertrag mit dem Grundstückseigentümer abgeschlossen, dieser läuft für eine Bestandszeit von 99 Jahren. Der Baurechtszins ist halbjährlich an den Grundstückseigentümer zu entrichten.
Vorteile des Baurechts:
- Geringere Kaufnebenkosten - da der Grundanteil (der Kaufpreis für Grund und Boden) wegfällt, sind die Nebenkosten (Grunderwerbssteuer und Eintragungsgebühr) niedriger - Sie sparen somit 4,6%
- Reduzierte Eigenkapitalanforderung bei Finanzierung der Immobilie - da der Kaufpreis geringer ist, sind auch die Eigenkapitalanforderungen der Bank niedriger
- gleiche Nutzung wie Eigentum - die Immobilie kann verkauft, vermietet, vererbt und auch belastet werden
Highlights:
- Doppelhaushälfte in angenehmer Ruhelage der Schwarzlackenau
- Marchfeldkanal fussläufig in 1 Minute erreichbar
- Neubau Erstbezug in ökologischer Holz-Massivbauweise für ein angenehmes Raumklima
- lokale Ressourcen - Holz aus Niederösterreich
- sonniger Eigengarten mit Terrasse
- PKW Stellplatz am Grundstück
- Moderne Luft / Wasser / Wärmepumpe
- Fussbodenheizung in allen Räumen
- ausgezeichnete Raumaufteilung mit Arbeitszimmer im EG und 3 Schlafzimmer im OG
- separater Abstellraum oder begehbarer Schrank im Obergeschoss
- Vorbereitung für: PV Anlage, Elektrische Rollläden & E-Ladestation
- Baurechtsgrund des Stifts Klosterneuburg mit einem Baurechtszins von 350.- monatlich
- Sicherheit durch stabilen Vertragspartner mit einem langfristigen Vertrag über 99 Jahre
- ausgezeichnete Verkehrsanbindung
- individuelle schlüsselfertige Ausführung auf Wunsch möglich
Ausbaustufe: belagsfertig - individuelle schlüsselfertige Endausführung auf Wunsch möglich
Bezugsbereit: ab sofort
Baurechtszins: ca 350.- pro Monat, Grundstückseigentümer: Chorherrenstoft Klosterneuburg
Vertragsabwicklung:
Volle Sicherheit durch treuhändige Abwicklung der Transaktion
Bei Interesse, weiteren Fragen oder dem Wunsch nach einer Besichtigung, stehen wir Ihnen gerne und jederzeit zur Verfügung.
Bei Bedarf können auch fertiggestellte Referenzobjekte besichtigt werden.
Alle Angaben wurden uns direkt vom Eigentümer zur Verfügung gestellt, eine Haftung für deren Richtig- oder Vollständigkeit können wir daher nicht übernehmen.
Wir weisen darauf hin, dass zwischen dem Vermittler und dem zu vermittelnden Dritten ein familiäres oder wirtschaftliches Naheverhältnis besteht.
Der Vermittler ist als Doppelmakler tätig.
Infrastruktur / Entfernungen
Gesundheit
Arzt <1.500m
Apotheke <1.000m
Klinik <3.000m
Krankenhaus <3.000m
Kinder & Schulen
Schule <1.000m
Kindergarten <1.000m
Universität <2.000m
Höhere Schule <2.500m
Nahversorgung
Supermarkt <1.000m
Bäckerei <1.500m
Einkaufszentrum <2.500m
Sonstige
Geldautomat <1.500m
Bank <1.500m
Post <1.500m
Polizei <1.000m
Verkehr
Bus <500m
U-Bahn <3.500m
Straßenbahn <1.000m
Bahnhof <1.000m
Autobahnanschluss <1.000m
Angaben Entfernung Luftlinie / Quelle: OpenStreetMap
Objektdaten
Ausstattung
- Fußbodenheizung
- Luftwärmepumpe
- Pultdach
Zustand
- Zustand
- ERSTBEZUG
- Baujahr
- 2025
- Alter
- NEUBAU
- HWB
- 23.6 kWh/m² pro Jahr
- Klasse HWB
- A
- fGEE
- 0.51
- Klasse fGEE
- A++
Flächen
- Anzahl der Zimmer
- 5
- Anzahl der Badezimmer
- 2
- Anzahl der sep. WCs
- 2
- Anzahl der Terrassen
- 1
- Stellplätze
- 1
- Nutzfläche
- 123m²
- Gartenfläche
- 140m²
- Terrassenfläche
- 1m²
Kosten
- Kaufpreis Brutto
- € 530.000,00
Häuser zum Kaufen in Österreich
- Bezirk Gemeindebezirk Floridsdorf
- Bezirk Gemeindebezirk Floridsdorf
- Bezirk Gemeindebezirk Floridsdorf
- Bezirk Gemeindebezirk Döbling
- Bezirk Gemeindebezirk Döbling
- Bezirk Gemeindebezirk Döbling
- Bezirk Gemeindebezirk Währing
- Bezirk Gemeindebezirk Währing
- Bezirk Gemeindebezirk Währing
- Bezirk Gemeindebezirk Donaustadt
Häuser zum Kaufen in Österreich
Andere Besucher suchen nach...
- Immobilien kaufen in 2601 Sollenau
- Immobilien in 4951 Polling im Innkreis, Oberösterreich
- Immobilien in 4742 Pram, Oberösterreich kaufen oder mieten
- Häuser kaufen in 2340 Mödling, Niederösterreich
- Häuser kaufen in 9421 Gemmersdorf, Kärnten
- Wohnungen / Eigentumswohnungen kaufen in 9431 St. Stefan, Kärnten
- Häuser kaufen in Bruck an der Leitha, Niederösterreich
- Immobilien mieten in Krems an der Donau, Niederösterreich
- Häuser zum Kaufen im Bezirk St. Pölten Land, Niederösterreich
- Büro / Praxen mieten in Rohrbach, Oberösterreich