8 Zimmer | 205 m² Wohnfläche | 532 m² Grund | inkl. Wohnkeller
€ 1.370.000
€ 4.660 / m²
1220 Wien
-
ab sofort
Beschreibung
Großzügiges Einfamilienhaus mit 205 m² Wohnfläche in ruhiger Lage von Essling Großzügigkeit, Ruhe und vielseitige Nutzungsmöglichkeiten – ein Zuhause, das mit den Lebensphasen seiner Bewohner mitwächst. In einer ruhigen Wohnlage im beliebten Essling im 22. Bezirk befindet sich dieses im Jahr 2009 errichtete Einfamilienhaus in Massivbauweise. Mit rund 205 m² Wohnfläche, einer Gesamtnutzfläche von ca. 294 m² sowie einem Grundstück von ca. 532 m² verbindet diese Immobilie großzügiges Wohnen mit hoher Flexibilität – eine Kombination, die in dieser Form nur selten auf den Markt kommt. Ob als klassisches Familienhaus, für Wohnen und Arbeiten unter einem Dach oder mit separatem Gästebereich...
Großzügiges Einfamilienhaus mit 205 m² Wohnfläche in ruhiger Lage von Essling
Großzügigkeit, Ruhe und vielseitige Nutzungsmöglichkeiten – ein Zuhause, das mit den Lebensphasen seiner Bewohner mitwächst.
In einer ruhigen Wohnlage im beliebten Essling im 22. Bezirk befindet sich dieses im Jahr 2009 errichtete Einfamilienhaus in Massivbauweise.
Mit rund 205 m² Wohnfläche, einer Gesamtnutzfläche von ca. 294 m² sowie einem Grundstück von ca. 532 m² verbindet diese Immobilie großzügiges Wohnen mit hoher Flexibilität – eine Kombination, die in dieser Form nur selten auf den Markt kommt.
Ob als klassisches Familienhaus, für Wohnen und Arbeiten unter einem Dach oder mit separatem Gästebereich – dieses Haus eröffnet vielfältige Möglichkeiten.
Die wichtigsten Eckdaten auf einen Blick
• ca. 205 m² Wohnfläche
• ca. 294 m² Gesamtnutzfläche
• 8 Zimmer – vielseitig nutzbar
• 2 Badezimmer + 3 WCs
• voll ausgebauter Wohnkeller mit separatem Außenzugang
• 2 Balkone im Obergeschoss
• Terrasse mit angrenzendem Garten
• 2 PKW-Stellplätze
• Baujahr 2009 – solide Massivbauweise
• kurzfristig verfügbar
Durchdachte Raumaufteilung auf drei Ebenen.
Erdgeschoss – der Mittelpunkt des Hauses
Bereits der großzügige Eingangsbereich vermittelt ein Gefühl von Offenheit und Raum.
Das helle Wohnzimmer mit direktem Zugang zur Terrasse bildet den zentralen Treffpunkt des Hauses – ein Ort für gemeinsame Abende, Familienfeste oder entspannte Stunden im eigenen Garten.
Die angrenzenden Wohnbereiche bieten ausreichend Platz für das tägliche Familienleben und schaffen eine angenehme Verbindung zwischen Innenraum und Garten.
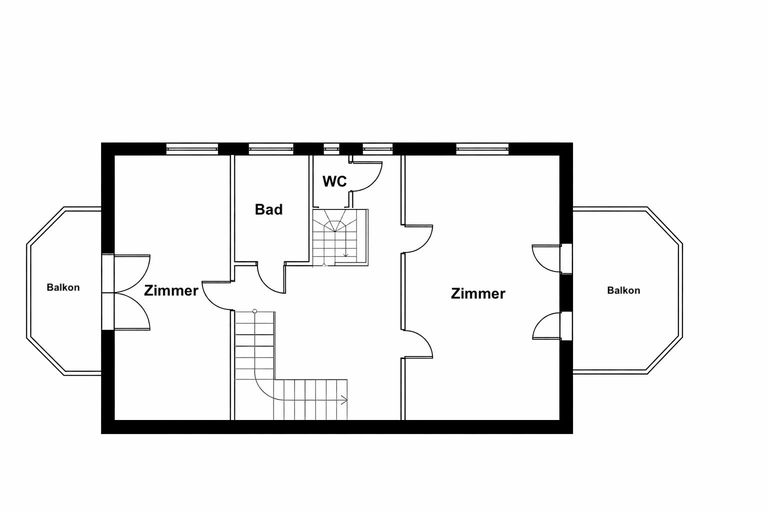
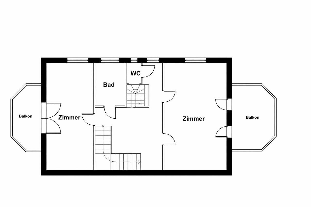
Obergeschoss – Rückzugsort für die Familie
Im Obergeschoss befinden sich mehrere Schlafzimmer, die jedem Familienmitglied einen eigenen privaten Bereich ermöglichen.
Zwei Balkone erweitern die Räume ins Freie und schaffen zusätzliche Rückzugsorte mit Blick in die ruhige Nachbarschaft.
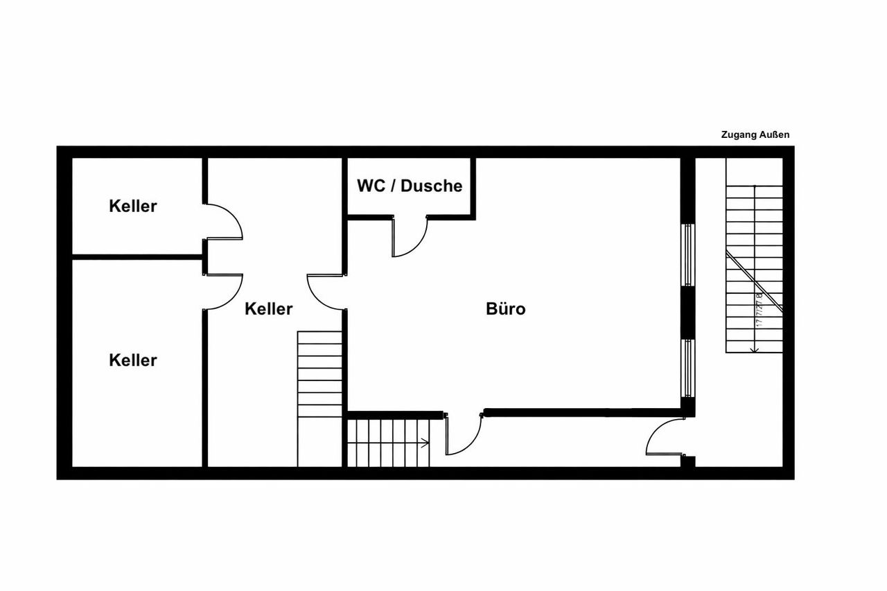
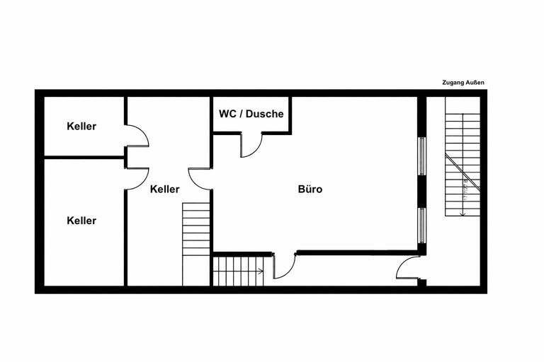
Wohnkeller – außergewöhnliche Flexibilität
Ein besonderes Highlight der Immobilie ist der vollständig ausgebaute Wohnkeller mit separatem Außenzugang.
Dieser Bereich eröffnet vielfältige Nutzungsmöglichkeiten:
• Homeoffice mit Kundenempfang
• Praxis oder Kanzlei
• Gästebereich
• Jugend- oder Hobbybereich
Gerade diese Flexibilität macht das Haus besonders attraktiv für moderne Lebens- und Arbeitsmodelle.
Lage – Essling, 1220 Wien
Essling zählt zu den gefragten Wohnlagen im 22. Bezirk und verbindet ruhiges Wohnen im Grünen mit guter Anbindung an die Stadt.
Die Umgebung bietet eine gewachsene Infrastruktur mit zahlreichen Nahversorgungsmöglichkeiten sowie Freizeit- und Erholungsgebieten in unmittelbarer Nähe.
Infrastruktur und Umgebung:
• Buslinien 26A und 88A fußläufig erreichbar
• U2 Aspernstraße und Seestadt schnell erreichbar
• Nähe zur Donauinsel und zum Nationalpark Lobau
• Schulen, Kindergärten, Ärzte und Einkaufsmöglichkeiten in der Umgebung
• Donau Zentrum ca. 12 Autominuten entfernt
Hier verbinden sich Natur, Ruhe und städtische Infrastruktur zu einer besonders hohen Lebensqualität.
Ein Zuhause mit Perspektive
Ein Haus ist mehr als nur Wohnfläche.
Es ist ein Ort für Familie, Begegnungen und persönliche Entwicklung.
Dieses Einfamilienhaus bietet Raum für genau das – heute und in Zukunft.
Der Vermittler ist als Doppelmakler tätig!
Großzügigkeit, Ruhe und vielseitige Nutzungsmöglichkeiten – ein Zuhause, das mit den Lebensphasen seiner Bewohner mitwächst.
In einer ruhigen Wohnlage im beliebten Essling im 22. Bezirk befindet sich dieses im Jahr 2009 errichtete Einfamilienhaus in Massivbauweise.
Mit rund 205 m² Wohnfläche, einer Gesamtnutzfläche von ca. 294 m² sowie einem Grundstück von ca. 532 m² verbindet diese Immobilie großzügiges Wohnen mit hoher Flexibilität – eine Kombination, die in dieser Form nur selten auf den Markt kommt.
Ob als klassisches Familienhaus, für Wohnen und Arbeiten unter einem Dach oder mit separatem Gästebereich – dieses Haus eröffnet vielfältige Möglichkeiten.
Die wichtigsten Eckdaten auf einen Blick
• ca. 205 m² Wohnfläche
• ca. 294 m² Gesamtnutzfläche
• 8 Zimmer – vielseitig nutzbar
• 2 Badezimmer + 3 WCs
• voll ausgebauter Wohnkeller mit separatem Außenzugang
• 2 Balkone im Obergeschoss
• Terrasse mit angrenzendem Garten
• 2 PKW-Stellplätze
• Baujahr 2009 – solide Massivbauweise
• kurzfristig verfügbar
Durchdachte Raumaufteilung auf drei Ebenen.
Erdgeschoss – der Mittelpunkt des Hauses
Bereits der großzügige Eingangsbereich vermittelt ein Gefühl von Offenheit und Raum.
Das helle Wohnzimmer mit direktem Zugang zur Terrasse bildet den zentralen Treffpunkt des Hauses – ein Ort für gemeinsame Abende, Familienfeste oder entspannte Stunden im eigenen Garten.
Die angrenzenden Wohnbereiche bieten ausreichend Platz für das tägliche Familienleben und schaffen eine angenehme Verbindung zwischen Innenraum und Garten.
Obergeschoss – Rückzugsort für die Familie
Im Obergeschoss befinden sich mehrere Schlafzimmer, die jedem Familienmitglied einen eigenen privaten Bereich ermöglichen.
Zwei Balkone erweitern die Räume ins Freie und schaffen zusätzliche Rückzugsorte mit Blick in die ruhige Nachbarschaft.
Wohnkeller – außergewöhnliche Flexibilität
Ein besonderes Highlight der Immobilie ist der vollständig ausgebaute Wohnkeller mit separatem Außenzugang.
Dieser Bereich eröffnet vielfältige Nutzungsmöglichkeiten:
• Homeoffice mit Kundenempfang
• Praxis oder Kanzlei
• Gästebereich
• Jugend- oder Hobbybereich
Gerade diese Flexibilität macht das Haus besonders attraktiv für moderne Lebens- und Arbeitsmodelle.
Lage – Essling, 1220 Wien
Essling zählt zu den gefragten Wohnlagen im 22. Bezirk und verbindet ruhiges Wohnen im Grünen mit guter Anbindung an die Stadt.
Die Umgebung bietet eine gewachsene Infrastruktur mit zahlreichen Nahversorgungsmöglichkeiten sowie Freizeit- und Erholungsgebieten in unmittelbarer Nähe.
Infrastruktur und Umgebung:
• Buslinien 26A und 88A fußläufig erreichbar
• U2 Aspernstraße und Seestadt schnell erreichbar
• Nähe zur Donauinsel und zum Nationalpark Lobau
• Schulen, Kindergärten, Ärzte und Einkaufsmöglichkeiten in der Umgebung
• Donau Zentrum ca. 12 Autominuten entfernt
Hier verbinden sich Natur, Ruhe und städtische Infrastruktur zu einer besonders hohen Lebensqualität.
Ein Zuhause mit Perspektive
Ein Haus ist mehr als nur Wohnfläche.
Es ist ein Ort für Familie, Begegnungen und persönliche Entwicklung.
Dieses Einfamilienhaus bietet Raum für genau das – heute und in Zukunft.
Der Vermittler ist als Doppelmakler tätig!
| Angaben gemäß gesetzlichem Erfordernis: | |||
| Heizwärmebedarf: | 79.0 kWh/(m²a) | ||
| Klasse Heizwärmebedarf: | C | ||
| Faktor Gesamtenergieeffizienz: | 1.5 | ||
| Klasse Faktor Gesamtenergieeffizienz: | C | ||
Objektdaten
Ausstattung
- Teilmöbliert
- Kabel/SAT-TV
- Unterkellert
- Zentralheizung
- Befeuerung mit Gas
- Massiv Bauweise
- Zeigelmassiv
- Kabel/SAT-TV
- Kabel/SAT-TV
- Teilmöbliert
- Zentralheizung mit Gas
Zustand
- Baujahr
- ca. 2009
Flächen
- Anzahl der Zimmer
- 8
- Anzahl der Badezimmer
- 2
- Anzahl der sep. WCs
- 3
- Stellplätze
- 1
- Wohnfläche
- 205m²
- Nutzfläche
- 294m²
- Grundstücksfläche
- 532m²
Kosten
- Kaufpreis
- € 1.370.000,00
Verwaltung
- Verfügbar ab
- ab sofort
Häuser zum Kaufen in Österreich
- Bezirk Gemeindebezirk Donaustadt
- Bezirk Gemeindebezirk Donaustadt
- Bezirk Gemeindebezirk Donaustadt
- Bezirk Gemeindebezirk Simmering
- Bezirk Gemeindebezirk Simmering
- Bezirk Gemeindebezirk Simmering
- Bezirk Gemeindebezirk Floridsdorf
- Bezirk Gemeindebezirk Floridsdorf
- Bezirk Gemeindebezirk Floridsdorf
- Bezirk Gemeindebezirk Favoriten
Häuser zum Kaufen in Österreich
Häuser zum Kaufen in Österreich
Andere Besucher suchen nach...
- Grundstücke kaufen in 3400 Weidlingbach
- Wohnungen kaufen in 4663 Laakirchen
- Häuser in 7471 Rechnitz
- Wohnungen in 2410 Hainburg an der Donau
- Häuser kaufen in 2432 Schwadorf
- Wohnungen kaufen in 3002 Purkersdorf
- Häuser in 3150 Wilhelmsburg
- Wohnungen kaufen in 3470 Engelmannsbrunn
- Grundstücke kaufen im Bezirk Mattersburg
- Grundstücke kaufen im Bezirk Gmunden