Charmantes Eigenheim mit Pool und stilvollen Details
Beschreibung
Lassen Sie Sich von unserer 360°- 3D Besichtigung überzeugen - Von der Parkbank, vom Sofa oder auch vom Bett, gemütlich über Handy, Tablett, Computer oder Ihrem Internetfähigen Fernseher.
360°- 3D Besichtigung Link: https://my.matterport.com/show/?m=engwu5iK3MV
Willkommen in Ihrem neuen Zuhause in einer begehrenswerten Lage Wiens - dem 22. Bezirk. Diese Immobilie befindet sich in einer ruhigen und grünen Gegend und bietet Ihnen die perfekte Kombination aus Wohnkomfort und idyllischer Natur.
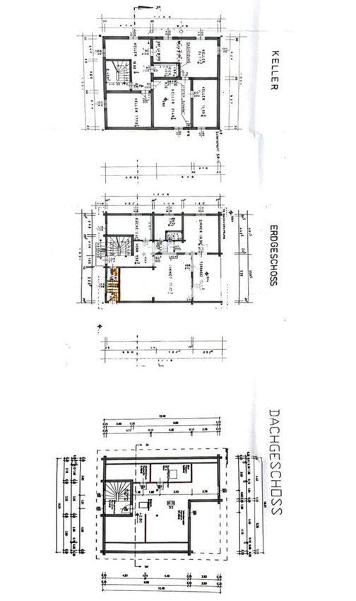
Das Haus erstreckt sich über großzügige 181 m² und bietet somit ausreichend Platz für Sie und Ihre Familie. Die Grundstücksfläche beträgt 554 m². Mit 4 geräumigen Zimmern, 2 Bädern und 2...
Lassen Sie Sich von unserer 360°- 3D Besichtigung überzeugen - Von der Parkbank, vom Sofa oder auch vom Bett, gemütlich über Handy, Tablett, Computer oder Ihrem Internetfähigen Fernseher.
360°- 3D Besichtigung Link: https://my.matterport.com/show/?m=engwu5iK3MV
Willkommen in Ihrem neuen Zuhause in einer begehrenswerten Lage Wiens - dem 22. Bezirk. Diese Immobilie befindet sich in einer ruhigen und grünen Gegend und bietet Ihnen die perfekte Kombination aus Wohnkomfort und idyllischer Natur.
Das Haus erstreckt sich über großzügige 181 m² und bietet somit ausreichend Platz für Sie und Ihre Familie. Die Grundstücksfläche beträgt 554 m². Mit 4 geräumigen Zimmern, 2 Bädern und 2 WCs ist genügend Raum für Privatsphäre und gemeinsame Momente gegeben. Der großzügige Wohnbereich, der sich in eine offene Küche integriert, lädt zum Entspannen und Verweilen ein.
Ein herausragendes Merkmal dieser Immobilie ist der idyllische Grünblick, den Sie aus nahezu jedem Raum genießen können. Der atemberaubende Ausblick auf die umliegende Natur und den eleganten Swimmingpool schafft eine unvergleichlich entspannte Atmosphäre und verleiht dem Anwesen eine besondere Note. Im liebevoll gestalteten Garten befindet sich zudem ein stilvoller Brunnen, der das harmonische Gesamtbild perfekt abrundet. Ein zusätzlicher Vorteil dieses Brunnens liegt in der autarken Wasserversorgung – für die Gartenbewässerung sowie die Befüllung des Pools fallen keine Wasserabgaben an die Stadt Wien an.
Das Haus ist mit Fliesen ausgestattet und wird durch eine Gasheizung beheizt, was für angenehme Wärme in den kalten Monaten sorgt. Das Bad mit Fenster und das separate WC bieten zusätzlichen Komfort. Die Dachform des Hauses, ein klassisches Satteldach, verleiht dem Gebäude eine zeitlose Eleganz.
Der Keller hat eine Fläche von ca. 108 m2 und umfasst 2 großzügige Lagerräume, die sich hervorragend für Werkangelegenheiten eignen, Heiz und Trockenbereiche sowie ein extra Bürozimmer. Dieses zusätzliche Platzangebot macht die Immobilie noch vielseitiger und bietet Ihnen flexible Nutzungsmöglichkeiten
Ein weiteres Highlight dieser Immobilie sind die beiden Stellplätze, die Ihnen das lästige Parkplatzsuchen ersparen und für eine stressfreie Anreise sorgen. Auch die Verkehrsanbindung ist optimal - eine Bushaltestelle befindet sich in unmittelbarer Nähe.
Diese einzigartige Immobilie lässt keine Wünsche offen – vereinbaren Sie noch heute Ihren Besichtigungstermin und lassen Sie sich begeistern!
"BITTE BEACHTEN SIE, DASS WIR AUFGRUND DER NACHWEISPFLICHT GEGENÜBER DEM EIGENTÜMER NUR ANFRAGEN MIT VOLLSTÄNDIGER ANGABE DER ANSCHRIFT UND ANGABEN ZUR PERSON (NAME, TELEFON, E-MAIL) BEARBEITEN KÖNNEN."
Wir weisen darauf hin, dass zwischen dem Vermittler und dem zu vermittelnden Dritten ein familiäres oder wirtschaftliches Naheverhältnis besteht.
Der Vermittler ist als Doppelmakler tätig.
Infrastruktur / Entfernungen
Gesundheit
Arzt <2.500m
Apotheke <3.500m
Klinik <3.500m
Krankenhaus <6.000m
Kinder & Schulen
Schule <2.500m
Kindergarten <3.000m
Universität <3.500m
Höhere Schule <3.500m
Nahversorgung
Supermarkt <3.000m
Bäckerei <2.500m
Einkaufszentrum <5.000m
Sonstige
Geldautomat <3.500m
Bank <3.500m
Post <3.500m
Polizei <3.500m
Verkehr
Bus <500m
U-Bahn <2.500m
Straßenbahn <2.500m
Bahnhof <2.500m
Autobahnanschluss <3.000m
Angaben Entfernung Luftlinie / Quelle: OpenStreetMap
Objektdaten
Ausstattung
- Swimmingpool
- Bad mit Fenster
- Einbauküche
- Offene Küche
- Fliesenboden
- Befeuerung mit Gas
- Satteldach
- Schlüsselfertig mit Keller
Dokumente / Links
Zustand
- HWB
- 50 kWh/m² pro Jahr
- Klasse HWB
- B
- fGEE
- 0.7
- Klasse fGEE
- A+
Flächen
- Anzahl der Zimmer
- 4.5
- Anzahl der Badezimmer
- 2
- Anzahl der sep. WCs
- 2
- Stellplätze
- 2
- Wohnfläche
- 181m²
- Grundstücksfläche
- 554m²
- Kellerfläche
- 108m²
Kosten
- Kaufpreis Brutto
- € 695.000,00
Häuser zum Kaufen in Österreich
- Bezirk Gemeindebezirk Donaustadt
- Bezirk Gemeindebezirk Donaustadt
- Bezirk Gemeindebezirk Donaustadt
- Bezirk Gemeindebezirk Floridsdorf
- Bezirk Gemeindebezirk Floridsdorf
- Bezirk Gemeindebezirk Floridsdorf
- Bezirk Gemeindebezirk Simmering
- Bezirk Gemeindebezirk Simmering
- Bezirk Gemeindebezirk Simmering
- Bezirk Gemeindebezirk Favoriten
Häuser zum Kaufen in Österreich
Häuser zum Kaufen in Österreich
Andere Besucher suchen nach...
- Grundstücke kaufen in 3400 Weidlingbach
- Wohnungen kaufen in 4663 Laakirchen
- Häuser in 7471 Rechnitz
- Wohnungen in 2410 Hainburg an der Donau
- Häuser kaufen in 2432 Schwadorf
- Wohnungen kaufen in 3002 Purkersdorf
- Häuser in 3150 Wilhelmsburg
- Wohnungen kaufen in 3470 Engelmannsbrunn
- Grundstücke kaufen im Bezirk Mattersburg
- Grundstücke kaufen im Bezirk Gmunden