Einfamilienhaus in Ruhelage und U-Bahn Nähe | modernisierungsbedarf | vollunterkellert mit Garage und viel Potenzial | tolle Raumaufteilung
-
sofort
Beschreibung
Ein renovierungsbedürftiges Einfamilienhaus mit viel Potenzial und perfeker Aufteilung für Familien gelangt im 22. Bezirk auf Eigengrund zum Verkauf!
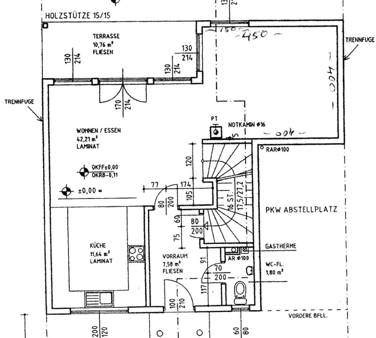
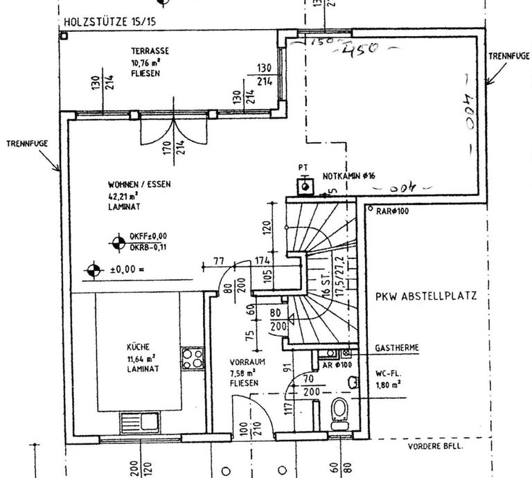
Zum Verkauf gelangt ein auf 3 Etagen (Erdgeschoss, Obergeschoss und Kellergeschoss) aufgeteiltes Einfamilienhaus auf ca. 373 m² Eigengrund in U-Bahn Nähe. Das Haus ist vollunterkellert und verfügt über eine Garage/Carport. Die nächstgelegenen U-Bahn Stationen sind die U2 Station Aspern Nord und U2 Haufeldstraße. Im Erdgeschoss befindet sich die über 53 m² große Wohnküche, der Vorraum und die Gäste Toilette. Im oberen Geschoss finden Sie 3 Schlafzimmer und ein Bad mit Wanne und Toilette und den Flur. Aus dem Erdgeschoss hat man...
Ein renovierungsbedürftiges Einfamilienhaus mit viel Potenzial und perfeker Aufteilung für Familien gelangt im 22. Bezirk auf Eigengrund zum Verkauf!
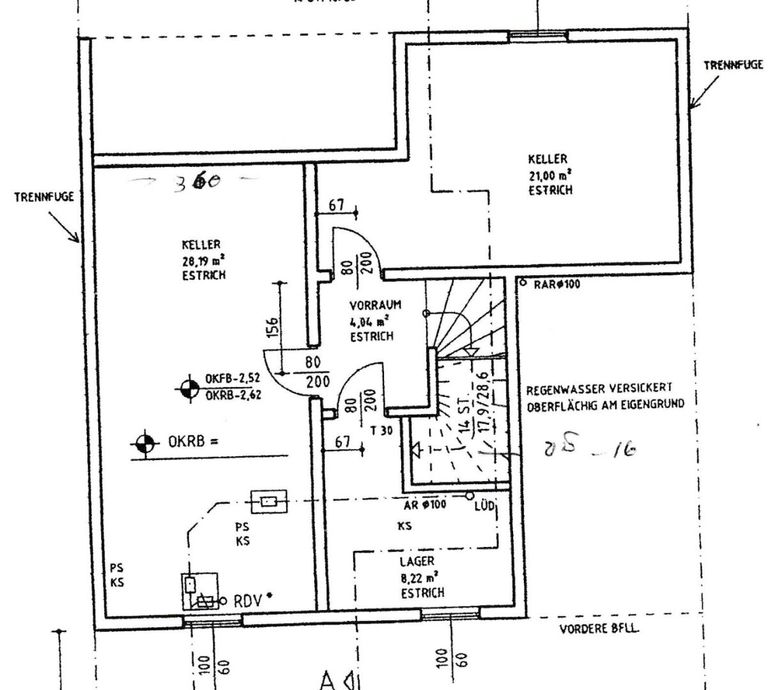
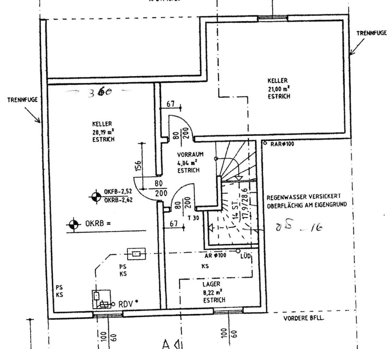
Zum Verkauf gelangt ein auf 3 Etagen (Erdgeschoss, Obergeschoss und Kellergeschoss) aufgeteiltes Einfamilienhaus auf ca. 373 m² Eigengrund in U-Bahn Nähe. Das Haus ist vollunterkellert und verfügt über eine Garage/Carport. Die nächstgelegenen U-Bahn Stationen sind die U2 Station Aspern Nord und U2 Haufeldstraße. Im Erdgeschoss befindet sich die über 53 m² große Wohnküche, der Vorraum und die Gäste Toilette. Im oberen Geschoss finden Sie 3 Schlafzimmer und ein Bad mit Wanne und Toilette und den Flur. Aus dem Erdgeschoss hat man einen Zugang in das Kellergeschoss in dem sich eine Toilette und Dusche befindet und das auf über 60 m² viele Möglichkeiten bietet.
Das Haus befindet sich in einem renovierungsbedürftigen/sanierungsbedürftigen Zustand. Die Heizung ist derzeit ebenfalls aufgrund einer wahrscheinlich defekten Therme nicht in Funktion.
Highlights auf einen Blick
+ tolle Raumaufteilung für Familien
+ Garage
+ riesige Wohnküche mit über 53 m² Wohnfläche
+ ruhige Lage
Eckdaten
Wohnfläche: ca. 123,22 m² ohne Kellergeschoss
Kellerfläche: ca. 61,45 m²
Stockwerke: Keller, Erdgeschoss und Dachgeschoss
Garage/Carport: ja - für ein Auto
Garten: 228 m² laut Grundbuch
Bebaute Fläche: 108 m² laut Grundbuch
Heizungsart: Zentralheizung mit Gas
Beziehbar: ab sofort
Raumaufteilung
Erdgeschoss
Vorraum
Gästetoilette
Wohnzimmer mit Essbereich
Küche
Zugang zum Garten über die Terrasse
1. Obergeschoss
3 Schlafzimmer
Bad mit WC
Vorraum
Kellergeschoss
2 Keller
Lagerraum mit Dusche und WC
Vorraum
Lage
Die Liegenschaft liegt in der Katastralgemeinde Breitenlee im 22. Bezirk in U2 Aspern Nord Nähe und in der Nähe zur Hausfeldstraße. Schulen und Kindergärten sowie Geschäfte des täglichen Bedarfs sind mit dem Bus oder dem PKW in wenigen Minuten erreichbar.
Öffentliche Verkehrsmittel
Mit dem Bus erreichen Sie die U2 in wenigen Minuten.
Autobuslinien: 95A, 97A
U-Bahn: U2 Aspern Nord
Straßenbahn: 26
Auf Anfrage schicken wir Ihnen ein Lage-Expose mit allen Supermärkten, Schulen, Kindergärten, öffentlichen Verkehrsmitteln und vielem mehr zu.
Kaufpreis: 555.000 EUR
Provision: 3 % zzgl. USt. vom Kaufpreis
Kontaktieren Sie mich bezüglich einer Besichtigung unter +43 660 570 77 23 oder info@pagoni.at
Der Vermittler ist als Doppelmakler tätig.
Infrastruktur / Entfernungen
Gesundheit
Arzt <1.500m
Apotheke <1.500m
Klinik <2.000m
Krankenhaus <4.000m
Kinder & Schulen
Schule <1.000m
Kindergarten <1.000m
Universität <2.000m
Höhere Schule <2.500m
Nahversorgung
Supermarkt <1.000m
Bäckerei <1.500m
Einkaufszentrum <3.000m
Sonstige
Geldautomat <1.500m
Bank <1.500m
Post <1.500m
Polizei <2.000m
Verkehr
Bus <500m
U-Bahn <1.000m
Straßenbahn <500m
Bahnhof <1.000m
Autobahnanschluss <3.000m
Angaben Entfernung Luftlinie / Quelle: OpenStreetMap
Objektdaten
Ausstattung
- Teilmöbliert
- Gäste-WC
- Bad mit Dusche
- Bad mit Badewanne
- Bad mit Fenster
- Einbauküche
- Zentralheizung
- Befeuerung mit Gas
- Holz Bauweise
Zustand
- Zustand
- TEIL_VOLLRENOVIERUNGSBED
- Baujahr
- 2000
- HWB
- 101.6 kWh/m² pro Jahr
- Klasse HWB
- D
- fGEE
- 1.54
- Klasse fGEE
- C
Flächen
- Anzahl der Zimmer
- 4
- Anzahl der Badezimmer
- 2
- Anzahl der sep. WCs
- 2
- Anzahl der Balkone
- 1
- Anzahl der Terrassen
- 1
- Wohnfläche
- 123m²
- Nutzfläche
- 185m²
- Grundstücksfläche
- 373m²
- Gartenfläche
- 228m²
- Kellerfläche
- 61m²
- Terrassenfläche
- 1m²
Kosten
- Kaufpreis Brutto
- € 555.000,00
Verwaltung
- Verfügbar ab
- sofort
Häuser zum Kaufen in Österreich
- Bezirk Gemeindebezirk Donaustadt
- Bezirk Gemeindebezirk Donaustadt
- Bezirk Gemeindebezirk Donaustadt
- Bezirk Gemeindebezirk Floridsdorf
- Bezirk Gemeindebezirk Floridsdorf
- Bezirk Gemeindebezirk Floridsdorf
- Bezirk Gemeindebezirk Simmering
- Bezirk Gemeindebezirk Simmering
- Bezirk Gemeindebezirk Simmering
- Bezirk Gemeindebezirk Favoriten
Häuser zum Kaufen in Österreich
Häuser zum Kaufen in Österreich
Andere Besucher suchen nach...
- Grundstücke kaufen in 3400 Weidlingbach
- Wohnungen kaufen in 4663 Laakirchen
- Häuser in 7471 Rechnitz
- Wohnungen in 2410 Hainburg an der Donau
- Häuser kaufen in 2432 Schwadorf
- Wohnungen kaufen in 3002 Purkersdorf
- Häuser in 3150 Wilhelmsburg
- Wohnungen kaufen in 3470 Engelmannsbrunn
- Grundstücke kaufen im Bezirk Mattersburg
- Grundstücke kaufen im Bezirk Gmunden