Reihenhaus mit Blick auf die Weingärten
Beschreibung
In angenehm ruhiger Wohnlage des 22. Wiener Gemeindebezirks befindet sich dieses verkaufsgegenständliche Reihenhaus.
Das im Jahr 2008 errichtete Objekt liegt auf Baurechtsgrund in Breitenlee und überzeugt durch eine gelungene Kombination aus zeitgemäßem Wohnkomfort, durchdachter Raumaufteilung und einem Garten sowie einer südlicher Ausrichtung.
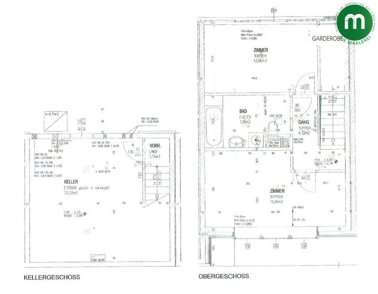
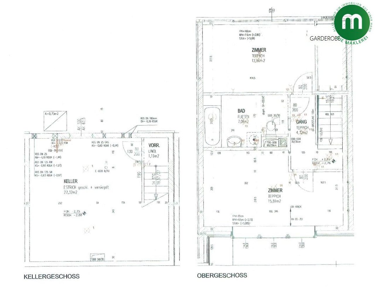
Die Wohnfläche von rund 90 m² verteilt sich auf 3 gut proportionierte Zimmer. Herzstück der Wohnung ist der offene Wohn-, Ess- und Küchenbereich, der dank großer Fensterflächen lichtdurchflutet ist und einen direkten Zugang zur Terrasse sowie in den ruhig gelegenen Garten bietet. Die moderne Einbauküche mit Side by Side Kühlschrank und Gefrierschrank fügt sich harmonisch zwischen Wohnraum...
In angenehm ruhiger Wohnlage des 22. Wiener Gemeindebezirks befindet sich dieses verkaufsgegenständliche Reihenhaus.
Das im Jahr 2008 errichtete Objekt liegt auf Baurechtsgrund in Breitenlee und überzeugt durch eine gelungene Kombination aus zeitgemäßem Wohnkomfort, durchdachter Raumaufteilung und einem Garten sowie einer südlicher Ausrichtung.
Die Wohnfläche von rund 90 m² verteilt sich auf 3 gut proportionierte Zimmer. Herzstück der Wohnung ist der offene Wohn-, Ess- und Küchenbereich, der dank großer Fensterflächen lichtdurchflutet ist und einen direkten Zugang zur Terrasse sowie in den ruhig gelegenen Garten bietet. Die moderne Einbauküche mit Side by Side Kühlschrank und Gefrierschrank fügt sich harmonisch zwischen Wohnraum und Essbereich ein und schafft ein kommunikatives Zentrum für Alltag und Gäste.
Zwei Schlafzimmer bieten ausreichend Platz für Ruhe und Rückzug, das Badezimmer ist mit Badewanne und WC ausgestattet, ein weiteres Gäste-WC mit Handwaschbecken sorgt für zusätzlichen Komfort. Ergänzt wird das Raumangebot durch einen praktischen Schrankraum sowie einen außergewöhnlich großzügigen Keller mit rund 28 m², in dem sich auch Waschmaschine und Trockner befinden.
Besonderes Augenmerk wurde auf die Ausstattung gelegt: Klimaanlagen in allen drei Zimmern sorgen auch an heißen Tagen für ein angenehmes Raumklima, außenliegende Jalousien und Sonnenschutz erhöhen den Wohnkomfort und die Energieeffizienz. Fliesen- und Parkettböden unterstreichen den gepflegten Gesamteindruck der Immobilie.
Der Garten stellt ein echtes Highlight dar. Neben der südseitigen Terrasse mit Überdachung bietet er Platz für Erholung, Freizeit und geselliges Beisammensein. Ein Pool, eine kleine Gartenhütte sowie weitere liebevoll umgesetzte Details machen diesen Außenbereich zu einer privaten Wohlfühloase. Eine Infrarotsauna rundet das Angebot ab.
Die Lage in Breitenlee, umgeben von Feldern, verbindet Ruhe mit guter Infrastruktur. Öffentliche Verkehrsmittel (24A, 28A, 97A, 540) befinden sich in Gehdistanz; die Linie 97A bindet Sie in wenigen Minuten an das Wiener U-Bahnnetz (U2) an. Nahversorger, Schulen (VS, MS) und Kindergärten sind ebenfalls in bequem erreichbar. Eine Garage kann bei Bedarf um derzeit € 65,- pro Monat angemietet werden.
Dieses Objekt wird als Baurechtseigentum (lt. Baurechtsvertrag bis mind. 31.12.2085) angeboten. Da somit lediglich das Gebäude und nicht das Grundstück erworben wird, entfällt der kostenintensive Grundanteil. Gerade in Ballungsräumen ermöglicht diese Eigentumsform einen deutlich attraktiveren Kaufpreis bei der für Wohnungseigentum typischen Nutzungssicherheit. Die Immobilie eignet sich daher ideal für Paare oder kleine Familien, die Wert auf Ruhe, Komfort und eine langfristig sichere Wohnlösung zu einem vernünftigen Preis legen.
derzeitige monatliche Kosten (Hausverwaltung ARWAG):
Verwaltungshonorar: € 57,55 (brutto)
Baurechtszins: € 130,85 (brutto)
Betriebskosten: € 143,88 (brutto)
Reparaturrücklage: € 131,89
Das Haus ist derzeit bewohnt und wird in angemessener Zeit nach Kaufvertrag an die Käufer übergeben.
----
Um Ihre Rechte zu wahren, können nur Anfragen mit vollständigen Kontaktdaten (Name, Adresse, Telefon, E-Mail-Adresse) beantwortet werden.
Vor Ablauf der 14-tägigen Rücktrittsfrist werden wir gerne für Sie tätig, wenn Sie gesetzeskonform (FAGG) uns ausdrücklich (am einfachsten per E-Mail) dazu auffordern.
Wenn der Kaufvertrag nicht zustande kommt, bleibt unsere Tätigkeit für Sie vollkommen kostenlos. Wir weisen auf Ihre 14-tägige Rücktrittsfrist (gemäß § 11 FAGG ) hin.
Vielen Dank!
Nebenkosten lt. Nebenkostenübersicht!
Der Vollständigkeit halber halten wir fest, dass wir Ihnen bei Anmietung/Ankauf eines von uns namhaft gemachten Objektes durch Sie oder einen durch Sie namhaft gemachten Dritten bzw. bei beidseitiger Willensübereinstimmung eine Vermittlungsprovision in der Höhe von 3 Bruttomonatsmieten bei Gewerbeimmobilien, 2 Bruttomonatsmieten bei Wohnimmobilien bzw. 3 % des Kaufpreises zuzüglich der gesetzlichen Umsatzsteuer in Rechnung stellen (Honorarverordnung für Immobilienmakler, BGBl. Nr. 262 und 297/1996).
Dieses Angebot ist unverbindlich und freibleibend. Die Angaben erfolgen aufgrund der Informationen und Unterlagen, die uns vom Eigentümer und/oder Dritten zur Verfügung gestellt werden und sind ohne Gewähr. Im Übrigen gelten die allgemeinen Geschäftsbedingungen sowie die Verordnung des BM für wirtschaftliche Angelegenheiten über Standes- und Ausbildungsregeln für Immobilienmakler, BGBl 297/96.
Alle Angaben im Angebot basieren auf Informationen und Unterlagen des Verkäufers und erfolgen nach bestem Wissen, jedoch ohne Gewähr auf Richtigkeit und Vollständigkeit.
Wir weisen darauf hin, dass zwischen dem Vermittler und dem zu vermittelnden Dritten ein familiäres oder wirtschaftliches Naheverhältnis besteht.
Der Vermittler ist als Doppelmakler tätig.
Infrastruktur / Entfernungen
Gesundheit
Arzt <1.500m
Apotheke <1.500m
Klinik <2.000m
Krankenhaus <4.500m
Kinder & Schulen
Schule <500m
Kindergarten <1.000m
Universität <3.000m
Höhere Schule <3.000m
Nahversorgung
Supermarkt <1.000m
Bäckerei <500m
Einkaufszentrum <3.000m
Sonstige
Geldautomat <1.500m
Bank <2.000m
Post <2.000m
Polizei <2.500m
Verkehr
Bus <500m
U-Bahn <2.000m
Straßenbahn <1.500m
Bahnhof <2.000m
Autobahnanschluss <2.500m
Angaben Entfernung Luftlinie / Quelle: OpenStreetMap
Objektdaten
Ausstattung
- Klimatisiert
- Swimmingpool
- Rolladen
- Gäste-WC
- Bad mit Badewanne
- Einbauküche
- Offene Küche
- Fliesenboden
- Parkettboden
- Zentralheizung
- Befeuerung mit Gas
- Ausrichtung Balkon/Terrasse - Süd
- Flachdach
Zustand
- Zustand
- GEPFLEGT
- Baujahr
- 2008
- Alter
- NEUBAU
- HWB
- 52.43 kWh/m² pro Jahr
- Klasse HWB
- C
- fGEE
- 1.65
- Klasse fGEE
- C
Flächen
- Anzahl der Zimmer
- 3
- Anzahl der Badezimmer
- 1
- Anzahl der sep. WCs
- 2
- Anzahl der Terrassen
- 1
- Wohnfläche
- 90m²
- Nutzfläche
- 193m²
- Gartenfläche
- 62m²
- Kellerfläche
- 28m²
- Terrassenfläche
- 1m²
Kosten
- Kaufpreis Brutto
- € 367.000,00
- Betriebskosten
- € 130,80
- Sonstige Kosten
- € 303,16
Häuser zum Kaufen in Österreich
- Bezirk Gemeindebezirk Donaustadt
- Bezirk Gemeindebezirk Donaustadt
- Bezirk Gemeindebezirk Donaustadt
- Bezirk Gemeindebezirk Floridsdorf
- Bezirk Gemeindebezirk Floridsdorf
- Bezirk Gemeindebezirk Floridsdorf
- Bezirk Gemeindebezirk Simmering
- Bezirk Gemeindebezirk Simmering
- Bezirk Gemeindebezirk Simmering
- Bezirk Gemeindebezirk Favoriten
Häuser zum Kaufen in Österreich
Häuser zum Kaufen in Österreich
Andere Besucher suchen nach...
- Grundstücke kaufen in 3400 Weidlingbach
- Wohnungen kaufen in 4663 Laakirchen
- Häuser in 7471 Rechnitz
- Wohnungen in 2410 Hainburg an der Donau
- Häuser kaufen in 2432 Schwadorf
- Wohnungen kaufen in 3002 Purkersdorf
- Häuser in 3150 Wilhelmsburg
- Wohnungen kaufen in 3470 Engelmannsbrunn
- Grundstücke kaufen im Bezirk Mattersburg
- Grundstücke kaufen im Bezirk Gmunden