Ruhe, Grünlage und perfekte Anbindung – moderne Doppelhaushälfte auf Eigengrund nahe U2 Donauspital
-
2020
-
sofort
Beschreibung
Unweit des Oberen Mühlwassers, in absoluter Ruhelage und grüner Umgebung gelegen, gleichzeitig jedoch mit hervorragender Anbindung und in kürzester Zeit bei der U2-Station Donauspital, gelangt diese wunderbare Doppelhaushälfte auf Eigengrund zum Verkauf.
Das Haus wurde 2020 errichtet, seither laufend gehegt und gepflegt und befindet sich in außerordentlich gutem Zustand.
Auf rund 131 m² Wohnfläche, ergänzt durch ca. 46 m² Keller, etwa 70 m² Garten sowie eine ca. 31 m² große Terrassenfläche, erwartet Sie ein durchdachtes und hochwertiges Wohnkonzept. Besonders hervorzuheben sind die ruhige, grüne Lage sowie die süd-östliche Ausrichtung des Hauses. Ein im Kaufpreis bereits inkludierter Einfahrtsstellplatz, direkt vor der...
Unweit des Oberen Mühlwassers, in absoluter Ruhelage und grüner Umgebung gelegen, gleichzeitig jedoch mit hervorragender Anbindung und in kürzester Zeit bei der U2-Station Donauspital, gelangt diese wunderbare Doppelhaushälfte auf Eigengrund zum Verkauf.
Das Haus wurde 2020 errichtet, seither laufend gehegt und gepflegt und befindet sich in außerordentlich gutem Zustand.
Auf rund 131 m² Wohnfläche, ergänzt durch ca. 46 m² Keller, etwa 70 m² Garten sowie eine ca. 31 m² große Terrassenfläche, erwartet Sie ein durchdachtes und hochwertiges Wohnkonzept. Besonders hervorzuheben sind die ruhige, grüne Lage sowie die süd-östliche Ausrichtung des Hauses. Ein im Kaufpreis bereits inkludierter Einfahrtsstellplatz, direkt vor der Haustüre, rundet das Angebot zusätzlich ab.
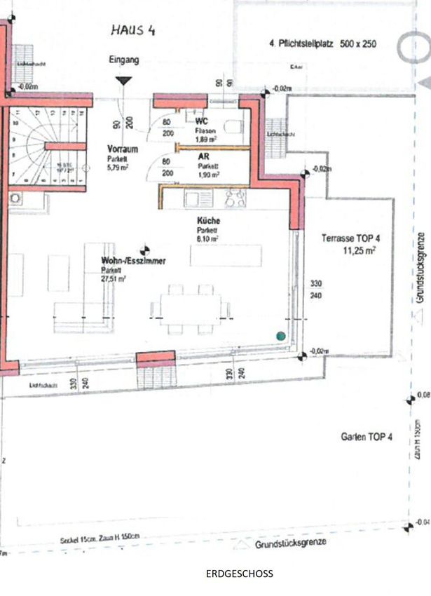
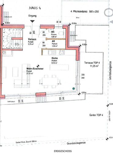
Bereits beim Betreten überzeugt die gelungene Raumaufteilung. Auf der ersten Wohnebene befindet sich der rund 36 m² große Wohnbereich mit ausgestatteter Küche. Große Glasfronten sorgen für ein helles, freundliches Ambiente und eröffnen den Blick in den liebevoll angelegten, süd- östlichen Garten mit Terrasse. Das umliegende Grün schafft ein hohes Maß an Privatsphäre und Wohnqualität. Der bereits installierte Schwedenofen sorgt zusätzlich für eine besonders heimelige Atmosphäre. Ein ca. 2 m² großer Abstellraum mit bereits installierten Regalen, eine Gästetoilette sowie der Vorraum komplettieren diese Ebene.
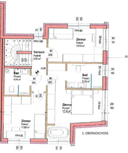
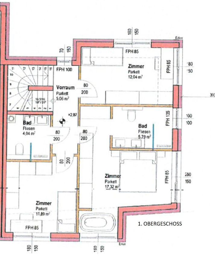
Über eine Stiege gelangt man in den ersten Stock des Hauses. Hier befinden sich drei separat begehbare Zimmer sowie zwei Badezimmer. Das Gästebad ist ca. 4 m² groß und mit einer bodengleichen Dusche sowie einer Toilette ausgestattet. Zwei der Zimmer verfügen jeweils über rund 12 m², das größte Zimmer misst knapp 17 m² und bietet ein En-Suite-Bad mit bodengleicher Dusche und Toilette. Zusätzlich steht ein weiterer Bereich mit integrierter Badewanne zur Verfügung.
Im obersten Stockwerk befindet sich das Master Bedroom mit rund 20 m². Der vordere Bereich bietet Platz für einen möglichen Schrankraum. Ebenso verfügt diese Ebene über ein weiteres En-Suite-Bad mit bodengleicher Dusche und Toilette. Von hier aus gelangen Sie direkt auf die rund 18 m² große, östlich ausgerichtete Terrasse, die mit einem herrlichen Weit- und Grünblick begeistert.
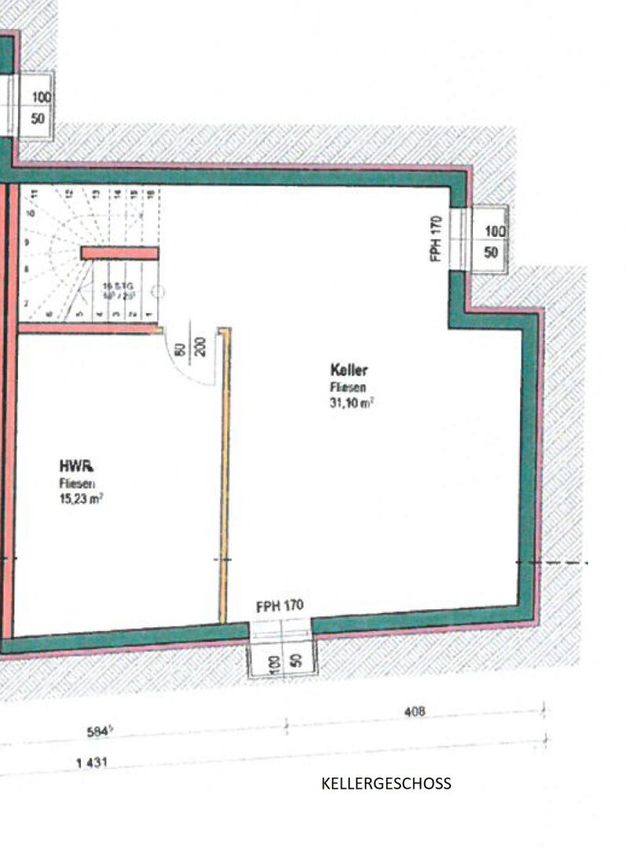
Abgerundet wird dieses attraktive Immobilienangebot durch den rund 46 m² großen, trockenen Keller, der vielfältige Nutzungsmöglichkeiten eröffnet – ob als Fitnessraum, Hobbyraum, Spielzimmer oder zusätzlicher Stauraum. Ein separat abgetrennter Technik-/ Heizraum beherbergt unter anderem auch die Anschlüsse für Waschmaschine und Trockner.
Auch technisch und qualitativ überzeugt die Liegenschaft: Eine bereits installierte Photovoltaikanlage speist Eigenstrom in das Haus ein, zusätzlich ist eine Alarmanlage vorhanden.
Diese Immobilie vereint modernen Wohnkomfort, hochwertige Ausstattung, durchdachte Raumaufteilung und eine besondere Lage auf Eigengrund – ein seltenes und besonders attraktives Angebot.
Aufteilung:
EG:
- ca. 36m² große Wohnküche ausgestatteter Küche und Schwedenofen
- separate Toilette
- Abstellraum
- ca. 70m² Garten plus Terrasse
- Stellplatz vor dem Haus
OG:
- Zimmer
- Zimmer
- Gästebadzimmer mit Dusche und Toilette
- Zimmer mit Badewanne und mit Ensuite- Badezimmer mit Dusche und Toilette
DG:
- Master Bedroom mit Ensuite - Badezimmer mit Dusche und Toilette
- Terrasse
UG:
- Kellerraum
- Heiz-/ Technikraum
Der Vermittler ist als Doppelmakler tätig.
Infrastruktur / Entfernungen
Gesundheit
Arzt <1.000m
Apotheke <1.000m
Klinik <1.000m
Krankenhaus <1.000m
Kinder & Schulen
Schule <500m
Kindergarten <500m
Universität <3.000m
Höhere Schule <3.500m
Nahversorgung
Supermarkt <1.000m
Bäckerei <1.000m
Einkaufszentrum <3.000m
Sonstige
Geldautomat <1.000m
Bank <1.000m
Post <1.000m
Polizei <1.000m
Verkehr
Bus <500m
U-Bahn <1.000m
Straßenbahn <1.000m
Bahnhof <1.000m
Autobahnanschluss <2.000m
Angaben Entfernung Luftlinie / Quelle: OpenStreetMap
Objektdaten
Ausstattung
- Klimatisiert
- Gartennutzung
- Kabel/SAT-TV
- Gäste-WC
- Bad mit Dusche
- Bad mit Badewanne
- Bad mit Fenster
- Offene Küche
- Steinboden
- Dielenboden
- Fußbodenheizung
- Luftwärmepumpe
- Ausrichtung Balkon/Terrasse - Ost
- Ausrichtung Balkon/Terrasse - Südost
- Alarmanlage
- Flachdach
- Fliesenboden
Zustand
- Zustand
- GEPFLEGT
- Baujahr
- 2020
- Alter
- NEUBAU
- HWB
- 40 kWh/m² pro Jahr
- Klasse HWB
- B
- fGEE
- 0.73
- Klasse fGEE
- A
Flächen
- Anzahl der Zimmer
- 5
- Anzahl der Badezimmer
- 3
- Anzahl der sep. WCs
- 4
- Anzahl der Terrassen
- 2
- Stellplätze
- 1
- Wohnfläche
- 132m²
- Nutzfläche
- 178m²
- Freifläche
- 101m²
- Gartenfläche
- 69m²
- Kellerfläche
- 46m²
- Terrassenfläche
- 2m²
Kosten
- Kaufpreis Brutto
- € 1.029.000,00
- Betriebskosten
- € 143,79
- Heizkosten
- € 39,82
Verwaltung
- Verfügbar ab
- sofort
Häuser zum Kaufen in Österreich
- Bezirk Gemeindebezirk Donaustadt
- Bezirk Gemeindebezirk Donaustadt
- Bezirk Gemeindebezirk Donaustadt
- Bezirk Gemeindebezirk Floridsdorf
- Bezirk Gemeindebezirk Floridsdorf
- Bezirk Gemeindebezirk Floridsdorf
- Bezirk Gemeindebezirk Simmering
- Bezirk Gemeindebezirk Simmering
- Bezirk Gemeindebezirk Simmering
- Bezirk Gemeindebezirk Favoriten
Häuser zum Kaufen in Österreich
Häuser zum Kaufen in Österreich
Andere Besucher suchen nach...
- Grundstücke kaufen in 3400 Weidlingbach
- Wohnungen kaufen in 4663 Laakirchen
- Häuser in 7471 Rechnitz
- Wohnungen in 2410 Hainburg an der Donau
- Häuser kaufen in 2432 Schwadorf
- Wohnungen kaufen in 3002 Purkersdorf
- Häuser in 3150 Wilhelmsburg
- Wohnungen kaufen in 3470 Engelmannsbrunn
- Grundstücke kaufen im Bezirk Mattersburg
- Grundstücke kaufen im Bezirk Gmunden