Wohnen auf höchstem Niveau!
Beschreibung
In einer der schönsten Wohngegenden in Breitenfurt-West, nur 8 Minuten von der Wiener Stadtgrenze entfernt, liegt dieses traumhafte ca. 210 m² große Einfamilienhaus mit einem wunderbaren und unverbaubaren Fernblick.
Außenanlage/Garten
Ein schön gepflegter und nahezu uneinsichtiger Garten verwöhnt mit einem großen, beheizten Pool, zwei ca. 45 m² großen Terrassen, einer automatischen Bewässerungsanlage und zwei fleißigen Mährobotern. Die süd-westlich ausgerichtete Terrasse ist wie ein zweites Wohnzimmer. Von dort aus bietet sich ein herrlicher Blick auf das gepflegte Biotop mit Bachlauf und Uferzone samt Steg. Ein wundervoller Ort seine Seele einfach baumeln zu lassen. Zwei hochwertige Gartenhütten, eine Holzschaukel und ein Baumhaus...
In einer der schönsten Wohngegenden in Breitenfurt-West, nur 8 Minuten von der Wiener Stadtgrenze entfernt, liegt dieses traumhafte ca. 210 m² große Einfamilienhaus mit einem wunderbaren und unverbaubaren Fernblick.
Außenanlage/Garten
Ein schön gepflegter und nahezu uneinsichtiger Garten verwöhnt mit einem großen, beheizten Pool, zwei ca. 45 m² großen Terrassen, einer automatischen Bewässerungsanlage und zwei fleißigen Mährobotern. Die süd-westlich ausgerichtete Terrasse ist wie ein zweites Wohnzimmer. Von dort aus bietet sich ein herrlicher Blick auf das gepflegte Biotop mit Bachlauf und Uferzone samt Steg. Ein wundervoller Ort seine Seele einfach baumeln zu lassen. Zwei hochwertige Gartenhütten, eine Holzschaukel und ein Baumhaus runden das umfangreiche Angebot in dem wunderschönen, etwa 638 m² großen Garten ab. Bequem finden zwei PKWs in der Doppelgarage Platz. Zwei weitere Stellplätze stehen davor zur Verfügung. Ein großer Vorteil ist, dass sie die PKWs mit der hochmodernen PV Anlage laden können.
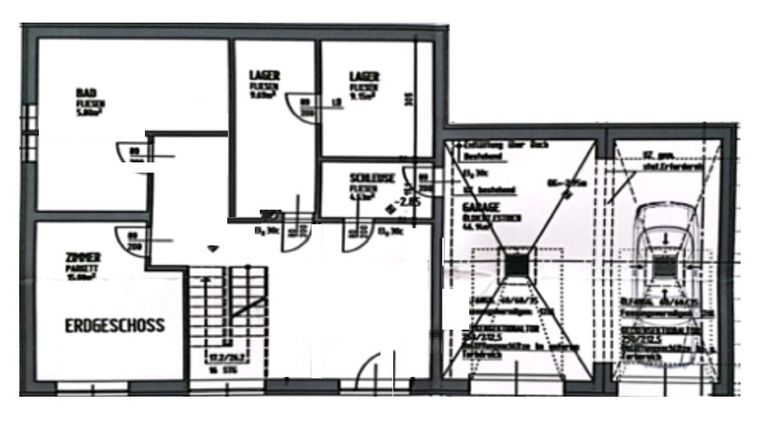
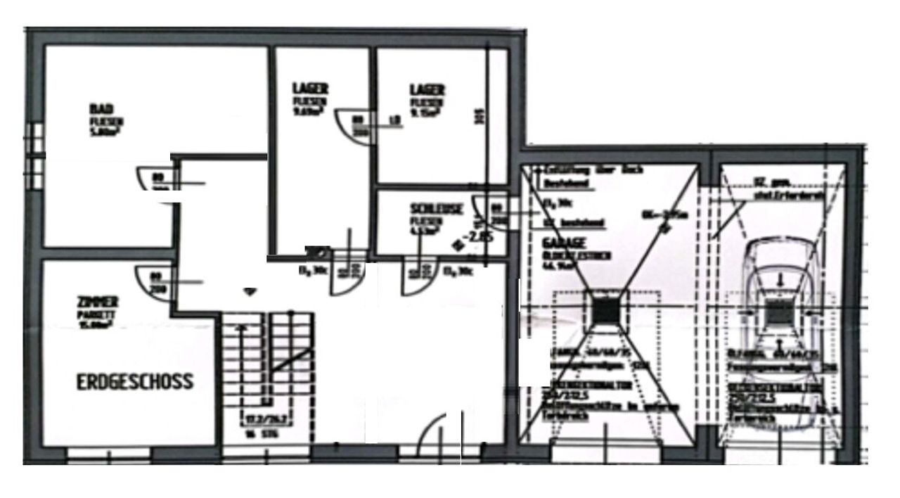
Erdgeschoß
Ein großer und offener Eingangsbereich lädt in das gepflegte Einfamilienhaus mit ca. 210 m² Wohnfläche ein. Es besteht auch einen direkten Zugang von der Garage ins Haus. Im Erdgeschoss befindet sich ein Zimmer, das derzeit als Fitnessraum mit Technogym-Geräten und Kurzhanteln genutzt wird. Ein großes Badezimmer mit Waschküche wird durch zwei weitere Abstell- und Technikräume ergänzt.
Gartenebene/Wohnebene
Über eine breite Treppe im Eingangsbereich erreicht man die Gartenebene im Obergeschoss. Ein offenes Wohn- und Esszimmer mit einer Größe von ca. 47 m² und einem wunderschönen, modernen Kamin für die Herbst- und Wintermonate lädt zum Verweilen ein. Ein Beamer mit elektrischer Leinwand schafft Kinoatmosphäre pur. Von hier aus ist die große Süd-West Terrasse ebenerdig zu betreten, genauso wie die ca. 18 m² große Küche, die modern eingerichtet und mit AEG, Grundig Geräten ausgestattet ist (Dampfgarer, Mikrowelle, Backofen, american style Kühlschrank, Geschirrspüler). Ein Gäste-WC und ein weiteres Zimmer/Büro mit ca. 14 m² befinden sich ebenfalls auf dieser Wohnebene.
Schlafebene/ 2tes Obergeschoß
Über eine Holztreppe gelangt man zum ausgebauten Dachboden mit einem luxuriös gestalteten ca. 13,5 m² großen Badezimmer. Der Masterbedroom mit angeschlossenem Schrankraum bietet viel Charme durch einen hochwertigen Holzboden und eine offene Deckenkonstruktion. Ein weiteres ca. 18 m² großes Zimmer ist derzeit als Jugendzimmer eingerichtet.
Ausstattung/Extras
Die Top-Ausstattung verwöhnt rundum. Dazu zählen eine neue 16,02 kw PV-Anlage der neuesten Technologie von AIKO-ABC, Module mit einem 17,76 kw Batteriespeicher, eine STIEBEL ELTRON Luft-Wasser-Wärmepumpe und Integralspeicher, Fußbodenheizung im Wohnbereich und Bad, Alarmanlage, beheizter Pool, Biotop, Kamin, hochwertige Einbauküche, ein unverbaubarer Fernblick ins Grüne, Bewässerungsanlage und Mähroboter, Kinderspielhaus, Fitnessraum mit Gym-Geräten, Satelliten-TV, Fernseher sowie Soundsystem in fast allen Räumen und natürlich die Doppelgarage und dem großzügigen Stellplätzen.
Lage
Nur 8 Minuten von der Wiener Stadtgrenze entfernt, liegt dieses traumhafte ca. 210 m² große Einfamilienhaus inmitten des Biosphärenparks Wienerwald.
Viele Einkaufsmöglichkeiten wie Hofer, Billa Plus, Bäckerei Szihn und ein breites infrastrukturelles Angebot mit Apotheke, Fachärzten, Ärztezentrum, Poststelle, Bank, Kindergarten, Volksschule, Tankstelle und Kulturzentrum befinden sich direkt in Breitenfurt. Ein vielseitiges kulinarisches Angebot mit erstklassigen Restaurants bis hin zu 2 Golfplätzen, kilometerlange Wander- und Bikestrecken, viele Reitställe und sogar ein Skilift runden das vielfältige Angebot ab. Die öffentliche Anbindung ist durch Busverbindungen Richtung Pressbaum und Liesing mit direkter Anbindung an das Wiener Verkehrsnetz gegeben. Große Einkaufszentren wie Riverside und Auhofcenter sind in ca. 15 - 20 Autominuten zu erreichen.
So sieht Wohnen auf höchstem Niveau aus!
Kaufpreis: 1.495.000,00 EUR
Provision: 53.820,00 EUR inkl. 20% USt.
Grunderwerbssteuer: 3,5%
Grundbuchseintragungsgebühr: 1,1%
Kosten der Vertragserrichtung und grundbücherlichen Durchführung nach Vereinbarung im Rahmen der Tarifordnung des jeweiligen Urkundenerrichters sowie Barauslagen für Beglaubigung und Stempelgebühren.
Hinweis gemäß Energieausweisvorlagegesetz: Ein Energieausweis wurde vom Eigentümer bzw. Verkäufer, nach unserer Aufklärung über die generell geltende Vorlagepflicht, sowie Aufforderung zu seiner Erstellung noch nicht vorgelegt. Daher gilt zumindest eine dem Alter und der Art des Gebäudes entsprechende Gesamtenergieeffizienz als vereinbart. Wir übernehmen keinerlei Gewähr oder Haftung für die tatsächliche Energieeffizienz der angebotenen Immobilie.
Objektdaten
Ausstattung
- Kamin
- Gartennutzung
- Vollmöbliert
- Kabel/SAT-TV
- Swimmingpool
- Wasch-/Trockenraum
- Sporteinrichtungen
- Wellnessbereich
- Fahrradraum
- Gäste-WC
- Bad mit Dusche
- Bad mit Badewanne
- Bad mit Fenster
- Einbauküche
- Fliesenboden
- Steinboden
- Parkettboden
- Fußbodenheizung
- Solar
- Luftwärmepumpe
- Ausrichtung Balkon/Terrasse - Südwest
- Alarmanlage
- Satteldach
- Massiv Bauweise
Zustand
- Zustand
- NEUWERTIG
- Baujahr
- 1988
- Alter
- NEUBAU
Flächen
- Anzahl der Zimmer
- 5
- Anzahl der Badezimmer
- 2
- Anzahl der sep. WCs
- 3
- Anzahl der Terrassen
- 2
- Stellplätze
- 2
- Wohnfläche
- 210m²
- Nutzfläche
- 325m²
- Grundstücksfläche
- 780m²
- Gartenfläche
- 638m²
- Terrassenfläche
- 2m²
Kosten
- Kaufpreis Brutto
- € 1.495.000,00
Verwaltung
- Verfügbar ab
- nach Vereinbarung
Häuser zum Kaufen in Österreich
- Bezirk Gemeindebezirk Liesing
- Bezirk Gemeindebezirk Liesing
- Bezirk Gemeindebezirk Liesing
- Bezirk Gemeindebezirk Hietzing
- Bezirk Gemeindebezirk Hietzing
- Bezirk Gemeindebezirk Hietzing
- Bezirk Gemeindebezirk Meidling
- Bezirk Gemeindebezirk Meidling
- Bezirk Gemeindebezirk Meidling
- Bezirk Gemeindebezirk Penzing
Häuser zum Kaufen in Österreich
Häuser zum Kaufen in Österreich
Andere Besucher suchen nach...
- Grundstücke kaufen in 3400 Weidlingbach
- Wohnungen kaufen in 4663 Laakirchen
- Häuser in 7471 Rechnitz
- Wohnungen in 2410 Hainburg an der Donau
- Häuser kaufen in 2432 Schwadorf
- Wohnungen kaufen in 3002 Purkersdorf
- Häuser in 3150 Wilhelmsburg
- Wohnungen kaufen in 3470 Engelmannsbrunn
- Grundstücke kaufen im Bezirk Mattersburg
- Grundstücke kaufen im Bezirk Gmunden