*NEUER PREIS* Lichtdurchfluteter Erstbezug in Theresienfeld - Garten und Garage inklusive !
-
Erstbezug
-
2024
Beschreibung
Noch auf der Suche nach Ihrem Traumhaus?
Willkommen am Ziel !
Die Kurzinformation für eilige Leser:
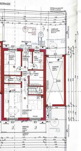
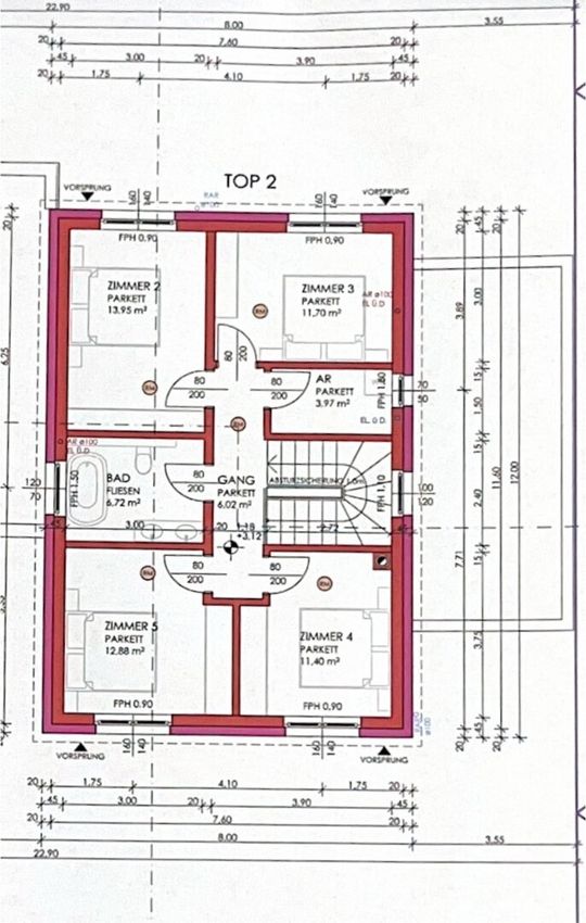
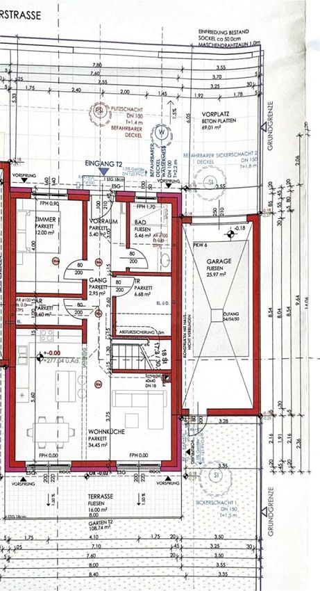
- Einfamilienhaus mit rund 137,18 m² Wohnnutzfläche bestehend aus EG mit rund 70,54 m²: Vorraum, Zimmer (Büro/Gästezimmer), Badezimmer mit Dusche, WC und Handwaschbecken, Wohnküche, Abstellraum, Technikraum mit Waschmaschinenanschluss OG mit rund 66,64 m²: 3 Zimmer, Badezimmer mit Wanne, WC, Doppelhandwaschbecken und Waschmaschinenanschluss, offener Wohnbereich
- Baujahr 2024-2026 - Erstbezug
- belagsfertiger Zustand
- rund 108,74 m² Garten
- Garage mit rund 25,97 m²
- zusätzliche Autoabstellmöglichkeit in der Einfahrt, Vorplatz rund 69,01 m²
- elektrische Rolläden bei allen Fenstern vorhanden
- Zaun wird vom Verkäufer noch errichtet
- Heizung...
Noch auf der Suche nach Ihrem Traumhaus?
Willkommen am Ziel !
Die Kurzinformation für eilige Leser:
- Einfamilienhaus mit rund 137,18 m² Wohnnutzfläche
bestehend aus
EG mit rund 70,54 m²: Vorraum, Zimmer (Büro/Gästezimmer), Badezimmer mit Dusche, WC und Handwaschbecken, Wohnküche, Abstellraum, Technikraum mit Waschmaschinenanschluss
OG mit rund 66,64 m²: 3 Zimmer, Badezimmer mit Wanne, WC, Doppelhandwaschbecken und Waschmaschinenanschluss, offener Wohnbereich - Baujahr 2024-2026 - Erstbezug
- belagsfertiger Zustand
- rund 108,74 m² Garten
- Garage mit rund 25,97 m²
- zusätzliche Autoabstellmöglichkeit in der Einfahrt, Vorplatz rund 69,01 m²
- elektrische Rolläden bei allen Fenstern vorhanden
- Zaun wird vom Verkäufer noch errichtet
- Heizung vorbereitet: Luftwärmepumpe per Fußbodenheizung, die Kosten für die Installation der Luftwärmepumpe übernehmen die Verkäufer
- Klimaanlage vorbereitet
- PV-Anlage vorbereitet
- Auto E-Ladestation vorbereitet
Die ausführliche Beschreibung:
Dieses attraktive Einfamilienhaus wurde 2024-2026 gebaut und befindet sich in ruhiger Wohnlage am Rande von Theresienfeld mit Fernblick.
Bereits der liebevoll angelegte Vorplatz bis zur Haustüre vermittelt einen freundlichen und einladenden ersten Eindruck. Der Vorraum ist geräumig und bietet genügend Platz für eine Garderobe und Kommoden. Linkerhand steht Ihnen das 1. Badezimmer zur Verfügung, welches mit Dusche, WC und Handwaschbecken ausgestattet ist. Weiters befinden sich der Technikraum mit Waschmaschinenanschluss und ein praktischer Abstellraum mit ausreichend Stauraum. Rechterhand gelangen Sie in ein Zimmer, welches sich ideal als Home-Office-Büro oder Gästezimmer eignet. Das Wohnzimmer ist hell und wartet auf Ihren persönlichen Touch - exklusive Designküche oder doch minimalistisch-zeitlos?
Im Obergeschoß befinden sich 3 Zimmer, welche sich ideal in Schlafzimmer, Kinderzimmer und Gästezimmer/Home-Office einteilen lassen. Alle Zimmer sind zentral begehbar, zusätzlich sorgt der offene Wohnbereich für ein freies Wohngefühl. Zwei der Zimmer genießen einen Weitblick auf das Feld, der die Ruhe direkt ins Zuhause holt. Das Badezimmer im Obergeschoß ist mit Wanne, Doppelhandwaschbecken und Waschmaschinenanschluss ausgestattet.
Abgerundet wird dieses Einfamilienhaus mit einem tollen Garten mit Terrasse und einer Garage, in der 2 Autos (hintereinander) Platz finden.
Highlights für Sport- und Erholungsliebhaber – ganz gleich, ob jung oder alt: Im Umkreis weniger Minuten profitieren Sie von vielfältigen Freizeitmöglichkeiten. Sportbegeisterte finden in der nahegelegenen Stadt Wiener Neustadt ein breites Angebot an Fitnessstudios, Tennisplätzen, einem Hallen- und Freibad sowie einem Kino- und Bowlingcenter. Das weitläufige Naherholungsgebiet rund um den Föhrenwald lädt zu ausgedehnten Spaziergängen, Laufrunden oder Radtouren ein. Golfliebhaber kommen im Golfclub Linsberg auf ihre Kosten, während der Badesee Neufeld an warmen Sommertagen für Abkühlung sorgt. Die Kombination aus Natur, Sport und urbaner Infrastruktur macht diese Lage besonders lebenswert.
Kaufvertragserrichter:
Mag. Christian Bauer
öffentlicher Notar
Franz-Josef-Straße 33
2130 Mistelbach
Beheizung und Warmwasseraufbereitung:
Heizung und Warmwasseraufbereitung wurden vorbereitet - diese wird per Luftwärmepumpe via Fußbodenheizung erfolgen, welche für ein angenehmes Wohnklima sorgt.
Belagsfertiger Zustand:
Das Haus wird im belagsfertigen Zustand übergeben, somit bleiben folgende Arbeiten ausständig:
- Innentüren + Zargen
- Bodenbeläge Innen
- Bodenbelag Terrasse
- Verspachteln und Ausmalen
- Inneneinrichtung (Bad, Küche, etc.)
- Handlauf
Verkehrsanbindung:
Bus 325: Wiener Neustadt Hauptbahnhof – Felixdorf – Theresienfeld – Hölles – Enzesfeld (mit Anschluss zu Regional- und Schnellzügen in Wiener Neustadt bzw. Felixdorf)
Bus 326: Wiener Neustadt Hauptbahnhof – Theresienfeld Kirche – Teesdorf – Oberwaltersdorf – weiterverknüpfte Verbindungen zu umliegenden Gemeinden
SV510: Verbindung ab Wiener Neustadt Hauptbahnhof mit Haltestellen im Gemeindegebiet (z. B. Theresienfeld Kirche)
Zuganbindung S3: Wiener Neustadt Hauptbahnhof – Theresienfeld Bahnhof – weiter Richtung Wien bzw. Wiener Neustadt – Bruck/Leitha – … (Regelmäßige S-Bahn-Verbindungen)
Weitere Zuglinien (z. B. 903-W, R3, S2): Halten am Theresienfeld Bahnhof bzw. in der nahen Umgebung mit flexiblen Verbindungen zu regionalen Zielen und Anschlussmöglichkeiten in Wiener Neustadt und darüber hinaus
Mit dem Auto:
Mit dem Auto erreichen Sie in rund 10 Minuten die Innenstadt von Wiener Neustadt mit ihrer Fußgängerzone und sämtlichen Einkaufs- und Gastronomieangeboten. Die Wiener Stadtgrenze ist in etwa 35–40 Autominuten erreichbar.
Anbindung an die A2 Südautobahn: Anschlussstellen „Wiener Neustadt West“ bzw. „Wöllersdorf“ ermöglichen eine rasche Verbindung Richtung Wien oder Graz und sorgen für eine ausgezeichnete überregionale Erreichbarkeit.
Infrastruktur:
Ärzte, Nahversorger, Trafik, verschiedene Freizeitmöglichkeiten, Kindergarten, Schulen, uvm. stehen fußläufig zur Verfügung.
Wichtig:
Unter bestimmten Voraussetzungen (Anmeldung als Hauptwohnsitz, dringendes Wohnbedürfnis), kommen Sie jetzt in den Genuss der Gebührenbefreiung von der Grundbucheintragungsgebühr (1,1%) und der Eintragungsgebühr des Pfandrechts (1,2%) !
SIE SIND NOCH UNSCHLÜSSIG, OB IHRE FINANZIERUNG GESICHERT IST?
Ihre Hausbank benötigt im Normalfall 4-6 Wochen, um Ihnen mitzuteilen, ob Ihr Kredit bewilligt wird, oder nicht. Unser Finanzierungspartner sagt Ihnen nicht nur anhand Ihrer Unterlagen in kürzester Zeit, ob die Finanzierung klappen wird, er sorgt auch für den besten und günstigsten Wohnkredit, da er Zugang zu den besten Angeboten aller relevanten Banken hat.
Last but not least: Unser Finanzberater kostet Sie nichts, denn er bekommt seine Provision von der finanzierenden Bank!
Wir weisen darauf hin, dass zwischen dem Vermittler und dem zu vermittelnden Dritten ein familiäres oder wirtschaftliches Naheverhältnis besteht.
Der Vermittler ist als Doppelmakler tätig.
Infrastruktur / Entfernungen
Gesundheit
Arzt <1.000m
Apotheke <2.500m
Krankenhaus <5.500m
Klinik <7.000m
Kinder & Schulen
Schule <1.000m
Kindergarten <500m
Höhere Schule <6.000m
Universität <3.000m
Nahversorgung
Supermarkt <1.500m
Bäckerei <1.000m
Einkaufszentrum <4.500m
Sonstige
Bank <1.000m
Geldautomat <1.000m
Post <3.000m
Polizei <3.500m
Verkehr
Bus <1.000m
Autobahnanschluss <5.500m
Bahnhof <1.000m
Flughafen <2.500m
Angaben Entfernung Luftlinie / Quelle: OpenStreetMap
Objektdaten
Dokumente / Links
Zustand
- Zustand
- ERSTBEZUG
- Baujahr
- 2024
- Alter
- NEUBAU
- HWB
- 40.4 kWh/m² pro Jahr
- Klasse HWB
- B
- fGEE
- 0.53
- Klasse fGEE
- A++
Flächen
- Anzahl der Zimmer
- 6
- Anzahl der Badezimmer
- 2
- Anzahl der sep. WCs
- 2
- Anzahl der Terrassen
- 1
- Nutzfläche
- 137m²
- Gartenfläche
- 109m²
- Terrassenfläche
- 1m²
Kosten
- Kaufpreis Brutto
- € 549.000,00
- Betriebskosten
- € 100,00
Verwaltung
- Verfügbar ab
- nach Vereinbarung
Häuser zum Kaufen im Umkreis von Theresienfeld
Häuser zum Kaufen im Umkreis von Theresienfeld
Häuser zum Kaufen in Österreich
Andere Besucher suchen nach...
- Grundstücke kaufen in 3400 Weidlingbach
- Wohnungen kaufen in 4663 Laakirchen
- Häuser in 7471 Rechnitz
- Wohnungen in 2410 Hainburg an der Donau
- Häuser kaufen in 2432 Schwadorf
- Wohnungen kaufen in 3002 Purkersdorf
- Häuser in 3150 Wilhelmsburg
- Wohnungen kaufen in 3470 Engelmannsbrunn
- Grundstücke kaufen im Bezirk Mattersburg
- Grundstücke kaufen im Bezirk Gmunden