LEHEN-Donaublick bei Stift Melk gegenüber: zwei Häuser in Hanglage mit Weitblick und viel Potential!
Beschreibung
Zum Verkauf gelangt hier ein Grundstück mit Donaublick mit zwei sanierungsbedürftigen Häusern mit viel Potential!
Es handelt sich um zwei Grundstücke mit einer Gesamtgröße von 1290 m2, davon 1.145 m2 Garten und 145 m2 Baufläche.
Laut dem Kanalabgabenbescheid ergibt sich eine Berechnungsfläche von 303,10 m2.
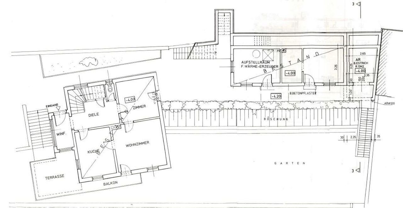
Laut den Einreichplänen ergibt sich eine Nutzfläche von ca. 325 m2 und eine Gesamtfläche von ca. 352 m2.
Das Haus ist voll erschlossen inklusive der Einfreidung, öffentlicher Anbindung an das Wassernetz und an den Kanal, Strom, Telefon, etc.
Das Grundstück...
Zum Verkauf gelangt hier ein Grundstück mit Donaublick mit zwei sanierungsbedürftigen Häusern mit viel Potential!
Es handelt sich um zwei Grundstücke mit einer Gesamtgröße von 1290 m2, davon 1.145 m2 Garten und 145 m2 Baufläche.
Laut dem Kanalabgabenbescheid ergibt sich eine Berechnungsfläche von 303,10 m2.
Laut den Einreichplänen ergibt sich eine Nutzfläche von ca. 325 m2 und eine Gesamtfläche von ca. 352 m2.
Das Haus ist voll erschlossen inklusive der Einfreidung, öffentlicher Anbindung an das Wassernetz und an den Kanal, Strom, Telefon, etc.
Das Grundstück befindet sich in einer Hanglage auf drei Trassenebenen mit Gärten.
Bauklasse II aufgeschlossen; Bebauung bis zu einer Gebäudehöhe von 8 m möglich.
Einen vorgeordneten Bauungsplan der Gemeinde gibt es in diesem Bereich nicht. Es gilt die NÖ Bauordnung.
Die Liegenschaft eignet sich hervorragend für touristische Zimmervermietung / Ferienhausvermietung oder auch für Bauträger*innen oder Eigenheimbauer*innen, da Sie hier gleich zwei Häuser haben oder neu errichten können. Was genau alles möglich ist, muss ein/e Architekt*in prüfen, das kann unsererseits so global nicht beantwortet werden.
Das Haus hat eine gute Substanz, muss aber saniert werden. Die Zimmer sind alle sehr gut geschnitten.
Garagenstellplätze vorhanden plus öffentliche Parkplätze. Der Garten ist auch sehr schön angelegt.
Die Liegenschaft (Haus + Terrasse und Garten) sind westlich orientiert.
Geheizt wird mittels einer Ölzentralheizung.
Lage und Infrastruktur:
Rundherum genießen Sie viel grün mit Blick auf die Donau.
Die Infrastruktur ist auch gut gegeben: Busstation, Schulen, Kindergärten, Einkaufsmöglichkeiten, Apotheken, Banken, etc.
Kindergärten und Schulen befinden sich in der Nähe; Bahnhof; Bundesstraße.
Konditionen:
Kaufpreis: € 229.000,--
Provision: 3 % vom Kaufpreis + 20 % MwSt.
Grundbuchseintragungskosten: 1,1 % (Möglichkeit auf eine Befreiung bei dringendem Wohnbedürfnis)
Grunderwerbssteuer: 3,5 %
Kaufvertragserrichtung inkl. Treuhand: i.d.R.: 1,2 % + 20 % MwSt. + Barauslagen + Beglaubigungen
ev. Pfandrechtseintragungsgebühr: 1,2 % (Möglichkeit auf eine Befreiung bei dringendem Wohnbedürfnis)
Kontakt:
Bitte beachten Sie, dass wir aufgrund der Nachweispflicht gegenüber dem Eigentümer nur Anfragen mit vollständiger Angabe der Anschrift bearbeiten können.
Wir senden Ihnen gerne weitere und detaillierte Beschreibungen, sowie Besichtigungstermine zu, sobald wir Ihre Anfrage erhalten haben.
Wir bitten Sie daher um eine E-Mail-Anfrage an: office@pr-immobilien.at
Noch nichts gefunden? Wir informieren Sie über geeignete Immobilienangebote noch vor allen anderen.
Legen Sie jetzt Ihren individuellen Suchagenten unter folgendem Link an. Wir schicken Ihnen passende Immobilien exklusiv vorab zu.
Suchagent anlegen - https://pr-immobilien-real-estate.service.immo/registrieren/de
Hinweis gemäß Energieausweisvorlagegesetz: Ein Energieausweis wurde vom Eigentümer bzw. Verkäufer, nach unserer Aufklärung über die generell geltende Vorlagepflicht, sowie Aufforderung zu seiner Erstellung noch nicht vorgelegt. Daher gilt zumindest eine dem Alter und der Art des Gebäudes entsprechende Gesamtenergieeffizienz als vereinbart. Wir übernehmen keinerlei Gewähr oder Haftung für die tatsächliche Energieeffizienz der angebotenen Immobilie.
Der Vermittler ist als Doppelmakler tätig.
Infrastruktur / Entfernungen
Gesundheit
Arzt <2.500m
Apotheke <4.500m
Krankenhaus <6.000m
Kinder & Schulen
Kindergarten <4.500m
Schule <2.000m
Nahversorgung
Supermarkt <2.000m
Bäckerei <3.500m
Einkaufszentrum <5.500m
Sonstige
Bank <2.500m
Geldautomat <3.000m
Post <2.500m
Polizei <5.000m
Verkehr
Bus <500m
Autobahnanschluss <3.000m
Bahnhof <4.500m
Angaben Entfernung Luftlinie / Quelle: OpenStreetMap
Objektdaten
Ausstattung
- Kamin
- Klimatisiert
- Gartennutzung
- Vollmöbliert
- Gäste-WC
- Bad mit Dusche
- Bad mit Badewanne
- Bad mit Fenster
- Einbauküche
- Fliesenboden
- Parkettboden
- Dielenboden
- Zentralheizung
- Befeuerung mit Öl
- Befeuerung mit Holz
- Ausrichtung Balkon/Terrasse - West
- Satteldach
Zustand
- Zustand
- SANIERUNGSBEDUERFTIG
Flächen
- Anzahl der Zimmer
- 10
- Anzahl der Badezimmer
- 3
- Anzahl der sep. WCs
- 3
- Anzahl der Terrassen
- 3
- Wohnfläche
- 200m²
- Nutzfläche
- 303m²
- Grundstücksfläche
- 1.290m²
- Gartenfläche
- 1.145m²
- Terrassenfläche
- 3m²
Kosten
- Kaufpreis Brutto
- € 229.000,00
- Betriebskosten
- € 100,00
Häuser zum Kaufen im Umkreis von Leiben
Häuser zum Kaufen im Umkreis von Leiben
Häuser zum Kaufen in Österreich
Andere Besucher suchen nach...
- Grundstücke kaufen in 3400 Weidlingbach
- Wohnungen kaufen in 4663 Laakirchen
- Häuser in 7471 Rechnitz
- Wohnungen in 2410 Hainburg an der Donau
- Häuser kaufen in 2432 Schwadorf
- Wohnungen kaufen in 3002 Purkersdorf
- Häuser in 3150 Wilhelmsburg
- Wohnungen kaufen in 3470 Engelmannsbrunn
- Grundstücke kaufen im Bezirk Mattersburg
- Grundstücke kaufen im Bezirk Gmunden