Großzügiges, mehrfach modernisiertes Einfamilienhaus mit flexiblen Nutzungsmöglichkeiten - Photovoltaikanlage, Swimmingpool
-
sofort
Beschreibung
Vielseitig nutzbar, lichtdurchflutet und ein pflegeleichter, wunderschöner Garten mit beheizbarem Pool – so präsentiert sich diese Liegenschaft in ruhiger Wr. Neustädter Lage.
Die Planung des im Jahre 1978 erbauten Hauses, mit einer Wohnnutzfläche von ca. 302m², wurde gut durchdacht.
Ein Vorgarten führt zum Eingangsbereich; auch über die Garage kann das Haus betreten werden.
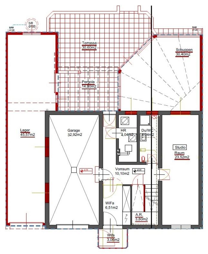
Die Erdgeschoßebene überzeugt durch eine funktionale Grundrissgestaltung: Vorraum, Abstellraum, Heizraum, Wintergarten, Garage mit Werkstatt, Hobbyraum/Studio, sowie Duschbad mit zusätzlichem WC bieten vielseitige Nutzungsmöglichkeiten.
Das Obergeschoss ist der Mittelpunkt des Familienlebens: Ein großes XL-Wohnzimmer, das flexibel in Wohnzimmer und Elternschlafzimmer geteilt werden kann, zwei weitere Zimmer, eine freundliche...
Vielseitig nutzbar, lichtdurchflutet und ein pflegeleichter, wunderschöner Garten mit beheizbarem Pool – so präsentiert sich diese Liegenschaft in ruhiger Wr. Neustädter Lage.
Die Planung des im Jahre 1978 erbauten Hauses, mit einer Wohnnutzfläche von ca. 302m², wurde gut durchdacht.
Ein Vorgarten führt zum Eingangsbereich; auch über die Garage kann das Haus betreten werden.
Die Erdgeschoßebene überzeugt durch eine funktionale Grundrissgestaltung: Vorraum, Abstellraum, Heizraum, Wintergarten, Garage mit Werkstatt, Hobbyraum/Studio, sowie Duschbad mit zusätzlichem WC bieten vielseitige Nutzungsmöglichkeiten.
Das Obergeschoss ist der Mittelpunkt des Familienlebens: Ein großes XL-Wohnzimmer, das flexibel in Wohnzimmer und Elternschlafzimmer geteilt werden kann, zwei weitere Zimmer, eine freundliche Küche sowie ein Wannenbad mit WC.
Das Gebäude ist nicht unterkellert.
Ein ca. 570m² großer, gepflegter Garten mit Swimming Pool lädt zum Entspannen und Sonnenbaden ein. Eine praktische Gartenhütte bietet ausreichend Stauraum für Gartengeräte und weiteres Zubehör.
Ausstattungsdetails:
- Gaskessel STREBEL, 2021, die Leistung ist auch für einen etwaigen Zubau geeignet
- Dachdeckung PREFA, 2021
- 6,8kWp PV-Anlage, 2021
- Oberste Geschossdecke mit begehbaren 10cm Styropor/Fermazellplatten gedämmt
- Fassade 2cm Thermoputz
- Kunststofffenster 3-fach Glas mit elektr. Raffstores, 2021
- Böden: Parkett und Fliesen
- Türen: Holz
- Küche: alle Elektrogeräte befinden sich in einwandfreiem Zustand
- Klimaanlage
- WEIGL Treppenlift
- Beheizbarer 30m² Swimming Pool, Folie wurde 2024 erneuert
- Praktische Gartenhütte vorhanden
- Sonnenpavillion
Liebevoll gepflegt befindet sich das Haus in einem guten Zustand, Reparaturen und Renovierungen wurden immer zeitnah ausgeführt.
Die Machbarkeit eines Umbaus des Hauses in zwei eigenständige Wohneinheiten wurde geprüft und bestätigt.
Übergabe der Liegenschaft: flexibel möglich
Betriebskosten: Grundsteuer, Wasserbereitstellung, Wasserpauschale, Kanal, Müllabfuhr, NÖ Seuchenvorsorgeabgabe: 185,83 EUR pro Monat
Kaufpreis:475.000,00 EUR
Provision:17.100,00 EUR inkl. 20% Ust.
Grunderwerbssteuer: 3,5%
Grundbuchseintragungsgebühr: 1,1%
Kosten der Vertragserrichtung und grundbücherlichen Durchführung nach Vereinbarung im Rahmen der Tarifordnung des jeweiligen Urkundenerrichters sowie Barauslagen für Beglaubigung und Stempelgebühren.
Objektdaten
Ausstattung
- Räume veränderbar
- Gartennutzung
- Vollmöbliert
- Kabel/SAT-TV
- Swimmingpool
- Rolladen
- Bad mit Dusche
- Bad mit Badewanne
- Bad mit Pissoir
- Einbauküche
- Fliesenboden
- Parkettboden
- Zentralheizung
- Befeuerung mit Gas
- Solar
- Ausrichtung Balkon/Terrasse - Süd
- Satteldach
Zustand
- Baujahr
- 1978
- Alter
- NEUBAU
- HWB
- 210 kWh/m² pro Jahr
- Klasse HWB
- F
- fGEE
- 3.46
- Klasse fGEE
- F
Flächen
- Anzahl der Zimmer
- 5
- Anzahl der Badezimmer
- 2
- Anzahl der sep. WCs
- 2
- Anzahl der Terrassen
- 1
- Wohnfläche
- 159m²
- Nutzfläche
- 302m²
- Grundstücksfläche
- 675m²
- Gartenfläche
- 566m²
- Terrassenfläche
- 1m²
Kosten
- Kaufpreis Brutto
- € 475.000,00
Verwaltung
- Verfügbar ab
- sofort
Häuser zum Kaufen in Österreich
Häuser zum Kaufen in Österreich
Häuser zum Kaufen in Österreich
Andere Besucher suchen nach...
- Grundstücke kaufen in 3400 Weidlingbach
- Wohnungen kaufen in 4663 Laakirchen
- Häuser in 7471 Rechnitz
- Wohnungen in 2410 Hainburg an der Donau
- Häuser kaufen in 2432 Schwadorf
- Wohnungen kaufen in 3002 Purkersdorf
- Häuser in 3150 Wilhelmsburg
- Wohnungen kaufen in 3470 Engelmannsbrunn
- Grundstücke kaufen im Bezirk Mattersburg
- Grundstücke kaufen im Bezirk Gmunden