Lib.at Logo
Startseite Makler Liste Gespeicherte Immobilien
Einloggen oder Registrieren Für Makler

Über 1000 m² Nutzfläche, WOHNHAUS, BÄCKEREI, CAFE, GREISSLEREI - ALLES UNTER EINEM DACH

€ 550.000
€ 539 / m²
3531 Niedernondorf

Beschreibung

Raumwunder im Waldviertel: Wohnen, Arbeiten & Visionen verwirklichen!

Ihr neues Projekt mit unendlichen Möglichkeiten – Café, Kaufhaus, Produktion und großzügiges Wohnen auf 1.702 m² Grund.

Suchen Sie den idealen Standort für Ihr Business kombiniert mit privatem Wohnglück? Oder ein Investment mit enormem Entwicklungspotenzial? Diese außergewöhnliche Liegenschaft im idyllischen Waldviertel bietet Ihnen auf einer Gesamtnutzfläche von über 1.000 m² den Raum, den Ihre Träume brauchen.

DIE HIGHLIGHTS AUF EINEN BLICK:

  • Multifunktional: Kombination aus Gastronomie (Café), Einzelhandel (Kaufhaus), Produktion (ehem. Bäckerei) und Wohnen.

  • Enormes Platzangebot: Über 400 m² Lager-, Werkstatt- und Expeditflächen.

    ...

Raumwunder im Waldviertel: Wohnen, Arbeiten & Visionen verwirklichen!


Ihr neues Projekt mit unendlichen Möglichkeiten – Café, Kaufhaus, Produktion und großzügiges Wohnen auf 1.702 m² Grund.


Suchen Sie den idealen Standort für Ihr Business kombiniert mit privatem Wohnglück?
Oder ein Investment mit enormem Entwicklungspotenzial?
Diese außergewöhnliche Liegenschaft im idyllischen Waldviertel bietet Ihnen auf einer Gesamtnutzfläche von über 1.000 m² den Raum, den Ihre Träume brauchen.


DIE HIGHLIGHTS AUF EINEN BLICK:




  • Multifunktional: Kombination aus Gastronomie (Café), Einzelhandel (Kaufhaus), Produktion (ehem. Bäckerei) und Wohnen.




  • Enormes Platzangebot: Über 400 m² Lager-, Werkstatt- und Expeditflächen.




  • Wohnkomfort: Ca. 172 m² Wohneinheit auf zwei Ebenen mit Ausbaureserve.




  • Logistik-Profi: Großes Expedit für bis zu 6 Fahrzeuge und 8–10 Kundenparkplätze direkt vor der Tür.




  • Zukunftspotenzial: Ca. 80 m² ausbaufähige Fläche im Obergeschoss für weitere Wohnträume oder Büroeinheiten.






OBJEKTBESCHREIBUNG


Erdgeschoss: Das Herzstück für Business & Logistik


Das Erdgeschoss ist ein wahres Raumwunder.
Das charmante Café bietet Platz für 70–80 Gäste und verfügt über eine eigene Toilettenanlage – ideal für Gastronomen oder als Erweiterung für das angrenzende Kaufhaus (68 m²).


Die ehemalige Bäckerei (270 m²) wurde im Jahr 2000 komplett saniert und erweitert. Dank der soliden Stahl-Hallenkonstruktion, dem Mehllager und dem großzügigen Expedit eignet sich dieser Bereich perfekt für handwerkliche Produktion, Catering oder Logistik. Die Be- und Entladung von bis zu 6 Fahrzeugen gleichzeitig ist hier problemlos möglich.
Eine Werkstatt und diverse Lagerräume runden das gewerbliche Angebot ab.


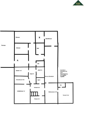
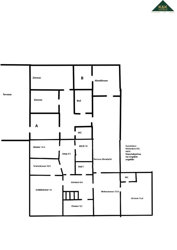
Wohnen & Erholen: Privatsphäre auf höchstem Niveau


Die Wohneinheit verfügt über einen separaten Eingang. Im Erdgeschoss befinden sich Küche und Nebenräume, während das Obergeschoss mit 11 Zimmern beeindruckt.
Ob als Großfamilie, Wohngemeinschaft oder Kombination aus Büro und Wohnen – hier ist alles möglich. Zwei Terrassen (eine davon überdacht) laden dazu ein, die Ruhe des Waldviertels zu genießen.




FLÄCHENAUFSTELLUNG:















































Bereich Fläche (ca.)
Bäckerei / Produktion 270 m²
Lagerflächen 170 m²
Kaufhaus 68 m²
Café (inkl. WC-Anlagen) 108 m²
Expedit 135 m²
Werkstatt 99 m²
Wohnbereich 172 m²
Ausbaureserve (Dachboden) 80 m²
GRUNDSTÜCKSFLÄCHE 1.702 m²



Folgende im Objekt verbleibenden Geräte, Maschinen und Einrichtungen sind im Kaufpreis enthalten:

























































































































































































































































































































































































































 
 
         
BÄCKEREI        
Wirkmaster        
Tiefkühl-Anlage mit Kühlschrank-Vorraum      
Etagenbackofen Matador        
Stikkenofen Rotostar        
Gärraum (ohne Klimagerät)        
Gärwagen Nirostar + 5 Auflagen        
Gärgutträger mit Tuch        
Geschirrspüler        
Teigkneter Kemper        
Planetenrührmaschine Steno Mandl        
doppelte Schlagmaschine        
Ausrollmaschine        
Fritter        
Fritter        
E-Herd        
automatisches Handwaschbecken        
Spüle mit 2 Becken Stöllner        
Mehl-Silo HB-Technik 3 Stk. (ohne Silowaage)      
Mehlwagen Edelstahl        
Wassermischgerät        
Toastschneider        
div.Arbeitstische        
Verpackungsmaschine Saropack        
Dehnfolien-Verpackungsmaschine        
Stikkenwagen inkl. Bleche        
Aufbackofen Gassner        
Krapfenfüller 1 Kolben        
Brotwagen mit Holzrost (9 Auflagen)        
viele Bäckersteigen, Brotkörbe, Simperl u. div. Kleinmaterial    
         
KAUFHAUS        
Verkaufsvitrine u. Brotregale        
Brotschneidmaschine        
Registrierkassa        
Wurstvitrine Taiga Berger        
         
CAFE        
Kaffeemühle Schärf        
Bain-Marie        
Gläserspüler        
Schankanlage        
Einrichtung (Tische, Stühle, Bänke)        
         
BÜRO        
Nadeldrucker        
Etikettendrucker        
Geldzählmaschine für Scheine        
         
SONSTIGE        
Ölheizung        
Heizöltanks 9.000 lt        
Pufferspeicher        
Pufferspeicher        
Waschmaschine        
Wäschetrockner        
Solaranlage

 


LAGE: 


Eingebettet in die kraftvolle Natur des Waldviertels bietet diese Liegenschaft nicht nur eine hohe Lebensqualität, sondern auch eine gute Sichtbarkeit für Gewerbetreibende. Mit 8 bis 10 eigenen Parkplätzen direkt vor dem Gebäude ist eine optimale Erreichbarkeit für Kunden garantiert.


Hinweis: Ein Energieausweis wurde vom Eigentümer bereits in Auftrag gegeben und wird nachgereicht.


Nutzen Sie diese seltene Gelegenheit, Arbeiten und Wohnen an einem Ort zu vereinen!




Kontaktieren Sie uns noch heute für einen persönlichen Termin.


 


INFRASTRUKTUR:


Polizei, VS Kindergarten, Bank und Geldautomat in Waldhausen ca. 3 km entfernt.
Post in Rastenfeld ca. 8 km entfernt
Arzt mit Apotheke im Ort.


Bitte haben Sie Verständnis dafür, dass aufgrund der neuen EU-Bestimmungen nur komplette Anfragen (Name, Telefonnummer, E-Mail) zu einem Besichtigungstermin führen.


Gerne stehe ich Ihnen jederzeit für Besichtigungen und Fragen zur Verfügung.
Sie erreichen mich unter
+ 43 699 13 80 66 19.
 


 


 


 


 


 


Der Vermittler ist als Doppelmakler tätig.

Objektdaten

Ausstattung

  • WG geeignet
  • Kantine/Cafeteria
  • Gäste-WC
  • Bad mit Dusche
  • Bad mit Badewanne
  • Bad mit Fenster
  • Einbauküche
  • Parkettboden
  • Laminatboden
  • Linoleumboden
  • Zentralheizung
  • Befeuerung mit Öl
  • Solar
  • Bar
  • Alarmanlage
  • Massiv Bauweise

Dokumente / Links

Flächen

Anzahl der Zimmer
11
Anzahl der Badezimmer
1
Anzahl der sep. WCs
3
Anzahl der Terrassen
2
Stellplätze
8
Nutzfläche
1.020m²
Grundstücksfläche
1.702m²
Terrassenfläche
2m²

Kosten

Kaufpreis Brutto
€ 550.000,00

Verwaltung

Verfügbar ab
nach Vereinbarung